Информационная система
«Ёшкин Кот»

Скачать базу одним архивом
Скачать обновления
История создания базы
Карта сайта

Скачать Типовой проект 13517тм Альбом 2. Фундаменты под сейсмостойкие трансформаторы 110 кВ

Дата актуализации: 10.08.2017

Типовой проект 13517тм

Альбом 2. Фундаменты под сейсмостойкие трансформаторы 110 кВ

Обозначение: Типовой проект 13517тм
Обозначение англ: 13517тм
Статус:не определен законодательством
Название рус.:Альбом 2. Фундаменты под сейсмостойкие трансформаторы 110 кВ
Дата добавления в базу:01.09.2013
Дата актуализации:05.05.2017
Дата введения:18.05.1993
Оглавление:13517тм Содержание альбома
13517тм Фундаменты типа ФМС-1, ФМС-2, ФМС-5.
13517тм Фундаменты типа ФМС-3.
13517тм Фундаменты типа ФМС-4.
13517тм Разрезы 1-1; 2-2.
13517тм Установка анкерного устройства для трансформаторов.
13517тм Маслосборная яма типа МЛ-1.
13517тм Маслосборная яма типа МЛ-2.
13517тм Маслосборная яма типа МЛ-3.
13517тм Фундамент ФМ-1 для установки трансформатора ТДТН-25000/110. Опалубочный чертеж.
13517тм Фундамент ФМ-2 для установки трансформатора ТДН-16000/110. Опалубочный чертеж.
13517тм Фундамент ФМ-3 для установки трансформатора ТДТН-16000/110. Опалубочный чертеж.
13517тм Фундамент ФМ-4 для установки трансформатора ТРДН-25000/110. Опалубочный чертеж.
13517тм Фундамент ФМ-5 для установки трансформатора ТРДН-40000/110. Опалубочный чертеж.
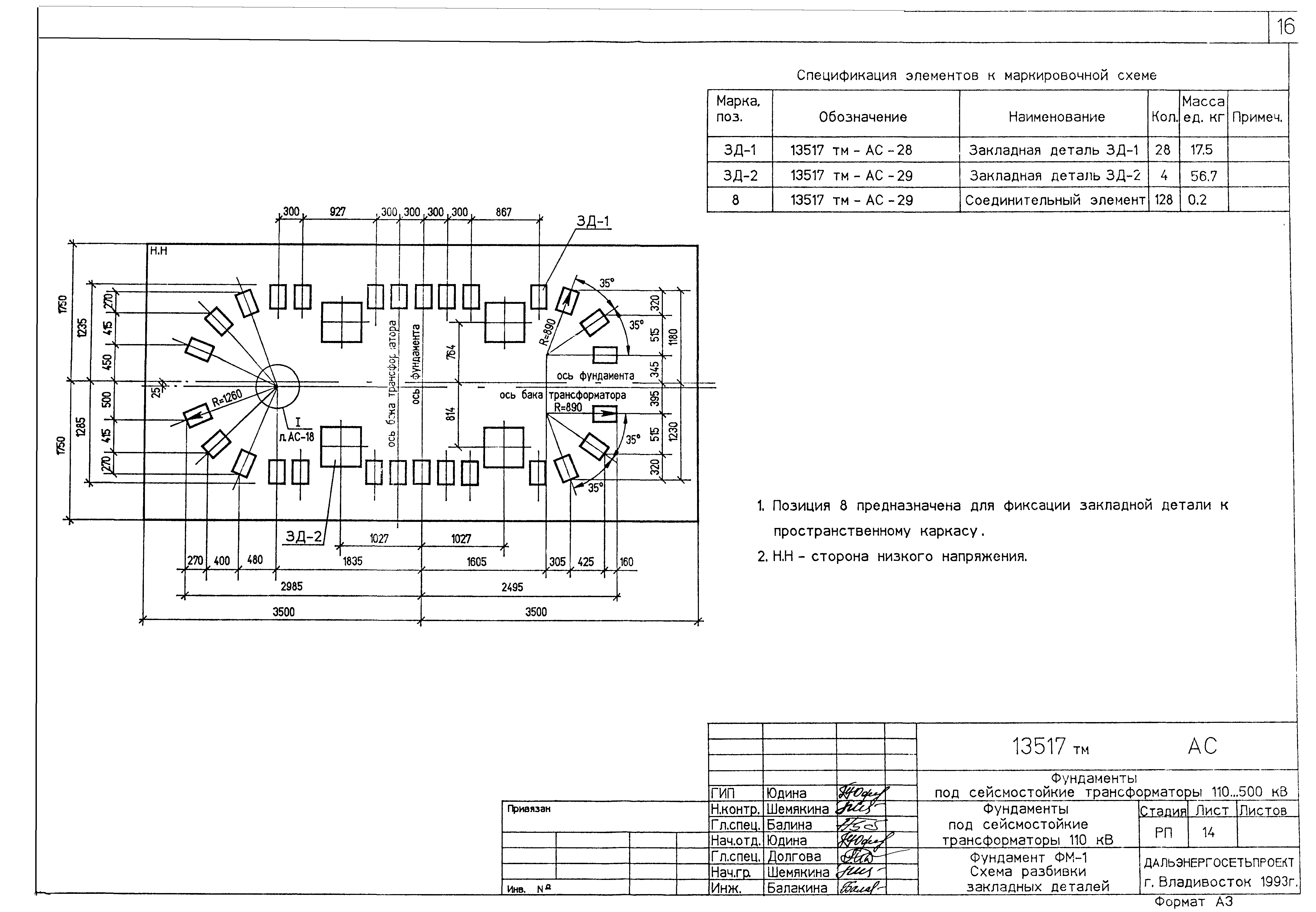
13517тм Фундамент ФМ-1. Схема разбивки закладных деталей .
13517тм Фундамент ФМ-2. Схема разбивки закладных деталей .
13517тм Фундамент ФМ-3. Схема разбивки закладных деталей .
13517тм Фундамент ФМ-4. Схема разбивки закладных деталей .
13517тм Фундамент ФМ-5. Схема разбивки закладных деталей .
13517тм Фундамент ФМ-1. Армирование.
13517тм Фундамент ФМ-2. Армирование.
13517тм Фундамент ФМ-3. Армирование.
13517тм Фундамент ФМ-4. Армирование.
13517тм Фундамент ФМ-5. Армирование.
13517тм Приямок маслосборника. Узлы 1,2
13517тм Узел крепления трансформатора к фундаменту .
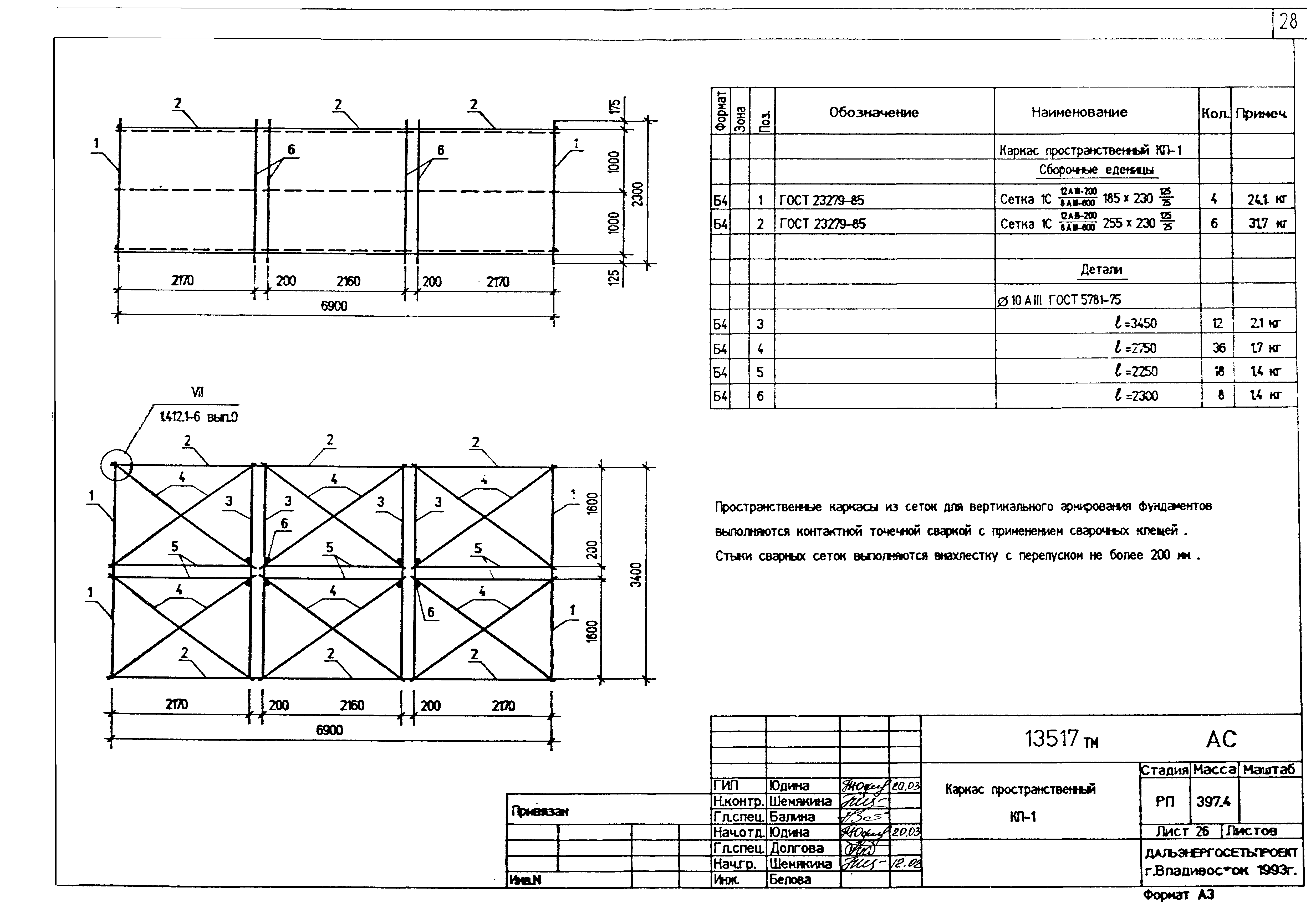
13517тм Каркас пространственный КП-1 .
13517тм Каркас пространственный КП-2 .
13517тм Деталь закладная ЗД-1 .
13517тм Деталь закладная ЗД-2 .
13517тм Решетка МК-1 .
Разработан: Дальэнергосетьпроект
Утверждён:18.05.1993 Энергосетьпроект (Energosetproject 29-003/8)
Расположен в:Техническая документация Строительство Справочные документы Типовые строительные конструкции, изделия и узлы Разработанные другими министерствами, ведомствами и организациями
Типовой проект 13517тмТиповой проект 13517тмТиповой проект 13517тмТиповой проект 13517тмТиповой проект 13517тмТиповой проект 13517тмТиповой проект 13517тмТиповой проект 13517тмТиповой проект 13517тмТиповой проект 13517тмТиповой проект 13517тмТиповой проект 13517тмТиповой проект 13517тмТиповой проект 13517тмТиповой проект 13517тмТиповой проект 13517тмТиповой проект 13517тмТиповой проект 13517тмТиповой проект 13517тмТиповой проект 13517тмТиповой проект 13517тмТиповой проект 13517тмТиповой проект 13517тмТиповой проект 13517тмТиповой проект 13517тмТиповой проект 13517тмТиповой проект 13517тмТиповой проект 13517тмТиповой проект 13517тмТиповой проект 13517тмТиповой проект 13517тмТиповой проект 13517тмТиповой проект 13517тм

© 2013 Ёшкин Кот :-) Карта сайта