Информационная система
«Ёшкин Кот»

Скачать базу одним архивом
Скачать обновления
История создания базы
Карта сайта

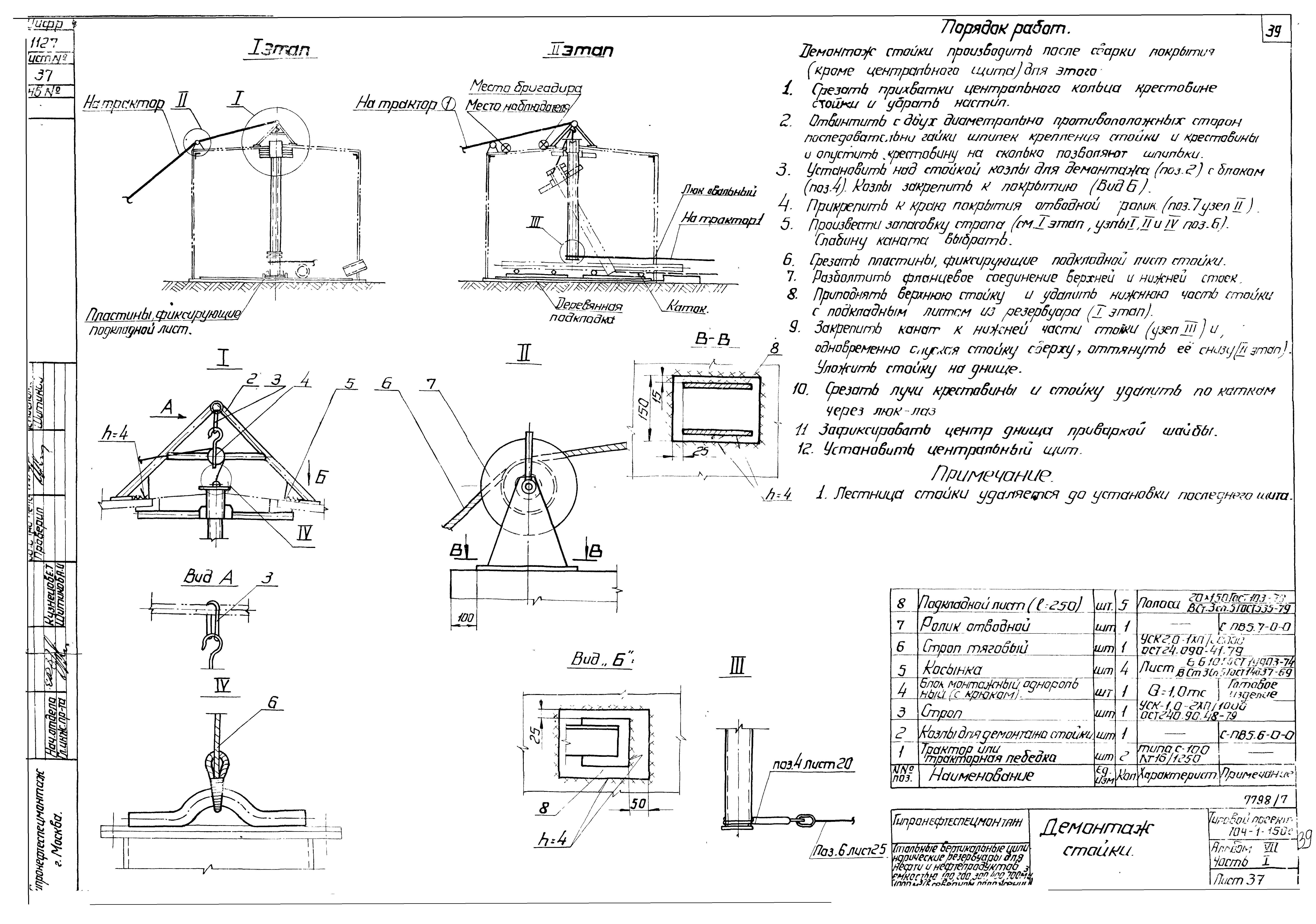
Скачать Типовой проект 704-1-154с Альбом VII. Часть 1. Проект производства монтажных работ. Монтаж резервуара (из ТП 704-1-150с)

Дата актуализации: 10.08.2017

Типовой проект 704-1-154с

Альбом VII. Часть 1. Проект производства монтажных работ. Монтаж резервуара (из ТП 704-1-150с)

Обозначение: Типовой проект 704-1-154с
Обозначение англ: 704-1-154с
Статус:не действует
Название рус.:Альбом VII. Часть 1. Проект производства монтажных работ. Монтаж резервуара (из ТП 704-1-150с)
Дата добавления в базу:01.09.2013
Дата актуализации:05.05.2017
Разработан: Гипронефтеспецмонтаж Минмонтажспецстроя СССР (Giproneftespetsmontazh, Minmontazhspetsstroy (USSR) )
Утверждён:21.03.1977 Миннефтепром СССР
Расположен в:Техническая документация Строительство Справочные документы Типовые строительные конструкции, изделия и узлы Общероссийский строительный каталог Промышленные предприятия, здания и сооружения Предприятия, здания и сооружения складские Резервуары и склады для нефти и нефтепродуктов Резервуары стальные для нефти и нефтепродуктов
Типовой проект 704-1-154сТиповой проект 704-1-154сТиповой проект 704-1-154сТиповой проект 704-1-154сТиповой проект 704-1-154сТиповой проект 704-1-154сТиповой проект 704-1-154сТиповой проект 704-1-154сТиповой проект 704-1-154сТиповой проект 704-1-154сТиповой проект 704-1-154сТиповой проект 704-1-154сТиповой проект 704-1-154сТиповой проект 704-1-154сТиповой проект 704-1-154сТиповой проект 704-1-154сТиповой проект 704-1-154сТиповой проект 704-1-154сТиповой проект 704-1-154сТиповой проект 704-1-154сТиповой проект 704-1-154сТиповой проект 704-1-154сТиповой проект 704-1-154сТиповой проект 704-1-154сТиповой проект 704-1-154сТиповой проект 704-1-154сТиповой проект 704-1-154сТиповой проект 704-1-154сТиповой проект 704-1-154сТиповой проект 704-1-154сТиповой проект 704-1-154сТиповой проект 704-1-154сТиповой проект 704-1-154сТиповой проект 704-1-154сТиповой проект 704-1-154сТиповой проект 704-1-154сТиповой проект 704-1-154сТиповой проект 704-1-154сТиповой проект 704-1-154сТиповой проект 704-1-154сТиповой проект 704-1-154сТиповой проект 704-1-154сТиповой проект 704-1-154сТиповой проект 704-1-154сТиповой проект 704-1-154сТиповой проект 704-1-154сТиповой проект 704-1-154сТиповой проект 704-1-154сТиповой проект 704-1-154сТиповой проект 704-1-154с

© 2013 Ёшкин Кот :-) Карта сайта