| ||||||||||||||||||||||||
Скачать Серия ПК-01-06 Выпуск 9. Рабочие чертежи укороченных балок с натяжением арматуры на упорыДата актуализации: 10.08.2017
|
| Обозначение: | Серия ПК-01-06 |
| Обозначение англ: | Series ПК-01-06 |
| Статус: | не действует |
| Название рус.: | Выпуск 9. Рабочие чертежи укороченных балок с натяжением арматуры на упоры |
| Дата добавления в базу: | 01.09.2013 |
| Дата актуализации: | 05.05.2017 |
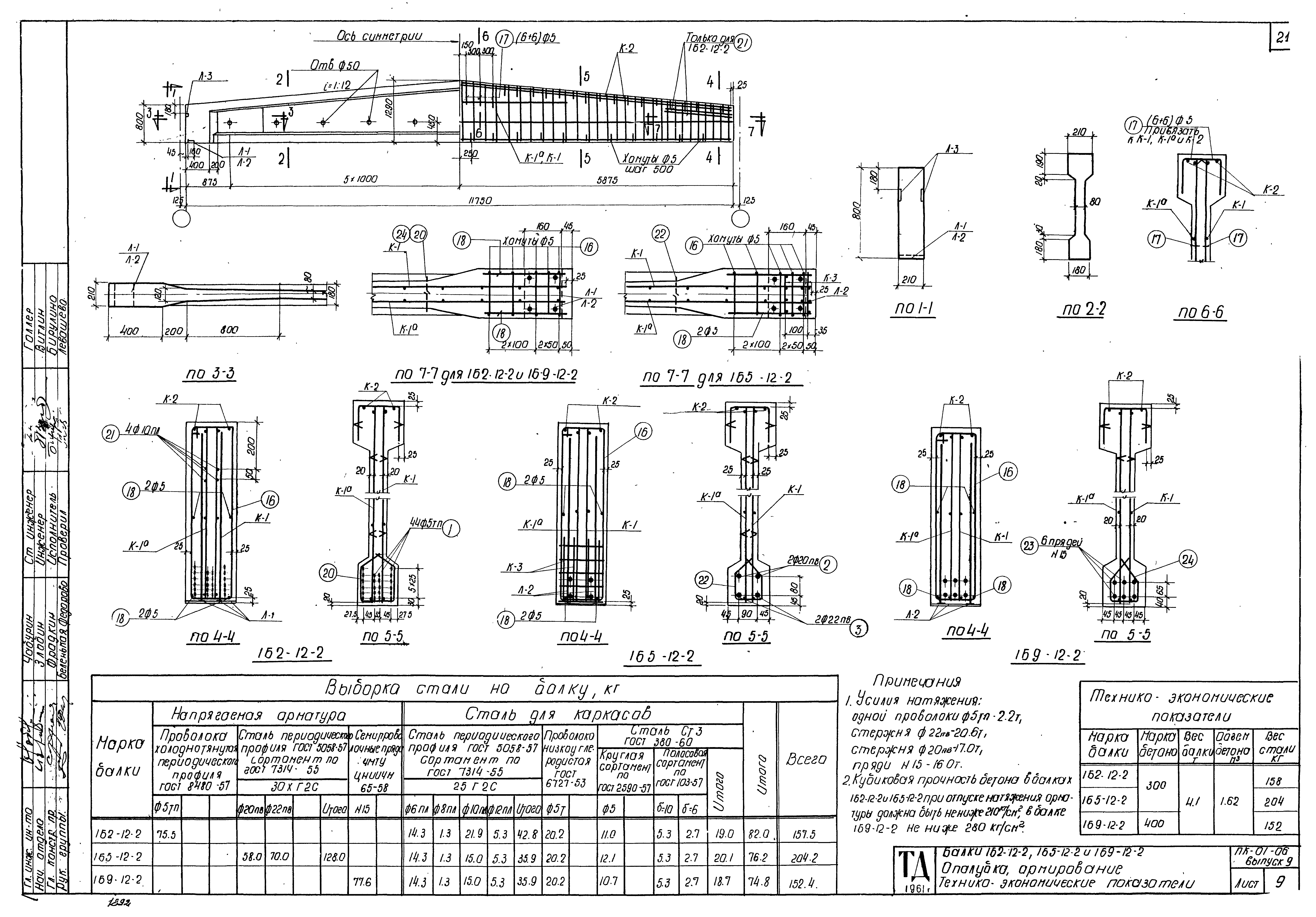
| Область применения: | В выпуске 9 серии ПК-01-06 разработаны рабочие чертежи сборных предварительно напряженных железобетонных двускатных укороченных балок, бетонируемых в вертикальном положении, с проволочной, стержневой и прядевой арматурой, натягиваемой на упоры стенда |
| Разработан: | ПИ № 1 Минстроя СССР Научно-исследовательский институт по строительству Минстроя РСФСР |
| Утверждён: | 25.05.1961 Госстрой СССР (Государственный комитет Совета Министров СССР по делам строительства) (USSR Gosstroy 164) |
| Расположен в: |





























































































