| ||||||||||||||||||||||||||||||||||
Скачать Серия 3.006-2 Выпуск III-2. Рабочие чертежи железобетонных изделий для узлов трасс (лотковые элементы и плиты с отверстиями, балки)Дата актуализации: 10.08.2017
|
| Обозначение: | Серия 3.006-2 |
| Обозначение англ: | Series 3.006-2 |
| Статус: | не действует |
| Название рус.: | Выпуск III-2. Рабочие чертежи железобетонных изделий для узлов трасс (лотковые элементы и плиты с отверстиями, балки) |
| Дата добавления в базу: | 01.09.2013 |
| Дата актуализации: | 05.05.2017 |
| Дата введения: | 01.01.1979 |
| Дата окончания срока действия: | 01.12.1984 |
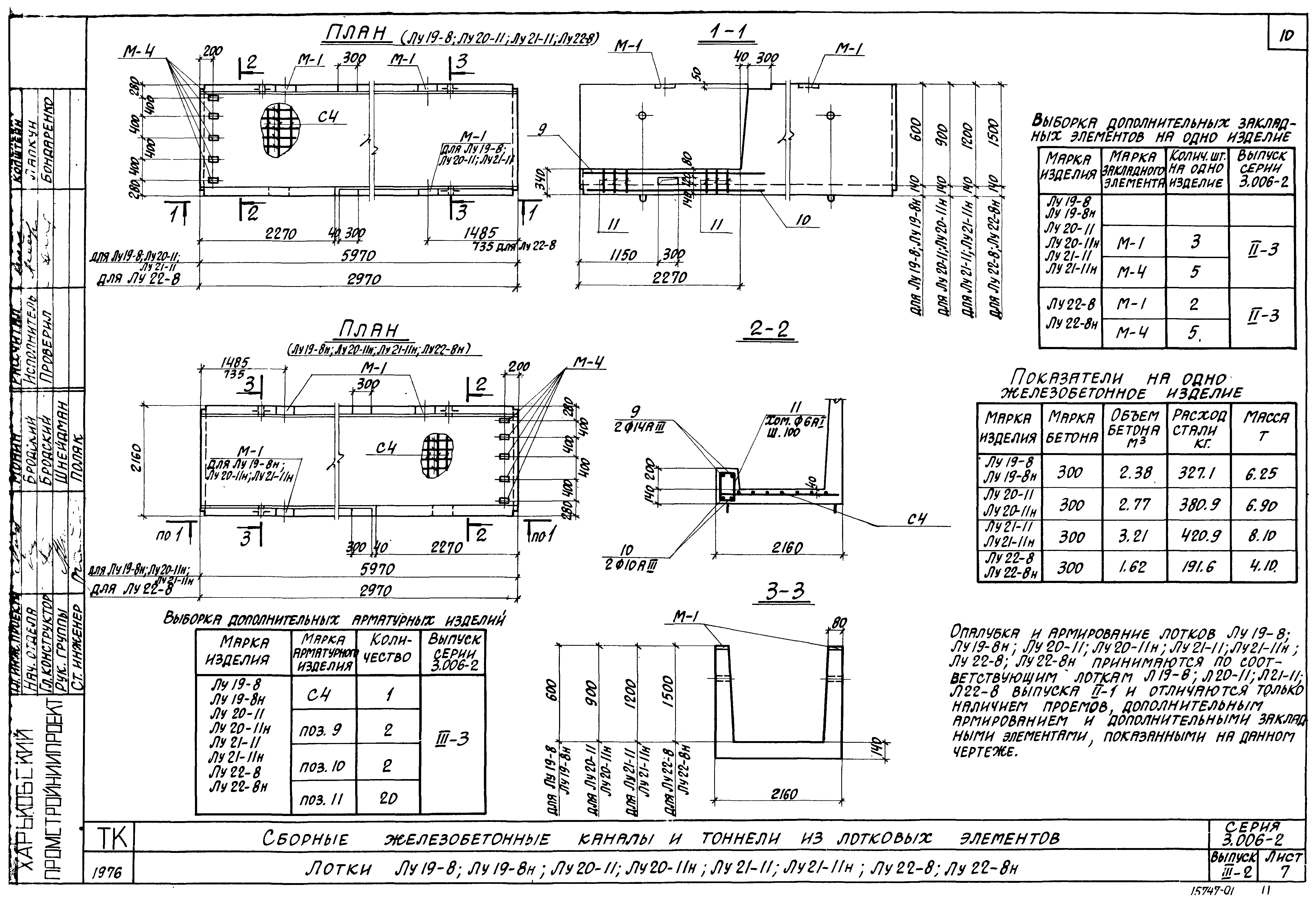
| Оглавление: | 3.006-2 Пояснительная записка 3.006-2 Лотки ЛУ1-8,ЛУ1-8н,ЛУ2-8,ЛУ2-8н 3.006-2 Лотки ЛУ3-8,ЛУ3-8н,ЛУ4-8,ЛУ4-8н,ЛУ5-8,ЛУ-8н 3.006-2 Лотки ЛУ4-8-1;ЛУ4-8н-1 3.006-2 Лотки ЛУ6-8;ЛУ6-8н;ЛУ7-8;ЛУ7-8н;ЛУ8-8;ЛУ8-8н;ЛУ9-8;ЛУ9-8н 3.006-2 Лотки ЛУ10-8;ЛУ10-8н;ЛУ11-8н;ЛУ12-8;ЛУ12-8н;ЛУ13-8;ЛУ13-8н 3.006-2 Лотки ЛУ14-8;ЛУ14-8н;ЛУ15-8;ЛУ15-8н;ЛУ16-8;ЛУ16-8н;ЛУ17-8;ЛУ17-8н;ЛУ18-8;ЛУ18-8н 3.006-2 Лотки ЛУ19-8;ЛУ19-8н;ЛУ20-11;ЛУ20-11н;ЛУ21-11;ЛУ21-11н;ЛУ22-8;ЛУ22-8н 3.006-2 Лотки ЛУ23-8;ЛУ23-8н;ЛУ24-8;ЛУ24-8н;ЛУ25-8;ЛУ25-8н;ЛУ26-8;ЛУ26-8н 3.006-2 Лотки ЛУ27-15;ЛУ27-15н;ЛУ28-15;ЛУ28-15н;ЛУ29-15;ЛУ29-15н;ЛУ30-15;ЛУ30-15н 3.006-2 Лотки ЛУ29-8-1;ЛУ29-8н-1 3.006-2 Лотки ЛУ31-15;ЛУ31-15н;ЛУ32-15;ЛУ32-15н;ЛУ33-15;ЛУ33-15н;ЛУ34-15;ЛУ34-15н 3.006-2 Лотки ЛУ33-8-1;ЛУ33-8н-1 3.006-2 Лотки ЛУ35-15;ЛУ35-15н;ЛУ36-15;ЛУ36-15н;ЛУ37-15;ЛУ37-15н;ЛУ38-15;ЛУ38-15н 3.006-2 Лотки ЛО14-8;ЛО15-8;ЛО16-8;ЛО17-8;ЛО18-8 3.006-2 Лотки ЛО19-8;ЛО20-11;ЛО21-11;ЛО22-8 3.006-2 Лотки ЛО23-8;ЛО24-8;ЛО25-8;ЛО26-8 3.006-2 Лотки ЛО27-8;ЛО28-8;ЛО29-8;ЛО30-8 3.006-2 Лотки ЛО31-8;ЛО32-8;ЛО33-8;ЛО34-8 3.006-2 Лотки ЛО35-8;ЛО36-8;ЛО37-8;ЛО38-8 3.006-2 Балки Б1;Б2;Б3;Б4;Б5 3.006-2 Балки Б6;Б7;Б8 3.006-2 Плита ПО1 3.006-2 Плиты ПО2,ПО3,ПО4 |
| Разработан: | НИИЖБ Госстроя СССР ЦНИИпромзданий Харьковский Промстройниипроект |
| Утверждён: | 02.10.1978 Госстрой СССР (Государственный комитет Совета Министров СССР по делам строительства) (USSR Gosstroy 190) |
| Издан: | ЦИТП Госстроя СССР (CITP, Gosstroy (USSR) 1981 г. ) |
| Расположен в: | |
| Заменяет собой: | |
| Чем заменён: |



























