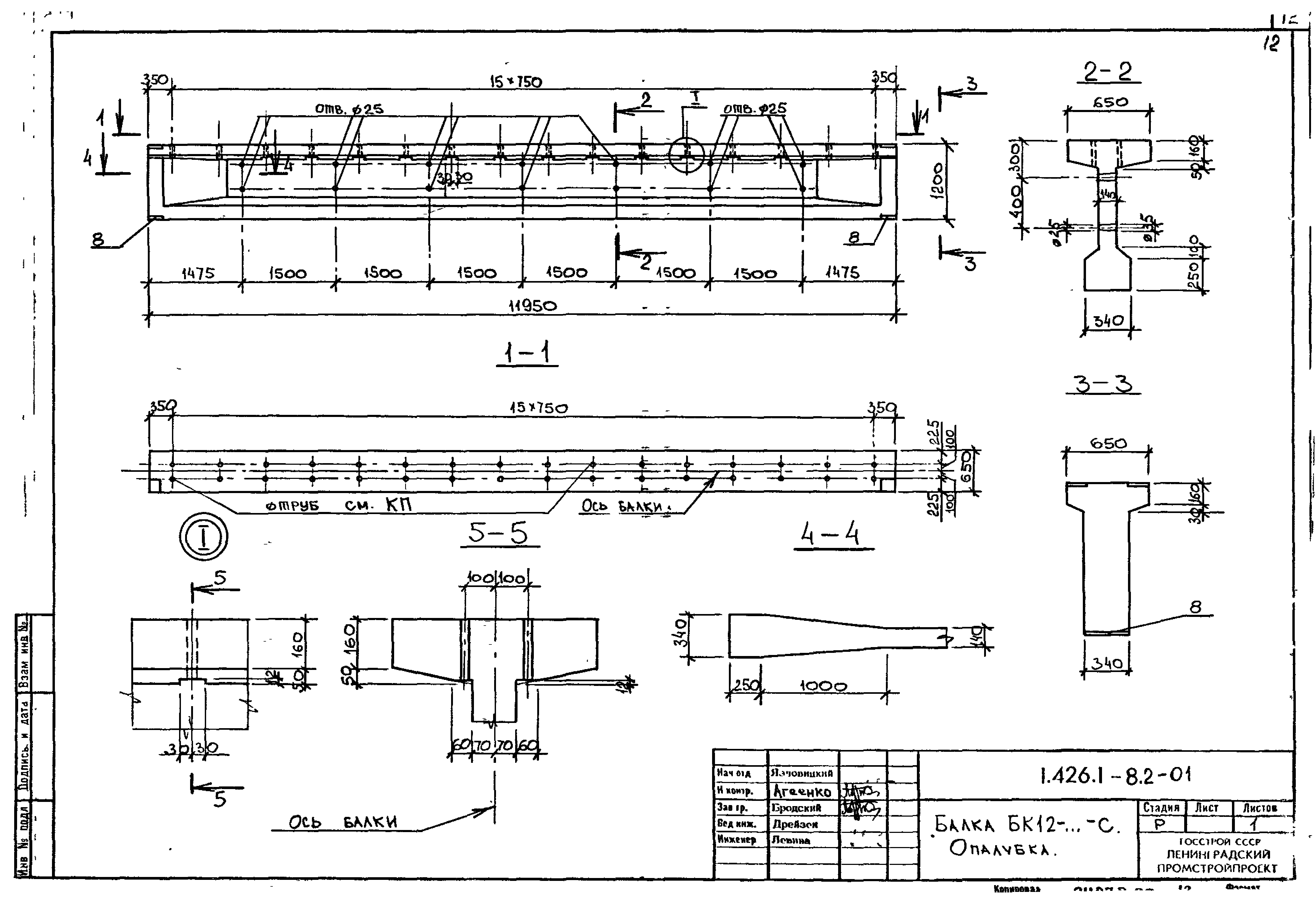
Скачать Серия 1.426.1-8 Выпуск 2. Балки подкрановые железобетонные пролетом 12 м. Рабочие чертежиДата актуализации: 10.08.2017 Серия 1.426.1-8
Выпуск 2. Балки подкрановые железобетонные пролетом 12 м. Рабочие чертежиОбозначение: | Серия 1.426.1-8 | Обозначение англ: | Series 1.426.1-8 | Статус: | не действует | Название рус.: | Выпуск 2. Балки подкрановые железобетонные пролетом 12 м. Рабочие чертежи | Дата добавления в базу: | 01.09.2013 | Дата актуализации: | 05.05.2017 | Дата введения: | 01.05.1999 | Разработан: | Ленинградский Промстройпроект НИИЖБ
| Утверждён: | 18.12.1990 Госстрой СССР (Государственный комитет Совета Министров СССР по делам строительства) (USSR Gosstroy 5/6-960)
| Издан: | АПП ЦИТП (1991 г. )
| Расположен в: |
|
                                        
|