Информационная система
«Ёшкин Кот»

Скачать базу одним архивом
Скачать обновления
История создания базы
Карта сайта

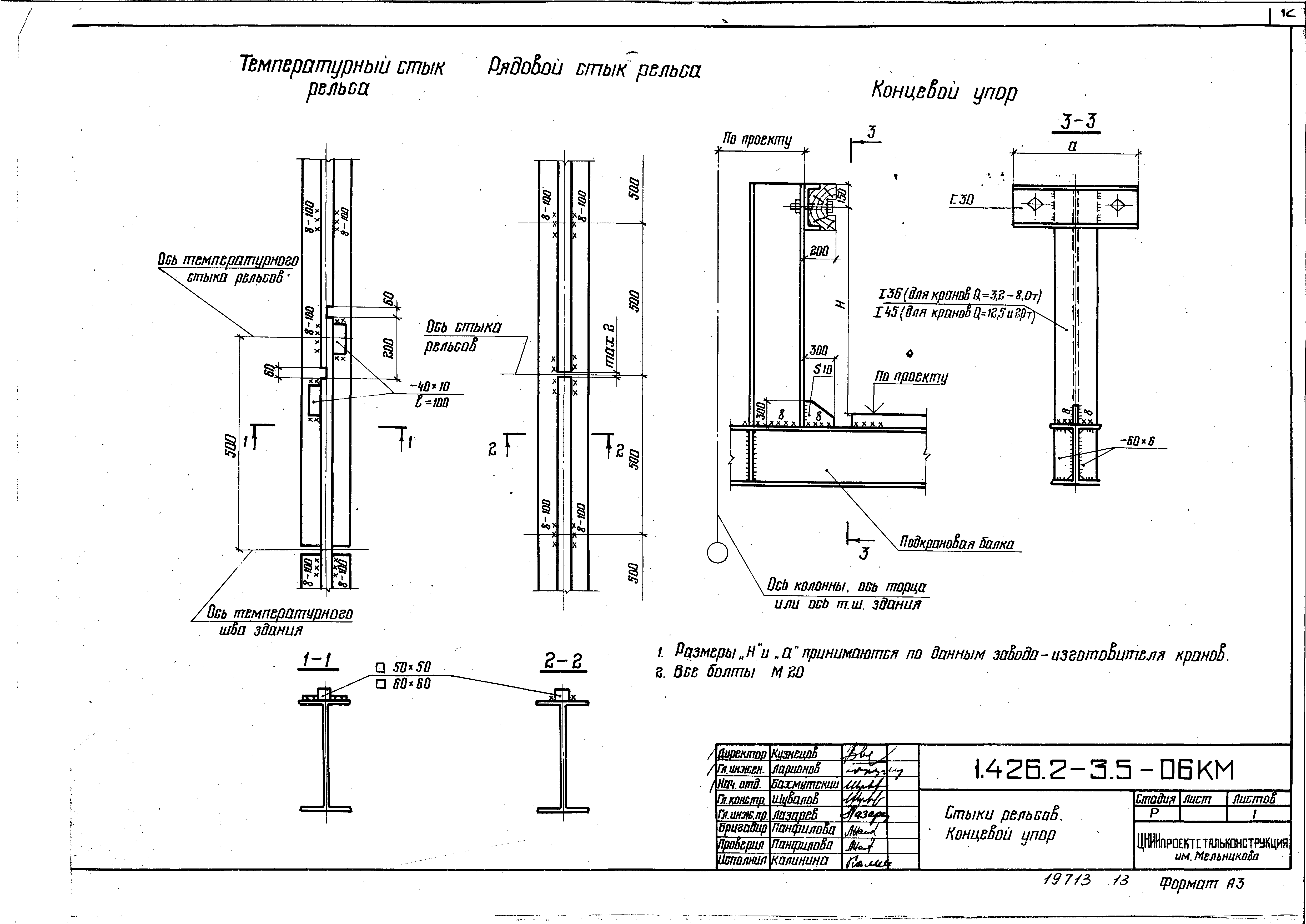
Скачать Серия 1.426.2-3 Выпуск 5. Разрезные подкрановые балки пролетом 6 м под ручные мостовые краны. Чертежи КМ

Дата актуализации: 10.08.2017

Серия 1.426.2-3

Выпуск 5. Разрезные подкрановые балки пролетом 6 м под ручные мостовые краны. Чертежи КМ

Обозначение: Серия 1.426.2-3
Обозначение англ: Series 1.426.2-3
Статус:не действует
Название рус.:Выпуск 5. Разрезные подкрановые балки пролетом 6 м под ручные мостовые краны. Чертежи КМ
Дата добавления в базу:01.09.2013
Дата актуализации:05.05.2017
Дата введения:01.11.1984
Дата окончания срока действия:01.03.1989
Разработан: ЦНИИпроектстальконструкция Госстроя
Утверждён:09.08.1984 Госстрой СССР (Государственный комитет Совета Министров СССР по делам строительства) (USSR Gosstroy 131)
Расположен в:Техническая документация Строительство Справочные документы Типовые строительные конструкции, изделия и узлы Общероссийский строительный каталог Строительные конструкции, изделия и узлы зданий и сооружений для всех видов строительства Конструкции, изделия и узлы зданий Несущие конструкции одноэтажных зданий Балки подкрановых путей подвесного транспорта
Заменяет собой:
Чем заменён:
Серия 1.426.2-3Серия 1.426.2-3Серия 1.426.2-3Серия 1.426.2-3Серия 1.426.2-3Серия 1.426.2-3Серия 1.426.2-3Серия 1.426.2-3Серия 1.426.2-3Серия 1.426.2-3Серия 1.426.2-3Серия 1.426.2-3Серия 1.426.2-3Серия 1.426.2-3

© 2013 Ёшкин Кот :-) Карта сайта