| ||||||||||||||||||||||||||||
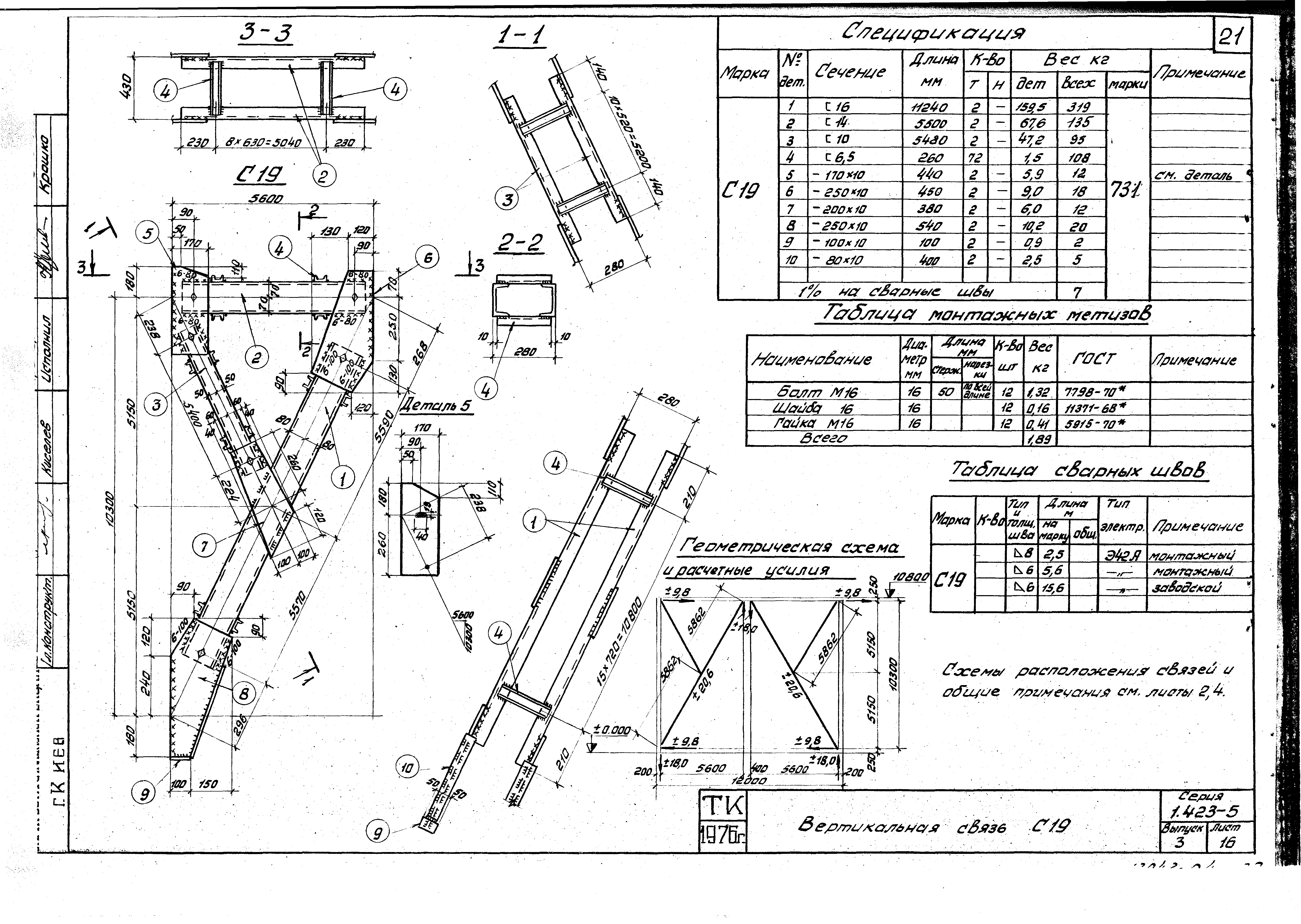
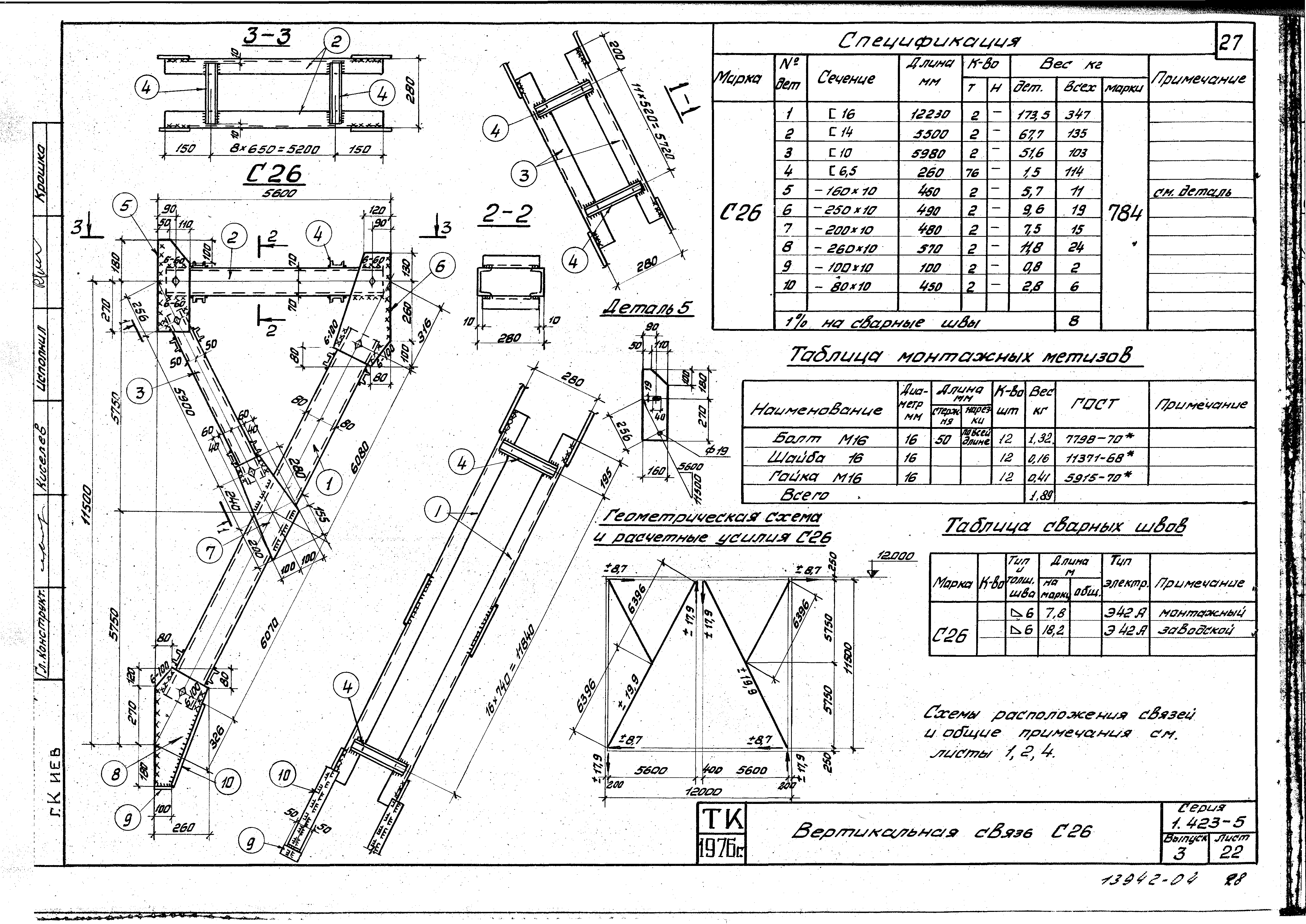
Скачать Серия 1.423-5 Выпуск 3. Стальные связи по колоннам. Рабочие чертежиДата актуализации: 10.08.2017
|
| Обозначение: | Серия 1.423-5 |
| Обозначение англ: | Series 1.423-5 |
| Статус: | не действует |
| Название рус.: | Выпуск 3. Стальные связи по колоннам. Рабочие чертежи |
| Дата добавления в базу: | 01.09.2013 |
| Дата актуализации: | 05.05.2017 |
| Дата введения: | 01.01.1978 |
| Дата окончания срока действия: | 01.05.1989 |
| Разработан: | ЦНИИпромзданий Укрпроектстальконструкция |
| Утверждён: | 05.07.1977 Госстрой СССР (Государственный комитет Совета Министров СССР по делам строительства) (USSR Gosstroy 90) |
| Расположен в: | |
| Чем заменён: |








































































