Информационная система
«Ёшкин Кот»

Скачать базу одним архивом
Скачать обновления
История создания базы
Карта сайта

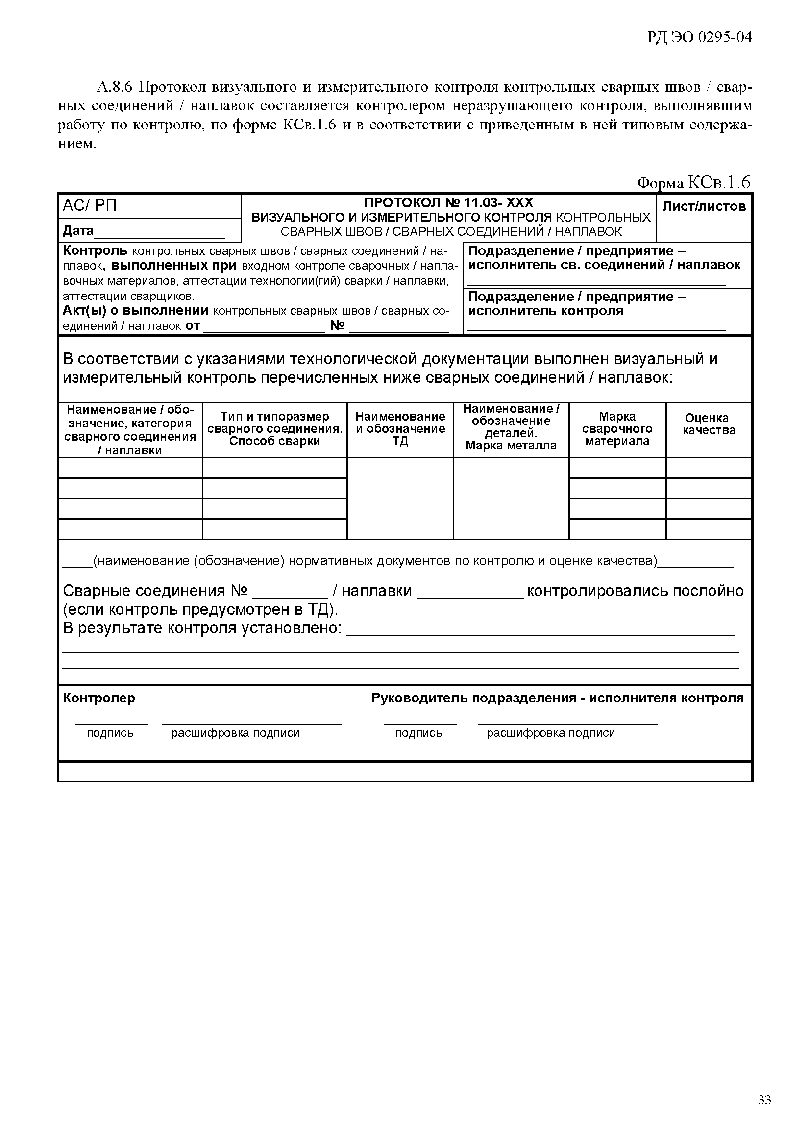
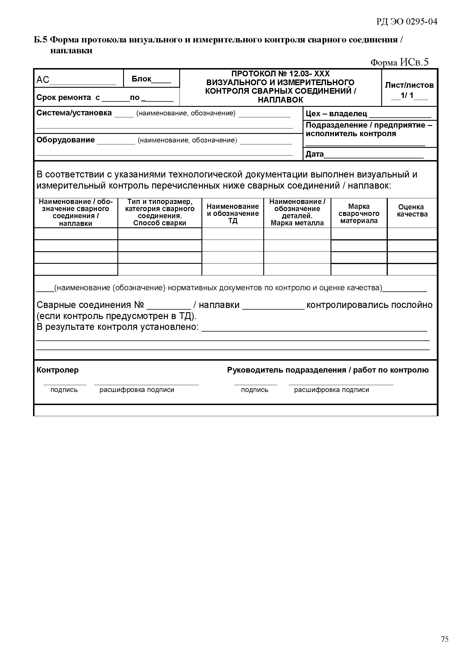
Скачать РД ЭО 0295-2004 Техническое обслуживание и ремонт систем и оборудования атомных станций. Исполнительные документы ремонтных работ с применением сварки. Виды и требования к содержанию и оформлению

Дата актуализации: 10.08.2017

РД ЭО 0295-2004

Техническое обслуживание и ремонт систем и оборудования атомных станций. Исполнительные документы ремонтных работ с применением сварки. Виды и требования к содержанию и оформлению

Обозначение: РД ЭО 0295-2004
Обозначение англ: RD EO 0295-2004
Статус:заменен
Название рус.:Техническое обслуживание и ремонт систем и оборудования атомных станций. Исполнительные документы ремонтных работ с применением сварки. Виды и требования к содержанию и оформлению
Дата добавления в базу:01.09.2013
Дата актуализации:05.05.2017
Дата введения:01.06.2012
Область применения:Требования РД распространяются на оборудование систем атомных станций, подлежащее регистрации в органах Госатомнадзора Российской Федерации и Госгортехнадзора Российской Федерации в соответствии с ПН АЭГ-7-008-89, ПБ-03-576-03 и ПБ-10-573-03. РД не распространяется на технологические документы на ремонт (устранение дефектов) оборудования с применением сварки/наплавки, подлежащие оформлению в соответствии с требованиями РД ЭО 0017, и другие технические документы, содержащие указания по технологии ремонта. Требования РД обязательны для атомных станций в составе концерна "Росэнергоатом", для предприятий, обеспечивающих их безопасную эксплуатацию, а также для всех других предприятий, привлекаемых к выполнению работ (оказанию услуг) по техническому обслуживанию и ремонту систем и оборудования атомных станций.
Оглавление:1. Область применения
2. Нормативные ссылки
3. Общие положения
4. Состав, содержание и оформление документов контроля организации и подготовки ремонтных работ с применением сварки
5. Виды и назначение испольнительных документов
6. Требования к содержанию и оформлению исполнительных документов
Приложение А. Правила оформления документов контроля организации и подготовки ремонтных работ с применением сварки
Приложение Б. Формы и типовое содержание исполнительных документов ремонтных работ с применением сварки/наплавки
Разработан: ОАО ВНИИАЭС
Утверждён:02.11.2004 Концерн Росэнергоатом (Rosenergoatom Concern )
Расположен в:Техническая документация Экология ЭНЕРГЕТИКА И ТЕПЛОТЕХНИКА Атомная энергетика Атомная энергетика, прочие аспекты Строительство Нормативные документы Нормативные документы органов надзора Нормативные документы Госатомнадзора России
Заменяет собой:
  • РД 53.025.014-89
Чем заменён:
  • РД ЭО 1.1.2.25.0295-2011 «Исполнительные документы ремонтных работ с применением сварки. Виды и требования к содержанию и оформлению»
Нормативные ссылки:
РД ЭО 0295-2004РД ЭО 0295-2004РД ЭО 0295-2004РД ЭО 0295-2004РД ЭО 0295-2004РД ЭО 0295-2004РД ЭО 0295-2004РД ЭО 0295-2004РД ЭО 0295-2004РД ЭО 0295-2004РД ЭО 0295-2004РД ЭО 0295-2004РД ЭО 0295-2004РД ЭО 0295-2004РД ЭО 0295-2004РД ЭО 0295-2004РД ЭО 0295-2004РД ЭО 0295-2004РД ЭО 0295-2004РД ЭО 0295-2004РД ЭО 0295-2004РД ЭО 0295-2004РД ЭО 0295-2004РД ЭО 0295-2004РД ЭО 0295-2004РД ЭО 0295-2004РД ЭО 0295-2004РД ЭО 0295-2004РД ЭО 0295-2004РД ЭО 0295-2004РД ЭО 0295-2004РД ЭО 0295-2004РД ЭО 0295-2004РД ЭО 0295-2004РД ЭО 0295-2004РД ЭО 0295-2004РД ЭО 0295-2004РД ЭО 0295-2004РД ЭО 0295-2004РД ЭО 0295-2004РД ЭО 0295-2004РД ЭО 0295-2004РД ЭО 0295-2004РД ЭО 0295-2004РД ЭО 0295-2004РД ЭО 0295-2004РД ЭО 0295-2004РД ЭО 0295-2004РД ЭО 0295-2004РД ЭО 0295-2004РД ЭО 0295-2004РД ЭО 0295-2004РД ЭО 0295-2004РД ЭО 0295-2004РД ЭО 0295-2004РД ЭО 0295-2004РД ЭО 0295-2004РД ЭО 0295-2004РД ЭО 0295-2004РД ЭО 0295-2004РД ЭО 0295-2004РД ЭО 0295-2004РД ЭО 0295-2004РД ЭО 0295-2004РД ЭО 0295-2004РД ЭО 0295-2004РД ЭО 0295-2004РД ЭО 0295-2004РД ЭО 0295-2004РД ЭО 0295-2004РД ЭО 0295-2004РД ЭО 0295-2004РД ЭО 0295-2004РД ЭО 0295-2004РД ЭО 0295-2004РД ЭО 0295-2004РД ЭО 0295-2004РД ЭО 0295-2004РД ЭО 0295-2004РД ЭО 0295-2004РД ЭО 0295-2004РД ЭО 0295-2004РД ЭО 0295-2004РД ЭО 0295-2004РД ЭО 0295-2004РД ЭО 0295-2004

© 2013 Ёшкин Кот :-) Карта сайта