Информационная система
«Ёшкин Кот»

Скачать базу одним архивом
Скачать обновления
История создания базы
Карта сайта

Скачать РК 1101-87 Коллекторы подземных коммуникаций. Рабочие чертежи изделий

Дата актуализации: 10.08.2017

РК 1101-87

Коллекторы подземных коммуникаций. Рабочие чертежи изделий

Обозначение: РК 1101-87
Обозначение англ: RK 1101-87
Статус:не определен законодательством
Название рус.:Коллекторы подземных коммуникаций. Рабочие чертежи изделий
Дата добавления в базу:01.09.2013
Дата актуализации:05.05.2017
Дата введения:13.11.1987
Оглавление:РК 1101-87-00.00 ТО Техническое описание
РК 1101-87-01.00 Габаритные схемы коллекторов
РК 1101-87-02.00 Номенклатура сборных железобетонных элементов
РК 1101-87-00.00 СИ Схемы испытаний
РК 1101-87-03.00 Конструктивное сечение коллектора
РК 1101-87-04.00 Конструктивное сечение двухсекционного коллектора
РК 1101-87-00.00 ВРС Ведомость расхода стали
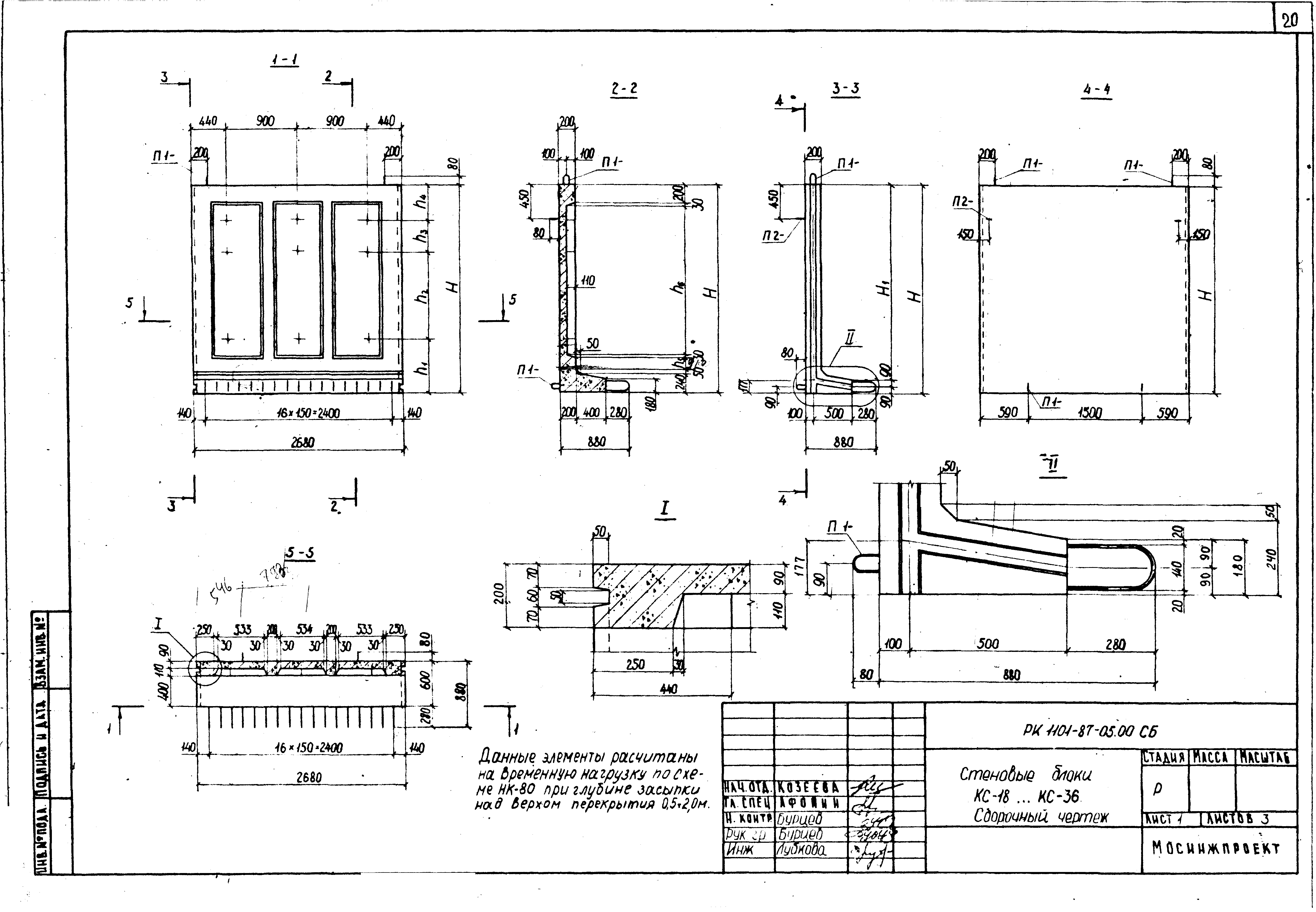
РК 1101-87-05.00 Стеновые блоки КС-18…КС-36
РК 1101-87-05.00 СБ Стеновые блоки КС-18…КС-36. Сборочный чертеж
РК 1101-87-05.01 Каркасы плоские Кр1-1…Кр1-5, Кр2-1и Кр2-2
РК 1101-87-05.01СБ Каркасы плоские Кр1-1…Кр1-5, Кр2-1и Кр2-2. Сборочный чертеж
РК 1101-87-05.02 Сетки арматурные С1-1…С1-4
РК 1101-87-05.02 СБ Сетки арматурные С1-1…С1-4. Сборочный чертеж
РК 1101-87-05.03 Сетки арматурные С1-5 и С3-1
РК 1101-87-05.03 СБ Сетки арматурные С1-5 и С3-1. Сборочный чертеж
РК 1101-87-05.04 Сетки арматурные С2-1...С2-3
РК 1101-87-05.04 СБ Сетки арматурные С2-1...С2-3. Сборочный чертеж
РК 1101-87-05.05 Петли П1-1…П1-3 и П2-1…П2-3. Стержень арматурный СТ1-1
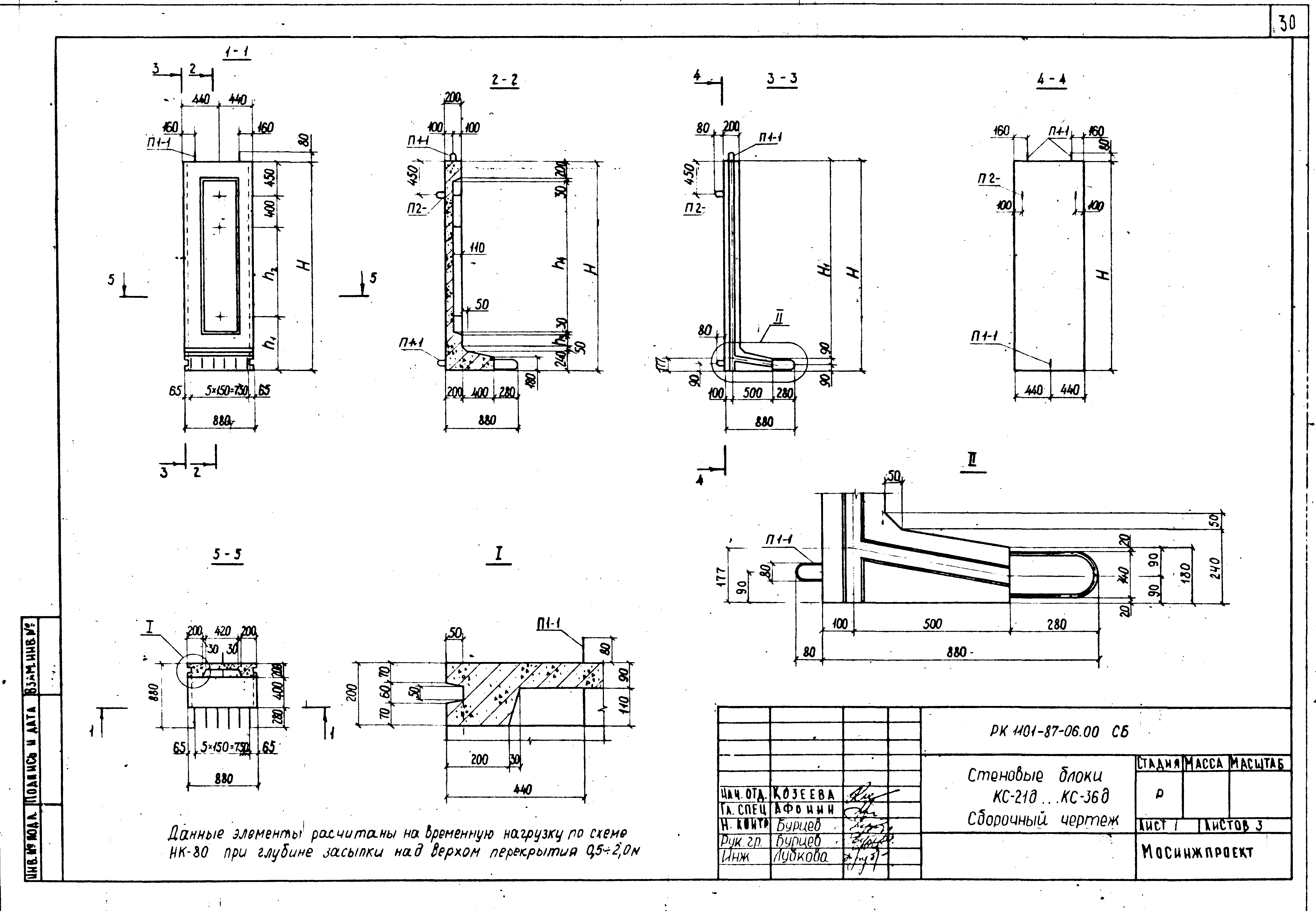
РК 1101-87-06.00 Стеновые блоки КС-21д…КС-36д
РК 1101-87-06.00 СБ Стеновые блоки КС-21д…КС-36д. Сборочный чертеж
РК 1101-87-06.01 Каркасы плоские Кр1-1…Кр1-4, Кр2-1и Кр2-2
РК 1101-87-06.01 СБ Каркасы плоские Кр1-1…Кр1-4, Кр2-1и Кр2-2. Сборочный чертеж
РК 1101-87-06.02 Сетки арматурные С1-1…С1-4, С2-1, С2-2 и С3-1
РК 1101-87-06.02 СБ Сетки арматурные С1-1…С1-4, С2-1, С2-2 и С3-1. Сборочный чертеж
РК 1101-87-06.03 Петли П1-1, П2-1и П2-2. Стержень арматурный СТ1-1
РК 1101-87-07.00 Угловые блоки КУ-21…КУ-36
РК 1101-87-07.00 СБ Угловые блоки КУ-21…КУ-36. Сборочный чертеж
РК 1101-87-07.01 Каркас плоский Кр1-1
РК 1101-87-07.01 СБ Каркас плоский Кр1-1. Сборочный чертеж
РК 1101-87-07.02 Сетки арматурные С1-1…С1-4
РК 1101-87-07.02 СБ Сетки арматурные С1-1…С1-4. Сборочный чертеж
РК 1101-87-07.03 Сетки арматурные С2-1…С2-4
РК 1101-87-07.03 СБ Сетки арматурные С2-1…С2-4. Сборочный чертеж
РК 1101-87-07.04 Сетка арматурная С3-1
РК 1101-87-07.04 СБ Сетка арматурная С3-1. Сборочный чертеж
РК 1101-87-07.05 Петли П1-1, П1-2 и П2-1, П2-2. Стержни арматурные СТ1-1 и СТ2-1
РК 1101-87-08.00 Плиты перекрытия КП-21…КП-42
РК 1101-87-08.00 СБ Плиты перекрытия КП-21…КП-42. Сборочный чертеж
РК 1101-87-08.01 Каркасы пространственные КП1-1…КП1-6
РК 1101-87-08.01 СБ Каркасы пространственные КП1-1…КП1-6. Сборочный чертеж
РК 1101-87-08.02 Каркасы плоские Кр1-1…Кр1-5
РК 1101-87-08.02 СБ Каркасы плоские Кр1-1…Кр1-5. Сборочный чертеж
РК 1101-87-08.03 Каркасы плоские Кр2-1и Кр2-2
РК 1101-87-08.03 Каркасы плоские Кр2-1и Кр2-2. Сборочный чертеж
РК 1101-87-08.04 Сетка арматурная С1-1
РК 1101-87-08.04 СБ Сетка арматурная С1-1. Сборочный чертеж
РК 1101-87-08.05 Сетки арматурные С1-2…С1-5
РК 1101-87-08.05 СБ Сетки арматурные С1-2…С1-5. Сборочный чертеж
РК 1101-87-08.06 Петли П1-1, П1-2 и П1-3.
РК 1101-87-09.00 Плиты перекрытия КП-21д…КП-42д
РК 1101-87-09.00 СБ Плиты перекрытия КП-21д…КП-42д. Сборочный чертеж
РК 1101-87-09.01 Каркасы плоские Кр1-1, Кр1-2 и Кр2-1, Кр2-2
РК 1101-87-09.01 СБ Каркасы плоские Кр1-1, Кр1-2 и Кр2-1, Кр2-2. Сборочный чертеж
РК 1101-87-09.02 Сетки арматурные С1-1…С1-3
РК 1101-87-09.02 СБ Сетки арматурные С1-1…С1-3. Сборочный чертеж
РК 1101-87-09.03 Сетки арматурные С2-1 и С2-2
РК 1101-87-09.03 СБ Сетки арматурные С2-1 и С2-2. Сборочный чертеж
РК 1101-87-09.04 Петля П1-1
РК 1101-87-10.00 Плита перекрытия КП-12
РК 1101-87-10.00 СБ Плита перекрытия КП-12. Сборочный чертеж
РК 1101-87-10.01 Сетки арматурные С1-1 и С2-1
РК 1101-87-10.01 СБ Сетки арматурные С1-1 и С2-1. Сборочный чертеж
РК 1101-87-10.02 Петля П1-1
РК 1101-87-11.00 Плиты днища КД-21…КД-42
РК 1101-87-11.00 СБ Плиты днища КД-21…КД-42. Сборочный чертеж
РК 1101-87-11.01 Сетки арматурные С1-1…С1-5 и С2-1…С2-3
РК 1101-87-11.01 СБ Сетки арматурные С1-1…С1-5 и С2-1…С2-3. Сборочный чертеж
РК 1101-87-11.02 Стержни арматурные СТ1-1…СТ1-5. Петли П1-1 и П1-2
РК 1101-87-12.00 Балки КБ-21…КБ-42
РК 1101-87-12.00 СБ Балки КБ-21…КБ-42. Сборочный чертеж
РК 1101-87-12.01 Каркасы плоские Кр1-1и Кр1-2
РК 1101-87-12.01 СБ Каркасы плоские Кр1-1и Кр1-2. Сборочный чертеж
РК 1101-87-12.02 Каркас плоский Кр1-3
РК 1101-87-12.02 СБ Каркас плоский Кр1-3. Сборочный чертеж
РК 1101-87-12.03 Стержни арматурные СТ1-1, СТ2-1…СТ2-3. Петли П1-1 ... П1-3
РК 1101-87-13.00 Колонны К-21…К-36
РК 1101-87-13.00 СБ Колонны К-21…К-36. Сборочный чертеж
РК 1101-87-13.01 Каркасы плоские Кр1-1... Кр1-4
РК 1101-87-13.01 СБ Каркасы плоские Кр1-1... Кр1-4. Сборочный чертеж
РК 1101-87-13.02 Каркас плоский Кр2-1
РК 1101-87-13.02 СБ Каркас плоский Кр2-1. Сборочный чертеж
РК 1101-87-13.03 Изделие закладное М1-1
РК 1101-87-13.04 Петля П1-1
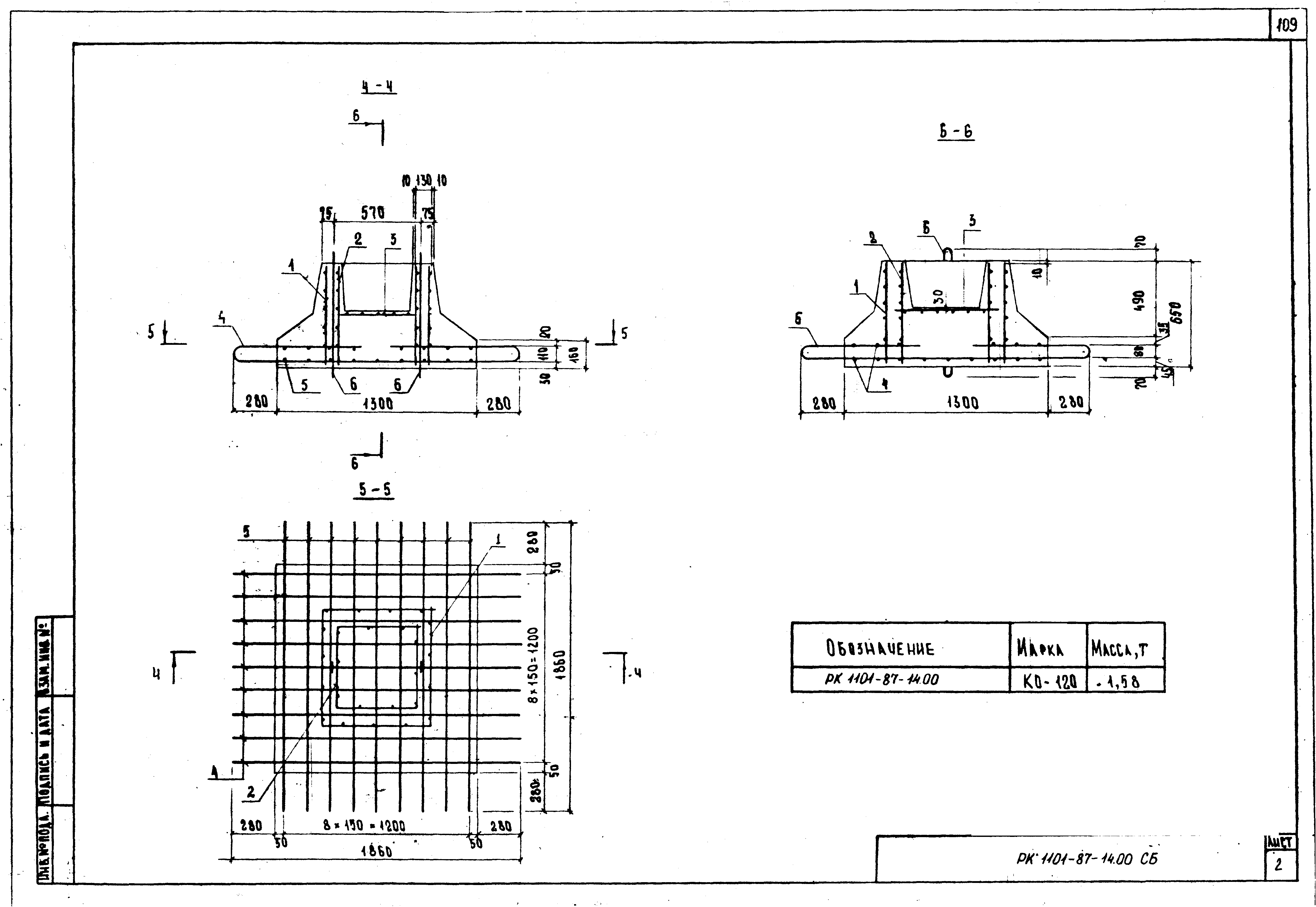
РК 1101-87-14.00 Фундамент КО-120
РК 1101-87-14.00 СБ Фундамент КО-120. Сборочный чертеж
РК 1101-87-14.01 Сетки арматурные С1-1, С2-1 и С3-1.Сборочный чертеж
РК 1101-87-14.02 Стержни арматурные СТ1-1 и СТ2-1
РК 1101-87-14.03 Петля П1-1
РК 1101-87-15.00 Плиты перекрытия КП-25, КП-36 и КП-42. Вариант
РК 1101-87-15.00 СБ Плиты перекрытия КП-25, КП-36 и КП-42. Вариант. Сборочный чертеж
РК 1101-87-15.01 Каркасы плоские Кр1-1... Кр1-3 и Кр2-1... Кр2-4
РК 1101-87-15.01 СБ Каркасы плоские Кр1-1... Кр1-3 и Кр2-1... Кр2-4. Сборочный чертеж
РК 1101-87-15.02 Сетки арматурные С1-1... С1-3
РК 1101-87-15.02 СБ Сетки арматурные С1-1... С1-3. Сборочный чертеж
РК 1101-87-15.03 Петли П1-1 и П1-2
РК 1101-87-16.00 Плита перекрытия КП-12. Вариант
РК 1101-87-16.00 СБ Плита перекрытия КП-12. Вариант. Сборочный чертеж
РК 1101-87-16.01 Сетка арматурная С1-1
РК 1101-87-16.01 СБ Сетка арматурная С1-1. Сборочный чертеж
РК 1101-87-16.02 Стержень арматурный СТ1-1
РК 1101-87-16.03 Петля П1-1
РК 1101-87-17.00 Балки КБ-36 и КБ-42. Вариант
РК 1101-87-17.00 СБ Балки КБ-36 и КБ-42. Вариант. Сборочный чертеж
РК 1101-87-17.01 Каркасы пространственные КП1-1и КП1-2
РК 1101-87-17.01 СБ Каркасы пространственные КП1-1и КП1-2. Сборочный чертеж
РК 1101-87-17.02 Каркасы плоские Кр1-1 и Кр1-2
РК 1101-87-17.02 СБ Каркасы плоские Кр1-1 и Кр1-2. Сборочный чертеж
РК 1101-87-17.03 Стержни арматурные СТ1-1 и СТ2-1
РК 1101-87-17.04 Петли П1-1 и П1-2
Разработан: Мосинжпроект
Утверждён:13.11.1987 Мосинжпроект (Mosinzhproject 35)
Расположен в:Техническая документация Строительство Справочные документы Типовые строительные конструкции, изделия и узлы Разработанные другими министерствами, ведомствами и организациями
РК 1101-87РК 1101-87РК 1101-87РК 1101-87РК 1101-87РК 1101-87РК 1101-87РК 1101-87РК 1101-87РК 1101-87РК 1101-87РК 1101-87РК 1101-87РК 1101-87РК 1101-87РК 1101-87РК 1101-87РК 1101-87РК 1101-87РК 1101-87РК 1101-87РК 1101-87РК 1101-87РК 1101-87РК 1101-87РК 1101-87РК 1101-87РК 1101-87РК 1101-87РК 1101-87РК 1101-87РК 1101-87РК 1101-87РК 1101-87РК 1101-87РК 1101-87РК 1101-87РК 1101-87РК 1101-87РК 1101-87РК 1101-87РК 1101-87РК 1101-87РК 1101-87РК 1101-87РК 1101-87РК 1101-87РК 1101-87РК 1101-87РК 1101-87РК 1101-87РК 1101-87РК 1101-87РК 1101-87РК 1101-87РК 1101-87РК 1101-87РК 1101-87РК 1101-87РК 1101-87РК 1101-87РК 1101-87РК 1101-87РК 1101-87РК 1101-87РК 1101-87РК 1101-87РК 1101-87РК 1101-87РК 1101-87РК 1101-87РК 1101-87РК 1101-87РК 1101-87РК 1101-87РК 1101-87РК 1101-87РК 1101-87РК 1101-87РК 1101-87РК 1101-87РК 1101-87РК 1101-87РК 1101-87РК 1101-87РК 1101-87РК 1101-87РК 1101-87РК 1101-87РК 1101-87РК 1101-87РК 1101-87РК 1101-87РК 1101-87РК 1101-87РК 1101-87РК 1101-87РК 1101-87РК 1101-87РК 1101-87РК 1101-87РК 1101-87РК 1101-87РК 1101-87РК 1101-87РК 1101-87РК 1101-87РК 1101-87РК 1101-87РК 1101-87РК 1101-87РК 1101-87РК 1101-87РК 1101-87РК 1101-87РК 1101-87РК 1101-87РК 1101-87РК 1101-87РК 1101-87РК 1101-87РК 1101-87РК 1101-87РК 1101-87РК 1101-87РК 1101-87РК 1101-87РК 1101-87РК 1101-87РК 1101-87РК 1101-87РК 1101-87

© 2013 Ёшкин Кот :-) Карта сайта