Информационная система
«Ёшкин Кот»

Скачать базу одним архивом
Скачать обновления
История создания базы
Карта сайта

Скачать РД 22-28-32-94* Альбом карт типовых технологических процессов по ремонту методами сварки и наплавки узлов грузоподъемных кранов

Дата актуализации: 10.08.2017

РД 22-28-32-94*

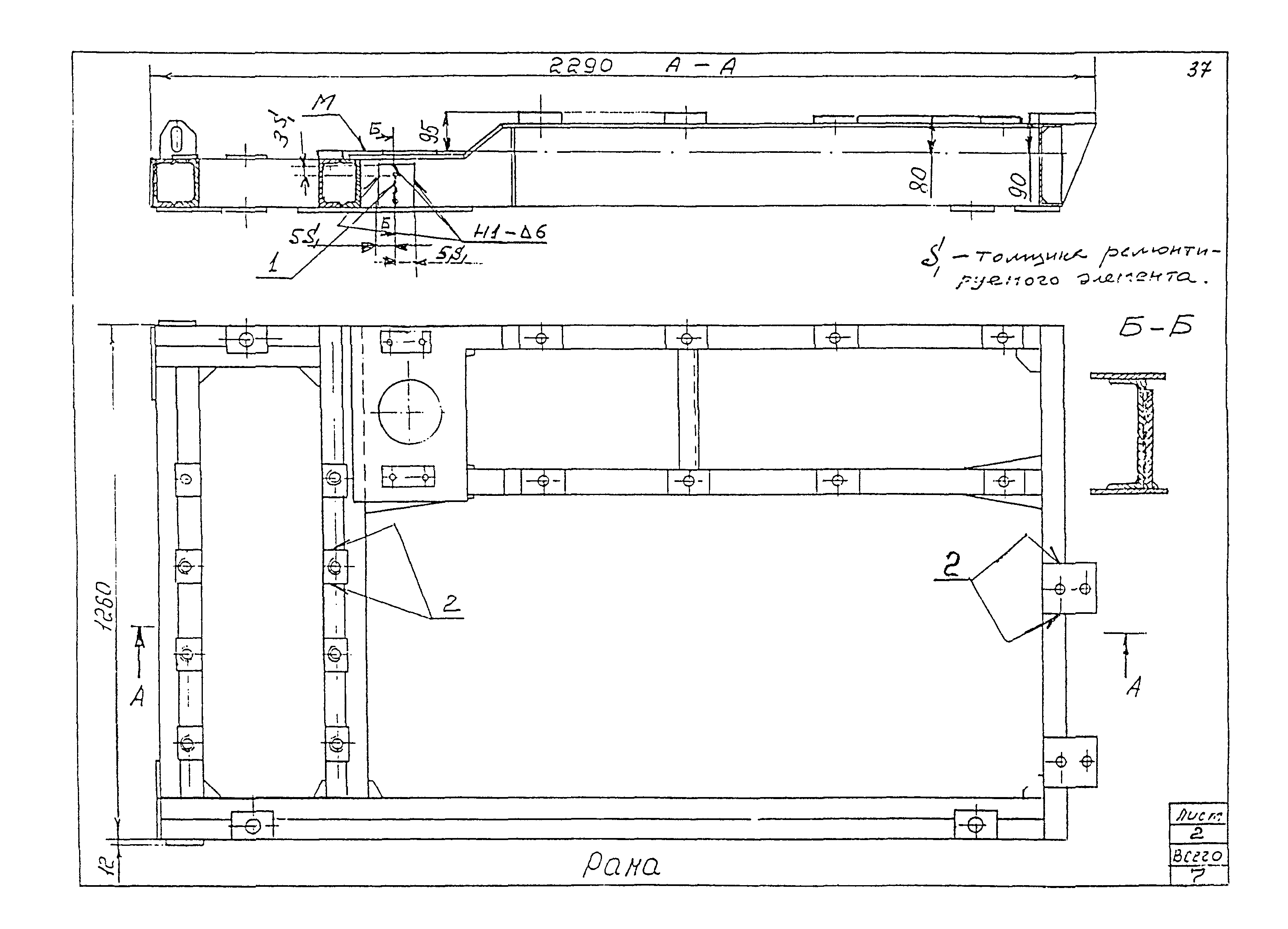
Альбом карт типовых технологических процессов по ремонту методами сварки и наплавки узлов грузоподъемных кранов

Обозначение: РД 22-28-32-94*
Обозначение англ: RD 22-28-32-94*
Статус:действует
Название рус.:Альбом карт типовых технологических процессов по ремонту методами сварки и наплавки узлов грузоподъемных кранов
Дата добавления в базу:01.09.2013
Дата актуализации:05.05.2017
Дата введения:01.06.1994
Область применения:Альбом карт типовых технологических процессов по ремонту узлов методами сварки и восстановлению изношенных поверхностей грузоподъемных кранов наплавкой разработан применительно к башенным кранам всех типов, стреловым, переставным, рельсовым кранам. Кранам-погрузчикам и лесопогрузчикам и другим грузоподъемным кранам. Изменение №1 от 10 января 2002 г. внесено в текст альбома
Оглавление:1. Вводная часть
2. Указания по технологии сварки и наплавки
3. Карты технологических процессов (на этой странице дан перечень всех карт, помещенных в настоящем альбоме)
4. Перечень ссылочных документов
Информационные данные
Разработан: СКТБ башенного краностроения
Утверждён: СКТБ БК (SKTB BK )
Расположен в:Техническая документация Экология ПОДЪЕМНО-ТРАНСПОРТНОЕ ОБОРУДОВАНИЕ Подъемное оборудование Краны Строительство Справочные документы Директивные письма, положения, рекомендации и др.
Нормативные ссылки:
РД 22-28-32-94*РД 22-28-32-94*РД 22-28-32-94*РД 22-28-32-94*РД 22-28-32-94*РД 22-28-32-94*РД 22-28-32-94*РД 22-28-32-94*РД 22-28-32-94*РД 22-28-32-94*РД 22-28-32-94*РД 22-28-32-94*РД 22-28-32-94*РД 22-28-32-94*РД 22-28-32-94*РД 22-28-32-94*РД 22-28-32-94*РД 22-28-32-94*РД 22-28-32-94*РД 22-28-32-94*РД 22-28-32-94*РД 22-28-32-94*РД 22-28-32-94*РД 22-28-32-94*РД 22-28-32-94*РД 22-28-32-94*РД 22-28-32-94*РД 22-28-32-94*РД 22-28-32-94*РД 22-28-32-94*РД 22-28-32-94*РД 22-28-32-94*РД 22-28-32-94*РД 22-28-32-94*РД 22-28-32-94*РД 22-28-32-94*РД 22-28-32-94*РД 22-28-32-94*РД 22-28-32-94*РД 22-28-32-94*РД 22-28-32-94*РД 22-28-32-94*РД 22-28-32-94*РД 22-28-32-94*РД 22-28-32-94*РД 22-28-32-94*РД 22-28-32-94*РД 22-28-32-94*РД 22-28-32-94*РД 22-28-32-94*РД 22-28-32-94*РД 22-28-32-94*РД 22-28-32-94*РД 22-28-32-94*РД 22-28-32-94*РД 22-28-32-94*РД 22-28-32-94*РД 22-28-32-94*РД 22-28-32-94*РД 22-28-32-94*РД 22-28-32-94*РД 22-28-32-94*РД 22-28-32-94*РД 22-28-32-94*РД 22-28-32-94*РД 22-28-32-94*РД 22-28-32-94*РД 22-28-32-94*РД 22-28-32-94*РД 22-28-32-94*РД 22-28-32-94*РД 22-28-32-94*РД 22-28-32-94*РД 22-28-32-94*РД 22-28-32-94*РД 22-28-32-94*РД 22-28-32-94*РД 22-28-32-94*РД 22-28-32-94*РД 22-28-32-94*РД 22-28-32-94*РД 22-28-32-94*РД 22-28-32-94*РД 22-28-32-94*РД 22-28-32-94*РД 22-28-32-94*РД 22-28-32-94*РД 22-28-32-94*РД 22-28-32-94*РД 22-28-32-94*РД 22-28-32-94*РД 22-28-32-94*РД 22-28-32-94*РД 22-28-32-94*РД 22-28-32-94*РД 22-28-32-94*РД 22-28-32-94*РД 22-28-32-94*РД 22-28-32-94*РД 22-28-32-94*РД 22-28-32-94*РД 22-28-32-94*РД 22-28-32-94*РД 22-28-32-94*РД 22-28-32-94*РД 22-28-32-94*РД 22-28-32-94*РД 22-28-32-94*РД 22-28-32-94*РД 22-28-32-94*РД 22-28-32-94*РД 22-28-32-94*РД 22-28-32-94*РД 22-28-32-94*РД 22-28-32-94*РД 22-28-32-94*РД 22-28-32-94*РД 22-28-32-94*РД 22-28-32-94*РД 22-28-32-94*РД 22-28-32-94*РД 22-28-32-94*РД 22-28-32-94*РД 22-28-32-94*РД 22-28-32-94*РД 22-28-32-94*РД 22-28-32-94*РД 22-28-32-94*РД 22-28-32-94*РД 22-28-32-94*РД 22-28-32-94*РД 22-28-32-94*РД 22-28-32-94*РД 22-28-32-94*РД 22-28-32-94*РД 22-28-32-94*РД 22-28-32-94*РД 22-28-32-94*РД 22-28-32-94*РД 22-28-32-94*РД 22-28-32-94*РД 22-28-32-94*РД 22-28-32-94*РД 22-28-32-94*РД 22-28-32-94*РД 22-28-32-94*РД 22-28-32-94*РД 22-28-32-94*РД 22-28-32-94*РД 22-28-32-94*РД 22-28-32-94*РД 22-28-32-94*РД 22-28-32-94*РД 22-28-32-94*РД 22-28-32-94*РД 22-28-32-94*РД 22-28-32-94*РД 22-28-32-94*РД 22-28-32-94*РД 22-28-32-94*РД 22-28-32-94*РД 22-28-32-94*РД 22-28-32-94*РД 22-28-32-94*РД 22-28-32-94*РД 22-28-32-94*РД 22-28-32-94*РД 22-28-32-94*РД 22-28-32-94*РД 22-28-32-94*РД 22-28-32-94*РД 22-28-32-94*РД 22-28-32-94*РД 22-28-32-94*РД 22-28-32-94*РД 22-28-32-94*РД 22-28-32-94*РД 22-28-32-94*РД 22-28-32-94*РД 22-28-32-94*РД 22-28-32-94*РД 22-28-32-94*РД 22-28-32-94*РД 22-28-32-94*РД 22-28-32-94*РД 22-28-32-94*РД 22-28-32-94*РД 22-28-32-94*РД 22-28-32-94*РД 22-28-32-94*РД 22-28-32-94*РД 22-28-32-94*РД 22-28-32-94*РД 22-28-32-94*РД 22-28-32-94*РД 22-28-32-94*РД 22-28-32-94*РД 22-28-32-94*РД 22-28-32-94*РД 22-28-32-94*РД 22-28-32-94*РД 22-28-32-94*РД 22-28-32-94*РД 22-28-32-94*РД 22-28-32-94*РД 22-28-32-94*РД 22-28-32-94*РД 22-28-32-94*РД 22-28-32-94*РД 22-28-32-94*РД 22-28-32-94*РД 22-28-32-94*РД 22-28-32-94*

© 2013 Ёшкин Кот :-) Карта сайта