Информационная система
«Ёшкин Кот»

Скачать базу одним архивом
Скачать обновления
История создания базы
Карта сайта

Скачать Типовой проект 901-5-48.90 Альбом 2. Архитектурно-строительные решения

Дата актуализации: 10.08.2017

Типовой проект 901-5-48.90

Альбом 2. Архитектурно-строительные решения

Обозначение: Типовой проект 901-5-48.90
Обозначение англ: 901-5-48.90
Статус:не определен законодательством
Название рус.:Альбом 2. Архитектурно-строительные решения
Дата добавления в базу:01.09.2013
Дата актуализации:05.05.2017
Дата введения:01.01.1991
Оглавление:Содержание альбома
Пояснительная записка
Общие данные
Планы. Разрез 1-1
Фасад. План настила площадки. Узлы 1…3
Разрез 2-2. Узлы 4…6
Кожух защитный КЗ. Шкаф защитный ШЗ
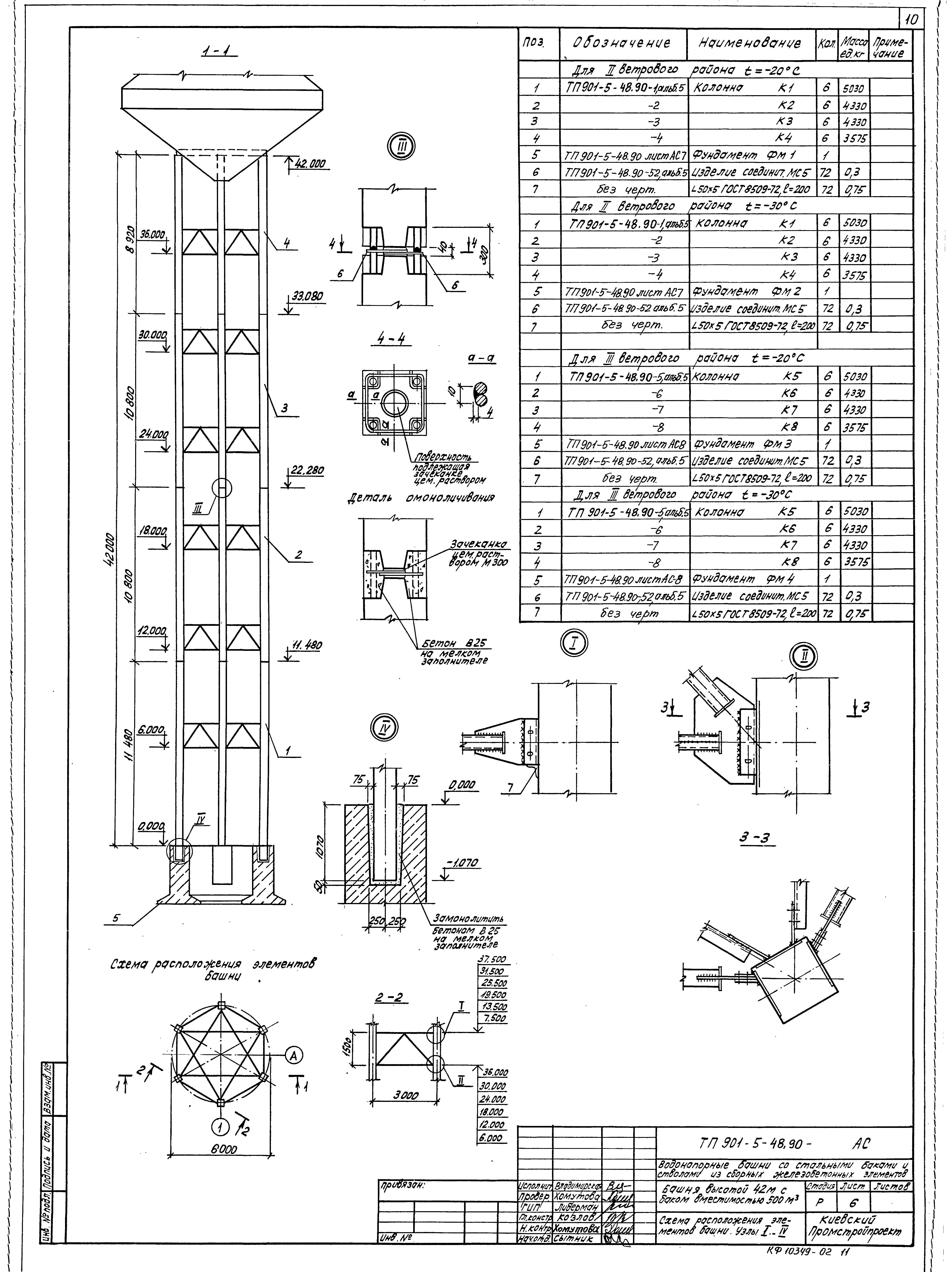
Схема расположения элементов башни. Узлы 1…4
Фундамент ФМ1; ФМ2
Фундамент ФМ3; ФМ4
Подземная камера МК1; МК2. Разрезы 1-1…8-8. Опалубка
Подземная камера МК1; МК2. Разрезы 9-9…20-20. Опалубка
Подземная камера МК1; МК2. Армирование. Разрезы 1-1…5-5
Подземная камера МК1; МК2. Армирование. Спецификация
Подземная камера МК1; МК2. Армирование. Ведомость расхода стали
Разработан: Киевский Промстройпроект
Утверждён:25.07.1990 Госстрой СССР (Государственный комитет Совета Министров СССР по делам строительства) (USSR Gosstroy 10)
Расположен в:Техническая документация Строительство Справочные документы Типовые строительные конструкции, изделия и узлы Общероссийский строительный каталог Промышленные предприятия, здания и сооружения Здания и сооружения санитарно-технические Водоснабжение Водонапорные башни Железобетонные
Типовой проект 901-5-48.90Типовой проект 901-5-48.90Типовой проект 901-5-48.90Типовой проект 901-5-48.90Типовой проект 901-5-48.90Типовой проект 901-5-48.90Типовой проект 901-5-48.90Типовой проект 901-5-48.90Типовой проект 901-5-48.90Типовой проект 901-5-48.90Типовой проект 901-5-48.90Типовой проект 901-5-48.90Типовой проект 901-5-48.90Типовой проект 901-5-48.90Типовой проект 901-5-48.90Типовой проект 901-5-48.90Типовой проект 901-5-48.90Типовой проект 901-5-48.90

© 2013 Ёшкин Кот :-) Карта сайта