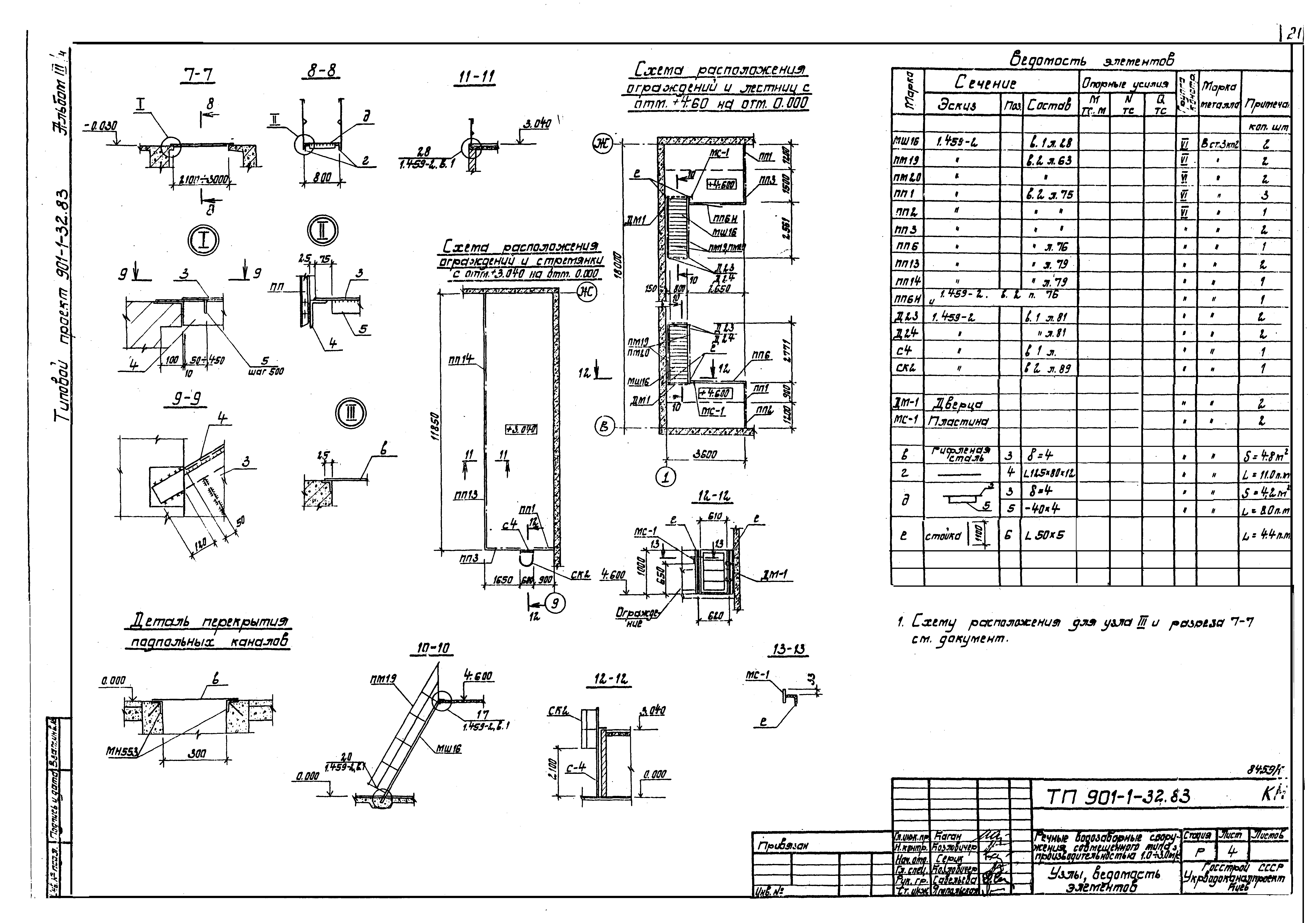
Скачать Типовой проект 901-1-32.83 Альбом III/4. Строительная часть при производстве работ методом стена в грунте (глубина подземной части 12,6 м)Дата актуализации: 10.08.2017 Типовой проект 901-1-32.83
Альбом III/4. Строительная часть при производстве работ методом "стена в грунте" (глубина подземной части 12,6 м)Обозначение: | Типовой проект 901-1-32.83 | Обозначение англ: | 901-1-32.83 | Статус: | не действует | Название рус.: | Альбом III/4. Строительная часть при производстве работ методом "стена в грунте" (глубина подземной части 12,6 м) | Дата добавления в базу: | 01.09.2013 | Дата актуализации: | 05.05.2017 | Разработан: | Укрводоканалпроект
| Утверждён: | 08.12.1982 Союзводоканалпроект (Soyuzvodokanalproject 80)
| Расположен в: |
|
                        
|