Информационная система
«Ёшкин Кот»

Скачать базу одним архивом
Скачать обновления
История создания базы
Карта сайта

Скачать ГОСТ 21.103-78 Система проектной документации для строительства. Основные надписи

Дата актуализации: 10.08.2017

ГОСТ 21.103-78

Система проектной документации для строительства. Основные надписи

Обозначение: ГОСТ 21.103-78
Обозначение англ: GOST 21.103-78
Статус:заменен
Название рус.:Система проектной документации для строительства. Основные надписи
Дата добавления в базу:01.09.2013
Дата актуализации:05.05.2017
Дата введения:01.09.1994
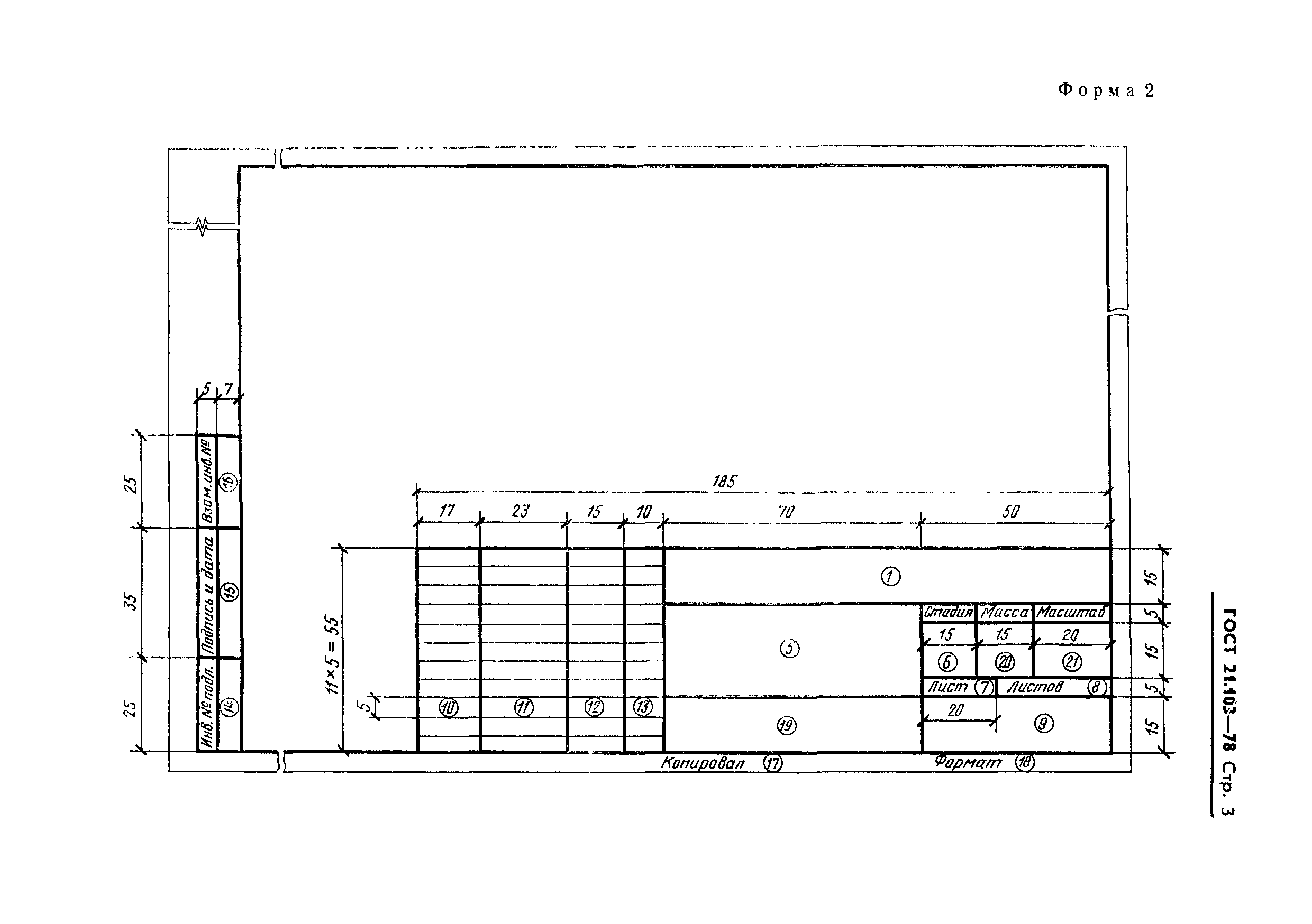
Область применения:Стандарт устанавливает формы, размеры и порядок заполнения основных надписей и дополнительных граф к ним, а также размеры рамок на чертежах и в текстовых документах, входящих в состав проектной документации на строительство зданий и сооружений всех отраслей промышленности и народного хозяйства.
Разработан: Государственный комитет СССР по делам строительства
Утверждён:26.07.1978 Госстрой СССР (Государственный комитет Совета Министров СССР по делам строительства) (USSR Gosstroy 142)
Издан: Издательство стандартов (1978 г. )
Расположен в:Техническая документация Электроэнергия ОБЩИЕ ПОЛОЖЕНИЯ. ТЕРМИНОЛОГИЯ. СТАНДАРТИЗАЦИЯ. ДОКУМЕНТАЦИЯ Технические чертежи Строительные чертежи Экология ОБЩИЕ ПОЛОЖЕНИЯ. ТЕРМИНОЛОГИЯ. СТАНДАРТИЗАЦИЯ. ДОКУМЕНТАЦИЯ Технические чертежи Строительные чертежи Строительство Нормативные документы Документы Системы нормативных документов в строительстве Организационно-методические нормативные документы к.11 Инженерные изыскания для строительства и проектирование
Список изменений:
Заменяет собой:
Чем заменён:
ГОСТ 21.103-78ГОСТ 21.103-78ГОСТ 21.103-78ГОСТ 21.103-78ГОСТ 21.103-78ГОСТ 21.103-78ГОСТ 21.103-78ГОСТ 21.103-78ГОСТ 21.103-78ГОСТ 21.103-78ГОСТ 21.103-78ГОСТ 21.103-78ГОСТ 21.103-78

Текстовое изменение № 1 от 01.01.1982

№ 1

© 2013 Ёшкин Кот :-) Карта сайта