Скачать Типовые материалы для проектирования 407-03-439.87 Альбом VII. Часть 1. Конструкции и узлы. Конструкции металлическиеДата актуализации: 10.08.2017 Типовые материалы для проектирования 407-03-439.87
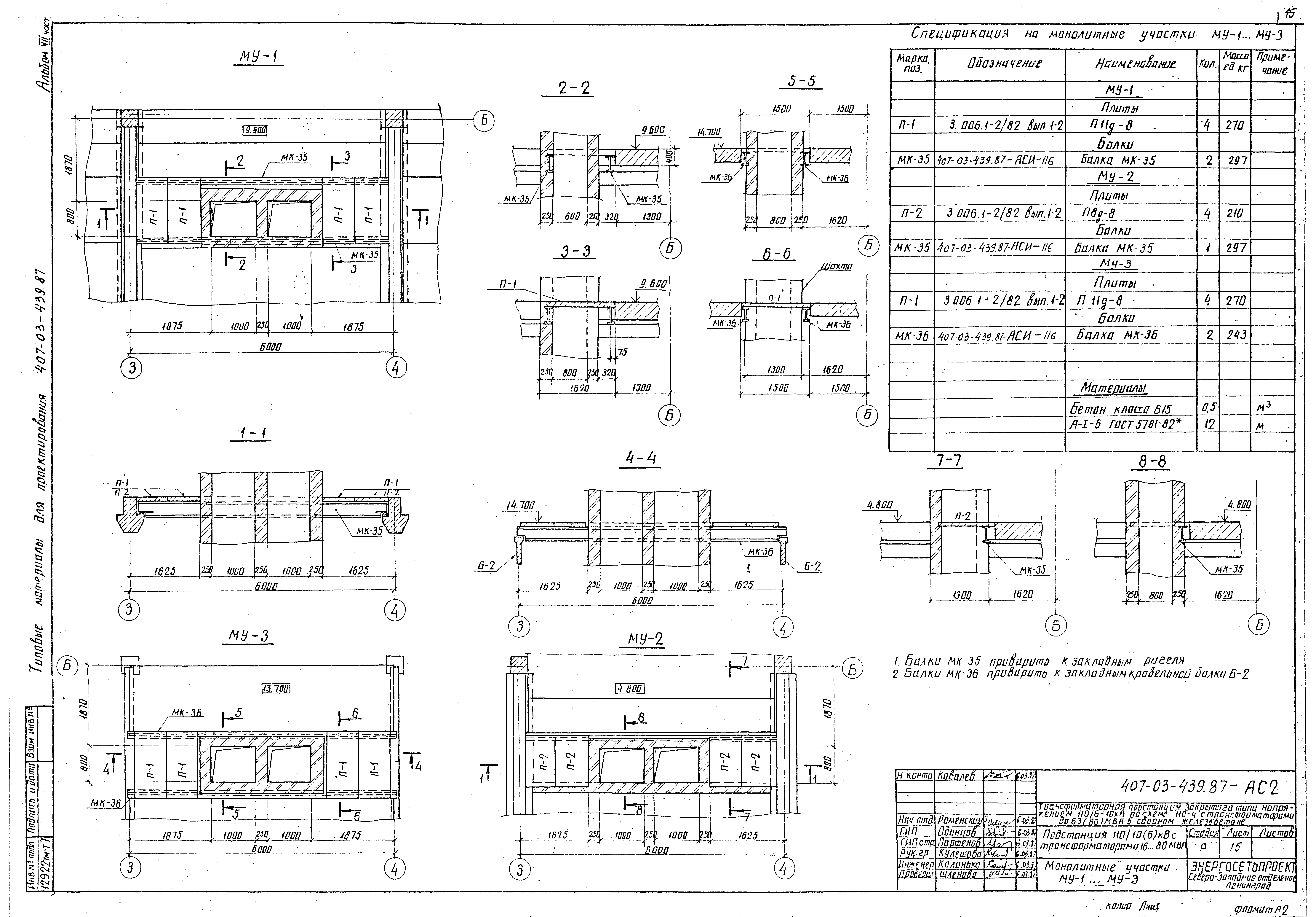
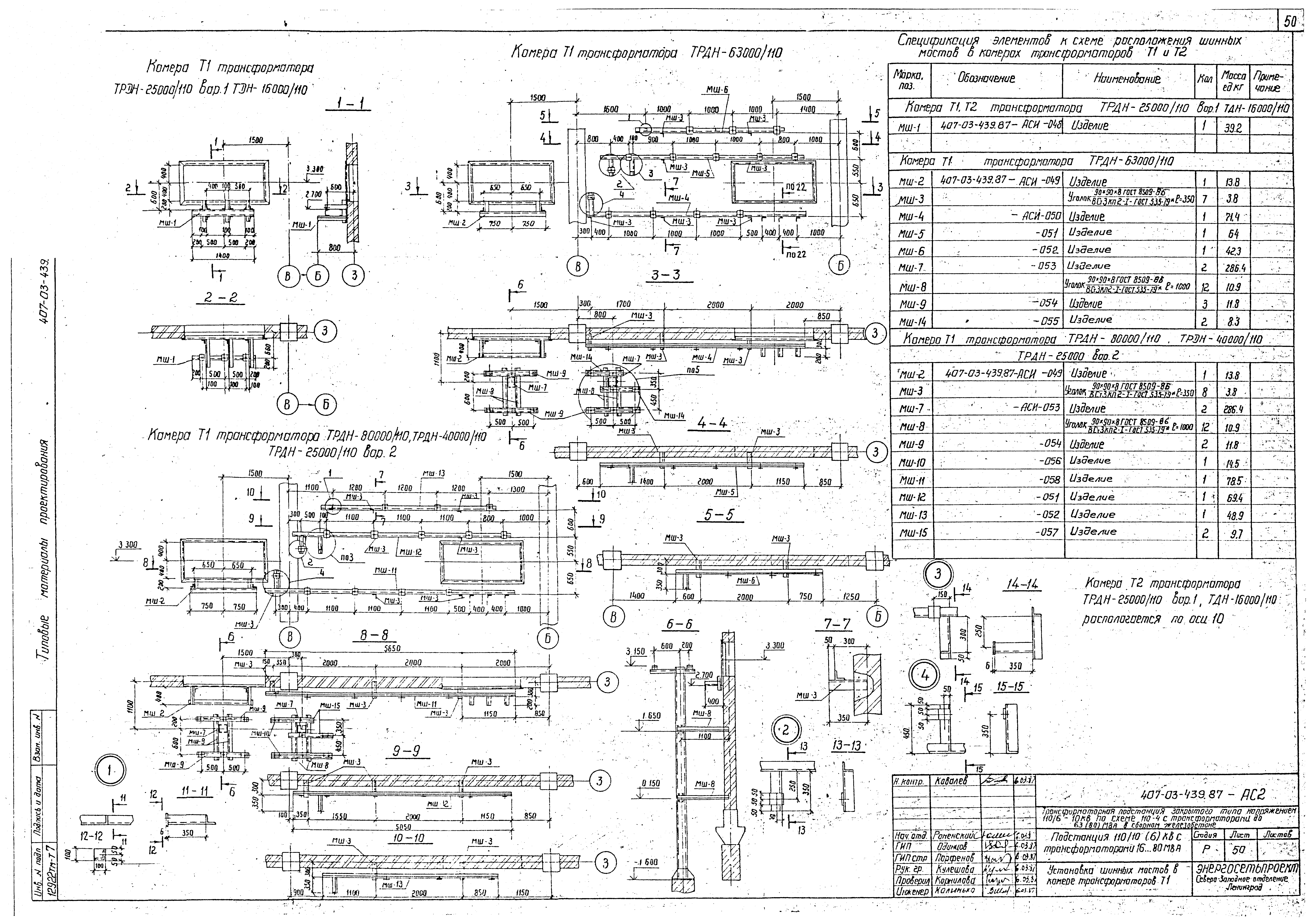
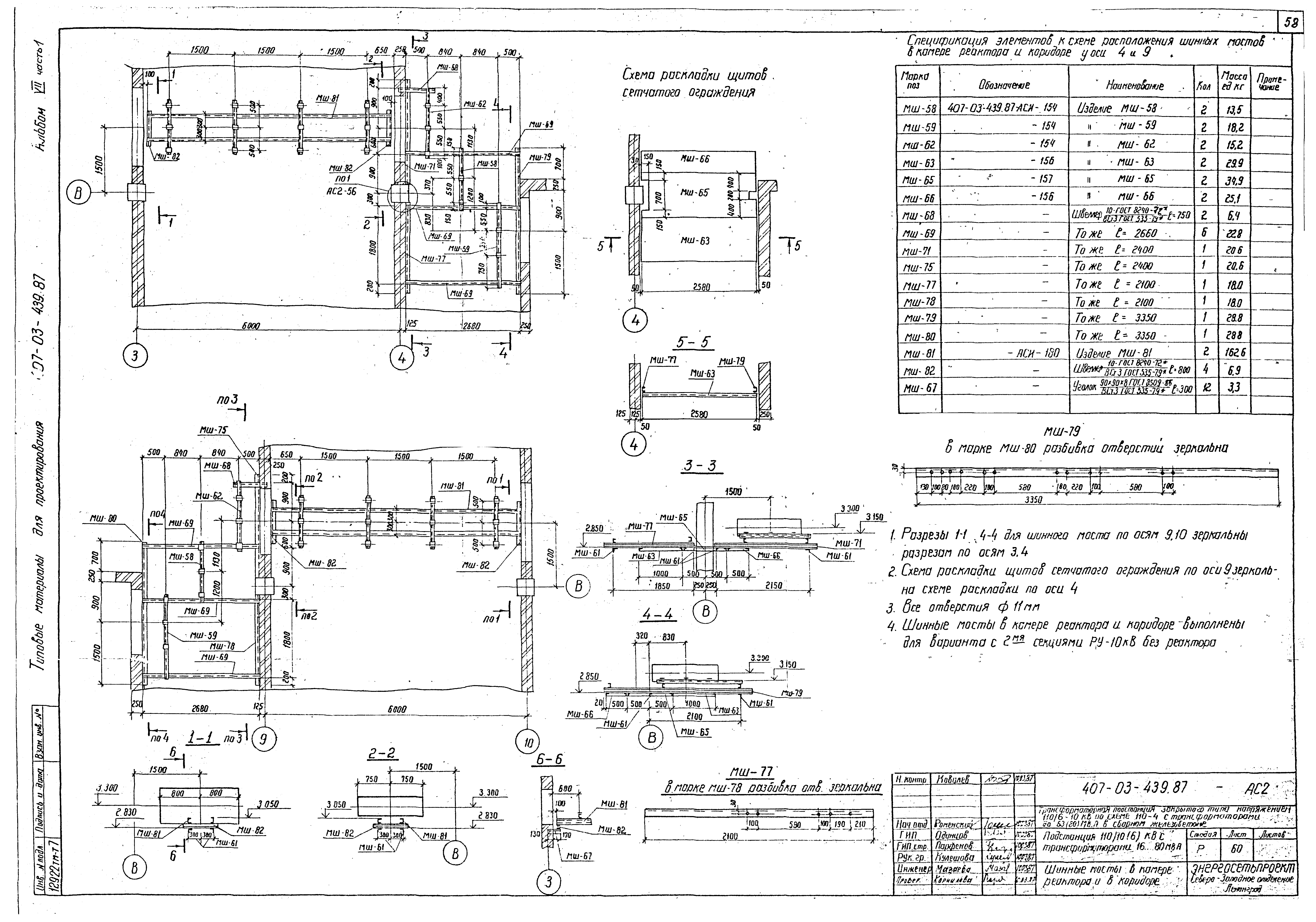
Альбом VII. Часть 1. Конструкции и узлы. Конструкции металлическиеОбозначение: | Типовые материалы для проектирования 407-03-439.87 | Обозначение англ: | 407-03-439.87 | Статус: | cправочные материалы, мп, тпр | Название рус.: | Альбом VII. Часть 1. Конструкции и узлы. Конструкции металлические | Дата добавления в базу: | 01.09.2013 | Дата актуализации: | 05.05.2017 | Дата введения: | 16.03.1987 | Оглавление: | Общие данные Архитектурные детали 1…4 Лестничная клетка. Разрез, сечения Фрагменты 1…7 Схемы заполнения оконных проемов Фрагменты 8, 9 Фрагмент 10 Крыльцо входа Схема элементов козырька входа Схема расположения панелей монтажного проема Схема расположения стеновых панелей. Узлы 1…10 Схема расположения стеновых панелей. Узлы 11…19 Схема расположения стеновых панелей. Узлы 20…24 Монолитные участки МУ-1…МУ-3 Монолитные участки МУ-4, МУ-8 Монолитные участки МУ-5, МУ-6, МУ-7, МУ-9 Монолитные участки МУ-10, МУ-11 Монолитные участки МУ-12, МУ-13 Камера трансформатора. Схема расположения фундамента под трансформатор Камера трансформатора. План маслоприемника. Схема расположения решеток на отм. -1.980 Камера трансформатора. Схема расположения стальных конструкций и анкеров Помещение релейных панелей. Схема расположения металлоконструкций Камеры РЗДСОМ и ТМ. Схема расположения металлоконструкций Камеры реакторов. Схема расположения фундаментов и ограждения Камеры реакторов. Схемы расположения каналов и асбестоцементных досок Камера ТСН. Схема расположения металлоконструкций План ЗРУ 10 (6) кВ со шкафами серии КМ-1Ф (КМ-1) по схеме 10 (6)-1 на ток до 1600 А План ЗРУ 10 (6) кВ со шкафами серии КМ-1Ф (КМ-1) по схеме 10 (6)-2 на ток до 1600 А План ЗРУ 10 (6) кВ со шкафами серии КМ-1Ф (КМ-1) по схеме 10 (6)-3 на ток до 1600 А План ЗРУ 10 (6) кВ со шкафами серии КМ-1Ф (КМ-1) по схеме 10 (6)-1 на ток до 3150 А План ЗРУ 10 (6) кВ со шкафами серии КМ-1Ф (КМ-1) по схеме 10 (6)-2 на ток до 3150 А План ЗРУ 10 (6) кВ со шкафами серии К-104 по схеме 10 (6)-1 на ток до 1600 А План ЗРУ 10 (6) кВ со шкафами серии К-104 по схеме 10 (6)-2 на ток до 1600 А План ЗРУ 10 (6) кВ со шкафами серии К-104 по схеме 10 (6)-3 на ток до 1600 А План ЗРУ 10 (6) кВ со шкафами серии К-104 по схеме 10 (6)-1 на ток до 2600 А План ЗРУ 10 (6) кВ со шкафами серии К-104 по схеме 10 (6)-2 на ток до 2600 А План ЗРУ 10 (6) кВ со шкафами серии К-104 по схеме 10 (6)-3 на ток до 2600 А План кабельного помещения и камеры переключения задвижек, вариант с воздушными вводами План кабельного помещения и камеры переключения задвижек, вариант с воздушными вводами. Сечения. Спецификация Схема расположения стальных элементов в кабельном помещении и камере переключения задвижек Схемы расположения металлоконструкций для установки глушителей на отм. 0.000 Схемы расположения металлоконструкций для установки глушителей на отм. 9.680 Схемы расположения металлоконструкций для установки глушителей на отм. 9.680. Узлы А…Г. Спецификация Схема расположения жалюзийных решеток в наружных стенах Схема расположения площадок у оси Г Лестницы пожарные ЛП-1, ЛП-2 Схема расположения монорельсов и кранбалок. План. Разрезы Схема расположения монорельсов и кранбалок. Узлы. Спецификация Установка шинных мостов в камере трансформаторов Т1 Установка шинных мостов в камере трансформаторов Т2 Установка шинных мостов в помещении ЗРУ 6 - 10 кВ. План. Разрезы Установка шинных мостов в помещении ЗРУ 6 - 10 кВ. Узлы 4…8 Фундаменты под реакторы ФР-1…ФР-6 Установка шинных мостов в коридорах Фундамент под трансформатор Фм-1. Геометрические размеры, армирование. Сечения 1-1…5-5 Фундамент под трансформатор Фм-1. Сечения 6-6, 7-7. Ведомость расхода стали Установка шинных мостов в коридорах. Сечения 1-1…5-5 Шинные мосты в камере реактора и в коридоре Шинные мосты в камере реактора и в коридоре. Разрезы Установка шинных мостов в коридорах Помещение релейных панелей. Схема раскладки асбестоцементных досок. Сечения Установочный чертеж дверей ПД-3А, ПД-6А Ограждение и лестница на отм. 4.570 Установочный чертеж дверей МТ-2, МТ-3 | Разработан: | Северо-западное отделение института Энергосетьпроект
| Утверждён: | 16.03.1987 Минэнерго СССР (USSR Minenergo 16)
| Расположен в: |
|
                                                               
|