Скачать Типовые материалы для проектирования 407-03-439.87 Альбом III. Часть 1. Электротехнические решения. Конструктивно-монтажные чертежиДата актуализации: 10.08.2017 Типовые материалы для проектирования 407-03-439.87
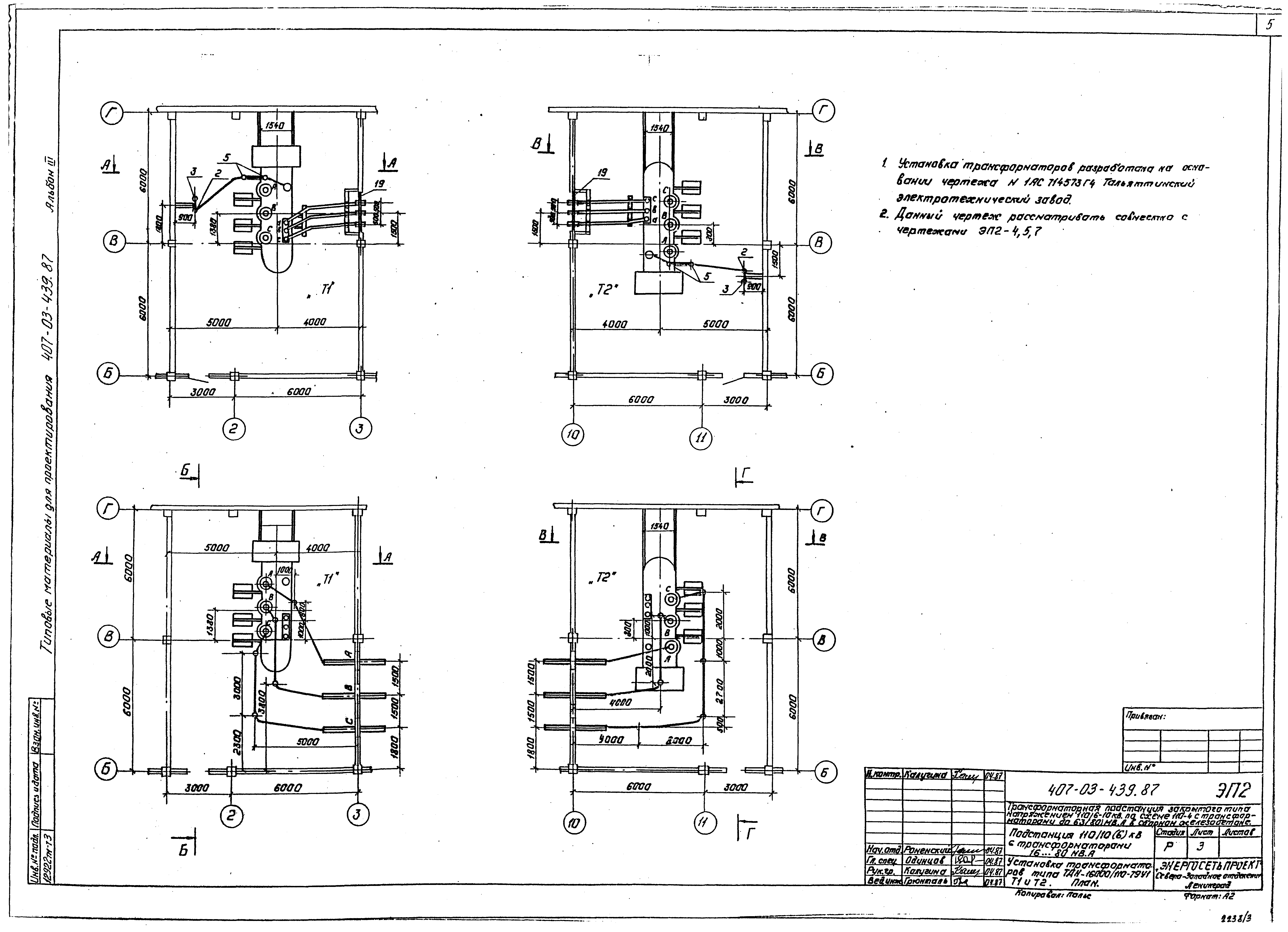
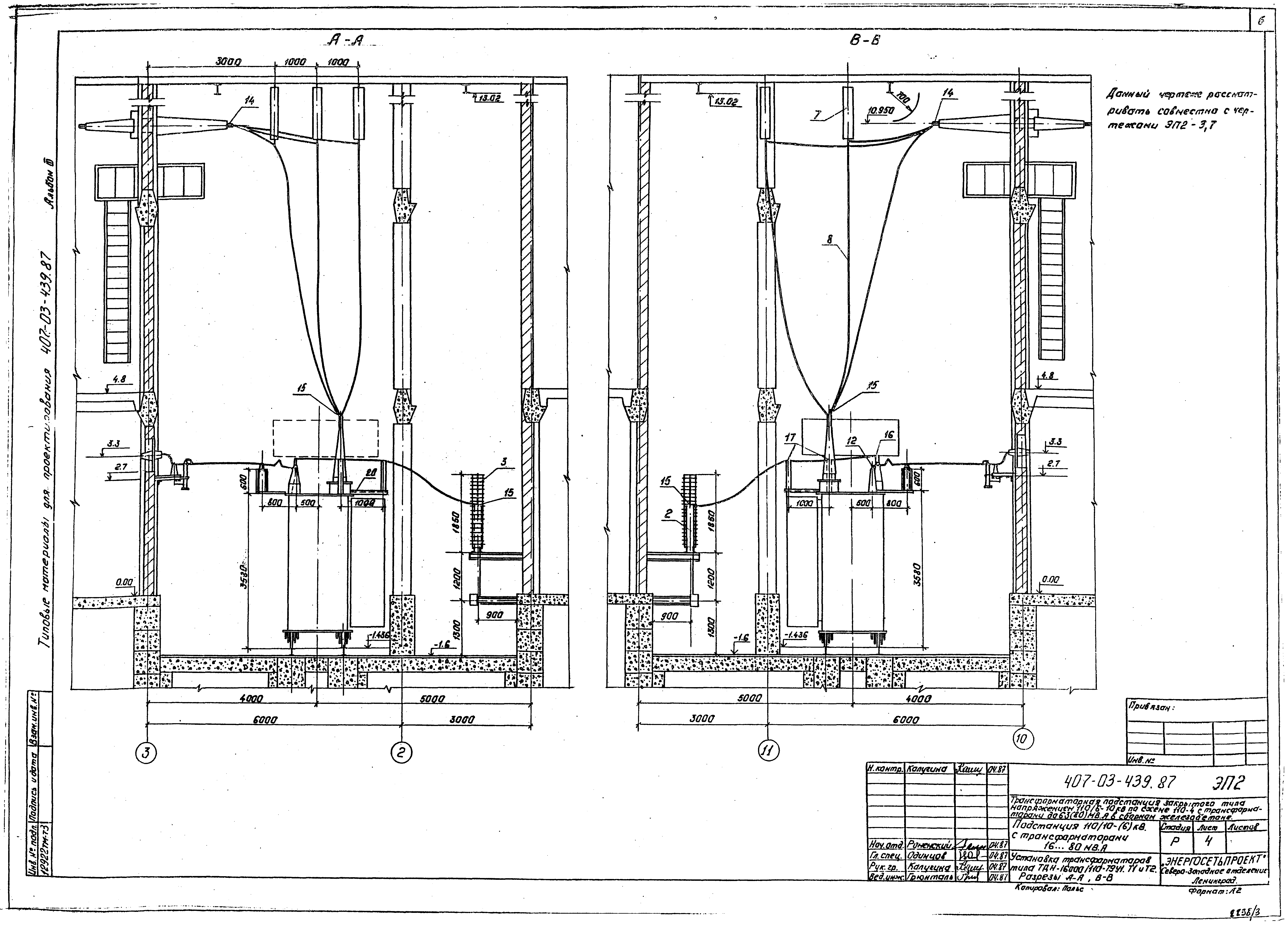
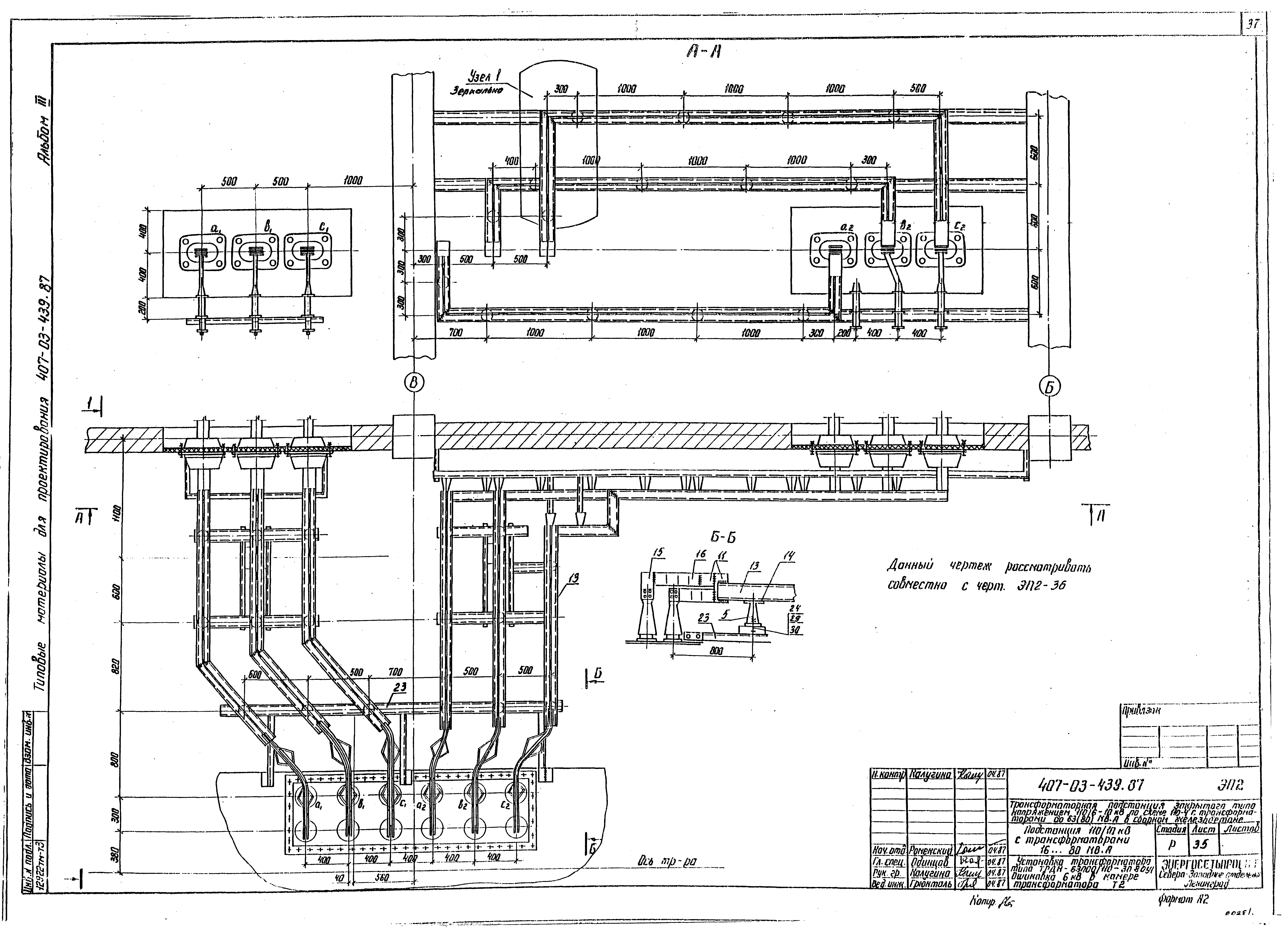
Альбом III. Часть 1. Электротехнические решения. Конструктивно-монтажные чертежиОбозначение: | Типовые материалы для проектирования 407-03-439.87 | Обозначение англ: | 407-03-439.87 | Статус: | cправочные материалы, мп, тпр | Название рус.: | Альбом III. Часть 1. Электротехнические решения. Конструктивно-монтажные чертежи | Дата добавления в базу: | 01.09.2013 | Дата актуализации: | 05.05.2017 | Дата введения: | 16.03.1987 | Оглавление: | Общие данные Установка трансформаторов типа ТДН-16000/110-79У1 Т1 и Т2. План Установка трансформаторов типа ТДН-16000/110-79У1 Т1 и Т2. Разрезы А-А, В-В Установка трансформаторов типа ТДН-16000/110-79У1 Т1 и Т2. Разрезы Б-Б, Г-Г Установка трансформаторов типа ТДН-16000/110-79У1. Ошиновка 10 кВ в камере трансформатора Т1, Т2 Установка трансформаторов типа ТДН-16000/110-79У1. Узлы и спецификация Шинные мосты в камере реактора LP1 и в коридоре. План, разрез, спецификация Шинные мосты в камере реактора LP2 и в коридоре. План, разрез, спецификация Установка трансформаторов типа ТРДН-25000/110-79У1 Т1 и Т2. Вариант 1. План Установка трансформаторов типа ТРДН-25000/110-79У1 Т1 и Т2. Вариант 1. Разрезы А-А, В-В Установка трансформаторов типа ТРДН-25000/110-79У1 Т1 и Т2. Вариант 1. Разрезы Б-Б, Г-Г Установка трансформаторов типа ТРДН-25000/110-79У1. Вариант 1. Ошиновка 10,6 кВ в камере трансформатора Т1, Т2 Установка трансформаторов типа ТРДН-25000/110-79У1. Вариант 1. Узлы и спецификация Установка трансформаторов типа ТРДН-25000/110-79У1 Т1 и Т2. План. Вариант 2 Установка трансформаторов типа ТРДН-25000/110-79У1 Т1 и Т2. Вариант 2. Разрезы А-А, В-В Установка трансформаторов типа ТРДН-25000/110/10(6) кВ, ТРДН-40000/110/10 кВ. Ошиновка в камере трансформатора Т1 Установка трансформаторов типа ТРДН-25000/110/10(6) кВ, ТРДН-40000/110/10 кВ. Ошиновка в камере трансформатора Т2 Установка трансформаторов типа ТРДН-25000/110-79У1. Вариант 2. Узлы. Разрезы и спецификация Шинные мосты в камере реактора LP1, LP3 и в коридоре. План, разрез, спецификация Шинные мосты в камере реактора LP2, LP4 и в коридоре. План, разрез, спецификация Установка трансформаторов типа ТРДН-40000/110-80У1 Т1 и Т2. План Установка трансформаторов типа ТРДН-40000/110-80У1 Т1 и Т2. Разрезы А-А, В-В Установка трансформаторов типа ТРДН-40000/110-80У1 Т1 и Т2. Разрезы Б-Б, Г-Г Установка трансформаторов типа ТРДН-40000/110-6 кВ. Ошиновка в камере трансформатора Т1 Установка трансформаторов типа ТРДН-40000/110-6 кВ. Ошиновка в камере трансформатора Т2 Установка трансформаторов типа ТРДН-40000/110-80У1. Узлы, разрезы, спецификация Шинные мосты 10(6) кВ для 4-х секций ЗРУ 10(6) кВ в коридоре I этажа. План, разрез и спецификация Установка трансформаторов типа ТРДН-63000/110-80У1 Т1 и Т2. План Установка трансформаторов типа ТРДН-63000/110-80У1 Т1 и Т2. Разрезы А-А, В-В Установка трансформаторов типа ТРДН-63000/110-80У1 Т1 и Т2. Разрезы Б-Б, Г-Г Установка трансформаторов типа ТРДН-63000/110-80У1. Ошиновка 10 кВ в камере трансформатора Т1 Установка трансформаторов типа ТРДН-63000/110-80У1. Ошиновка 10 кВ в камере трансформатора Т2 Установка трансформаторов типа ТРДН-63000/110-80У1. Ошиновка 6 кВ в камере трансформатора Т1 Установка трансформаторов типа ТРДН-63000/110-80У1. Ошиновка 6 кВ в камере трансформатора Т2 Установка трансформаторов типа ТРДН-63000/110-80У1. Узлы, разрезы, спецификация Установка трансформаторов типа ТРДН-80000/110-81У1 Т1 и Т2. План Установка трансформаторов типа ТРДН-80000/110-81У1 Т1 и Т2. Разрезы А-А, В-В Установка трансформаторов типа ТРДН-80000/110-81У1 Т1 и Т2. Разрезы Б-Б, Г-Г Установка трансформаторов типа ТРДН-80000/110/10 кВ. Ошиновка в камере трансформатора Т1 Установка трансформаторов типа ТРДН-80000/110/10 кВ. Ошиновка в камере трансформатора Т2 Установка трансформаторов типа ТРДН-80000/110/6 кВ. Ошиновка в камере трансформатора Т1 Установка трансформаторов типа ТРДН-80000/110/6 кВ. Ошиновка в камере трансформатора Т2 Установка трансформаторов типа ТРДН-80000/110-81У1. Узлы, разрезы, спецификации Шинные мосты 10(6) кВ для 8 секций ЗРУ-10(6) кВ в коридоре 1-го этажа. План, разрез, спецификация Установка одиночных бетонных реакторов РБГ-10-2500-0,14 в камере LP1. План. Разрезы Установка одиночных бетонных реакторов РБГ-10-2500-0,14 в камере LP2. План. Разрезы Установка одиночных бетонных реакторов РБГ-10-2500-0,14. Узлы и спецификации Установка одиночных бетонных реакторов РБДГ-10-4000-0,1 в камере LP1. План. Разрезы Установка одиночных бетонных реакторов РБДГ-10-4000-0,1 в камере LP2. План. Разрезы Установка одиночных бетонных реакторов РБДГ-10-4000-0,1. Узлы и спецификации Установка сдвоенных бетонных ректоров РБСДГ-10-2х2500-0,14; РБСДГ-10-2х2500-0,20 в камере LP1. План. Разрез Установка сдвоенных бетонных ректоров РБСДГ-10-2х2500-0,14; РБСДГ-10-2х2500-0,20 в камере LP2. План. Разрезы Установка сдвоенных бетонных ректоров РБСДГ-10-2х2500-0,14; РБСДГ-10-2х2500-0,20. Узлы и спецификация Установка сдвоенных бетонных ректоров РБСГ-10-2х1600-0,14; РБСГ-10-2х1600-0,25 в камере LP1. План. Разрезы Установка сдвоенных бетонных ректоров РБСГ-10-2х1600-0,14; РБСГ-10-2х1600-0,25 в камере LP2. План. Разрезы Установка сдвоенных бетонных ректоров РБСГ-10-2х1600-0,14; РБСГ-10-2х1600-0,25. Узлы и спецификация Установка щита, направляющего поток охлаждающего воздуха. Общий вид. Узел. Спецификация Установка двух трансформаторов напряжения НОМ-10(6). Общий вид. Разрезы. Спецификация Доска проходная внутренней установки с трансформаторами тока типа ТПШЛ-10(6)-500/5А (проем 800х1800) Доска проходная внутренней установки с трансформаторами тока типа ТШЛ-10(6)-3000/5А (проем 800х1800) Доска проходная внутренней установки с изоляторами тока типа ИП-10/1000-3150-3000А (проем 800х1800) Доска проходная внутренней установки с изоляторами тока типа ИП-10-1000-3150-3000А (проем 500х1480) Металлоконструкции. Марки МКЭ-11…15. Общий вид. Детали. Спецификация Металлоконструкции. Марки МКЭ-16…24. Общий вид. Детали Металлоконструкции. Марки МКЭ-16…24. Спецификация Металлоконструкции. Марки МКЭ-25…27. Общий вид. Детали. Спецификация Установка заземлителя однополюсного ЗОН-110М-IIУ1 с приводом ПРН-11У1 | Разработан: | Северо-западное отделение института Энергосетьпроект
| Утверждён: | 16.03.1987 Минэнерго СССР (USSR Minenergo 16)
| Расположен в: |
|
                                                                     
|