Информационная система
«Ёшкин Кот»

Скачать базу одним архивом
Скачать обновления
История создания базы
Карта сайта

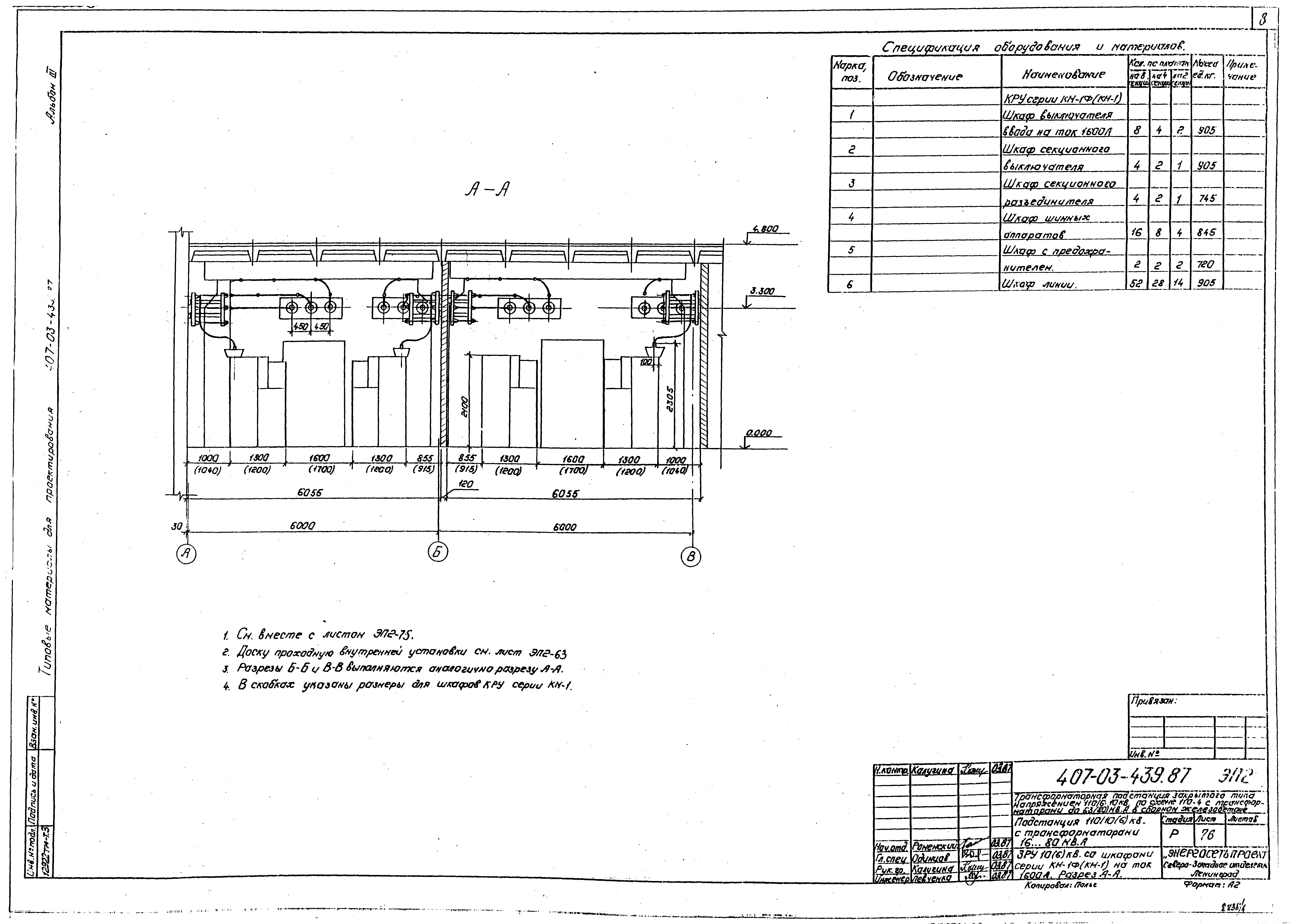
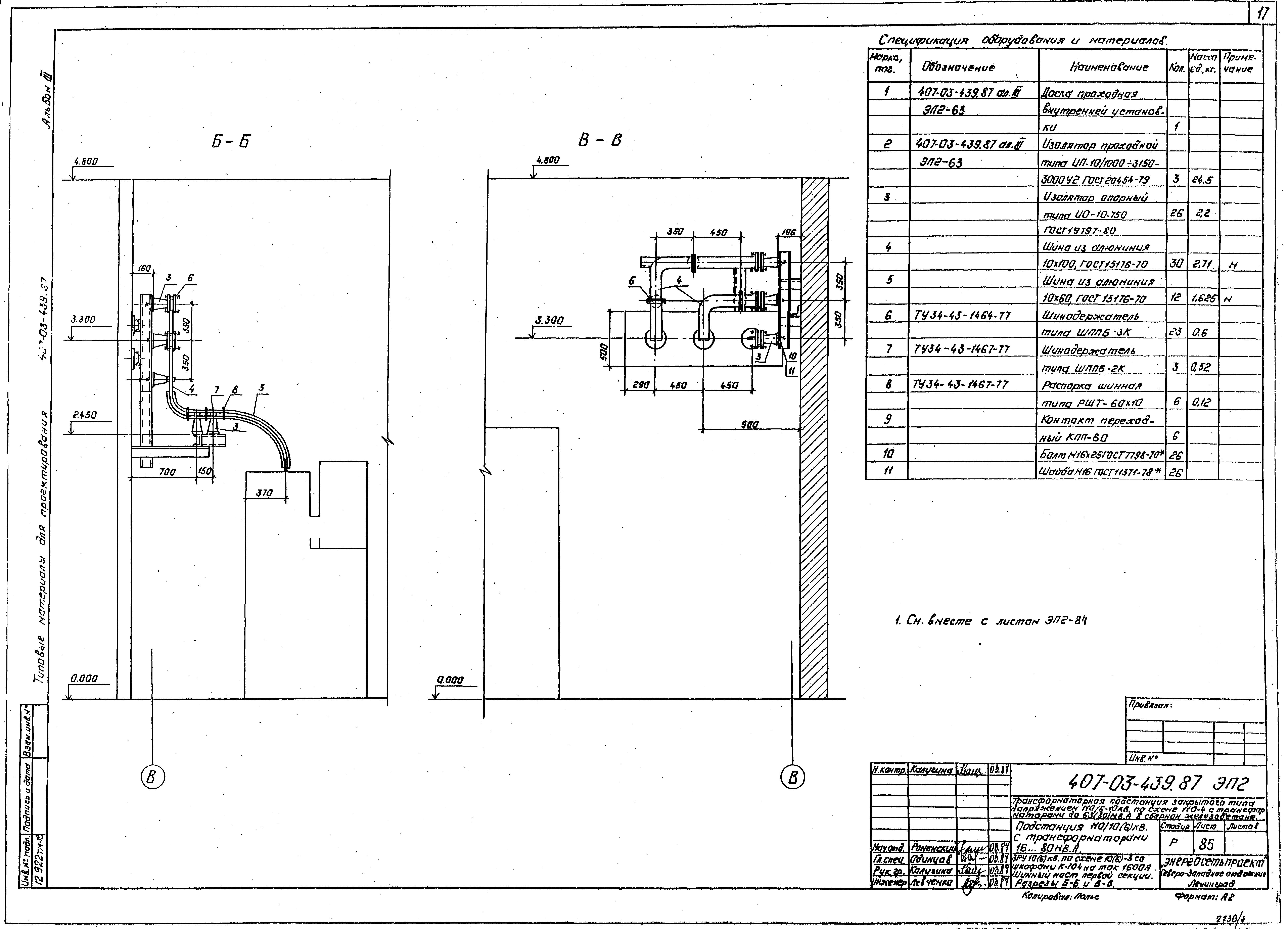
Скачать Типовые материалы для проектирования 407-03-441.87 Альбом III. Часть 2. Электротехнические решения. Конструктивно-монтажные чертежи (из ТП 407-03-439.87)

Дата актуализации: 10.08.2017

Типовые материалы для проектирования 407-03-441.87

Альбом III. Часть 2. Электротехнические решения. Конструктивно-монтажные чертежи (из ТП 407-03-439.87)

Обозначение: Типовые материалы для проектирования 407-03-441.87
Обозначение англ: 407-03-441.87
Статус:cправочные материалы, мп, тпр
Название рус.:Альбом III. Часть 2. Электротехнические решения. Конструктивно-монтажные чертежи (из ТП 407-03-439.87)
Дата добавления в базу:01.09.2013
Дата актуализации:05.05.2017
Дата введения:16.03.1987
Разработан: Северо-западное отделение института Энергосетьпроект
Утверждён:16.03.1987 Минэнерго СССР (USSR Minenergo 16)
Расположен в:Техническая документация Строительство Справочные документы Типовые строительные конструкции, изделия и узлы Общероссийский строительный каталог Промышленные предприятия, здания и сооружения Предприятия, здания и сооружения промышленности и электроэнергетики Электроэнергетика Устройства и подстанции распределительные
Типовые материалы для проектирования 407-03-441.87Типовые материалы для проектирования 407-03-441.87Типовые материалы для проектирования 407-03-441.87Типовые материалы для проектирования 407-03-441.87Типовые материалы для проектирования 407-03-441.87Типовые материалы для проектирования 407-03-441.87Типовые материалы для проектирования 407-03-441.87Типовые материалы для проектирования 407-03-441.87Типовые материалы для проектирования 407-03-441.87Типовые материалы для проектирования 407-03-441.87Типовые материалы для проектирования 407-03-441.87Типовые материалы для проектирования 407-03-441.87Типовые материалы для проектирования 407-03-441.87Типовые материалы для проектирования 407-03-441.87Типовые материалы для проектирования 407-03-441.87Типовые материалы для проектирования 407-03-441.87Типовые материалы для проектирования 407-03-441.87Типовые материалы для проектирования 407-03-441.87Типовые материалы для проектирования 407-03-441.87Типовые материалы для проектирования 407-03-441.87Типовые материалы для проектирования 407-03-441.87Типовые материалы для проектирования 407-03-441.87Типовые материалы для проектирования 407-03-441.87Типовые материалы для проектирования 407-03-441.87Типовые материалы для проектирования 407-03-441.87Типовые материалы для проектирования 407-03-441.87Типовые материалы для проектирования 407-03-441.87Типовые материалы для проектирования 407-03-441.87Типовые материалы для проектирования 407-03-441.87Типовые материалы для проектирования 407-03-441.87Типовые материалы для проектирования 407-03-441.87Типовые материалы для проектирования 407-03-441.87Типовые материалы для проектирования 407-03-441.87Типовые материалы для проектирования 407-03-441.87Типовые материалы для проектирования 407-03-441.87Типовые материалы для проектирования 407-03-441.87Типовые материалы для проектирования 407-03-441.87Типовые материалы для проектирования 407-03-441.87Типовые материалы для проектирования 407-03-441.87Типовые материалы для проектирования 407-03-441.87Типовые материалы для проектирования 407-03-441.87Типовые материалы для проектирования 407-03-441.87Типовые материалы для проектирования 407-03-441.87Типовые материалы для проектирования 407-03-441.87Типовые материалы для проектирования 407-03-441.87

© 2013 Ёшкин Кот :-) Карта сайта