Информационная система
«Ёшкин Кот»

Скачать базу одним архивом
Скачать обновления
История создания базы
Карта сайта

Скачать Типовой проект 407-3-669.04 Альбом 5. Электросиловое оборудование. Электромонтажные конструкции

Дата актуализации: 10.08.2017

Типовой проект 407-3-669.04

Альбом 5. Электросиловое оборудование. Электромонтажные конструкции

Обозначение: Типовой проект 407-3-669.04
Обозначение англ: 407-3-669.04
Статус:не определен законодательством
Название рус.:Альбом 5. Электросиловое оборудование. Электромонтажные конструкции
Дата добавления в базу:01.09.2013
Дата актуализации:05.05.2017
Дата введения:17.03.2005
Оглавление:ТП 407-3-669.04-ЭМ.СА Содержание альбома - СА
ТП 407-3-669.04-ЭМ Электросиловое оборудование - ЭМ
ТП 407-3-669.04-ЭМ Общие данные
ТП 407-3-669.04-ЭМ План-схема устройства трансформаторных вводов
ТП 407-3-669.04-ЭМ Оборудование камер трансформаторов и трансформаторных вводов
ТП 407-3-669.04-ЭМ Узлы силовых трансформаторов (начало)
ТП 407-3-669.04-ЭМ Узлы силовых трансформаторов (окончание)
ТП 407-3-669.04-ЭМ Схема собственных нужд (начало). Постоянный ток
ТП 407-3-669.04-ЭМ Схема собственных нужд (окончание). Постоянный ток
ТП 407-3-669.04-ЭМ Схема собственных нужд (начало). Переменный ток
ТП 407-3-669.04-ЭМ Схема собственных нужд (окончание). Переменный ток
ТП 407-3-669.04-ЭМ План осветительной сети (начало)
ТП 407-3-669.04-ЭМ План осветительной сети (окончание)
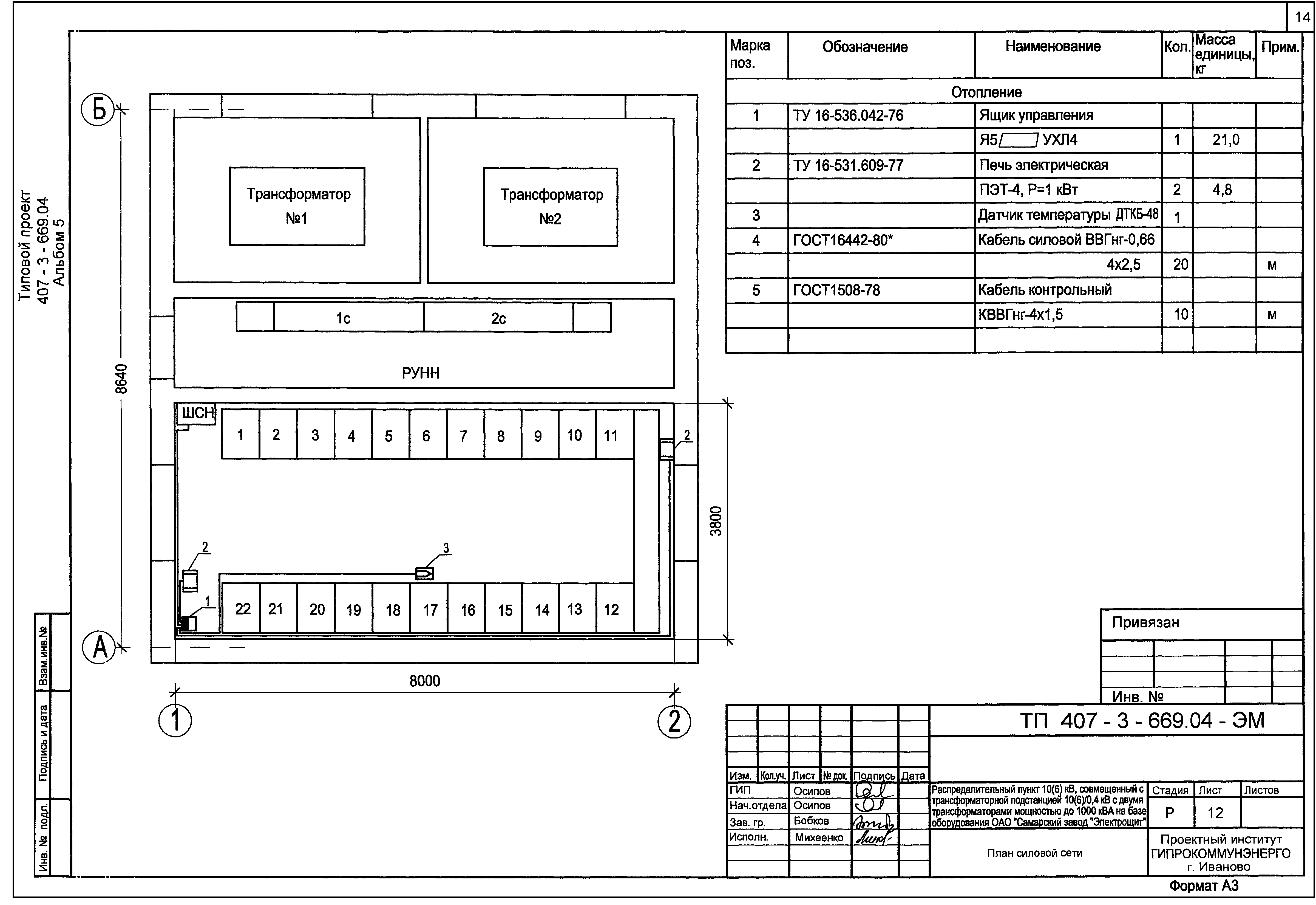
ТП 407-3-669.04-ЭМ План силовой сети
ТП 407-3-669.04-ЭМ Автоматика обогрева. Схема электрическая принципиальная
ТП 407-3-669.04-ЭМ Заземление и молниезащита
ТП 407-3-669.04-ЭМ Расстановка кабельных конструкций
ТП 407-3-669.04-ЭМК Электромонтажные конструкции - ЭМК
ТП 407-3-669.04-ЭМК Детали оборудования трансформаторных вводов
ТП 407-3-669.04-ЭМК Барьер в камере трансформатора
ТП 407-3-669.04-ЭМК Подставка изолирующая
ТП 407-3-669.04-ЭМК Ведомость изделий МЭЗ
Разработан: ОГУП ПИ Гипрокоммунэнерго
Утверждён:17.03.2005 ОАО Самарский завод Электрощит (88-Пр)
Расположен в:Техническая документация Строительство Справочные документы Типовые строительные конструкции, изделия и узлы Общероссийский строительный каталог Промышленные предприятия, здания и сооружения Предприятия, здания и сооружения промышленности и электроэнергетики Электроэнергетика Устройства и подстанции распределительные
Типовой проект 407-3-669.04Типовой проект 407-3-669.04Типовой проект 407-3-669.04Типовой проект 407-3-669.04Типовой проект 407-3-669.04Типовой проект 407-3-669.04Типовой проект 407-3-669.04Типовой проект 407-3-669.04Типовой проект 407-3-669.04Типовой проект 407-3-669.04Типовой проект 407-3-669.04Типовой проект 407-3-669.04Типовой проект 407-3-669.04Типовой проект 407-3-669.04Типовой проект 407-3-669.04Типовой проект 407-3-669.04Типовой проект 407-3-669.04Типовой проект 407-3-669.04Типовой проект 407-3-669.04Типовой проект 407-3-669.04Типовой проект 407-3-669.04Типовой проект 407-3-669.04

© 2013 Ёшкин Кот :-) Карта сайта