Информационная система
«Ёшкин Кот»

Скачать базу одним архивом
Скачать обновления
История создания базы
Карта сайта

Скачать Серия 1.426-1 Выпуск 2. Детали крепления рельсов к подкрановым балкам. Стыки рельсов. Чертежи КМД

Дата актуализации: 10.08.2017

Серия 1.426-1

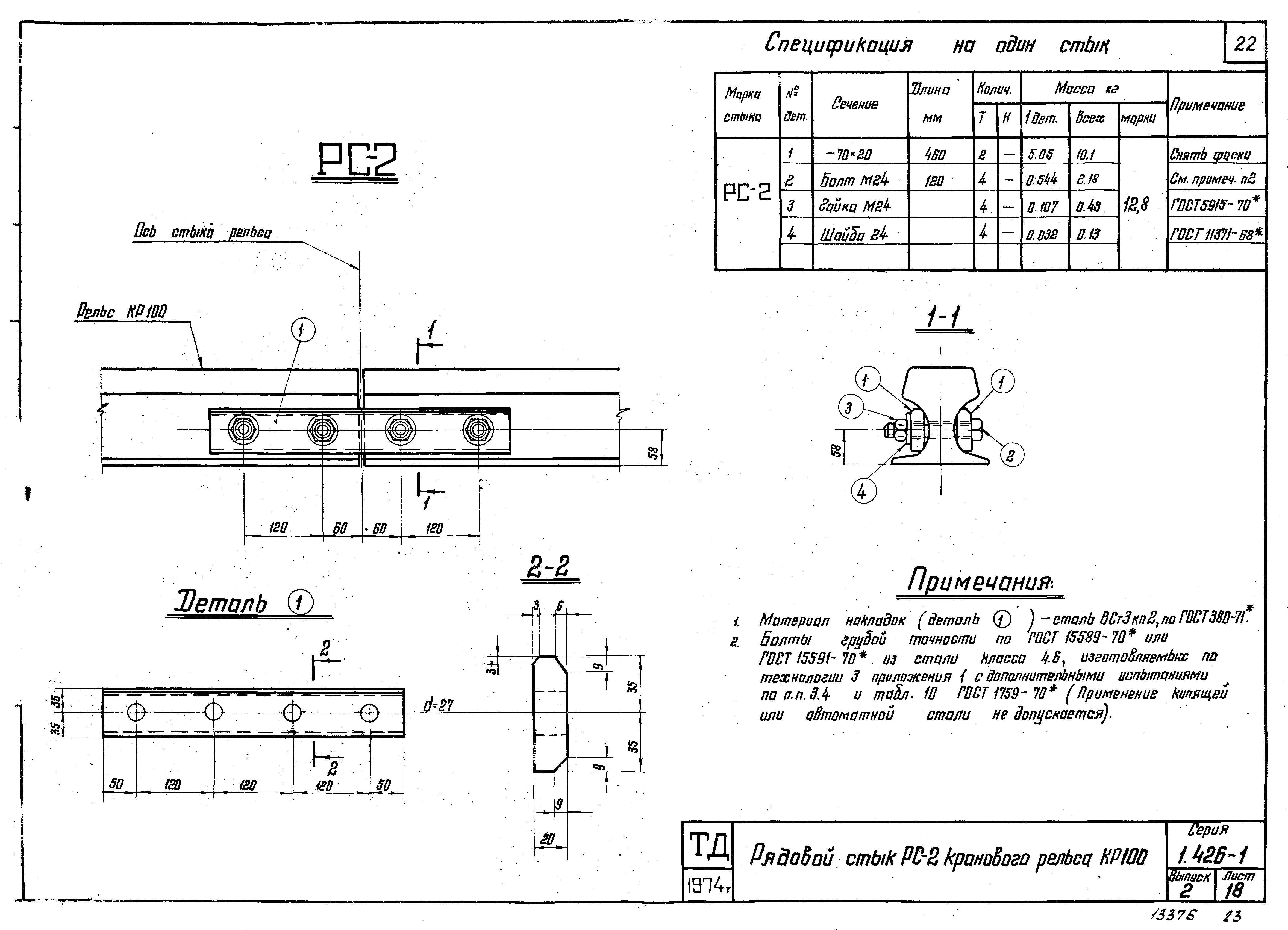
Выпуск 2. Детали крепления рельсов к подкрановым балкам. Стыки рельсов. Чертежи КМД

Обозначение: Серия 1.426-1
Обозначение англ: Series 1.426-1
Статус:не действует
Название рус.:Выпуск 2. Детали крепления рельсов к подкрановым балкам. Стыки рельсов. Чертежи КМД
Дата добавления в базу:01.09.2013
Дата актуализации:05.05.2017
Дата введения:01.01.1976
Дата окончания срока действия:01.08.1984
Разработан: ЦНИИпроектстальконструкция
Утверждён:25.09.1975 Госстрой СССР (Государственный комитет Совета Министров СССР по делам строительства) (USSR Gosstroy 157)
Издан: ЦИТП Госстроя СССР (CITP, Gosstroy (USSR) 1975 г. )
Расположен в:Техническая документация Строительство Справочные документы Типовые строительные конструкции, изделия и узлы Общероссийский строительный каталог Строительные конструкции, изделия и узлы зданий и сооружений для всех видов строительства Конструкции, изделия и узлы зданий Несущие конструкции одноэтажных зданий Балки подкрановых путей подвесного транспорта
Заменяет собой:
Чем заменён:
Серия 1.426-1Серия 1.426-1Серия 1.426-1Серия 1.426-1Серия 1.426-1Серия 1.426-1Серия 1.426-1Серия 1.426-1Серия 1.426-1Серия 1.426-1Серия 1.426-1Серия 1.426-1Серия 1.426-1Серия 1.426-1Серия 1.426-1Серия 1.426-1Серия 1.426-1Серия 1.426-1Серия 1.426-1Серия 1.426-1Серия 1.426-1Серия 1.426-1Серия 1.426-1Серия 1.426-1Серия 1.426-1Серия 1.426-1Серия 1.426-1Серия 1.426-1Серия 1.426-1Серия 1.426-1Серия 1.426-1Серия 1.426-1Серия 1.426-1Серия 1.426-1Серия 1.426-1Серия 1.426-1Серия 1.426-1Серия 1.426-1Серия 1.426-1

© 2013 Ёшкин Кот :-) Карта сайта