Скачать Серия 4.902-8 Альбом IV. Водосбросной колодец пропускной способностью до 0,8 куб. м/сек. Тип III высотой 6, 8, 10 и 12 м. Тип IV высотой 8, 10, 12, 15, 20 и 25 мДата актуализации: 10.08.2017 Серия 4.902-8
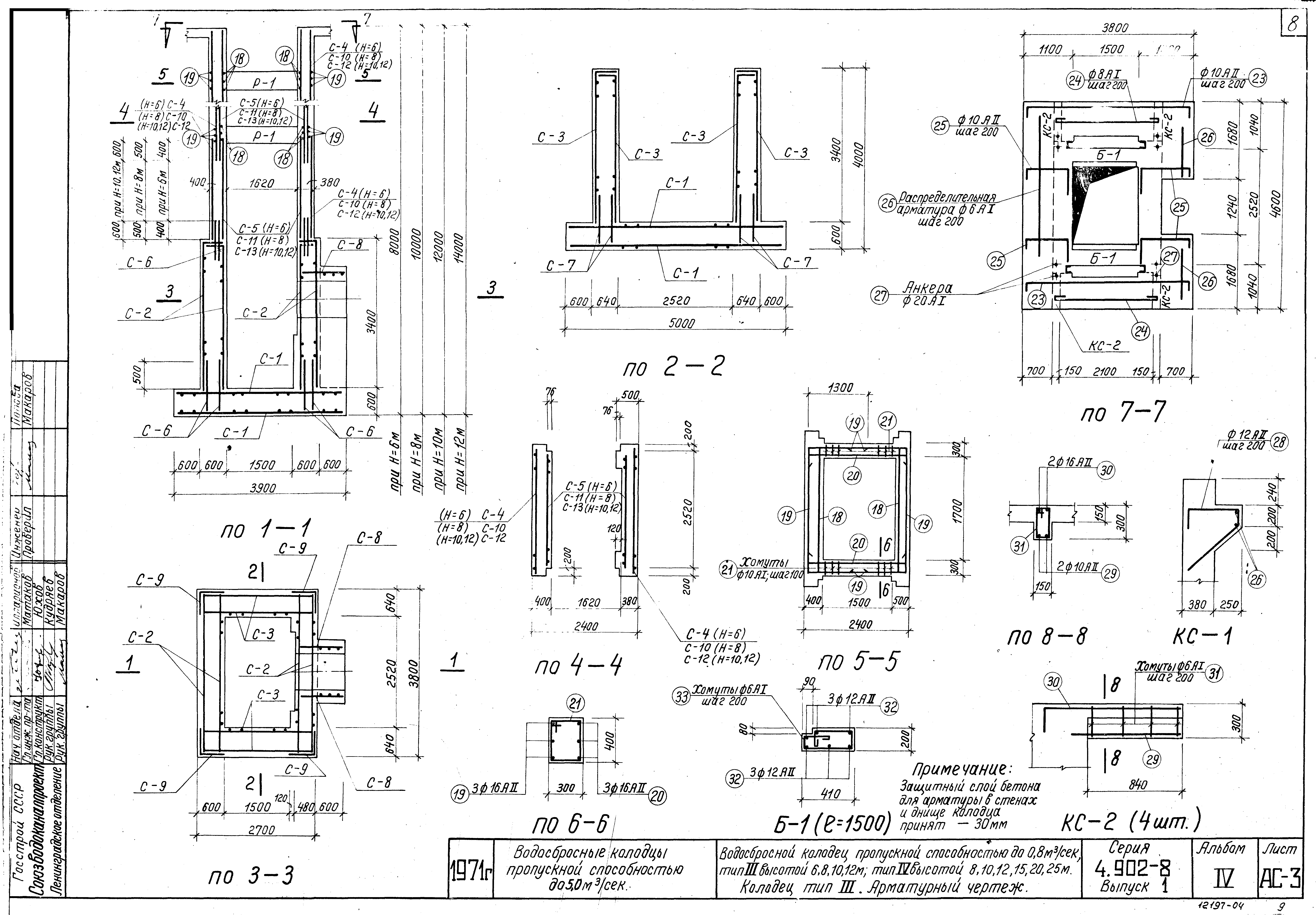
Альбом IV. Водосбросной колодец пропускной способностью до 0,8 куб. м/сек. Тип III высотой 6, 8, 10 и 12 м. Тип IV высотой 8, 10, 12, 15, 20 и 25 мОбозначение: | Серия 4.902-8 | Обозначение англ: | Series 4.902-8 | Статус: | не действует | Название рус.: | Альбом IV. Водосбросной колодец пропускной способностью до 0,8 куб. м/сек. Тип III высотой 6, 8, 10 и 12 м. Тип IV высотой 8, 10, 12, 15, 20 и 25 м | Дата добавления в базу: | 01.09.2013 | Дата актуализации: | 05.05.2017 | Дата введения: | 15.08.1972 | Дата окончания срока действия: | 01.02.1991 | Разработан: | Союзводоканалпроект
| Утверждён: | 28.06.1972 Главпромстройпроект Госстроя СССР (50)
| Расположен в: |
|
                            
|