Скачать Серия 4.902-8 Альбом I. Выпуски на двух магистральных пульповодах диаметром 200 - 800 ммДата актуализации: 10.08.2017 Серия 4.902-8
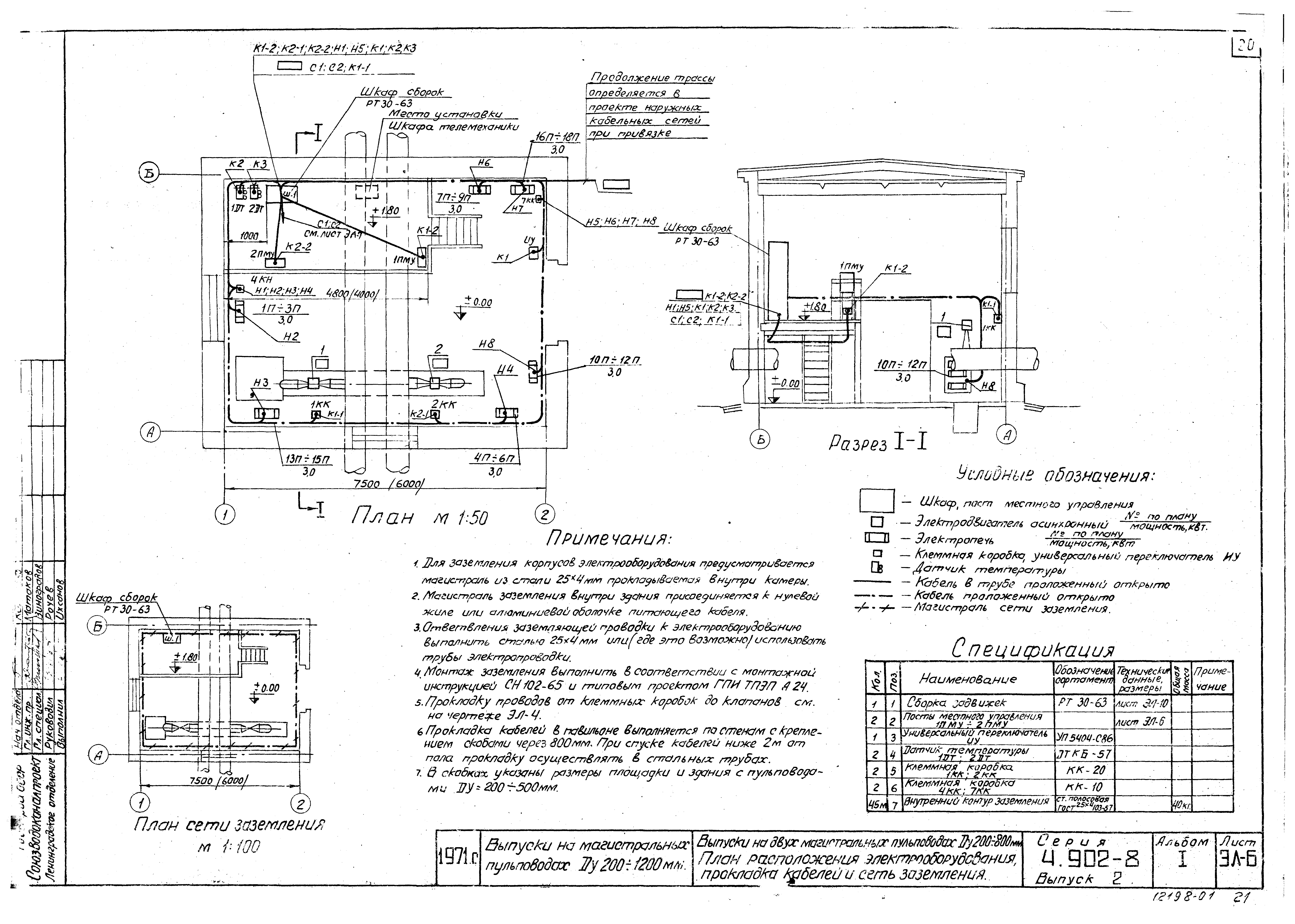
Альбом I. Выпуски на двух магистральных пульповодах диаметром 200 - 800 ммОбозначение: | Серия 4.902-8 | Обозначение англ: | Series 4.902-8 | Статус: | не действует | Название рус.: | Альбом I. Выпуски на двух магистральных пульповодах диаметром 200 - 800 мм | Дата добавления в базу: | 01.09.2013 | Дата актуализации: | 05.05.2017 | Дата введения: | 01.02.1991 | Разработан: | Союзводоканалпроект
| Утверждён: | 28.06.1972 Главпромстройпроект Госстроя СССР (50)
| Расположен в: |
|
                            
|