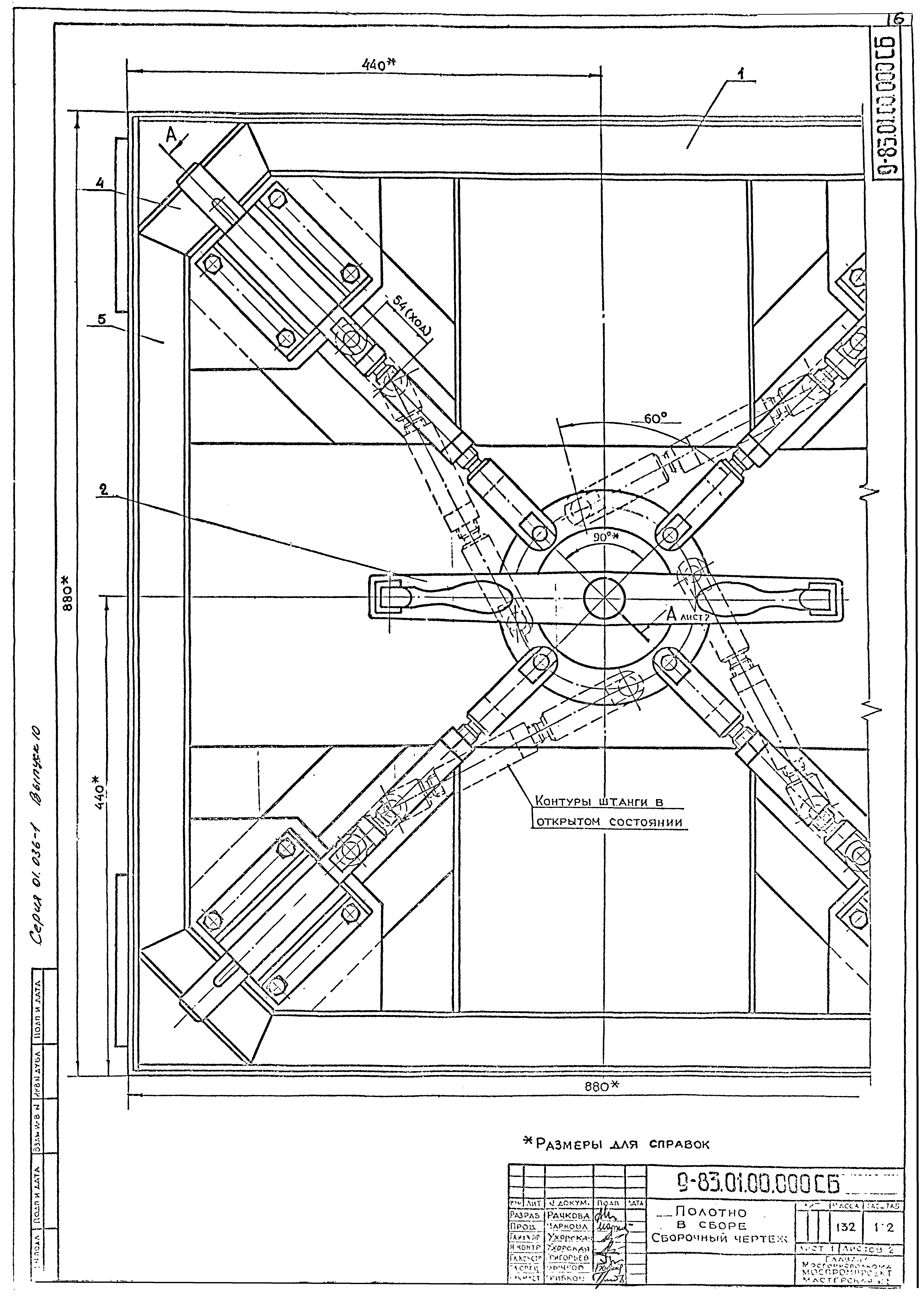
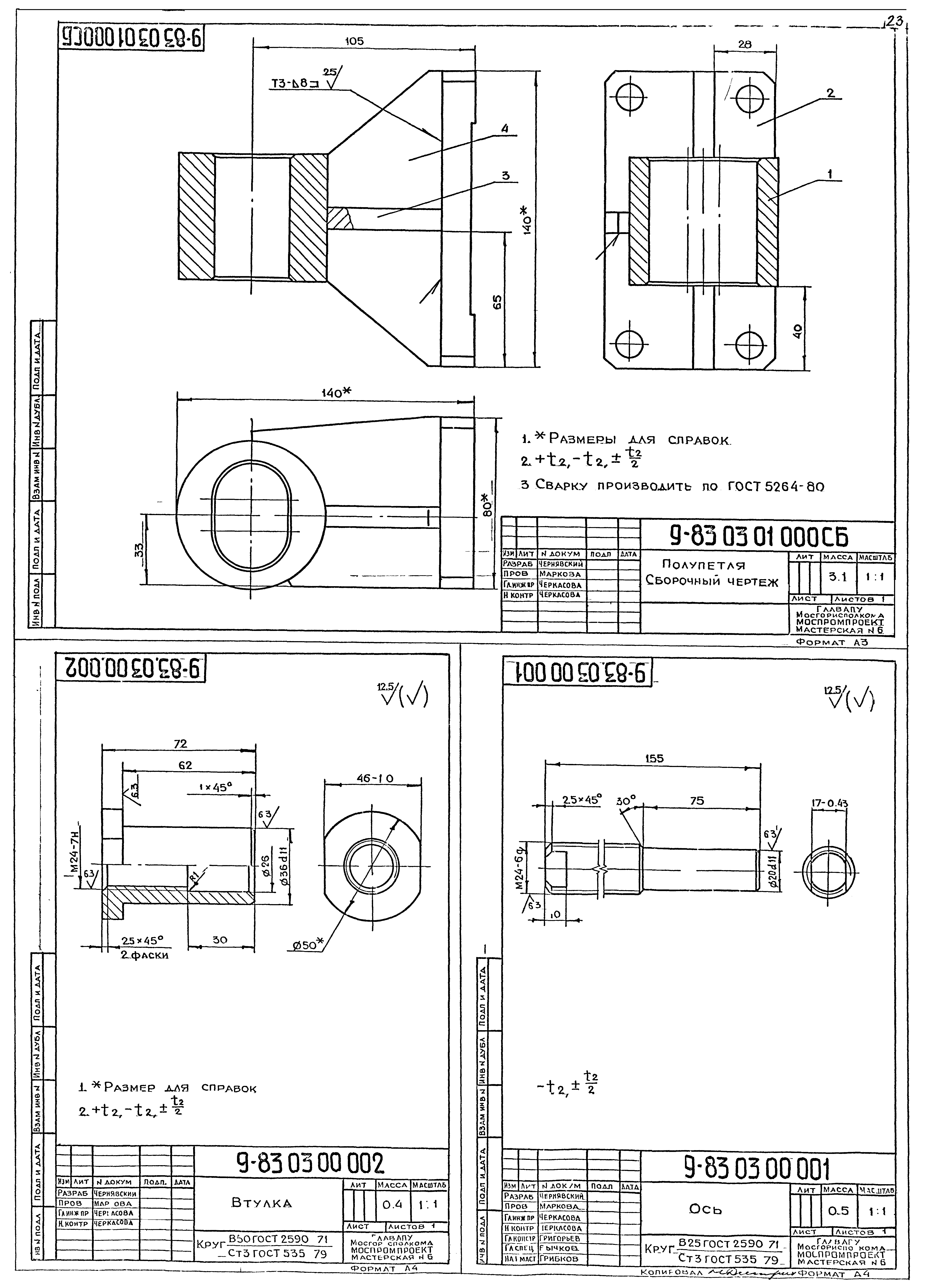
Скачать Серия 01.036-1 Выпуск 10. Ставень защитно-герметический СУ-III-2. Рабочие чертежиДата актуализации: 10.08.2017 Серия 01.036-1
Выпуск 10. Ставень защитно-герметический СУ-III-2. Рабочие чертежиОбозначение: | Серия 01.036-1 | Обозначение англ: | Series 01.036-1 | Статус: | не определен законодательством | Название рус.: | Выпуск 10. Ставень защитно-герметический СУ-III-2. Рабочие чертежи | Дата добавления в базу: | 01.09.2013 | Дата актуализации: | 05.05.2017 | Дата введения: | 19.12.1986 | Разработан: | Моспромпроект
| Утверждён: | 08.07.1982 НГО СССР (235/11/1827)
| Расположен в: |
|
                           
|