Информационная система
«Ёшкин Кот»

Скачать базу одним архивом
Скачать обновления
История создания базы
Карта сайта

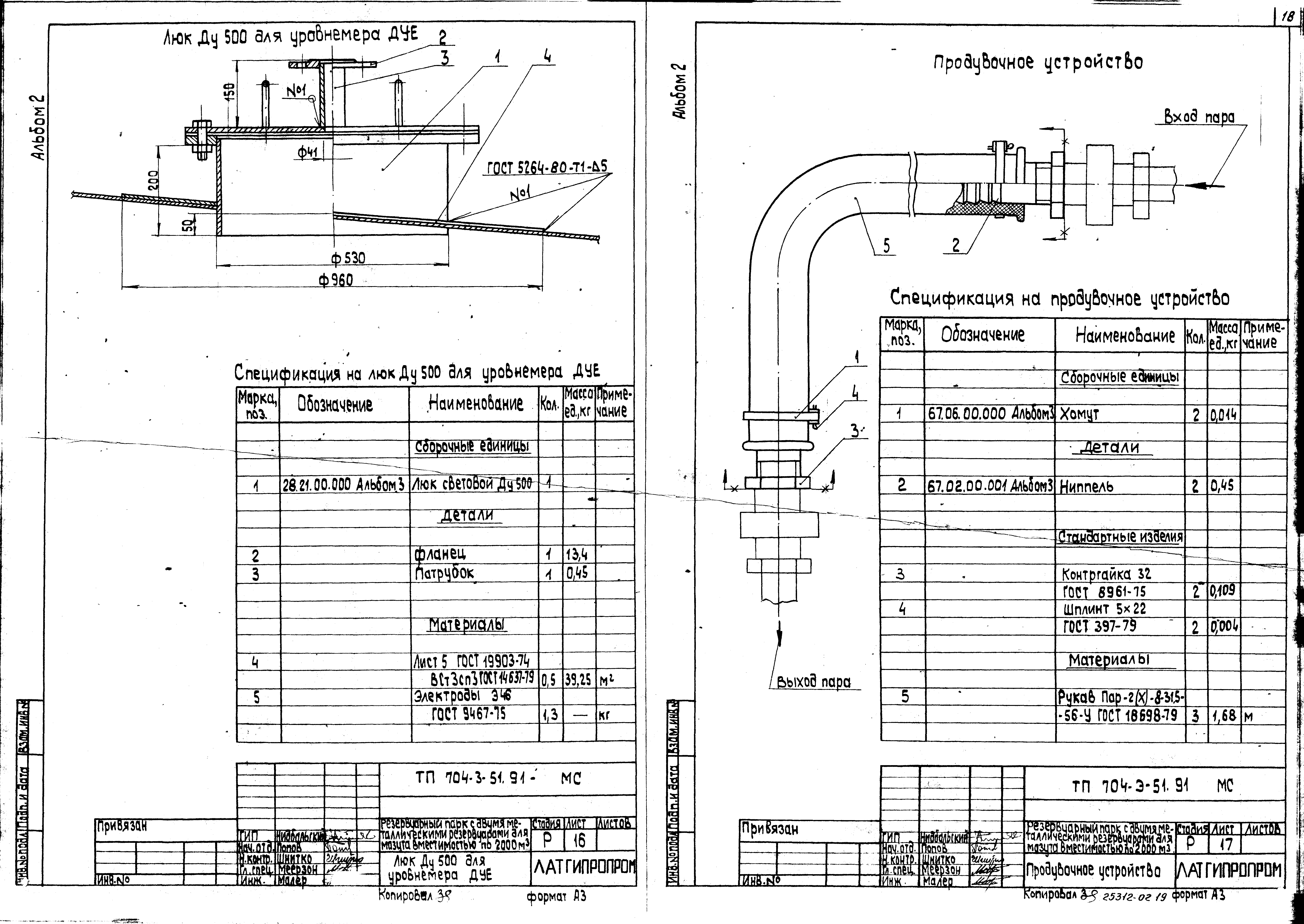
Скачать Типовой проект 704-3-51.91 Альбом 2. Мазутоснабжение. Конструкции строительные. Конструкции железобетонные. Автоматизация. Силовое электрооборудование. Отопление и вентиляция. Наружные сети водопровода и канализации

Дата актуализации: 10.08.2017

Типовой проект 704-3-51.91

Альбом 2. Мазутоснабжение. Конструкции строительные. Конструкции железобетонные. Автоматизация. Силовое электрооборудование. Отопление и вентиляция. Наружные сети водопровода и канализации

Обозначение: Типовой проект 704-3-51.91
Обозначение англ: 704-3-51.91
Статус:не определен законодательством
Название рус.:Альбом 2. Мазутоснабжение. Конструкции строительные. Конструкции железобетонные. Автоматизация. Силовое электрооборудование. Отопление и вентиляция. Наружные сети водопровода и канализации
Дата добавления в базу:01.09.2013
Дата актуализации:05.05.2017
Дата введения:22.01.1992
Разработан: Латгипропром
Утверждён:22.01.1992 ГПКНИИ Сантехниипроект (31)
Расположен в:Техническая документация Строительство Справочные документы Типовые строительные конструкции, изделия и узлы Общероссийский строительный каталог Промышленные предприятия, здания и сооружения Предприятия, здания и сооружения складские Резервуары и склады для нефти и нефтепродуктов Резервуары железобетонные для мазута и нефти
Типовой проект 704-3-51.91Типовой проект 704-3-51.91Типовой проект 704-3-51.91Типовой проект 704-3-51.91Типовой проект 704-3-51.91Типовой проект 704-3-51.91Типовой проект 704-3-51.91Типовой проект 704-3-51.91Типовой проект 704-3-51.91Типовой проект 704-3-51.91Типовой проект 704-3-51.91Типовой проект 704-3-51.91Типовой проект 704-3-51.91Типовой проект 704-3-51.91Типовой проект 704-3-51.91Типовой проект 704-3-51.91Типовой проект 704-3-51.91Типовой проект 704-3-51.91Типовой проект 704-3-51.91Типовой проект 704-3-51.91Типовой проект 704-3-51.91Типовой проект 704-3-51.91Типовой проект 704-3-51.91Типовой проект 704-3-51.91Типовой проект 704-3-51.91Типовой проект 704-3-51.91Типовой проект 704-3-51.91Типовой проект 704-3-51.91Типовой проект 704-3-51.91Типовой проект 704-3-51.91Типовой проект 704-3-51.91Типовой проект 704-3-51.91Типовой проект 704-3-51.91Типовой проект 704-3-51.91

© 2013 Ёшкин Кот :-) Карта сайта