Информационная система
«Ёшкин Кот»

Скачать базу одним архивом
Скачать обновления
История создания базы
Карта сайта

Скачать Типовой проект 0901-9-8.83 Альбом I. Общая пояснительная записка. Технологическая и строительная части

Дата актуализации: 10.08.2017

Типовой проект 0901-9-8.83

Альбом I. Общая пояснительная записка. Технологическая и строительная части

Обозначение: Типовой проект 0901-9-8.83
Обозначение англ: 0901-9-8.83
Статус:не действует
Название рус.:Альбом I. Общая пояснительная записка. Технологическая и строительная части
Дата добавления в базу:01.09.2013
Дата актуализации:05.05.2017
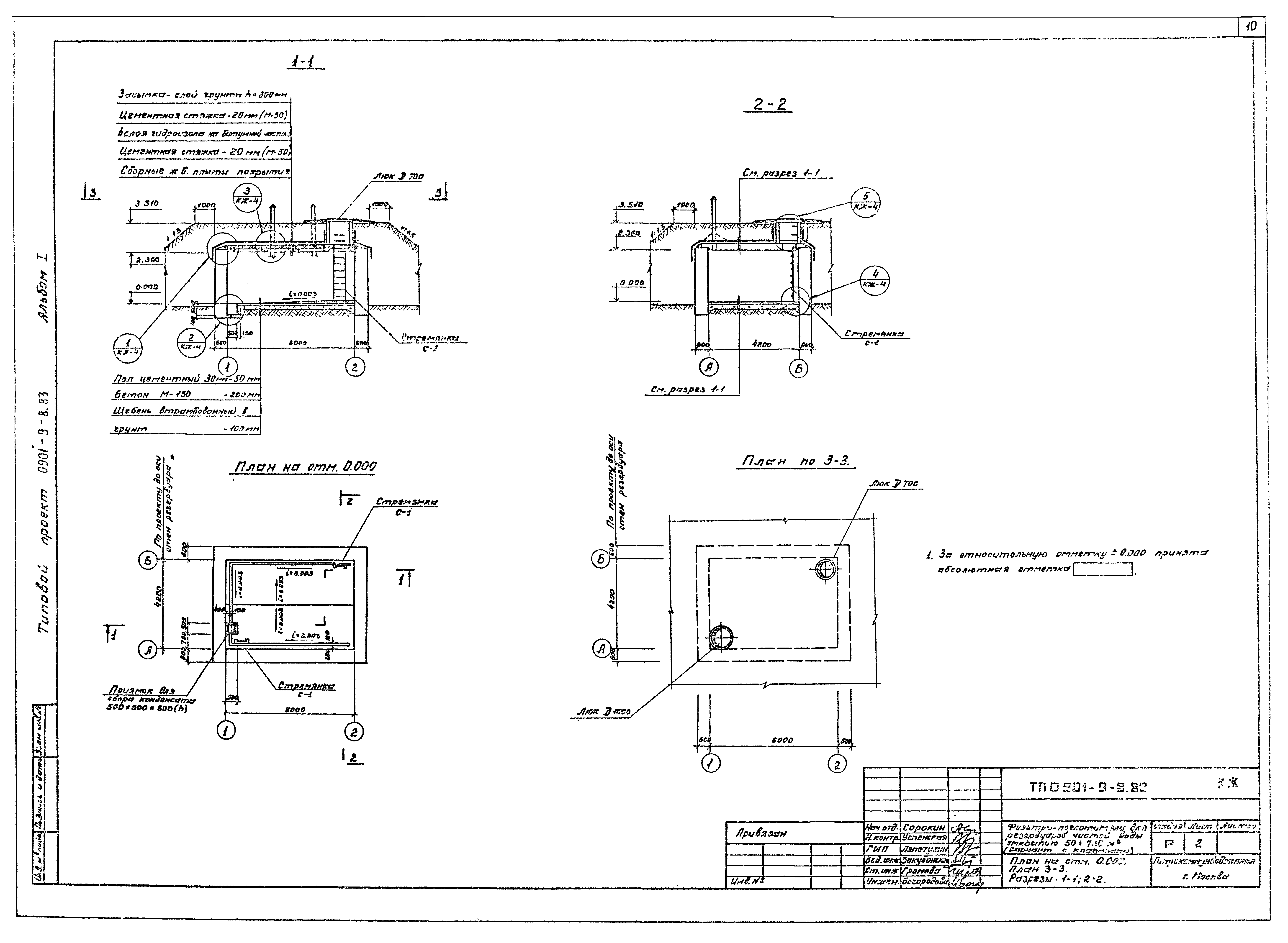
Область применения:Фильтры-поглотители предназначены для оборудования проектируемых и дооборудования существующих резервуаров питьевой воды
Оглавление:Содержание
Пояснительная записка
Технологическая часть
   Общие данные
   План 1-1. Разрезы 2-2; 3-3. Спецификация
Строительная часть
   Общие данные
   План. Разрезы
  Раскладка стеновых блоков по осям А; Б; 1; 2
Перекрытие камеры
   Узлы 1 - 5
   Узлы 6 - 8
   Фильтры-поглотители ФП 1; ФП 1м
   Фильтры-поглотители ФП 2б; ФП 2к
   Ведомость расхода стали на элементы
Разработан: Гипрокоммунводоканал Минжилкомхоза РСФСР
Утверждён:02.11.1982 Минжилкомхоз РСФСР (Russian Federation Minzhilkomkhoz 18-ТД)
Расположен в:Техническая документация Строительство Справочные документы Типовые строительные конструкции, изделия и узлы Общероссийский строительный каталог Защитные сооружения гражданской обороны Конструкции и инженерное оборудование Фильтры-поглотители
Типовой проект 0901-9-8.83Типовой проект 0901-9-8.83Типовой проект 0901-9-8.83Типовой проект 0901-9-8.83Типовой проект 0901-9-8.83Типовой проект 0901-9-8.83Типовой проект 0901-9-8.83Типовой проект 0901-9-8.83Типовой проект 0901-9-8.83Типовой проект 0901-9-8.83Типовой проект 0901-9-8.83Типовой проект 0901-9-8.83Типовой проект 0901-9-8.83Типовой проект 0901-9-8.83Типовой проект 0901-9-8.83Типовой проект 0901-9-8.83

© 2013 Ёшкин Кот :-) Карта сайта