Информационная система
«Ёшкин Кот»

Скачать базу одним архивом
Скачать обновления
История создания базы
Карта сайта

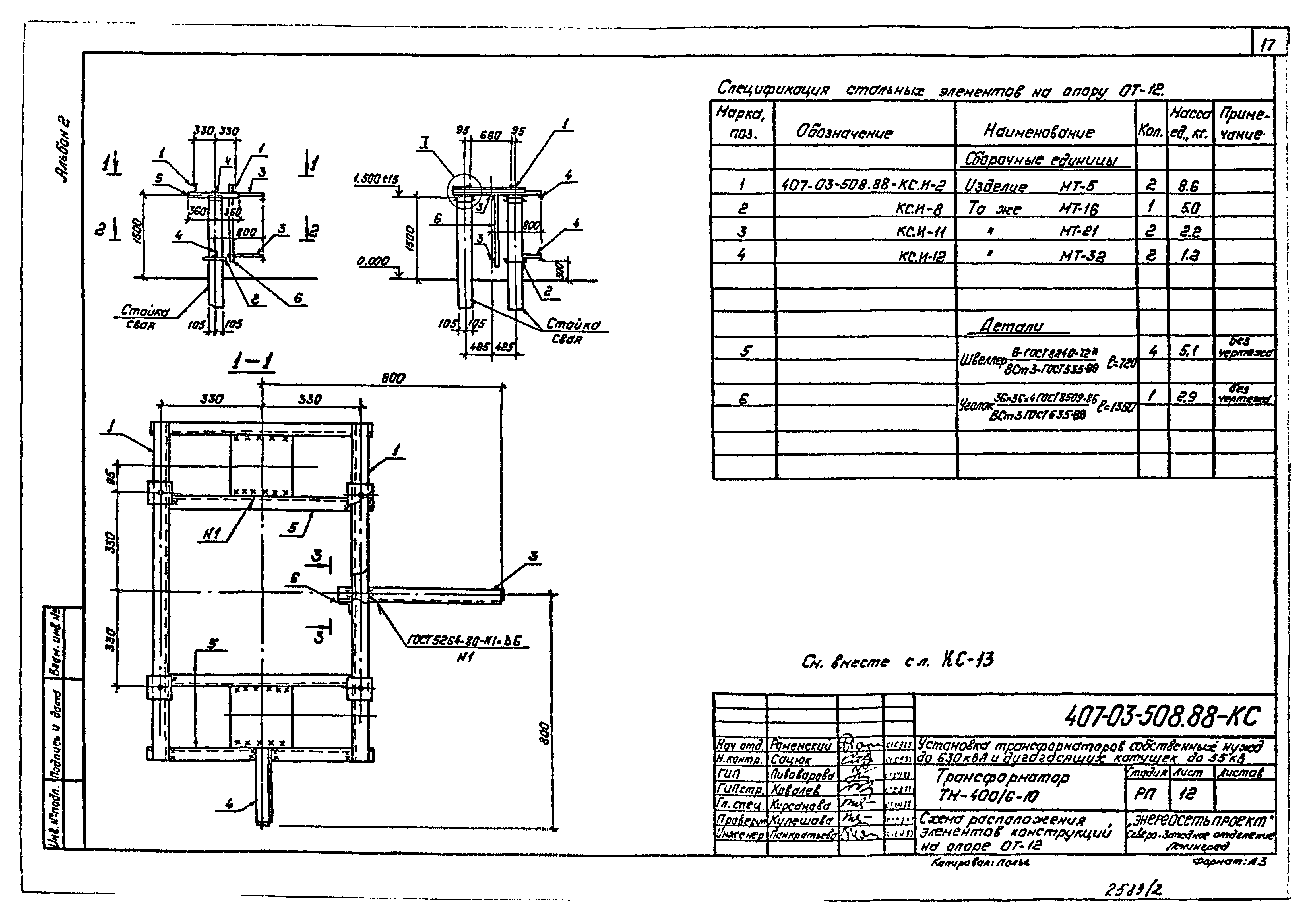
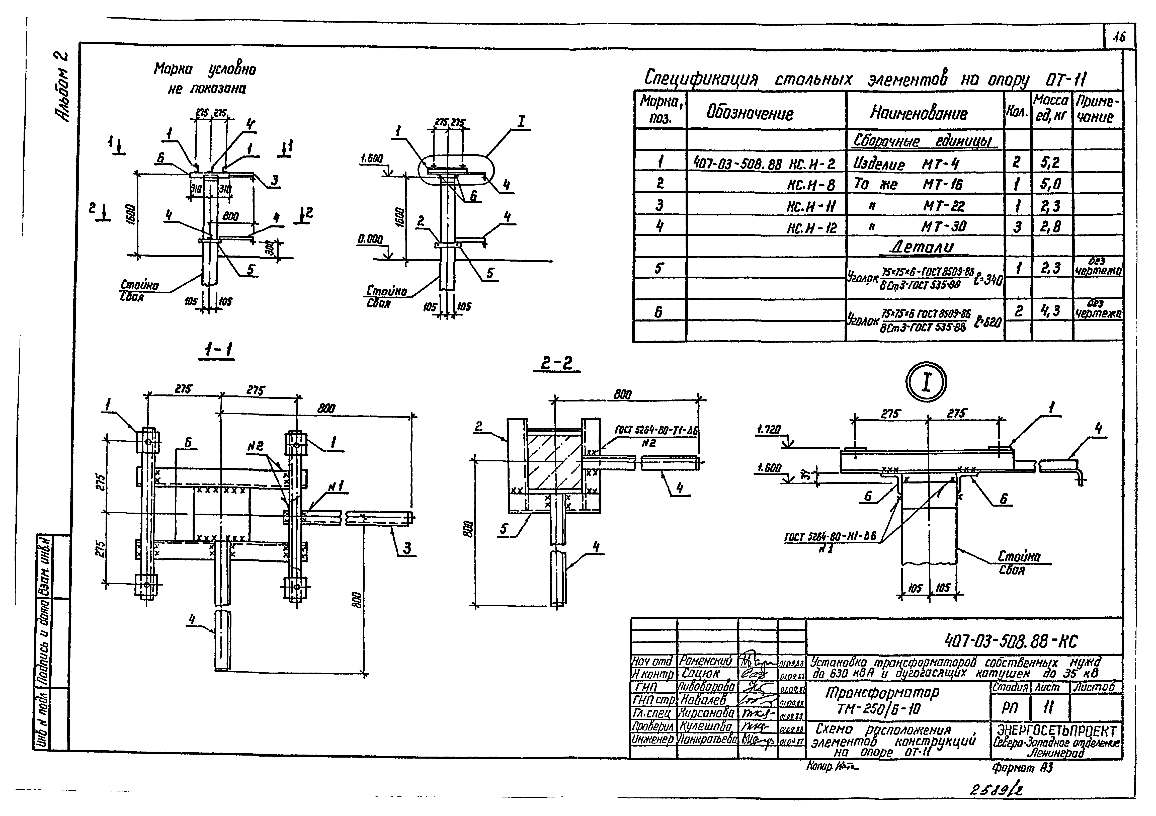
Скачать Типовые материалы для проектирования 407-03-508.88 Альбом 2. Строительные конструкции

Дата актуализации: 10.08.2017

Типовые материалы для проектирования 407-03-508.88

Альбом 2. Строительные конструкции

Обозначение: Типовые материалы для проектирования 407-03-508.88
Обозначение англ: 407-03-508.88
Статус:cправочные материалы, мп, тпр
Название рус.:Альбом 2. Строительные конструкции
Дата добавления в базу:01.09.2013
Дата актуализации:05.05.2017
Разработан: Северо-западное отделение института Энергосетьпроект
Утверждён:22.08.1988 Энергосетьпроект (Energosetproject 24)
Издан: ЦИТП Госстроя СССР (CITP, Gosstroy (USSR) 1988 г. )
Расположен в:Техническая документация Строительство Справочные документы Типовые строительные конструкции, изделия и узлы Общероссийский строительный каталог Промышленные предприятия, здания и сооружения Предприятия, здания и сооружения промышленности и электроэнергетики Электроэнергетика Установочные чертежи для трансформаторных подстанций
Типовые материалы для проектирования 407-03-508.88Типовые материалы для проектирования 407-03-508.88Типовые материалы для проектирования 407-03-508.88Типовые материалы для проектирования 407-03-508.88Типовые материалы для проектирования 407-03-508.88Типовые материалы для проектирования 407-03-508.88Типовые материалы для проектирования 407-03-508.88Типовые материалы для проектирования 407-03-508.88Типовые материалы для проектирования 407-03-508.88Типовые материалы для проектирования 407-03-508.88Типовые материалы для проектирования 407-03-508.88Типовые материалы для проектирования 407-03-508.88Типовые материалы для проектирования 407-03-508.88Типовые материалы для проектирования 407-03-508.88Типовые материалы для проектирования 407-03-508.88Типовые материалы для проектирования 407-03-508.88Типовые материалы для проектирования 407-03-508.88Типовые материалы для проектирования 407-03-508.88Типовые материалы для проектирования 407-03-508.88Типовые материалы для проектирования 407-03-508.88Типовые материалы для проектирования 407-03-508.88Типовые материалы для проектирования 407-03-508.88Типовые материалы для проектирования 407-03-508.88Типовые материалы для проектирования 407-03-508.88Типовые материалы для проектирования 407-03-508.88Типовые материалы для проектирования 407-03-508.88Типовые материалы для проектирования 407-03-508.88Типовые материалы для проектирования 407-03-508.88Типовые материалы для проектирования 407-03-508.88Типовые материалы для проектирования 407-03-508.88Типовые материалы для проектирования 407-03-508.88Типовые материалы для проектирования 407-03-508.88Типовые материалы для проектирования 407-03-508.88Типовые материалы для проектирования 407-03-508.88Типовые материалы для проектирования 407-03-508.88Типовые материалы для проектирования 407-03-508.88Типовые материалы для проектирования 407-03-508.88Типовые материалы для проектирования 407-03-508.88Типовые материалы для проектирования 407-03-508.88Типовые материалы для проектирования 407-03-508.88Типовые материалы для проектирования 407-03-508.88Типовые материалы для проектирования 407-03-508.88Типовые материалы для проектирования 407-03-508.88Типовые материалы для проектирования 407-03-508.88Типовые материалы для проектирования 407-03-508.88Типовые материалы для проектирования 407-03-508.88Типовые материалы для проектирования 407-03-508.88Типовые материалы для проектирования 407-03-508.88Типовые материалы для проектирования 407-03-508.88Типовые материалы для проектирования 407-03-508.88Типовые материалы для проектирования 407-03-508.88Типовые материалы для проектирования 407-03-508.88Типовые материалы для проектирования 407-03-508.88Типовые материалы для проектирования 407-03-508.88Типовые материалы для проектирования 407-03-508.88Типовые материалы для проектирования 407-03-508.88Типовые материалы для проектирования 407-03-508.88

© 2013 Ёшкин Кот :-) Карта сайта