Информационная система
«Ёшкин Кот»

Скачать базу одним архивом
Скачать обновления
История создания базы
Карта сайта

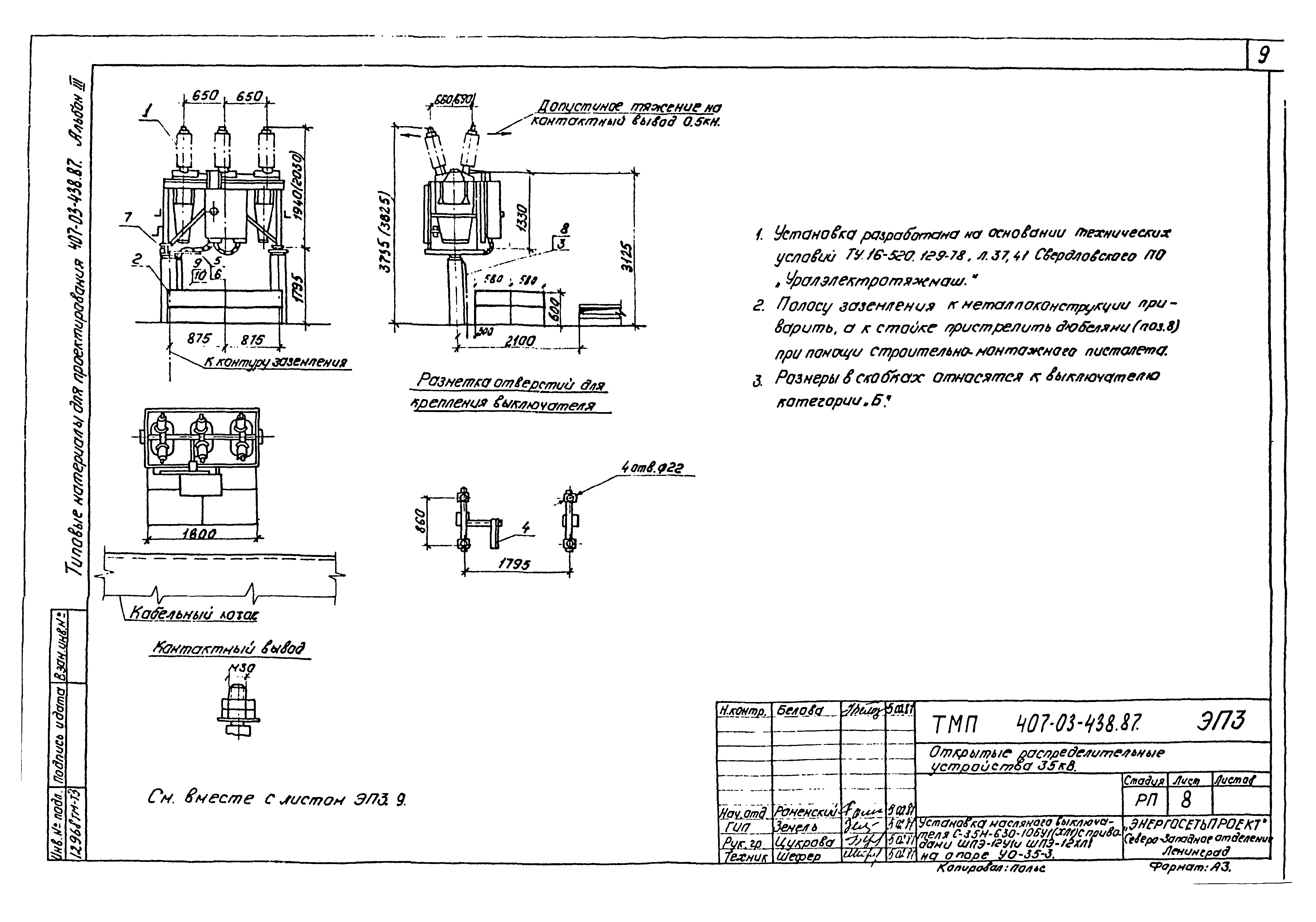
Скачать Типовые материалы для проектирования 407-03-438.86 Альбом III. Электротехническая часть. Установочные чертежи оборудования и гирлянды изоляторов

Дата актуализации: 10.08.2017

Типовые материалы для проектирования 407-03-438.86

Альбом III. Электротехническая часть. Установочные чертежи оборудования и гирлянды изоляторов

Обозначение: Типовые материалы для проектирования 407-03-438.86
Обозначение англ: 407-03-438.86
Статус:cправочные материалы, мп, тпр
Название рус.:Альбом III. Электротехническая часть. Установочные чертежи оборудования и гирлянды изоляторов
Дата добавления в базу:01.09.2013
Дата актуализации:05.05.2017
Разработан: Северо-западное отделение института Энергосетьпроект
Утверждён:17.03.1987 Минэнерго СССР (USSR Minenergo 20)
Расположен в:Техническая документация Строительство Справочные документы Типовые строительные конструкции, изделия и узлы Общероссийский строительный каталог Промышленные предприятия, здания и сооружения Предприятия, здания и сооружения промышленности и электроэнергетики Электроэнергетика Устройства и подстанции распределительные
Типовые материалы для проектирования 407-03-438.86Типовые материалы для проектирования 407-03-438.86Типовые материалы для проектирования 407-03-438.86Типовые материалы для проектирования 407-03-438.86Типовые материалы для проектирования 407-03-438.86Типовые материалы для проектирования 407-03-438.86Типовые материалы для проектирования 407-03-438.86Типовые материалы для проектирования 407-03-438.86Типовые материалы для проектирования 407-03-438.86Типовые материалы для проектирования 407-03-438.86Типовые материалы для проектирования 407-03-438.86Типовые материалы для проектирования 407-03-438.86Типовые материалы для проектирования 407-03-438.86Типовые материалы для проектирования 407-03-438.86Типовые материалы для проектирования 407-03-438.86Типовые материалы для проектирования 407-03-438.86Типовые материалы для проектирования 407-03-438.86Типовые материалы для проектирования 407-03-438.86Типовые материалы для проектирования 407-03-438.86Типовые материалы для проектирования 407-03-438.86Типовые материалы для проектирования 407-03-438.86Типовые материалы для проектирования 407-03-438.86Типовые материалы для проектирования 407-03-438.86Типовые материалы для проектирования 407-03-438.86Типовые материалы для проектирования 407-03-438.86Типовые материалы для проектирования 407-03-438.86Типовые материалы для проектирования 407-03-438.86Типовые материалы для проектирования 407-03-438.86Типовые материалы для проектирования 407-03-438.86Типовые материалы для проектирования 407-03-438.86Типовые материалы для проектирования 407-03-438.86Типовые материалы для проектирования 407-03-438.86Типовые материалы для проектирования 407-03-438.86Типовые материалы для проектирования 407-03-438.86Типовые материалы для проектирования 407-03-438.86Типовые материалы для проектирования 407-03-438.86Типовые материалы для проектирования 407-03-438.86Типовые материалы для проектирования 407-03-438.86Типовые материалы для проектирования 407-03-438.86Типовые материалы для проектирования 407-03-438.86Типовые материалы для проектирования 407-03-438.86Типовые материалы для проектирования 407-03-438.86Типовые материалы для проектирования 407-03-438.86Типовые материалы для проектирования 407-03-438.86Типовые материалы для проектирования 407-03-438.86Типовые материалы для проектирования 407-03-438.86Типовые материалы для проектирования 407-03-438.86Типовые материалы для проектирования 407-03-438.86Типовые материалы для проектирования 407-03-438.86Типовые материалы для проектирования 407-03-438.86Типовые материалы для проектирования 407-03-438.86Типовые материалы для проектирования 407-03-438.86Типовые материалы для проектирования 407-03-438.86Типовые материалы для проектирования 407-03-438.86Типовые материалы для проектирования 407-03-438.86Типовые материалы для проектирования 407-03-438.86Типовые материалы для проектирования 407-03-438.86Типовые материалы для проектирования 407-03-438.86Типовые материалы для проектирования 407-03-438.86Типовые материалы для проектирования 407-03-438.86Типовые материалы для проектирования 407-03-438.86Типовые материалы для проектирования 407-03-438.86Типовые материалы для проектирования 407-03-438.86Типовые материалы для проектирования 407-03-438.86Типовые материалы для проектирования 407-03-438.86

© 2013 Ёшкин Кот :-) Карта сайта