Информационная система
«Ёшкин Кот»

Скачать базу одним архивом
Скачать обновления
История создания базы
Карта сайта

Скачать Типовой проект 503-149 Альбом I. Главный корпус. Пояснительная записка. Схема генплана. Технологическая часть

Дата актуализации: 10.08.2017

Типовой проект 503-149

Альбом I. Главный корпус. Пояснительная записка. Схема генплана. Технологическая часть

Обозначение: Типовой проект 503-149
Обозначение англ: 503-149
Статус:действует
Название рус.:Альбом I. Главный корпус. Пояснительная записка. Схема генплана. Технологическая часть
Дата добавления в базу:01.09.2013
Дата актуализации:05.05.2017
Оглавление:ТП-503-149 Содержание альбома
ТП-503-149 Пояснительная записка
ТП-503-149 Схема генерального плана
ТП-503-149 ТХ-1 План расстановки технологического оборудования производственной части
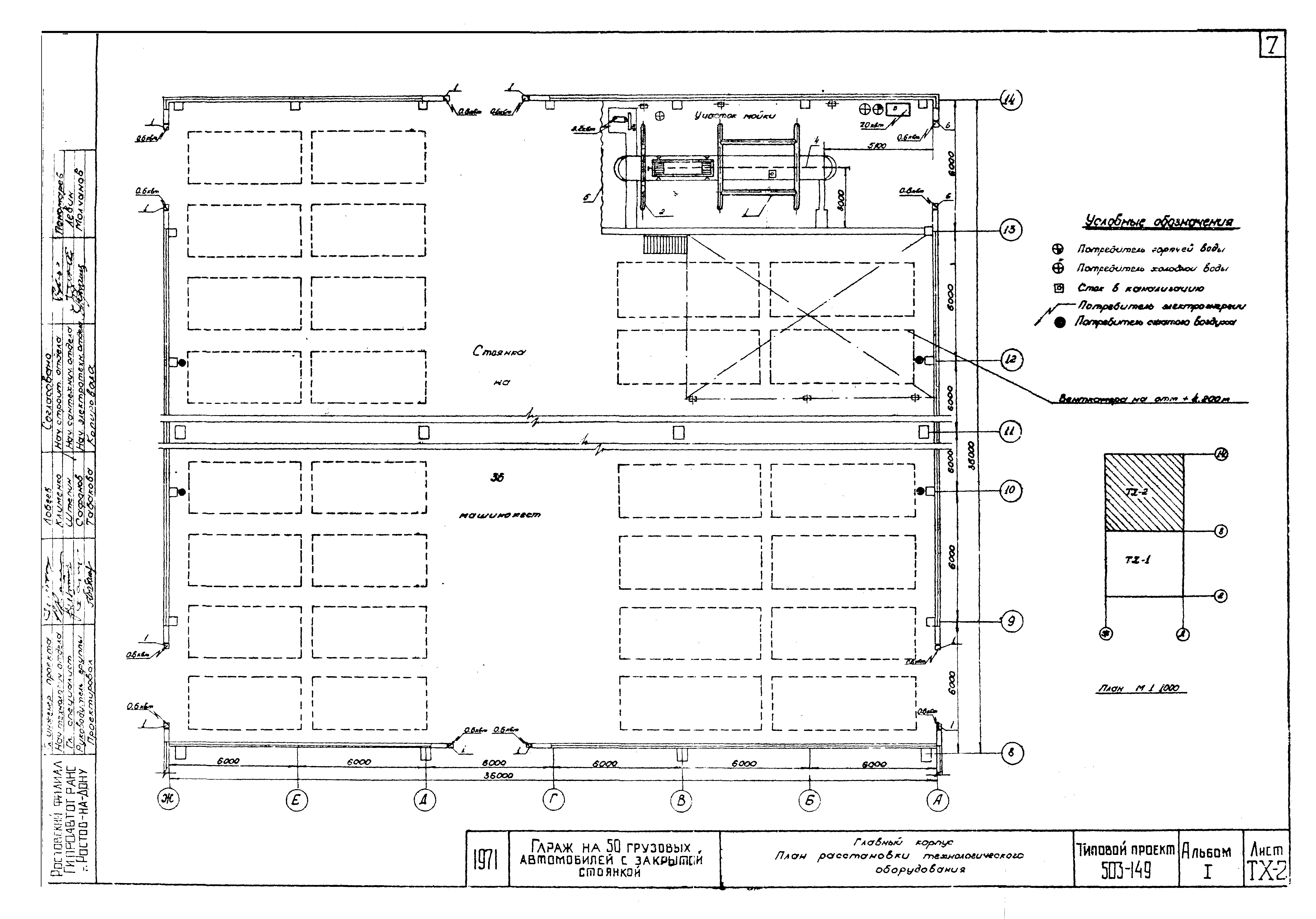
ТП-503-149 ТХ-2 План расстановки технологического оборудования
ТП-503-149 ТХ-3 Спецификация технологического оборудования (начало)
ТП-503-149 ТХ-4 Спецификация технологического оборудования (окончание)
ТП-503-149 ТХ-5 План и схема трубопроводов сжатого воздуха. Спецификация материалов и арматуры
ТП-503-149 ТХ-6 Маслохозяйство. План. Схема разводки трубопроводов. Спецификация материалов и арматуры
Разработан: Ростовский филиал Гипроавтотранса Минавтотранса РСФСР
Утверждён:22.12.1971 Минавтотранс РСФСР (Russian Federation Minavtotrans 189)
Расположен в:Техническая документация Строительство Справочные документы Типовые строительные конструкции, изделия и узлы Общероссийский строительный каталог Промышленные предприятия, здания и сооружения Предприятия, здания и сооружения транспорта Транспорт автомобильный Предприятия автотранспортные, гаражи и стоянки для грузовых автомобилей и механизмов
Типовой проект 503-149Типовой проект 503-149Типовой проект 503-149Типовой проект 503-149Типовой проект 503-149Типовой проект 503-149Типовой проект 503-149Типовой проект 503-149Типовой проект 503-149Типовой проект 503-149Типовой проект 503-149Типовой проект 503-149

© 2013 Ёшкин Кот :-) Карта сайта