Информационная система
«Ёшкин Кот»

Скачать базу одним архивом
Скачать обновления
История создания базы
Карта сайта

Скачать Серия 2.020-1.08 Выпуск 0-1. Материалы для проектирования

Дата актуализации: 10.08.2017

Серия 2.020-1.08

Выпуск 0-1. Материалы для проектирования

Обозначение: Серия 2.020-1.08
Обозначение англ: Series 2.020-1.08
Статус:не определен законодательством
Название рус.:Выпуск 0-1. Материалы для проектирования
Дата добавления в базу:01.09.2013
Дата актуализации:05.05.2017
Дата введения:27.03.2007
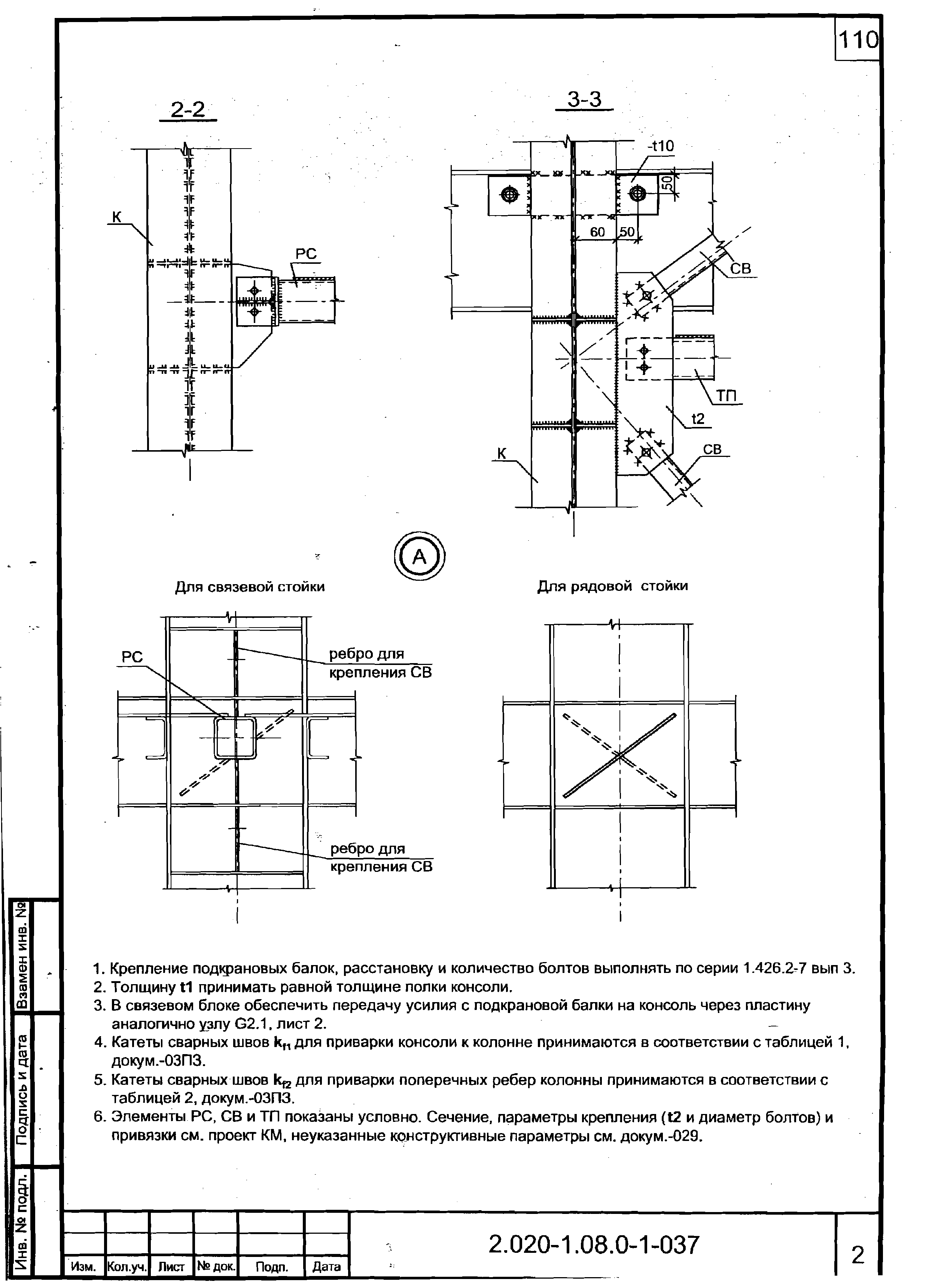
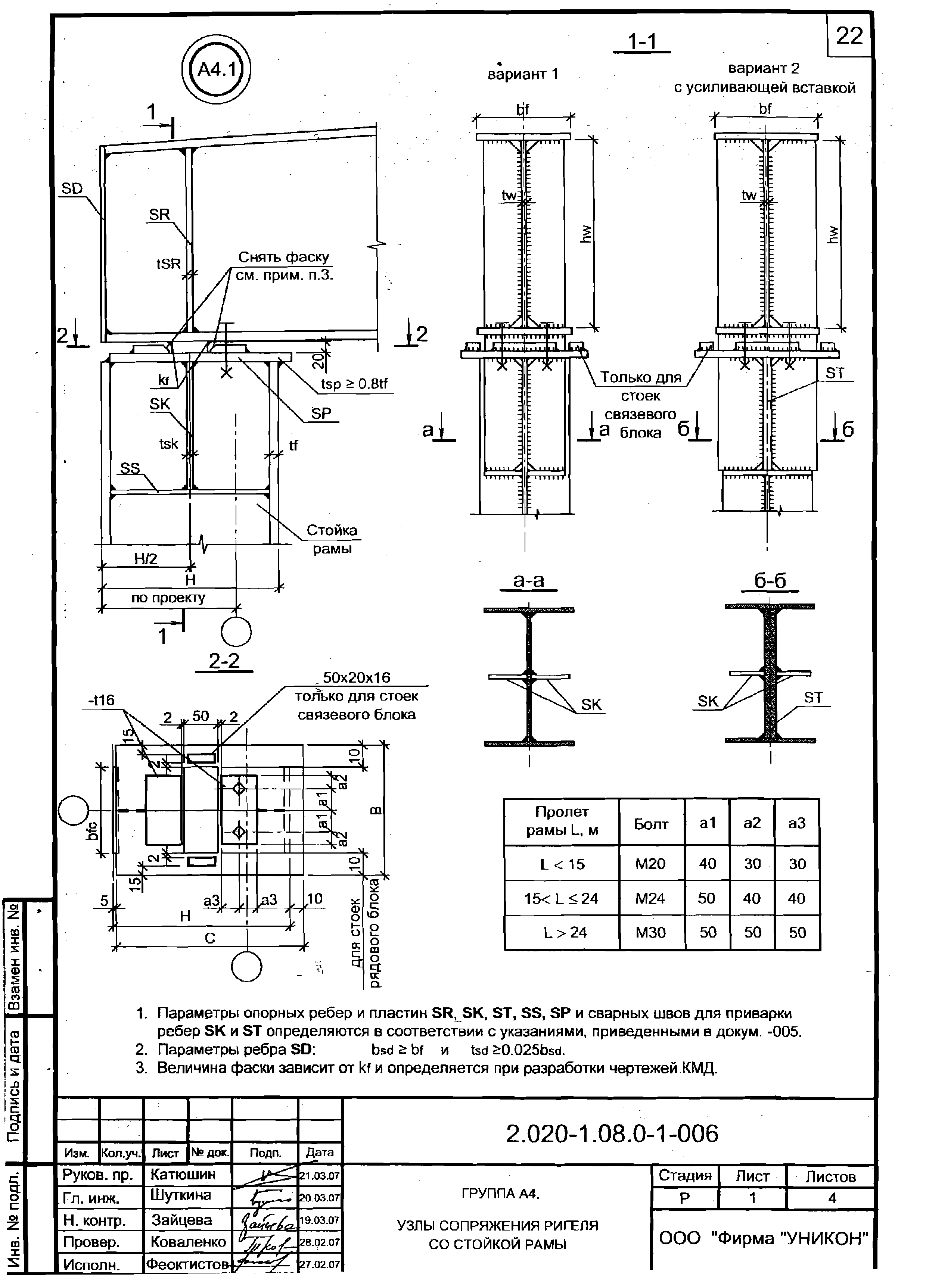
Область применения:Строительная система "УНИКОН" выпуск 0-1 предназначена для использования в качестве руководства по конструированию, изготовлению и монтажу зданий со стальными каркасами
Разработан: ООО Научно-исследовательская и проектно-строительная фирма УНИКОН
Утверждён:27.03.2007 ООО Научно-исследовательская и проектно-строительная фирма УНИКОН (7)
Издан: Информационный бюллетень о нормативной, методической и типовой проектной документации ФГУП ЦПП (2008 г. (11))
Расположен в:Техническая документация Строительство Справочные документы Типовые строительные конструкции, изделия и узлы Общероссийский строительный каталог Строительные конструкции, изделия и узлы зданий и сооружений для всех видов строительства Конструкции, изделия и узлы зданий Несущие конструкции одноэтажных зданий Узлы и детали сопряжения железобетонных и стальных конструкций
Серия 2.020-1.08Серия 2.020-1.08Серия 2.020-1.08Серия 2.020-1.08Серия 2.020-1.08Серия 2.020-1.08Серия 2.020-1.08Серия 2.020-1.08Серия 2.020-1.08Серия 2.020-1.08Серия 2.020-1.08Серия 2.020-1.08Серия 2.020-1.08Серия 2.020-1.08Серия 2.020-1.08Серия 2.020-1.08Серия 2.020-1.08Серия 2.020-1.08Серия 2.020-1.08Серия 2.020-1.08Серия 2.020-1.08Серия 2.020-1.08Серия 2.020-1.08Серия 2.020-1.08Серия 2.020-1.08Серия 2.020-1.08Серия 2.020-1.08Серия 2.020-1.08Серия 2.020-1.08Серия 2.020-1.08Серия 2.020-1.08Серия 2.020-1.08Серия 2.020-1.08Серия 2.020-1.08Серия 2.020-1.08Серия 2.020-1.08Серия 2.020-1.08Серия 2.020-1.08Серия 2.020-1.08Серия 2.020-1.08Серия 2.020-1.08Серия 2.020-1.08Серия 2.020-1.08Серия 2.020-1.08Серия 2.020-1.08Серия 2.020-1.08Серия 2.020-1.08Серия 2.020-1.08Серия 2.020-1.08Серия 2.020-1.08Серия 2.020-1.08Серия 2.020-1.08Серия 2.020-1.08Серия 2.020-1.08Серия 2.020-1.08Серия 2.020-1.08Серия 2.020-1.08Серия 2.020-1.08Серия 2.020-1.08Серия 2.020-1.08Серия 2.020-1.08Серия 2.020-1.08Серия 2.020-1.08Серия 2.020-1.08Серия 2.020-1.08Серия 2.020-1.08Серия 2.020-1.08Серия 2.020-1.08Серия 2.020-1.08Серия 2.020-1.08Серия 2.020-1.08Серия 2.020-1.08Серия 2.020-1.08Серия 2.020-1.08Серия 2.020-1.08Серия 2.020-1.08Серия 2.020-1.08Серия 2.020-1.08Серия 2.020-1.08Серия 2.020-1.08Серия 2.020-1.08Серия 2.020-1.08Серия 2.020-1.08Серия 2.020-1.08Серия 2.020-1.08Серия 2.020-1.08Серия 2.020-1.08Серия 2.020-1.08Серия 2.020-1.08Серия 2.020-1.08Серия 2.020-1.08Серия 2.020-1.08Серия 2.020-1.08Серия 2.020-1.08Серия 2.020-1.08Серия 2.020-1.08Серия 2.020-1.08Серия 2.020-1.08Серия 2.020-1.08Серия 2.020-1.08Серия 2.020-1.08Серия 2.020-1.08Серия 2.020-1.08Серия 2.020-1.08Серия 2.020-1.08Серия 2.020-1.08Серия 2.020-1.08Серия 2.020-1.08Серия 2.020-1.08Серия 2.020-1.08Серия 2.020-1.08Серия 2.020-1.08Серия 2.020-1.08Серия 2.020-1.08Серия 2.020-1.08Серия 2.020-1.08Серия 2.020-1.08Серия 2.020-1.08Серия 2.020-1.08Серия 2.020-1.08Серия 2.020-1.08Серия 2.020-1.08Серия 2.020-1.08Серия 2.020-1.08Серия 2.020-1.08Серия 2.020-1.08Серия 2.020-1.08

© 2013 Ёшкин Кот :-) Карта сайта