Скачать Серия 1.420.3-37.06 Выпуск 0-0. Материалы для проектированияДата актуализации: 10.08.2017 Серия 1.420.3-37.06
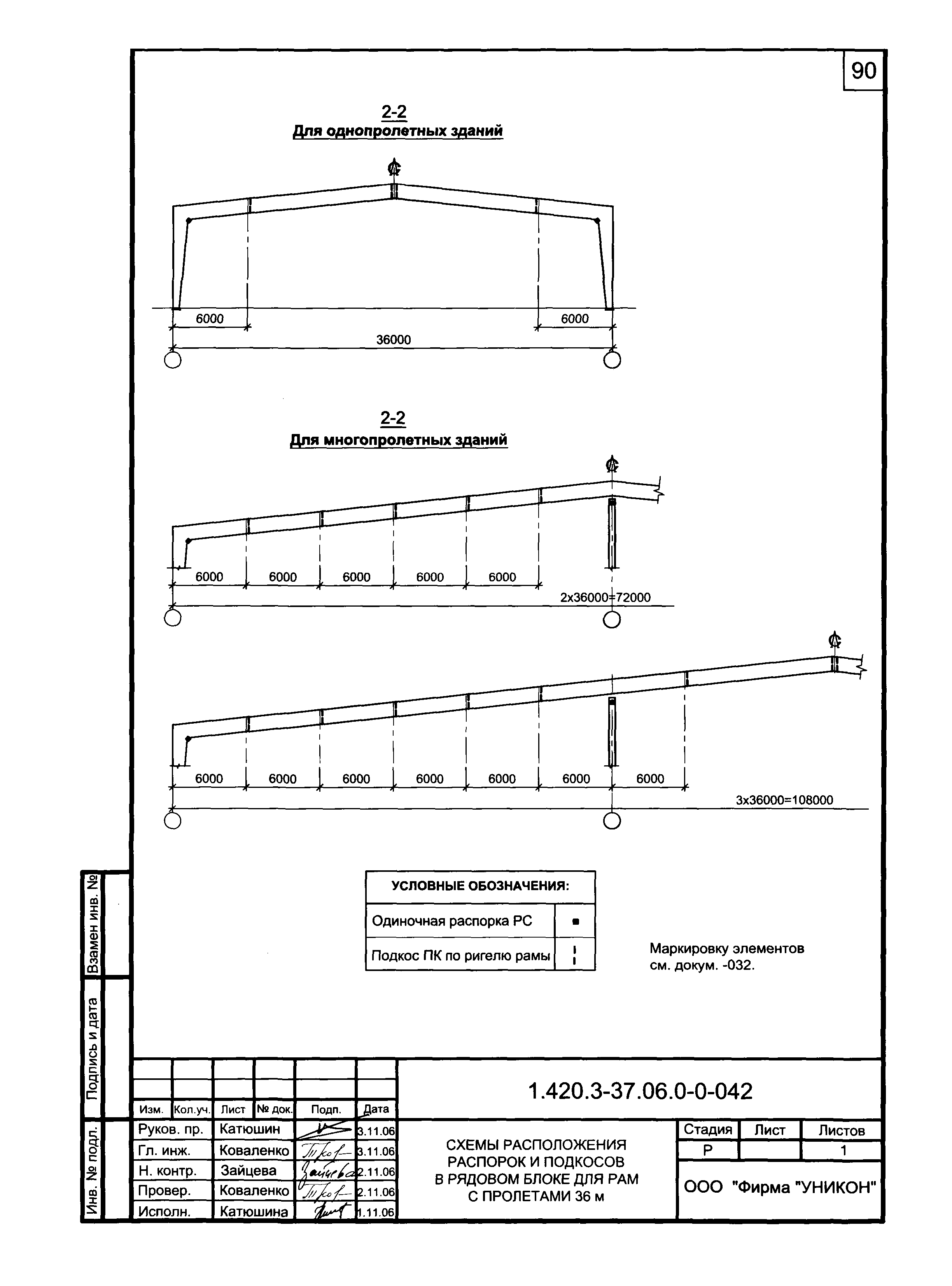
Выпуск 0-0. Материалы для проектированияОбозначение: | Серия 1.420.3-37.06 | Обозначение англ: | Series 1.420.3-37.06 | Статус: | не определен законодательством | Название рус.: | Выпуск 0-0. Материалы для проектирования | Дата добавления в базу: | 01.09.2013 | Дата актуализации: | 05.05.2017 | Дата введения: | 03.11.2006 | Область применения: | Каркасы стальные типа "УНИМАК-Р1" выпуск 0-0 предназначены для применения в одноэтажных производственных отапливаемых и неотапливаемых зданиях без кранового оборудования и мостовыми подвесными кранами грузоподъемностью от 1 до 5 т с режимами работы 1К-3К и зданий с опорными мостовыми кранами грузоподъемностью от 5 до 20 т с режимами работ 1К-5К | Оглавление: | 1.420.3-37.06.0-0-01ПЗ Пояснительная записка 1.420.3-37.06.0-0-001 Условные изображения и обозначения метизов, сварных швов, узлов на схемах. Сокращения в тексте 1.420.3-37.06.0-0-002 Условные обозначения профилей сечений элементов 1.420.3-37.06.0-0-003 Определение кода сечения элементов рамы 1.420.3-37.06.0-0-004 Таблицы кодов и габаритных размеров сечений элементов. Соответствие кодов сечений элементов сортаментам 1.420.3-37.06.0-0-005 Привязки стоек рам и фахверка к осям в однопролетном здании 1.420.3-37.06.0-0-006 Привязки стоек рам и фахверка к осям в многопролетном здании 1.420.3-37.06.0-0-007 Габаритные и маркировочные схемы рам. Общие указания 1.420.3-37.06.0-0-008 Компоновочные размеры рамы в зданиях с подвесными кранами 1.420.3-37.06.0-0-009 Справочные данные для определения внутренних габаритов зданий без кранов и с подвесными кранами 1.420.3-37.06.0-0-010 Определение отметок рам зданий с мостовыми кранами 1.420.3-37.06.0-0-011 Справочные данные для определения внутреннего пространства в зданиях с мостовыми кранами 1.420.3-37.06.0-0-012 Указания по установке ребер жесткости на элементах рам 1.420.3-37.06.0-0-013 Схемы рам с пролетами 12 м 1.420.3-37.06.0-0-014 Таблицы кодов сечений и масса элементов рам пролетом L = 12 м, L = 2x12 м, L = 3x12 м, L = 4х12 м, L = 5x12 м 1.420.3-37.06.0-0-015 Схемы рам с пролетами 15 м 1.420.3-37.06.0-0-016 Таблицы кодов сечений и масса элементов рам пролетом L = 15 м, L = 2x15 м, L = 3х15 м, L = 4x15 м, L = 5x15 м 1.420.3-37.06.0-0-017 Схемы рам с пролетами 18 м 1.420.3-37.06.0-0-018 Таблицы кодов сечений и масса элементов рам пролетом L = 18 м, L = 2x18 м, L = 3x18 м, L = 4x18 м, L = 5x18 м 1.420.3-37.06.0-0-019 Схемы рам с пролетами 24 м 1.420.3-37.06.0-0-020 Таблицы кодов сечений и масса элементов рам пролетом L = 24 м, L = 2x24 м, L = 3x24 м, L = 4x24 м, L = 5x24 м 1.420.3-37.06.0-0-021 Схемы рам с пролетами 30 м 1.420.3-37.06.0-0-022 Таблицы кодов сечений и масса элементов рам пролетом L = 30 м, L = 2x30 м, L = 3x30 м 1.420.3-37.06.0-0-023 Схемы рам с пролетами 36 м 1.420.3-37.06.0-0-024 Таблицы кодов сечений и масса элементов рам пролетом L = 36 м, L = 2x36 м, L = 3x36 м 1.420.3-37.06.0-0-025 Связевые блоки. Общие указания 1.420.3-37.06.0-0-026 Схемы расположения связевых блоков для зданий различной длины при 1 и 2 кодах горизонтальной нагрузки 1.420.3-37.06.0-0-027 Схемы расположения продольных блоков горизонтальных связей при 3-м коде горизонтальной нагрузки 1.420.3-37.06.0-0-028 Схемы распорок и вертикальных связей для крайних стоек одно- и многопролетных рам 1.420.3-37.06.0-0-029 Схемы распорок и вертикальных связей для средних стоек многопролетных рам 1.420.3-37.06.0-0-030 Схемы горизонтальных связей, распорок и подкосов по покрытию 1.420.3-37.06.0-0-031 Схемы расположения распорок, подкосов, горизонтальных и вертикальных связей в связевом блоке для рам с пролетами 12 м 1.420.3-37.06.0-0-032 Схемы расположения распорок и подкосов в рядовом блоке для рам с пролетами 12 м 1.420.3-37.06.0-0-033 Схемы расположения распорок, подкосов, горизонтальных и вертикальных связей в связевом блоке для рам с пролетами 15 м 1.420.3-37.06.0-0-034 Схемы расположения распорок и подкосов в рядовом блоке для рам с пролетами 15 м 1.420.3-37.06.0-0-035 Схемы расположения распорок, подкосов, горизонтальных и вертикальных связей в связевом блоке для рам с пролетами 18 м 1.420.3-37.06.0-0-036 Схемы расположения распорок и подкосов в рядовом блоке для рам с пролетами 18 м 1.420.3-37.06.0-0-037 Схемы расположения распорок, подкосов, горизонтальных и вертикальных связей в связевом блоке для рам с пролетами 24 м 1.420.3-37.06.0-0-038 Схемы расположения распорок и подкосов в рядовом блоке для рам с пролетами 24 м 1.420.3-37.06.0-0-039 Схемы расположения распорок, подкосов, горизонтальных и вертикальных связей в связевом блоке для рам с пролетами 30 м 1.420.3-37.06.0-0-040 Схемы расположения распорок и подкосов в рядовом блоке для рам с пролетами 30 м 1.420.3-37.06.0-0-041 Схемы расположения распорок, подкосов, горизонтальных и вертикальных связей в связевом блоке для рам с пролетами 36 м 1.420.3-37.06.0-0-042 Схемы расположения распорок и подкосов в рядовом блоке для рам с пролетами 36 м 1.420.3-37.06.0-0-043 Определение усилий в элементах связевого блока 1.420.3-37.06.0-0-044 Коды сечений распорок PC, горизонтальных связей СГ и вертикальных связей СВ1. Таблица расхода металла для распорок PC 1.420.3-37.06.0-0-045 Коды сечений двухветвевых распорок РРС. Таблица расхода металла для распорок РРС. Подкос ПК 1.420.3-37.06.0-0-046 Торцевой фахверк. Общие указания 1.420.3-37.06.0-0-047 Схемы стоек и балок фахверка однопролетных и многопролетных зданий 1.420.3-37.06.0-0-048 Расположение элементов и схемы связевых блоков несущего фахверка 1.420.3-37.06.0-0-049 Расположение элементов и распорок самонесущего фахверка 1.420.3-37.06.0-0-050 Стойки несущего и самонесущего фахверка СФ1, СФ2. Таблицы кодов сечений и опорных плит, стали анкеров. Таблицы расхода металла 1.420.3-37.06.0-0-051 Стойки самонесущего фахверка. Балки фахверка. Таблицы кодов сечений и расхода металла стоек СФ3 и балок фахверка 1.420.3-37.06.0-0-052 Пути подвесных кранов. Общие указания. Справочные данные для подвесных кранов 1.420.3-37.06.0-0-053 Схемы путей подвесного транспорта БП1и поддерживающих балок БП2. Один крановый путь в пролете 1.420.3-37.06.0-0-054 Схемы путей подвесного транспорта БП1и поддерживающих балок БП2. Два крановых пути в пролете 1.420.3-37.06.0-0-055 Схемы тормозных балок ТБ и подкосов П2. Сортамент подвесных путей БП1 и элементов крепления 1.420.3-37.06.0-0-056 Пути мостовых опорных кранов. Общие указания. Схема подкрановых балок и стоек крановой эстакады 1.420.3-37.06.0-0-057 Коды сечений стоек крановой эстакады СК, вертикальных связей СВ2 и распорок РСк. Таблицы расхода металла для СК, СВ2 1.420.3-37.06.0-0-058 Нагрузки на фундаменты. Общие указания 1.420.3-37.06.0-0-059 Расчетные усилия на фундаменты однопролетных рам от вертикальных нагрузок 1.420.3-37.06.0-0-060 Расчетные усилия на фундаменты двух- и многопролетных рам от вертикальных нагрузок 1.420.3-37.06.0-0-061 Расчетные усилия на фундаменты одно- и многопролетных рам от действия подвесных кранов 1.420.3-37.06.0-0-062 Нагрузки на фундаменты одно- и многопролетных рам от действия ветра при 1 и 2 кодах горизонтальной нагрузки 1.420.3-37.06.0-0-063 Нагрузки на фундаменты стоек несущего фахверка 1.420.3-37.06.0-0-064 Нагрузки на фундаменты стоек самонесущего фахверка 1.420.3-37.06.0-0-065 Нагрузки на фундаменты стоек крановой эстакады 1.420.3-37.06.0-0-066 Особые сочетания. Расчетные усилия на фундаменты стоек рам при сейсмичности площадки строительства >=7 баллов 1.420.3-37.06.0-0-067 Прогоны покрытия. Общие указания 1.420.3-37.06.0-0-068 Разрезные схемы прогонов покрытия ПР с тяжами и без тяжей 1.420.3-37.06.0-0-069 Неразрезная схема прогонов покрытия ПН1, ПН2 1.420.3-37.06.0-0-070 Прогоны покрытия ПР, ПН1 и ПН2. Таблицы расхода металла на прогоны покрытия 1.420.3-37.06.0-0-071 Стеновые прогоны. Общие указания 1.420.3-37.06.0-0-072 Стеновые прогоны. Фрагмент раскладки стеновых прогонов 1.420.3-37.06.0-0-073 Стеновые прогоны. Фрагменты обрамления проемов 1.420.3-37.06.0-0-074 Разрезные стеновые прогоны марки ПС1. Таблица расхода металла для стеновых прогонов ПС1 1.420.3-37.06.0-0-075 Разрезные стеновые прогоны марки ПС2. Таблицы расхода металла для стеновых прогонов ПС2 1.420.3-37.06.0-0-076 Узел 1. Опорный узел крайней стойки рамы 1.420.3-37.06.0-0-077 Узел 2. Опорный узел средних стоек рамы. Таблица кодов, параметров и толщин опорных плит 1.420.3-37.06.0-0-078 Узел 3. Опирание стойки крановой эстакады и крепление к крайней стоике рамы 1.420.3-37.06.0-0-079 Узел 4. Опирание стойки крановой эстакады и крепление к средней стоике рамы 1.420.3-37.06.0-0-080 Узел 5. Опирание стойки фахверка. Таблицы кодов, параметров и толщин опорных плит 1.420.3-37.06.0-0-081 Узел 6. Опирание стойки СФ3 самонесущего фахверка 1.420.3-37.06.0-0-082 Узлы 7,8. Узлы сопряжения ригеля и средней стойки рамы 1.420.3-37.06.0-0-083 Узел 9. Сопряжение ригеля в коньке 1.420.3-37.06.0-0-084 Узел 10. Фланцевые соединения элементов рам. Общие указания. Фланцы Фл.1, Фл.2, Фл.3, Фл.4 1.420.3-37.06.0-0-085 Узел 11. Монтажный стык средней стойки рамы 1.420.3-37.06.0-0-086 Узел 12. Крепление распорок, вертикальных и горизонтальных связей в карнизном узле 1.420.3-37.06.0-0-087 Узлы 13, 14. Крепление распорок, вертикальных и горизонтальных связей к ригелю и средней стоике рамы 1.420.3-37.06.0-0-088 Узлы 15, 16. Крепление элементов связей в коньке рамы (на фланце). Крепление подкосов к распорке 1.420.3-37.06.0-0-089 Узел 17. Крепление распорок и подкосов к ригелю рамы 1.420.3-37.06.0-0-090 Узлы 18, 19. Сопряжение распорок с крайней и средней стойками рамы 1.420.3-37.06.0-0-091 Узлы 20, 21, 22. Конструктивные параметры и привязки распорок PC 1.420.3-37.06.0-0-092 Узлы 23, 24. Узлы сопряжения поясов и раскосов распорки РРС 1.420.3-37.06.0-0-093 Узлы 25, 26. Конструктивные параметры и привязки гибких связей 1.420.3-37.06.0-0-094 Узел 27. Сопряжение крайней стойки несущего фахверка с балкой фахверка и распоркой PC 1.420.3-37.06.0-0-095 Узел 28. Сопряжение средней стойки несущего фахверка с балкой фахверка 1.420.3-37.06.0-0-096 Узлы 29, 30. Сопряжение средней стойки фахверка с балкой фахверка в коньке. Сопряжение балки фахверка 1.420.3-37.06.0-0-097 Узлы 31, 32. Сопряжение стойки самонесущего фахверка СФ3 с крайней и средней стойками рамы 1.420.3-37.06.0-0-098 Узел 33. Сопряжение ригеля рамы и стойки самонесущего фахверка 1.420.3-37.06.0-0-099 Узел 34. Сопряжение ригеля рамы и стойки самонесущего фахверка в коньке 1.420.3-37.06.0-0-100 Узлы 35, 36, 37. Крепление распорок и вертикальных связей к стойкам фахверка 1.420.3-37.06.0-0-101 Узлы 38, 39. Монтажные стыки стоек несущего и самонесущего фахверка 1.420.3-37.06.0-0-102 Узел 40. Крепление балки подвесных путей БП1 к ригелю рамы. Монтажный стык балки БП1 1.420.3-37.06.0-0-103 Узел 41. Крепление балки подвесных путей БП1 к ригелю рамы на элементах П1 и П2 1.420.3-37.06.0-0-104 Узел 42. Крепление тормозной балки ТБ и подкосов П2 1.420.3-37.06.0-0-105 Узел 43. Крепление подкосов П2 к распоркам PC 1.420.3-37.06.0-0-106 Узел 44. Сопряжение балок БП1, БП2 и стойки фахверка 1.420.3-37.06.0-0-107 Узел 45. Крепление подкрановой балки на стойку эстакады и к крайней стоике рамы 1.420.3-37.06.0-0-108 Узлы 46, 47. Крепление подкрановой балки к средней стойке рамы. Крепление концевой подкрановой балки 1.420.3-37.06.0-0-109 Узел 48. Стык кранового рельса и крепление рельса к подкрановой балке 1.420.3-37.06.0-0-110 Узлы 49, 50. Опирание прогонов покрытия ПР(ПН) на рядовую и крайнюю раму или балку фахверка 1.420.3-37.06.0-0-111 Узел 51. Опирание прогонов покрытия ПН на ригель рамы 1.420.3-37.06.0-0-112 Узлы 52, 53. Крепление тяжей Т1 к прогонам покрытия ПР 1.420.3-37.06.0-0-113 Узлы 54, 55. Крепление разрезных стеновых прогонов ПС1 и ПС2 к стоикам рамы 1.420.3-37.06.0-0-114 Узлы 56, 57. Угловое сопряжение стеновых прогонов ПС1 и ПС2 на несущей стойке фахверка 1.420.3-37.06.0-0-115 Узлы 58, 59. Крепление разрезных стеновых прогонов ПС1 и ПС2 к самонесущим стойкам фахверка 1.420.3-37.06.0-0-116 Узлы 60, 61. Угловое сопряжение стеновых прогонов ПС1 и ПС2 на самонесущей стойке фахверка 1.420.3-37.06.0-0-117 Узлы 62, 63. Сопряжение стеновых прогонов ПС1 и ПС2 в месте стыка двух зданий или в температурном шве 1.420.3-37.06.0-0-118 Узел 64. Крепление подкосов ПК к стеновым прогонам ПС2 1.420.3-37.06.0-0-119 Узлы 65, 66, 67. Крепление стойки СТ1 (СТ3) обрамления проема 1.420.3-37.06.0-0-120 Узлы 68, 69, 70. Крепление стойки СТ2 обрамления проема ворот | Разработан: | ООО Научно-исследовательская и проектно-строительная фирма УНИКОН
| Утверждён: | 07.11.2006 ООО КЗЛМК Маяк (341)
| Издан: | Информационный бюллетень о нормативной, методической и типовой проектной документации ФГУП ЦПП (2008 г. (11))
| Расположен в: |
|
                                                                                                                                                                                                 
|