Информационная система
«Ёшкин Кот»

Скачать базу одним архивом
Скачать обновления
История создания базы
Карта сайта

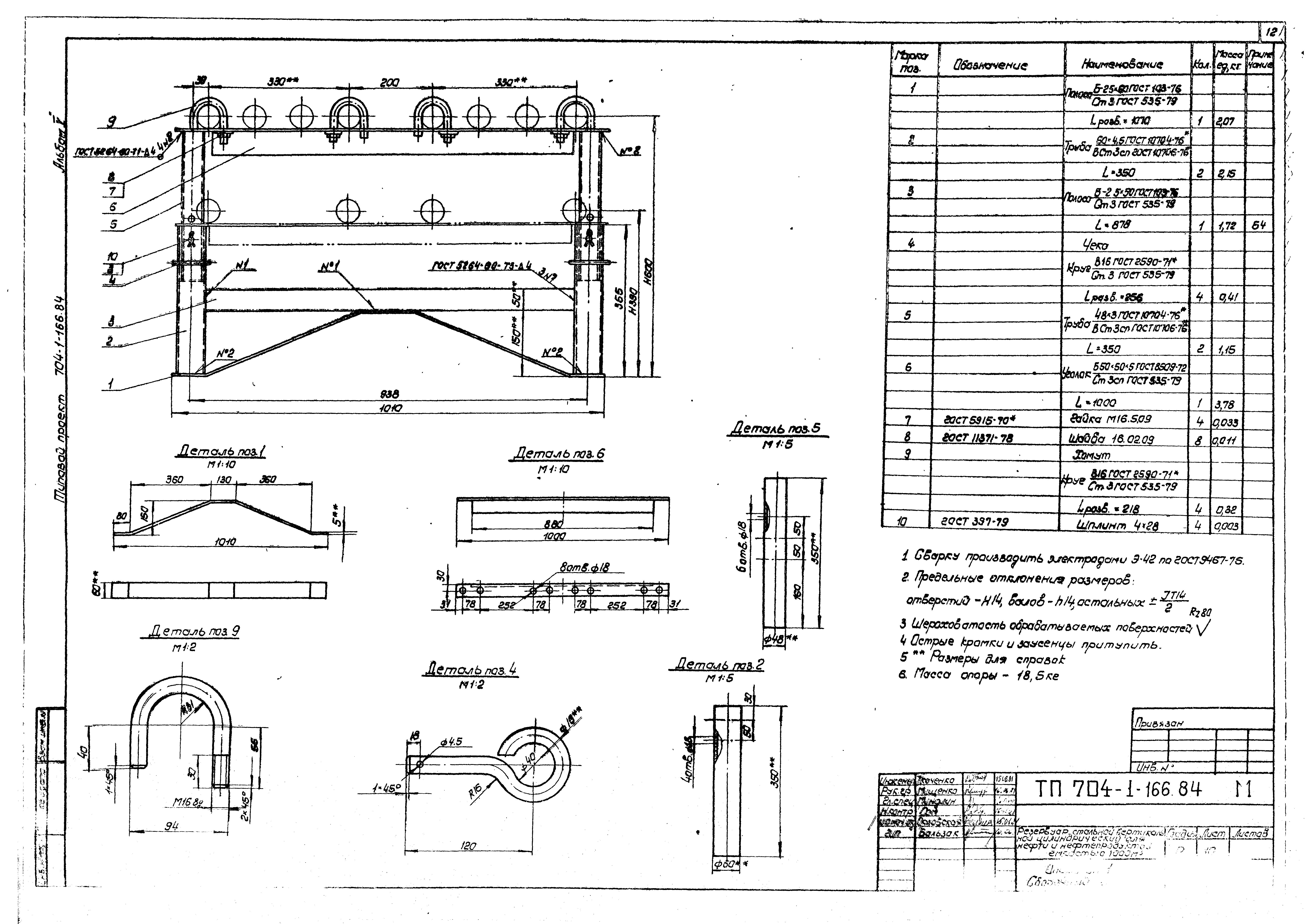
Скачать Типовой проект 704-1-166.84 Альбом V. Оборудование резервуара без понтона для нефти и нефтепродуктов

Дата актуализации: 10.08.2017

Типовой проект 704-1-166.84

Альбом V. Оборудование резервуара без понтона для нефти и нефтепродуктов

Обозначение: Типовой проект 704-1-166.84
Обозначение англ: 704-1-166.84
Статус:заменен
Название рус.:Альбом V. Оборудование резервуара без понтона для нефти и нефтепродуктов
Дата добавления в базу:01.09.2013
Дата актуализации:05.05.2017
Дата введения:01.02.1993
Разработан: Южгипронефтепровод Миннефтепрома СССР
Утверждён:16.06.1983 Миннефтепром (Minnefteprom )
Расположен в:Техническая документация Строительство Справочные документы Типовые строительные конструкции, изделия и узлы Общероссийский строительный каталог Промышленные предприятия, здания и сооружения Предприятия, здания и сооружения складские Резервуары и склады для нефти и нефтепродуктов Резервуары стальные для нефти и нефтепродуктов
Чем заменён:
Типовой проект 704-1-166.84Типовой проект 704-1-166.84Типовой проект 704-1-166.84Типовой проект 704-1-166.84Типовой проект 704-1-166.84Типовой проект 704-1-166.84Типовой проект 704-1-166.84Типовой проект 704-1-166.84Типовой проект 704-1-166.84Типовой проект 704-1-166.84Типовой проект 704-1-166.84Типовой проект 704-1-166.84Типовой проект 704-1-166.84Типовой проект 704-1-166.84Типовой проект 704-1-166.84Типовой проект 704-1-166.84Типовой проект 704-1-166.84Типовой проект 704-1-166.84Типовой проект 704-1-166.84Типовой проект 704-1-166.84Типовой проект 704-1-166.84Типовой проект 704-1-166.84Типовой проект 704-1-166.84Типовой проект 704-1-166.84Типовой проект 704-1-166.84Типовой проект 704-1-166.84Типовой проект 704-1-166.84Типовой проект 704-1-166.84Типовой проект 704-1-166.84

© 2013 Ёшкин Кот :-) Карта сайта