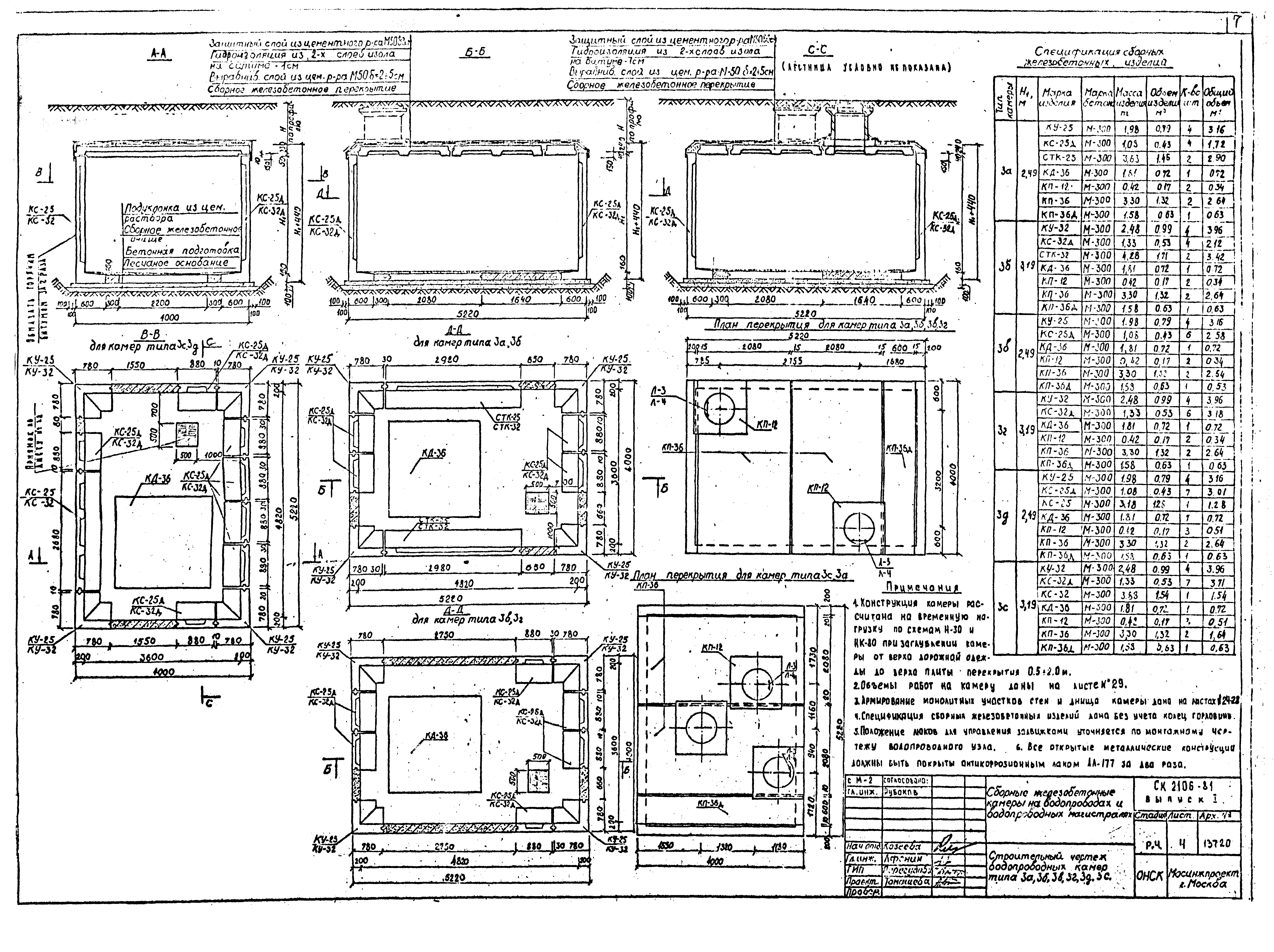
Скачать Альбом СК 2106-81 Сборные железобетонные камеры на водоводах и водопроводных магистралях. Строительная частьДата актуализации: 10.08.2017 Альбом СК 2106-81
Сборные железобетонные камеры на водоводах и водопроводных магистралях. Строительная частьОбозначение: | Альбом СК 2106-81 | Обозначение англ: | СК 2106-81 | Статус: | не определен законодательством | Название рус.: | Сборные железобетонные камеры на водоводах и водопроводных магистралях. Строительная часть | Дата добавления в базу: | 01.09.2013 | Дата актуализации: | 05.05.2017 | Дата введения: | 01.01.1981 | Разработан: | Мосинжпроект
| Утверждён: | 01.01.1981 Мосинжпроект (Mosinzhproject )
| Расположен в: |
|
                                          
|