Информационная система
«Ёшкин Кот»

Скачать базу одним архивом
Скачать обновления
История создания базы
Карта сайта

Скачать Типовой проект 704-1-254с.92 Альбом 4. Тепловая изоляция

Дата актуализации: 10.08.2017

Типовой проект 704-1-254с.92

Альбом 4. Тепловая изоляция

Обозначение: Типовой проект 704-1-254с.92
Обозначение англ: 704-1-254с.92
Статус:не определен законодательством
Название рус.:Альбом 4. Тепловая изоляция
Дата добавления в базу:01.09.2013
Дата актуализации:05.05.2017
Дата введения:13.10.1992
Оглавление:Общие данные
Тепловая изоляция. Общий вид
Тепловая изоляция. Разрезы, узлы
Тепловая изоляция. Бандажи приварные. Общий вид, разрезы
Тепловая изоляция. Бандажи приварные. Разрезы, узлы
Тепловая изоляция крыши. Общий вид. Разрезы
Тепловая изоляция крыши. Разрезы, узлы
Приварные детали на крыше резервуара. Общий вид, разрезы
Тепловая изоляция люка Ду500 и люка овального 600х900
ТИИ.01 Полуфутляр П-1
ТИИ.02 Элемент стяжного бандажа Б-1
ТИИ.03 Направляющая
ТИИ.04 Решетка
ТИИ.05 Элемент покрытия
ТИИ.06 Полуфутляр П-2
ТИИ.07 Элемент стяжного бандажа левый Б-2
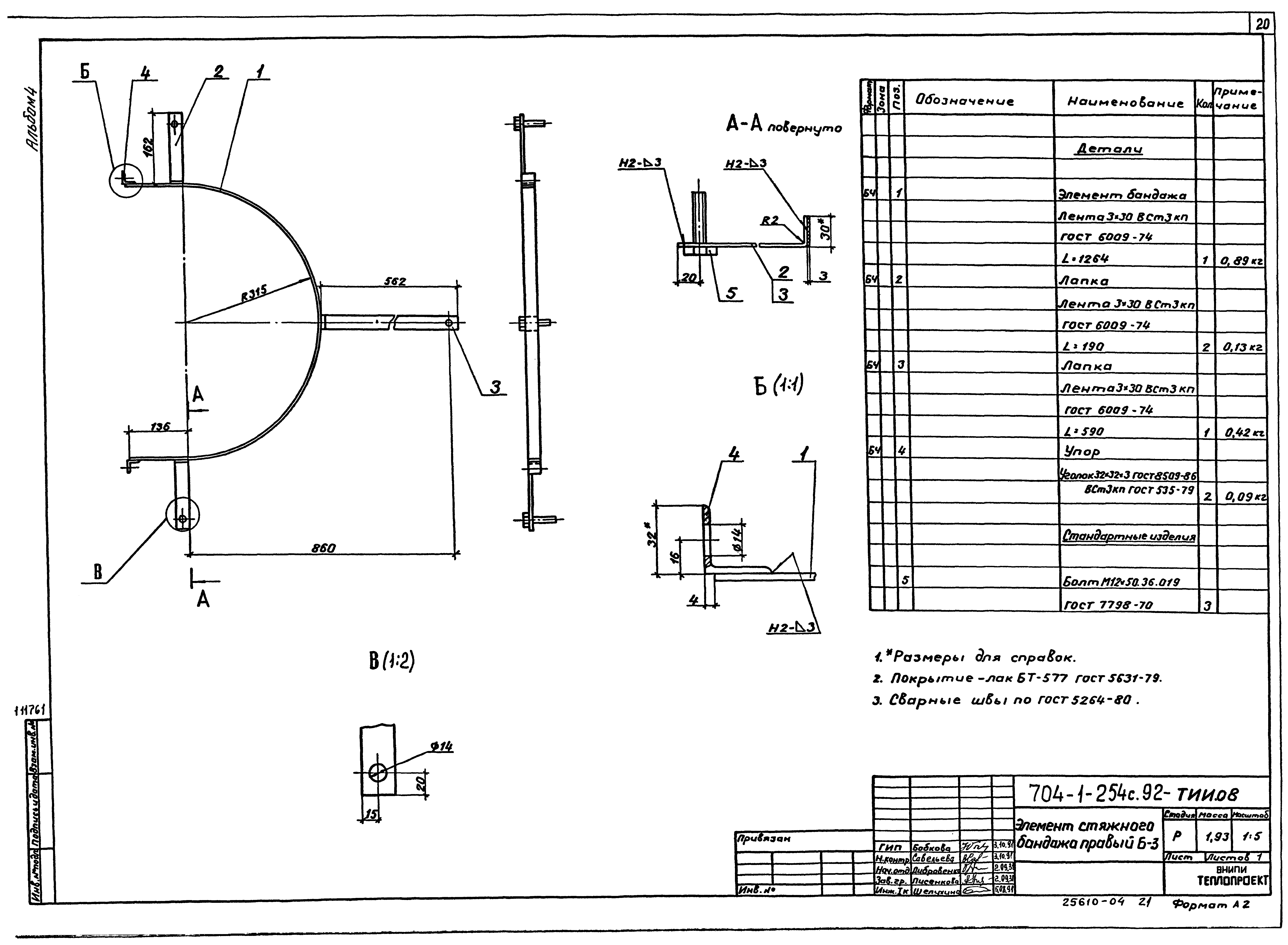
ТИИ.08 Элемент стяжного бандажа правый Б-3
ТИИ.09 Козырек
Разработан: ВНИПИТеплопроект
Утверждён:13.10.1992 Сантехниипроект (35)
Расположен в:Техническая документация Строительство Справочные документы Типовые строительные конструкции, изделия и узлы Общероссийский строительный каталог Промышленные предприятия, здания и сооружения Предприятия, здания и сооружения складские Резервуары и склады для нефти и нефтепродуктов Резервуары стальные для нефти и нефтепродуктов
Типовой проект 704-1-254с.92Типовой проект 704-1-254с.92Типовой проект 704-1-254с.92Типовой проект 704-1-254с.92Типовой проект 704-1-254с.92Типовой проект 704-1-254с.92Типовой проект 704-1-254с.92Типовой проект 704-1-254с.92Типовой проект 704-1-254с.92Типовой проект 704-1-254с.92Типовой проект 704-1-254с.92Типовой проект 704-1-254с.92Типовой проект 704-1-254с.92Типовой проект 704-1-254с.92Типовой проект 704-1-254с.92Типовой проект 704-1-254с.92Типовой проект 704-1-254с.92Типовой проект 704-1-254с.92Типовой проект 704-1-254с.92Типовой проект 704-1-254с.92Типовой проект 704-1-254с.92Типовой проект 704-1-254с.92

© 2013 Ёшкин Кот :-) Карта сайта