Информационная система
«Ёшкин Кот»

Скачать базу одним архивом
Скачать обновления
История создания базы
Карта сайта

Скачать Типовой проект 704-1-170.84 Альбом VI. Проект производства монтажных работ. Монтаж резервуара

Дата актуализации: 10.08.2017

Типовой проект 704-1-170.84

Альбом VI. Проект производства монтажных работ. Монтаж резервуара

Обозначение: Типовой проект 704-1-170.84
Обозначение англ: 704-1-170.84
Статус:не действует
Название рус.:Альбом VI. Проект производства монтажных работ. Монтаж резервуара
Дата добавления в базу:01.09.2013
Дата актуализации:05.05.2017
Оглавление:ТП 704-1-170.84 Содержание
ТП 704-1-170.84 Технология монтажа резервуара
ТП 704-1-107.84 Пояснительная записка
ТП 704-1-107.84 Общий вид
ТП 704-1-170.84 Монтаж окраек днища
ТП 704-1-170.84 Монтаж центральной части днища
ТП 704-1-170.84 Разметка днища
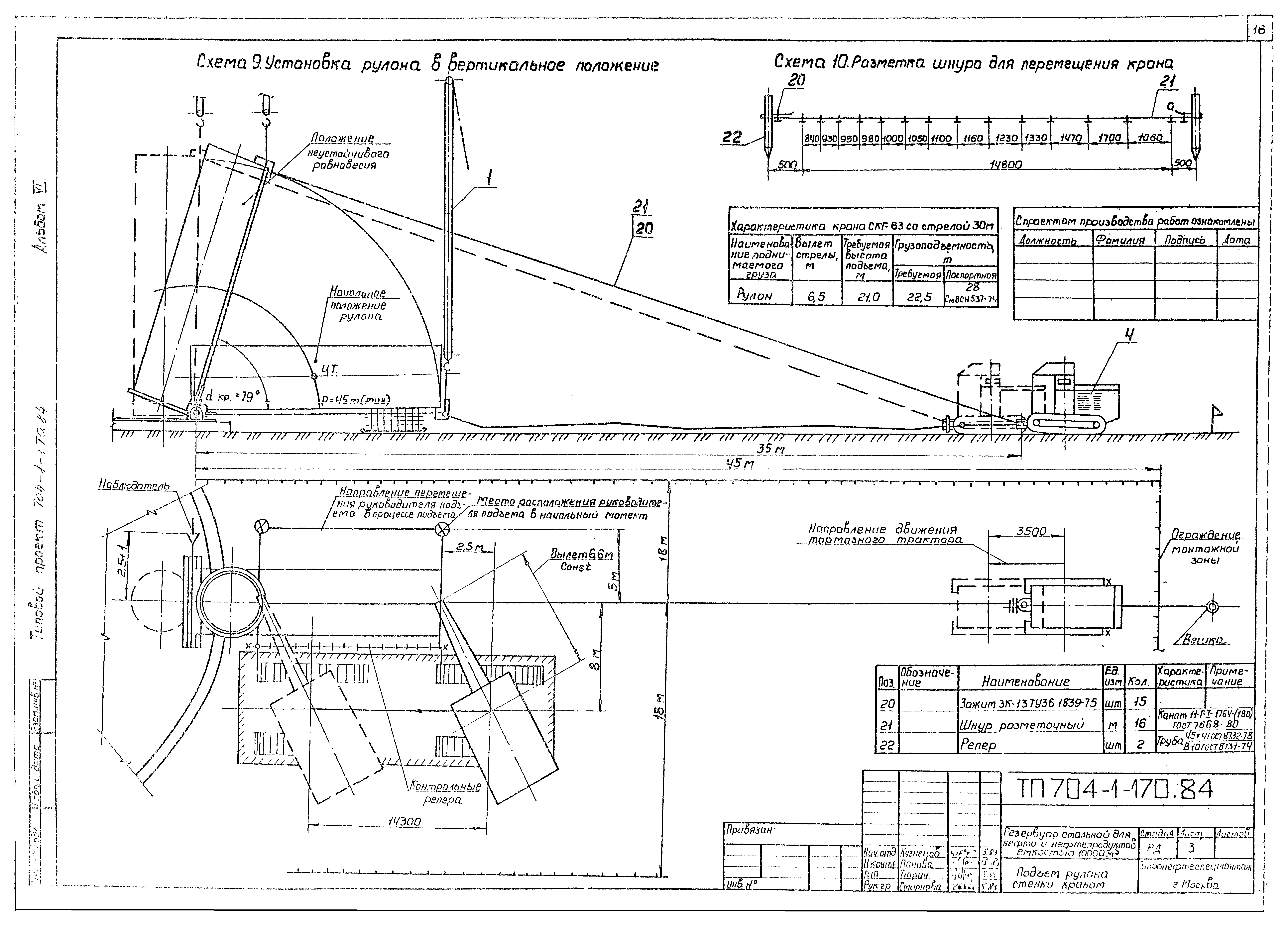
ТП 704-1-107.84 Подъем рулона стенки краном
ТП 704-1-170.84 Установка монтажной стойки
ТП 704-1-170.84 Развертывание рулона стенки
ТП 704-1-170.84 Монтаж опорного кольца
ТП 704-1-170.84 Монтаж покрытия
ТП 704-1-170.84 Формообразование концевых участков полотнищ стенки
ТП 704-1-170.84 Замыкание вертикального монтажного стыка стенки
ТП 704-1-170.84 Демонтаж монтажной стойки
ТП 704-1-170.84 Схемы строповки
ТП 704-1-170.84 Технология монтажа понтона
ТП 704-1-170.84 Пояснительная записка
ТП 704-1-170.84 Общий вид
ТП 704-1-170.84 Разметка днищ
ТП 704-1-170.84 Монтаж элементов понтона
ТП 704-1-170.84 Установка труб замера уровня
ТП 704-1-170.84 Установка кожуха пробоотборника
ТП 704-1-170.84 Установка понтона на опорные стойки
ТП 704-1-170.84 Монтаж уплотняющего затвора
ТП 704-1-170.84 Технология сварки резервуара
ТП 704-1-170.84 Пояснительная записка
ТП 704-1-170.84 Сборка и предварительная сварка окраек днища
ТП 704-1-170.84 Сварка днища
ТП 704-1-170.84 Сварка при развертывании стенки резервуара
ТП 704-1-170.84 Сварка вертикальных стыков стенки резервуара
ТП 704-1-170.84 Сварка опорного кольца
ТП 704-1-170.84 Сварка щитов покрытия при укрупнении
ТП 704-1-170.84 Сварка покрытия в проектном положении
ТП 704-1-170.84 Сварка технологических вводов
ТП 704-1-170.84 Технология сварки резервуара с понтоном
ТП 704-1-170.84 Пояснительная записка
ТП 704-1-170.84 Приварка подкладных листов под опорные стойки понтона
ТП 704-1-170.84 Сварка днища понтона
ТП 704-1-170.84 Сварка элементов понтона
ТП 704-1-170.84 Разделка кромок полотнища стенки в зоне вертикального монтажного стыка
ТП 704-1-170.84 Сварка технологических вводов
Разработан: Гипронефтеспецмонтаж Минмонтажспецстроя СССР (Giproneftespetsmontazh, Minmontazhspetsstroy (USSR) )
Утверждён:23.05.1983 Миннефтепром (Minnefteprom )
Расположен в:Техническая документация Строительство Справочные документы Типовые строительные конструкции, изделия и узлы Общероссийский строительный каталог Промышленные предприятия, здания и сооружения Предприятия, здания и сооружения складские Резервуары и склады для нефти и нефтепродуктов Резервуары стальные для нефти и нефтепродуктов
Типовой проект 704-1-170.84Типовой проект 704-1-170.84Типовой проект 704-1-170.84Типовой проект 704-1-170.84Типовой проект 704-1-170.84Типовой проект 704-1-170.84Типовой проект 704-1-170.84Типовой проект 704-1-170.84Типовой проект 704-1-170.84Типовой проект 704-1-170.84Типовой проект 704-1-170.84Типовой проект 704-1-170.84Типовой проект 704-1-170.84Типовой проект 704-1-170.84Типовой проект 704-1-170.84Типовой проект 704-1-170.84Типовой проект 704-1-170.84Типовой проект 704-1-170.84Типовой проект 704-1-170.84Типовой проект 704-1-170.84Типовой проект 704-1-170.84Типовой проект 704-1-170.84Типовой проект 704-1-170.84Типовой проект 704-1-170.84Типовой проект 704-1-170.84Типовой проект 704-1-170.84Типовой проект 704-1-170.84Типовой проект 704-1-170.84Типовой проект 704-1-170.84Типовой проект 704-1-170.84Типовой проект 704-1-170.84Типовой проект 704-1-170.84Типовой проект 704-1-170.84Типовой проект 704-1-170.84Типовой проект 704-1-170.84Типовой проект 704-1-170.84Типовой проект 704-1-170.84Типовой проект 704-1-170.84Типовой проект 704-1-170.84Типовой проект 704-1-170.84Типовой проект 704-1-170.84Типовой проект 704-1-170.84Типовой проект 704-1-170.84Типовой проект 704-1-170.84Типовой проект 704-1-170.84Типовой проект 704-1-170.84Типовой проект 704-1-170.84Типовой проект 704-1-170.84Типовой проект 704-1-170.84Типовой проект 704-1-170.84Типовой проект 704-1-170.84Типовой проект 704-1-170.84Типовой проект 704-1-170.84Типовой проект 704-1-170.84Типовой проект 704-1-170.84Типовой проект 704-1-170.84Типовой проект 704-1-170.84Типовой проект 704-1-170.84Типовой проект 704-1-170.84Типовой проект 704-1-170.84Типовой проект 704-1-170.84Типовой проект 704-1-170.84Типовой проект 704-1-170.84Типовой проект 704-1-170.84Типовой проект 704-1-170.84Типовой проект 704-1-170.84Типовой проект 704-1-170.84

© 2013 Ёшкин Кот :-) Карта сайта