Информационная система
«Ёшкин Кот»

Скачать базу одним архивом
Скачать обновления
История создания базы
Карта сайта

Скачать Типовой проект 704-1-167.84 Альбом IV. Оборудование резервуаров с понтоном для нефти и нефтепродуктов

Дата актуализации: 10.08.2017

Типовой проект 704-1-167.84

Альбом IV. Оборудование резервуаров с понтоном для нефти и нефтепродуктов

Обозначение: Типовой проект 704-1-167.84
Обозначение англ: 704-1-167.84
Статус:не действует
Название рус.:Альбом IV. Оборудование резервуаров с понтоном для нефти и нефтепродуктов
Дата добавления в базу:01.09.2013
Дата актуализации:05.05.2017
Оглавление:Содержание
Механическое, технологическое оборудование
   Общие данные
   Оборудование резервуара. Монтажный чертеж
   Патрубок вентилируемый ПВ-250. Сборочный чертеж
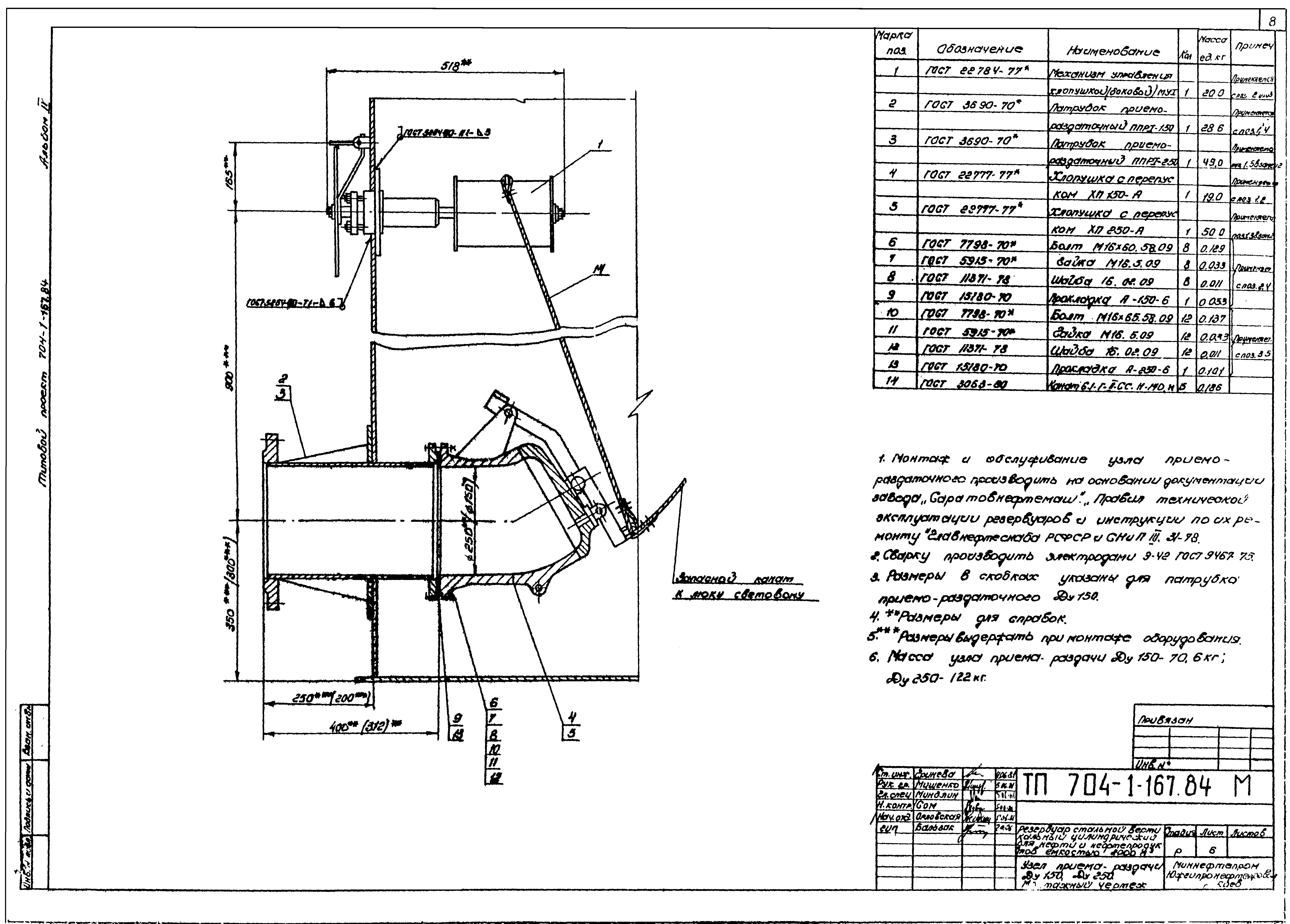
   Узел приема-раздачи Ду150; Ду250. Монтажный чертеж
   Узел приема-раздачи Ду400; Ду500. Монтажный чертеж
Пожаротушение
   Общие данные
   Оборудование резервуара средствами пожаротушения при интенсивности 0,05 л/с, кв. м (передвижная установка)
   Оборудование резервуара средствами пожаротушения при интенсивности 0,05 л/с, кв. м (стационарная установка)
   Оборудование резервуара средствами пожаротушения при интенсивности 0,08 л/с, кв. м (передвижная установка)
   Оборудование резервуара средствами пожаротушения при интенсивности 0,058л/с, кв. м (стационарная установка)
Электротехническая часть
   Молниезащита
Автоматика
   Общие данные
   Функциональная схема автоматизации
   Установка указателя уровня
   Установка сниженного пробоотборника
   Установка термоизвещателя у сигнализатора уровня
Разработан: Южгипронефтепровод Миннефтепрома СССР
Утверждён:16.06.1983 Миннефтепром (Minnefteprom )
Расположен в:Техническая документация Строительство Справочные документы Типовые строительные конструкции, изделия и узлы Общероссийский строительный каталог Промышленные предприятия, здания и сооружения Предприятия, здания и сооружения складские Резервуары и склады для нефти и нефтепродуктов Резервуары стальные для нефти и нефтепродуктов
Типовой проект 704-1-167.84Типовой проект 704-1-167.84Типовой проект 704-1-167.84Типовой проект 704-1-167.84Типовой проект 704-1-167.84Типовой проект 704-1-167.84Типовой проект 704-1-167.84Типовой проект 704-1-167.84Типовой проект 704-1-167.84Типовой проект 704-1-167.84Типовой проект 704-1-167.84Типовой проект 704-1-167.84Типовой проект 704-1-167.84Типовой проект 704-1-167.84Типовой проект 704-1-167.84Типовой проект 704-1-167.84Типовой проект 704-1-167.84Типовой проект 704-1-167.84Типовой проект 704-1-167.84Типовой проект 704-1-167.84Типовой проект 704-1-167.84

© 2013 Ёшкин Кот :-) Карта сайта