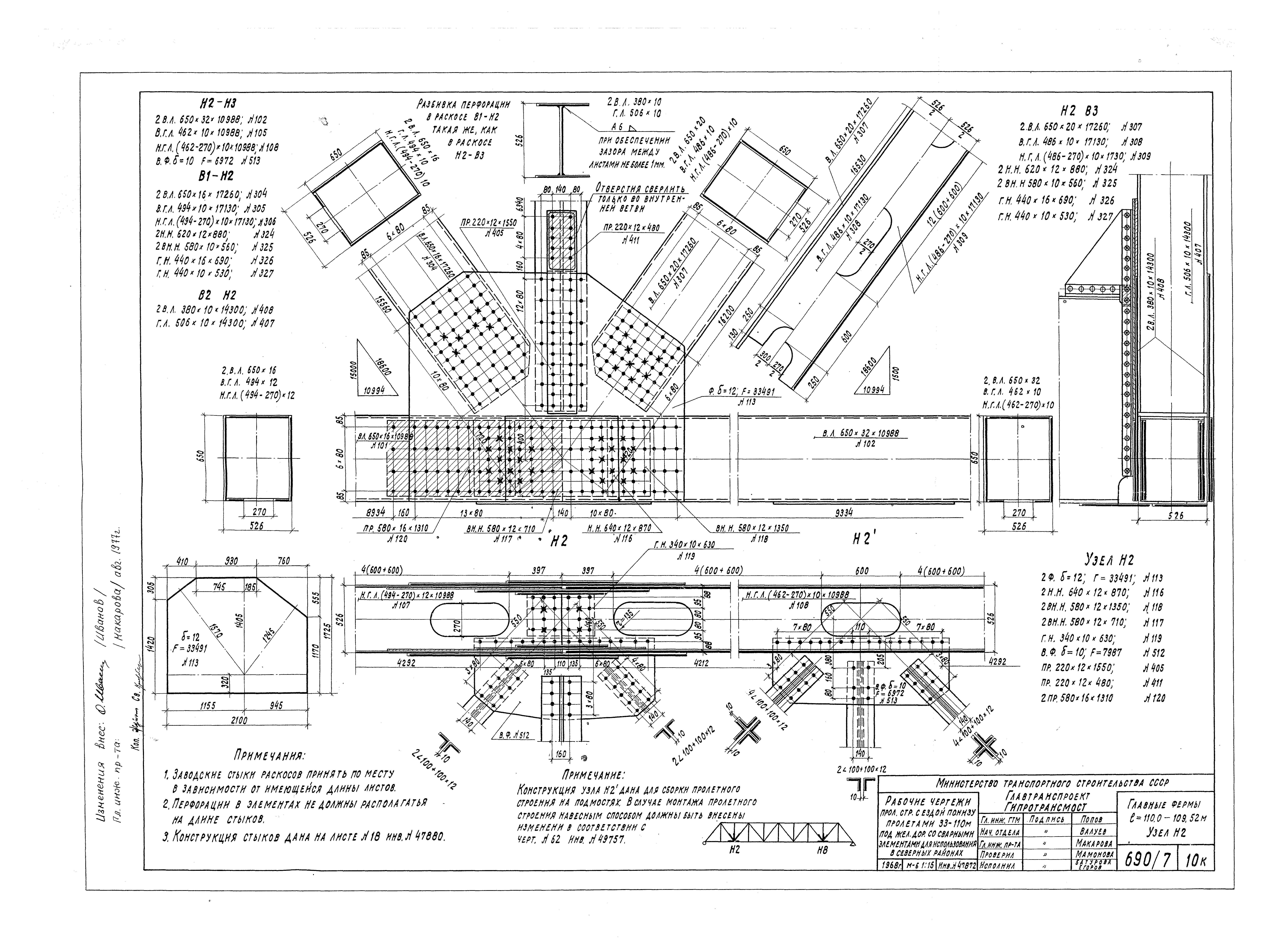
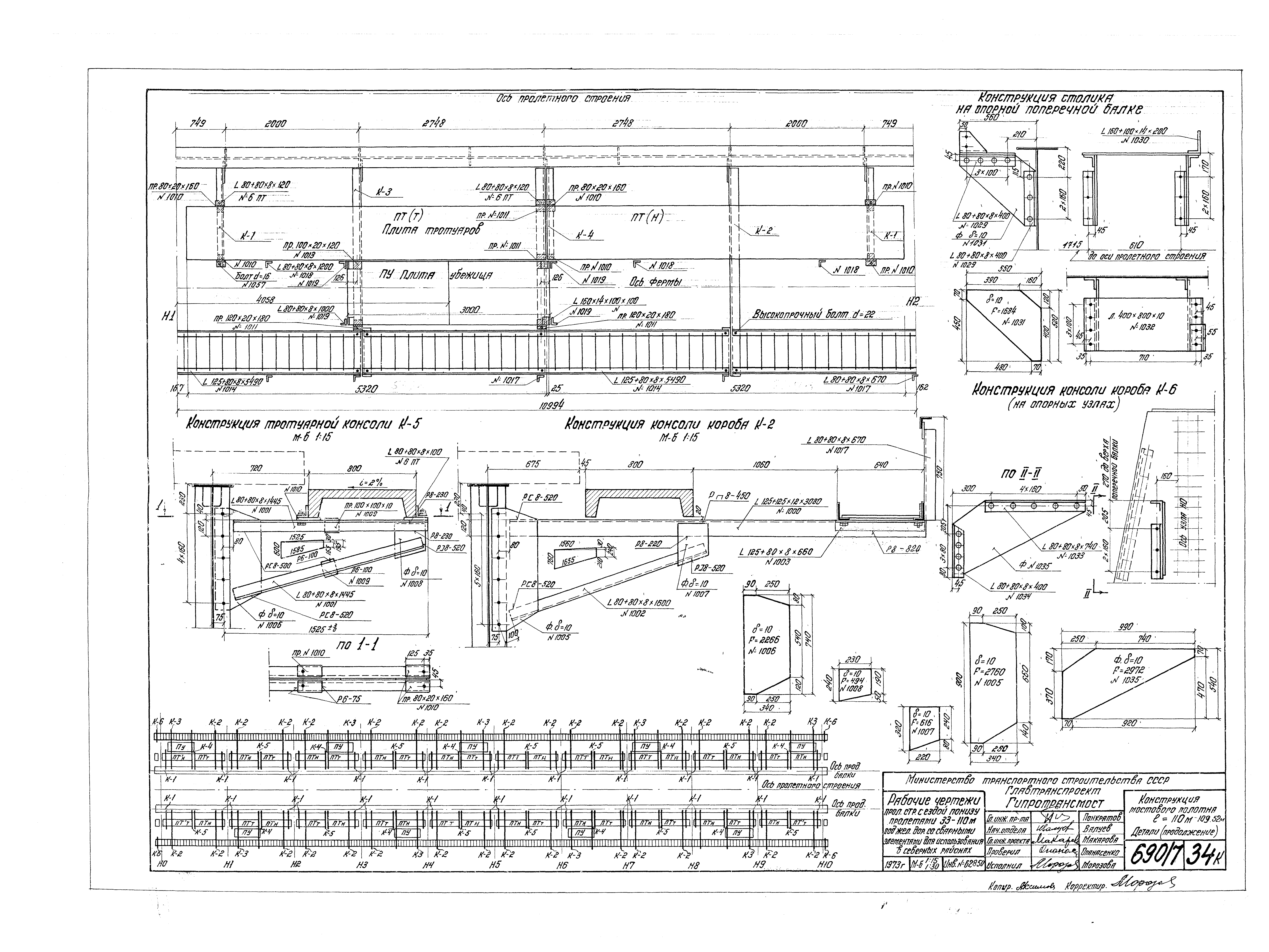
Скачать Типовой проект 3.501-30/75 Выпуск 7. Пролетное строение L= 110,0 - 109,52 м. Рабочие чертежиДата актуализации: 10.08.2017 Типовой проект 3.501-30/75
Выпуск 7. Пролетное строение L= 110,0 - 109,52 м. Рабочие чертежиОбозначение: | Типовой проект 3.501-30/75 | Обозначение англ: | 3.501-30/75 | Статус: | заменен | Название рус.: | Выпуск 7. Пролетное строение L= 110,0 - 109,52 м. Рабочие чертежи | Дата добавления в базу: | 01.09.2013 | Дата актуализации: | 05.05.2017 | Дата введения: | 01.09.1988 | Разработан: | Гипротрансмост Минтрансстроя СССР
| Утверждён: | 19.12.1975 МПС (Ministry of Railroads П-36830)
| Расположен в: |
| Чем заменён: | |
                                                                                              
|