Информационная система
«Ёшкин Кот»

Скачать базу одним архивом
Скачать обновления
История создания базы
Карта сайта

Скачать Серия 3.501-35 Литые опорные части под металлические пролетные строения железнодорожных мостов. Рабочие чертежи

Дата актуализации: 10.08.2017

Серия 3.501-35

Литые опорные части под металлические пролетные строения железнодорожных мостов. Рабочие чертежи

Обозначение: Серия 3.501-35
Обозначение англ: Series 3.501-35
Статус:отменен
Название рус.:Литые опорные части под металлические пролетные строения железнодорожных мостов. Рабочие чертежи
Дата добавления в базу:01.09.2013
Дата актуализации:05.05.2017
Дата введения:01.05.1999
Оглавление:ТП 3.501-35 Титульный лист
ТП 3.501-35 Состав проекта
ТП 3.501-35 Пояснительная записка
ТП 3.501-35 Тип 1 Конструкция
ТП 3.501-35 Тип 1 Расчет
ТП 3.501-35 Тип 2 Конструкция
ТП 3.501-35 Тип 2 Расчет
ТП 3.501-35 Тип 3 Конструкция
ТП 3.501-35 Тип 3 Расчет
ТП 3.501-35 Тип 4 Конструкция
ТП 3.501-35 Тип 4 Расчет
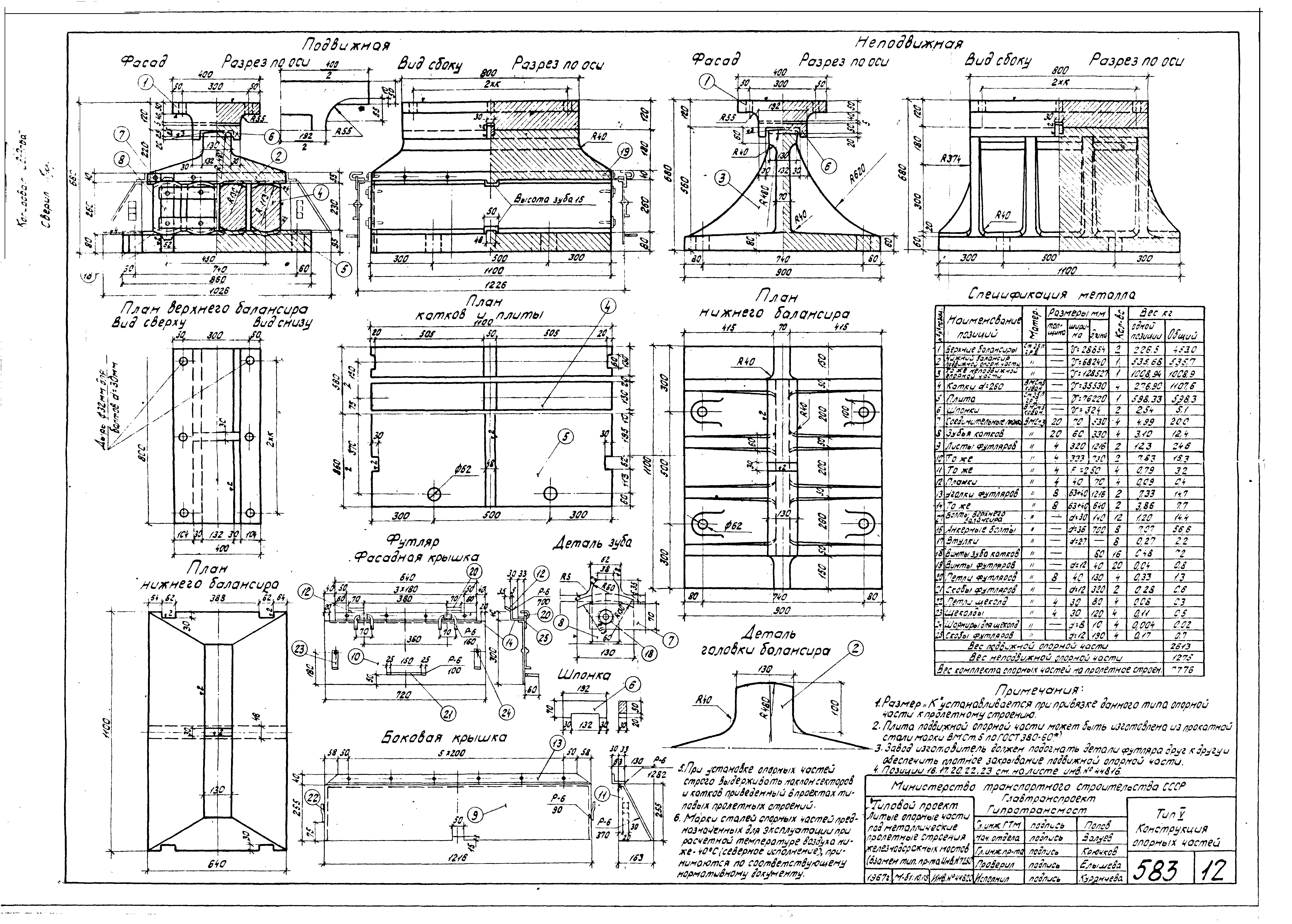
ТП 3.501-35 Тип 5 Конструкция
ТП 3.501-35 Тип 5 Расчет
ТП 3.501-35 Тип 6 Конструкция
ТП 3.501-35 Тип 6 Расчет
Разработан: Гипротрансмост
Утверждён:03.04.1968 Министерство путей сообщения СССР (USSR Ministry of Railroads П-9230)
Расположен в:Техническая документация Строительство Справочные документы Типовые строительные конструкции, изделия и узлы Общероссийский строительный каталог Строительные конструкции, изделия и узлы зданий и сооружений для всех видов строительства Конструкции и изделия сооружений и оборудования зданий Надземные сооружения Конструкции и сооружения транспорта Пролетные строения мостов, мосты и путепроводы
Серия 3.501-35Серия 3.501-35Серия 3.501-35Серия 3.501-35Серия 3.501-35Серия 3.501-35Серия 3.501-35Серия 3.501-35Серия 3.501-35Серия 3.501-35Серия 3.501-35Серия 3.501-35Серия 3.501-35Серия 3.501-35Серия 3.501-35

© 2013 Ёшкин Кот :-) Карта сайта