Информационная система
«Ёшкин Кот»

Скачать базу одним архивом
Скачать обновления
История создания базы
Карта сайта

Скачать Шифр А8-92 Прокладка проводов и кабелей в коробах. Материалы для проектирования и рабочие чертежи

Дата актуализации: 10.08.2017

Шифр А8-92

Прокладка проводов и кабелей в коробах. Материалы для проектирования и рабочие чертежи

Обозначение: Шифр А8-92
Обозначение англ: А8-92
Статус:cправочные материалы, мп, тпр
Название рус.:Прокладка проводов и кабелей в коробах. Материалы для проектирования и рабочие чертежи
Дата добавления в базу:01.09.2013
Дата актуализации:05.05.2017
Дата введения:01.12.1992
Область применения:Альбом предназначен для выполнения проектных и монтажных работ по креплению к строительным конструкциям одноканальных проводов и прокладки в них проводов и кабелей напряжением до 100 В
Оглавление:А8-92 Содержание
А8-92-ПЗ Пояснительная записка
А8-92-01 Таблицы выбора проводов и кабелей, прокладываемых в коробах
А8-92-02 Номенклатура коробов Самарского завода треста "Электромонтаж"
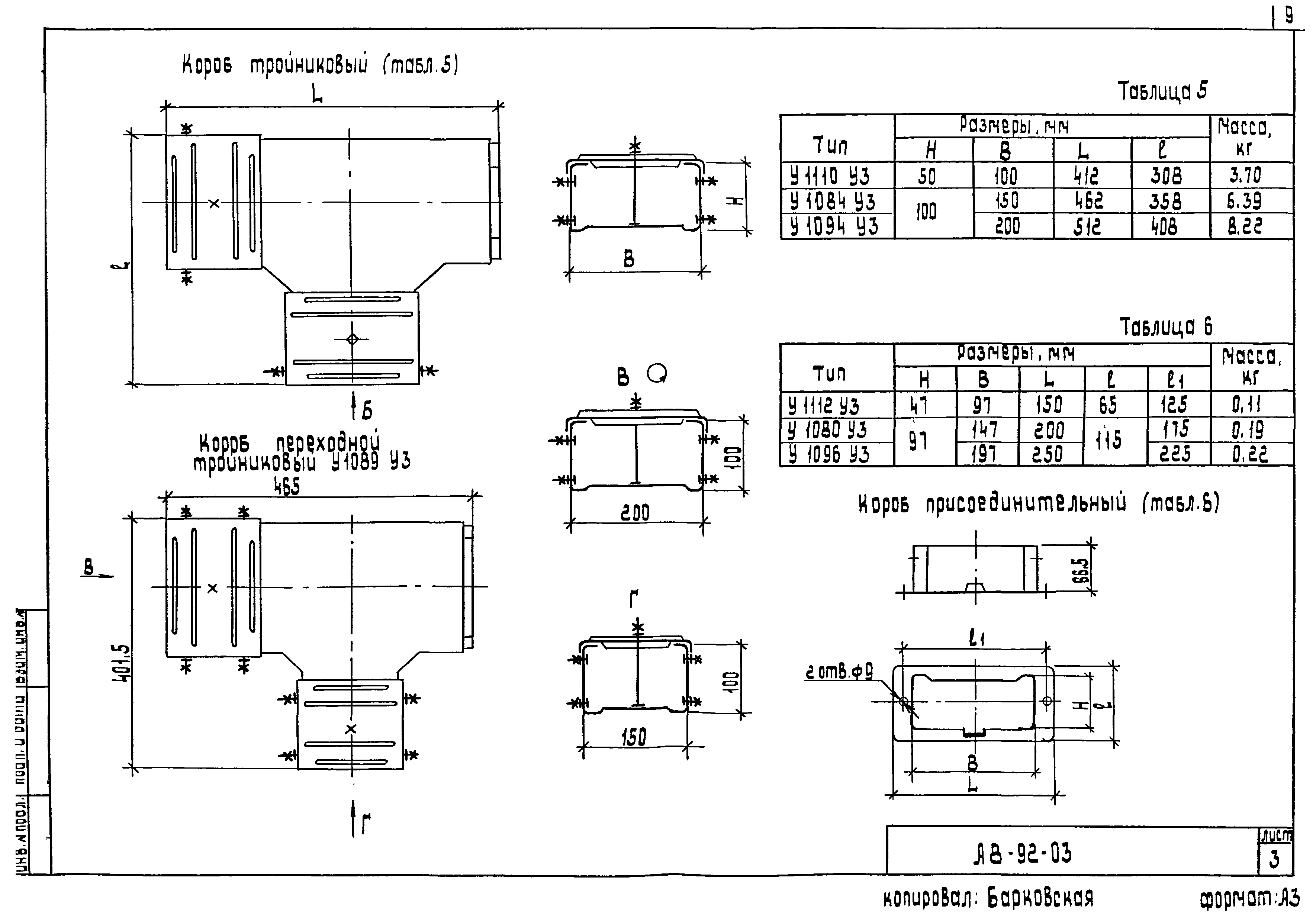
А8-92-03 Габаритные чертежи
А8-92-04 Короб подгоночный
А8-92-05 Проход короба через стену или перекрытие
А8-92-06 Пересечение коробом температурного шва здания. Пример.
А8-92-07 Прокладка короба по стене. Вариант 1. Пример.
А8-92-08 Прокладка короба по стене. Вариант 2. Пример.
А8-92-09 Прокладка коробов под перекрытием. Вариант 1. Пример.
А8-92-10 Прокладка короба под перекрытием. Вариант 2. Пример.
А8-92-11 Прокладка короба по железобетонной балке. Пример.
А8-92-12 Прокладка короба по металлической двутавровой балке. Пример.
А8-92-13 Прокладка короба по металлической балке из уголков. Пример.
А8-92-14 Прокладка коробов к протяжному ящику и электротехническому устройству. Пример.
А8-92-15 Присоединение короба к протяжному ящику или электротехническому устройству
А8-92-16 Конструкция для горизонтального крепления короба на стене
А8-92-17 Конструкция для горизонтального крепления двух коробов на стене
А8-92-18 Конструкция для вертикального крепления короба. Тип 1.
А8-92-19 Конструкция для вертикального крепления короба. Тип 2.
А8-92-20 Конструкция для крепления коробы под перекрытием
А8-92-21 Конструкция для крепления двух коробов под перекрытием
А8-92-22 Конструкция для крепления короба на балке
А8-92-23 Конструкция для крепления двух коробов на балке
А8-92-24 Конструкция для крепления коробов на балке из уголков
А8-92-25 Кронштейн
А8-92-26 Планка
А8-92-27 Шпилька
А8-92-28 Шайба
А8-92-29 Подвес
А8-92-30 Штифт
Разработан: ВНИПИ Тяжпромэлектропроект им. Ф.Б. Якубовского
Утверждён:16.11.1992 ВНИПИ Тяжпромэлектропроект им. Ф.Б. Якубовского (F.B.Yakubovskiy Tyazhpromelektroproject VNIPI 75)
Расположен в:Техническая документация Строительство Справочные документы Типовые строительные конструкции, изделия и узлы Разработанные другими министерствами, ведомствами и организациями
Шифр А8-92Шифр А8-92Шифр А8-92Шифр А8-92Шифр А8-92Шифр А8-92Шифр А8-92Шифр А8-92Шифр А8-92Шифр А8-92Шифр А8-92Шифр А8-92Шифр А8-92Шифр А8-92Шифр А8-92Шифр А8-92Шифр А8-92Шифр А8-92Шифр А8-92Шифр А8-92Шифр А8-92Шифр А8-92Шифр А8-92Шифр А8-92Шифр А8-92Шифр А8-92Шифр А8-92Шифр А8-92Шифр А8-92Шифр А8-92Шифр А8-92Шифр А8-92

© 2013 Ёшкин Кот :-) Карта сайта