Информационная система
«Ёшкин Кот»

Скачать базу одним архивом
Скачать обновления
История создания базы
Карта сайта

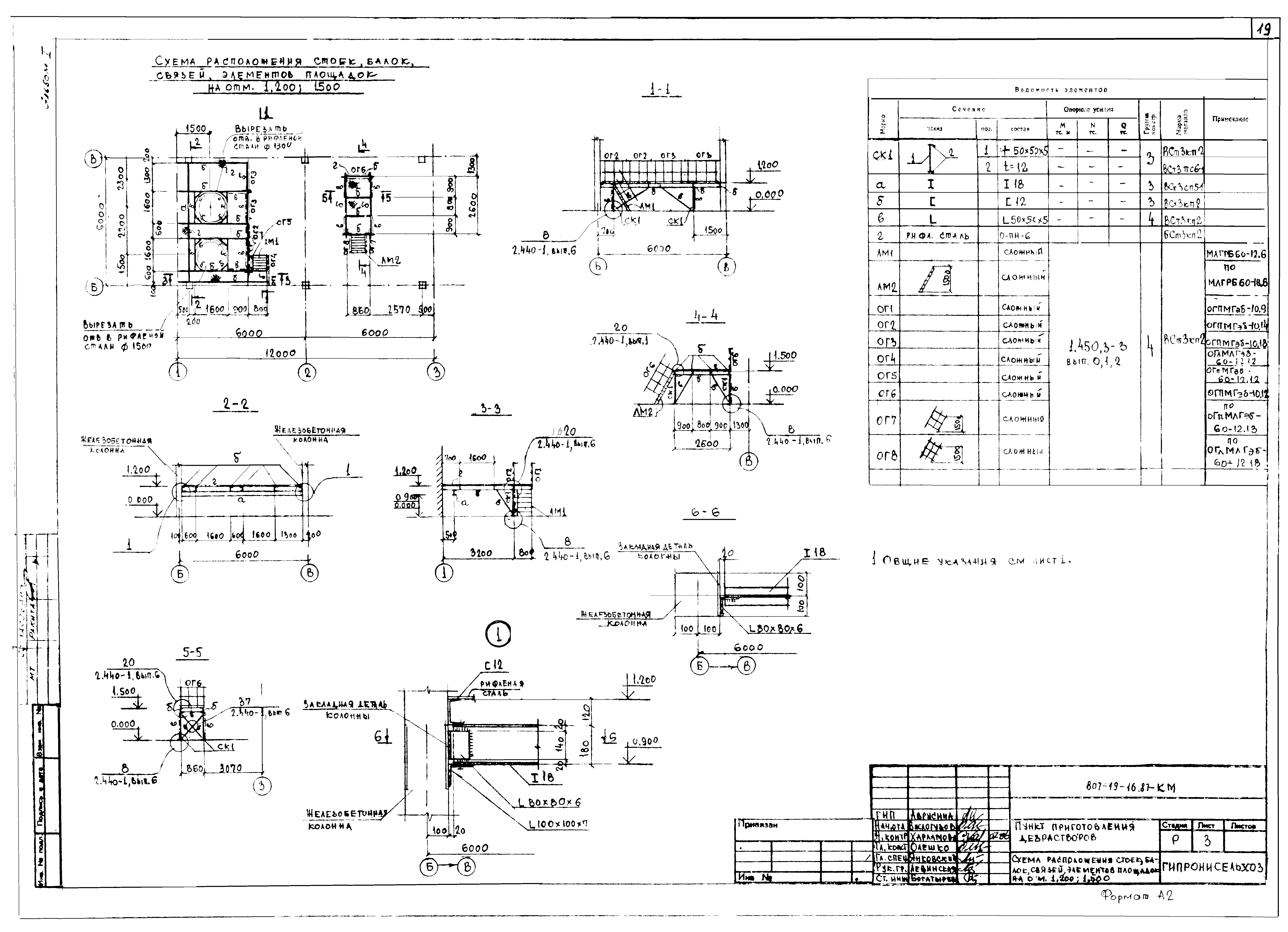
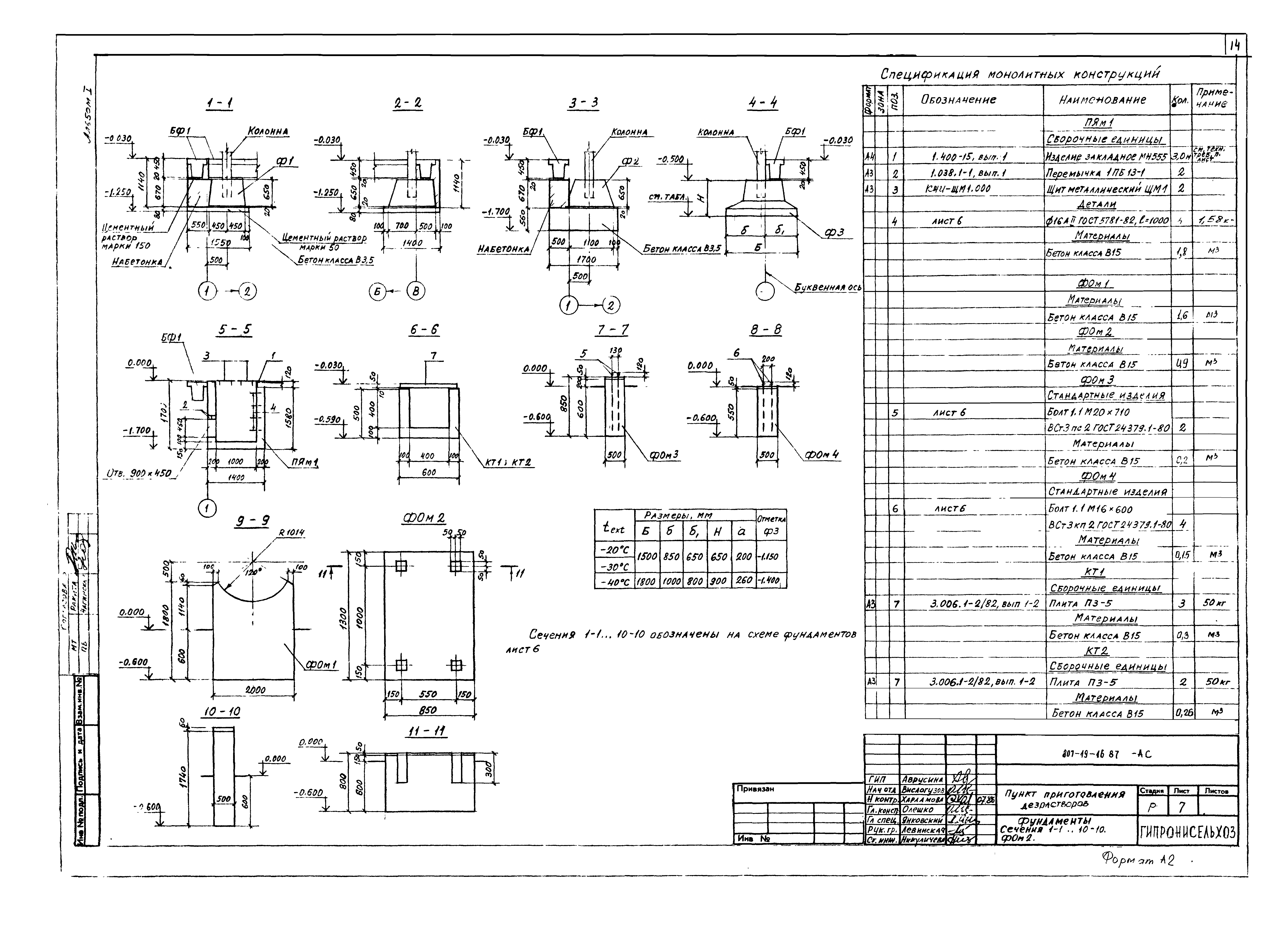
Скачать Типовой проект 807-19-16.87 Альбом I. Общая пояснительная записка. Технология производства. Архитектурно-строительные решения. Конструкции металлические. Внутренние водопровод и канализация. Отопление и вентиляция. Электроосвещение и силовое электрооборудование. Автоматизация отопления и вентиляции

Дата актуализации: 10.08.2017

Типовой проект 807-19-16.87

Альбом I. Общая пояснительная записка. Технология производства. Архитектурно-строительные решения. Конструкции металлические. Внутренние водопровод и канализация. Отопление и вентиляция. Электроосвещение и силовое электрооборудование. Автоматизация отопления и вентиляции

Обозначение: Типовой проект 807-19-16.87
Обозначение англ: 807-19-16.87
Статус:не определен законодательством
Название рус.:Альбом I. Общая пояснительная записка. Технология производства. Архитектурно-строительные решения. Конструкции металлические. Внутренние водопровод и канализация. Отопление и вентиляция. Электроосвещение и силовое электрооборудование. Автоматизация отопления и вентиляции
Дата добавления в базу:01.09.2013
Дата актуализации:05.05.2017
Дата введения:08.10.1987
Разработан: ГипроНИсельхоз (Институт Гипронисельхоз )
Утверждён:21.09.1987 Госагропром СССР (USSR Gosagroprom 805-42/18)
Расположен в:Техническая документация Строительство Справочные документы Типовые строительные конструкции, изделия и узлы Общероссийский строительный каталог Сельскохозяйственные предприятия, здания и сооружения Здания и сооружения ветеринарные, зоотехнические, агрономические и санпропускники Ветеринарные здания и сооружения Дезинфекционные пункты и площадки
Типовой проект 807-19-16.87Типовой проект 807-19-16.87Типовой проект 807-19-16.87Типовой проект 807-19-16.87Типовой проект 807-19-16.87Типовой проект 807-19-16.87Типовой проект 807-19-16.87Типовой проект 807-19-16.87Типовой проект 807-19-16.87Типовой проект 807-19-16.87Типовой проект 807-19-16.87Типовой проект 807-19-16.87Типовой проект 807-19-16.87Типовой проект 807-19-16.87Типовой проект 807-19-16.87Типовой проект 807-19-16.87Типовой проект 807-19-16.87Типовой проект 807-19-16.87Типовой проект 807-19-16.87Типовой проект 807-19-16.87Типовой проект 807-19-16.87Типовой проект 807-19-16.87Типовой проект 807-19-16.87Типовой проект 807-19-16.87Типовой проект 807-19-16.87Типовой проект 807-19-16.87Типовой проект 807-19-16.87Типовой проект 807-19-16.87Типовой проект 807-19-16.87Типовой проект 807-19-16.87Типовой проект 807-19-16.87Типовой проект 807-19-16.87

© 2013 Ёшкин Кот :-) Карта сайта