Информационная система
«Ёшкин Кот»

Скачать базу одним архивом
Скачать обновления
История создания базы
Карта сайта

Скачать Шифр А15-93 Установка шкафов комплектного распределительного устройства 6 - 10 кВ серии К-104М. Материалы для проектирования и рабочие чертежи

Дата актуализации: 10.08.2017

Шифр А15-93

Установка шкафов комплектного распределительного устройства 6 - 10 кВ серии К-104М. Материалы для проектирования и рабочие чертежи

Обозначение: Шифр А15-93
Обозначение англ: А15-93
Статус:cправочные материалы, мп, тпр
Название рус.:Установка шкафов комплектного распределительного устройства 6 - 10 кВ серии К-104М. Материалы для проектирования и рабочие чертежи
Дата добавления в базу:01.09.2013
Дата актуализации:05.05.2017
Дата введения:15.10.1993
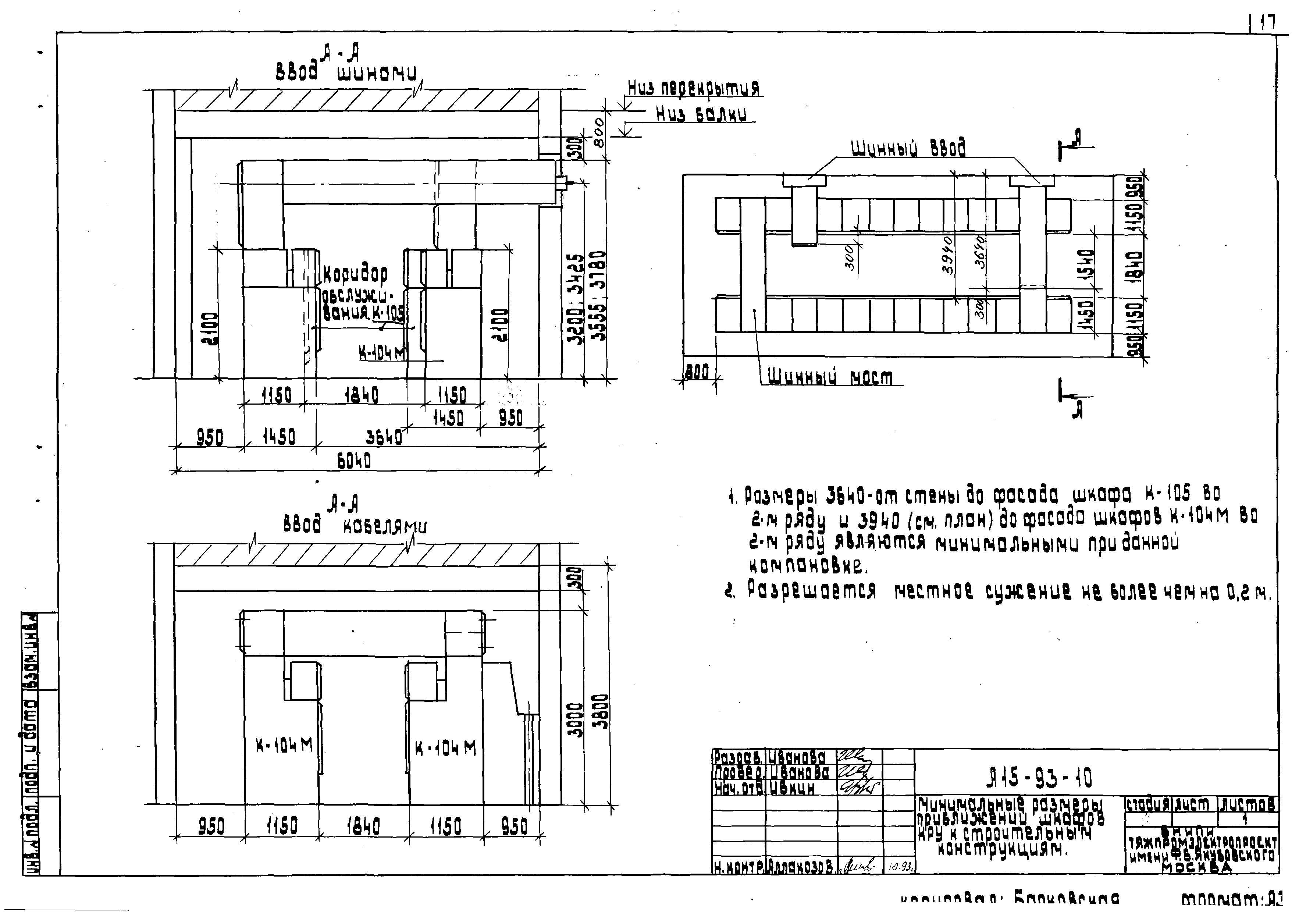
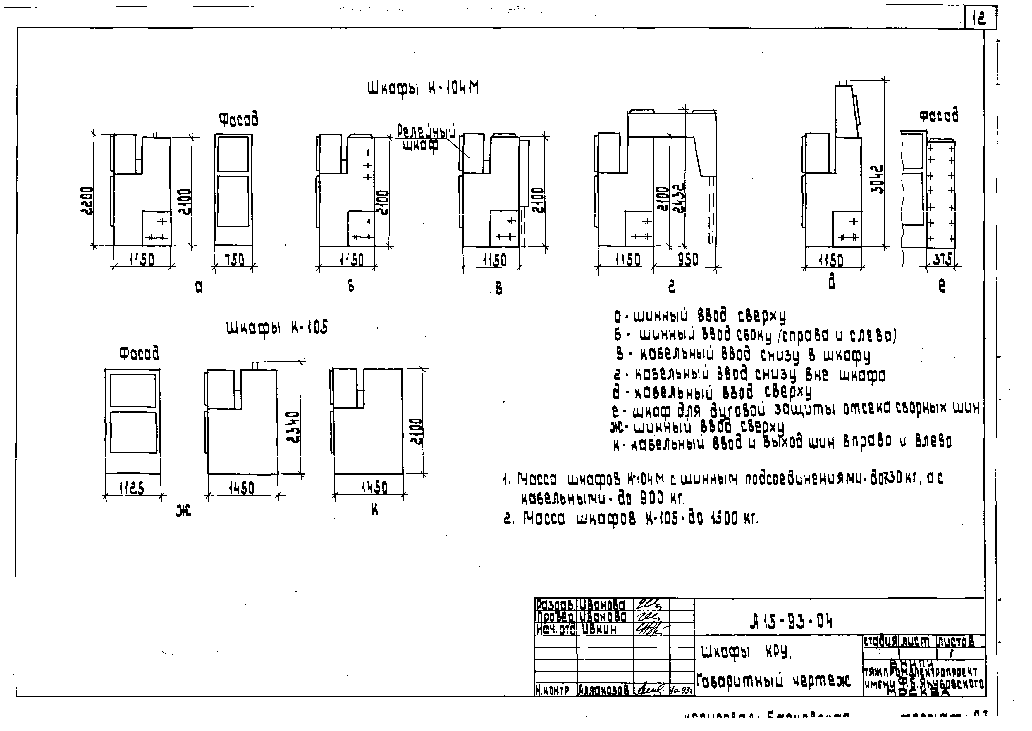
Область применения:В альбоме представлена необходимая техническая информация о КМ-104М и К-105, используемая проектировщиком при заказе шкафов заводу-изготовителю и выдаче строительного задания на помещения
Разработан: ВНИПИ Тяжпромэлектропроект им. Ф.Б. Якубовского
Утверждён:07.10.1993 ВНИПИ Тяжпромэлектропроект им. Ф.Б. Якубовского (F.B.Yakubovskiy Tyazhpromelektroproject VNIPI 38)
Расположен в:Техническая документация Строительство Справочные документы Типовые строительные конструкции, изделия и узлы Разработанные другими министерствами, ведомствами и организациями
Шифр А15-93Шифр А15-93Шифр А15-93Шифр А15-93Шифр А15-93Шифр А15-93Шифр А15-93Шифр А15-93Шифр А15-93Шифр А15-93Шифр А15-93Шифр А15-93Шифр А15-93Шифр А15-93Шифр А15-93Шифр А15-93Шифр А15-93Шифр А15-93Шифр А15-93Шифр А15-93Шифр А15-93Шифр А15-93Шифр А15-93Шифр А15-93Шифр А15-93Шифр А15-93Шифр А15-93Шифр А15-93Шифр А15-93Шифр А15-93Шифр А15-93Шифр А15-93Шифр А15-93

© 2013 Ёшкин Кот :-) Карта сайта