Скачать Типовой проект 901-1-83.87 Альбом II. Технологические решения, внутренний водопровод и канализация, отопление и вентиляция, нестандартизированное оборудованиеДата актуализации: 10.08.2017 Типовой проект 901-1-83.87
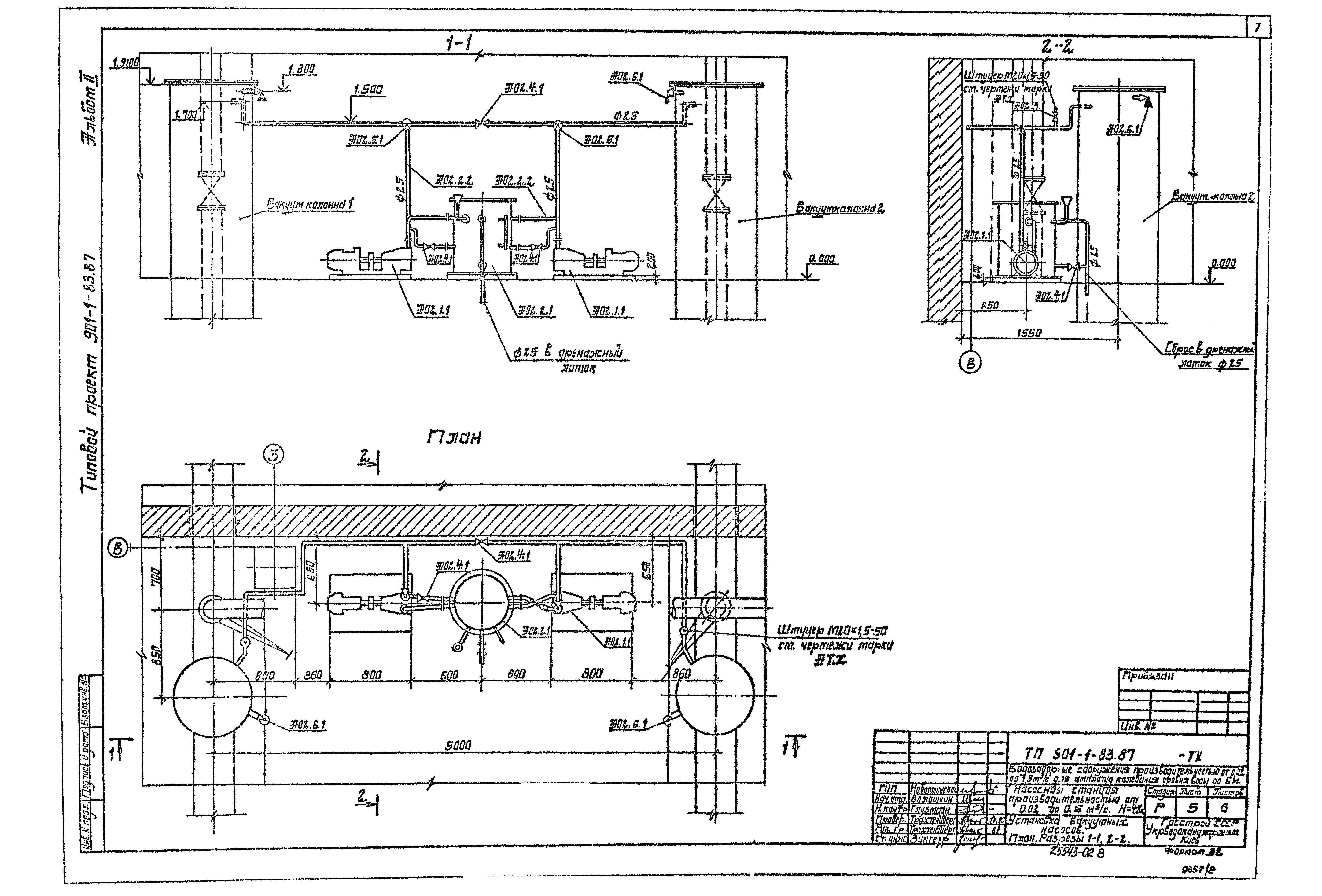
Альбом II. Технологические решения, внутренний водопровод и канализация, отопление и вентиляция, нестандартизированное оборудованиеОбозначение: | Типовой проект 901-1-83.87 | Обозначение англ: | 901-1-83.87 | Статус: | не определен законодательством | Название рус.: | Альбом II. Технологические решения, внутренний водопровод и канализация, отопление и вентиляция, нестандартизированное оборудование | Дата добавления в базу: | 01.09.2013 | Дата актуализации: | 05.05.2017 | Дата введения: | 28.08.1987 | Разработан: | ГПИ Укрводоканалпроект
| Утверждён: | 28.08.1987 Госстрой СССР (Государственный комитет Совета Министров СССР по делам строительства) (USSR Gosstroy 57)
| Расположен в: |
| Заменяет собой: | |
                    
|