Информационная система
«Ёшкин Кот»

Скачать базу одним архивом
Скачать обновления
История создания базы
Карта сайта

Скачать Серия 1.134-2 Выпуск 4. Блоки внутренних стен толщиной 16 см и вентиляционные блоки для жилых зданий высотой 1 - 4 этажа и общественных зданий высотой 1 - 3 этажа. Опалубочные чертежи. Армирование

Дата актуализации: 10.08.2017

Серия 1.134-2

Выпуск 4. Блоки внутренних стен толщиной 16 см и вентиляционные блоки для жилых зданий высотой 1 - 4 этажа и общественных зданий высотой 1 - 3 этажа. Опалубочные чертежи. Армирование

Обозначение: Серия 1.134-2
Обозначение англ: Series 1.134-2
Статус:заменен
Название рус.:Выпуск 4. Блоки внутренних стен толщиной 16 см и вентиляционные блоки для жилых зданий высотой 1 - 4 этажа и общественных зданий высотой 1 - 3 этажа. Опалубочные чертежи. Армирование
Дата добавления в базу:01.09.2013
Дата актуализации:05.05.2017
Дата введения:01.10.1986
Область применения:В настоящем выпуске приведены опалубочные чертежи внутренних блоков толщиной 16 см и вентиляционных блоков. Изготовление вентиляционных блоков предусматривается по поточно-агрегатной технологии, а блоки толщиной 16 см изготавливаются в кассетных установках
Оглавление:1.134-2.7.01.000 ТО Техническое описание
1.134-2.7.01.000 НИ Номенклатура
1.134-2.7.01.000 РС Ведомость расхода стали
1.134-2.7.01.000 Блок внутренних стен
1.134-2.7.01.000 СБ Блок внутренних стен. Сборочный чертеж
1.134-2.7.02.000 Блок внутренних стен
1.134-2.7.03.000 Блок внутренних стен
1.134-2.7.03.000 СБ Блок внутренних стен. Сборочный чертеж
1.134-2.7.04.000 Блок внутренних стен
1.134-2.7.04.000 СБ Блок внутренних стен. Сборочный чертеж
1.134-2.7.05.000 Блок внутренних стен СБ-6.22.1-Т
1.134-2.7.06.000 Блок перемычный внутренних стен
1.134-2.7.07.000 Блок внутренних стен доборный
1.134-2.7.06.000 СБ Блок перемычный внутренних стен. Сборочный чертеж
1.134-2.7.07.000 СБ Блок внутренних стен доборный. Сборочный чертеж
1.134-2.7.08.000 Блок внутренних стен лестничных клеток
1.134-2.7.09.000 Блок внутренних стен лестничных клеток
1.134-2.7.10.000 Блок перемычный лестничных клеток
1.134-2.7.11.000 Блок перемычный лестничных клеток
1.134-2.7.12.000 Блок вентиляционный
1.134-2.7.13.000 Блок вентиляционный ВБН-12.13.4-П
1.134-2.7.14.000 Блок вентиляционный
1.134-2.7.15.000 Блок вентиляционный ВБН-18.13.4-П
1.134-2.7.16.000 Блок вентиляционный
1.134-2.7.17.000 Блок вентиляционный ВБН-15.13.4-П
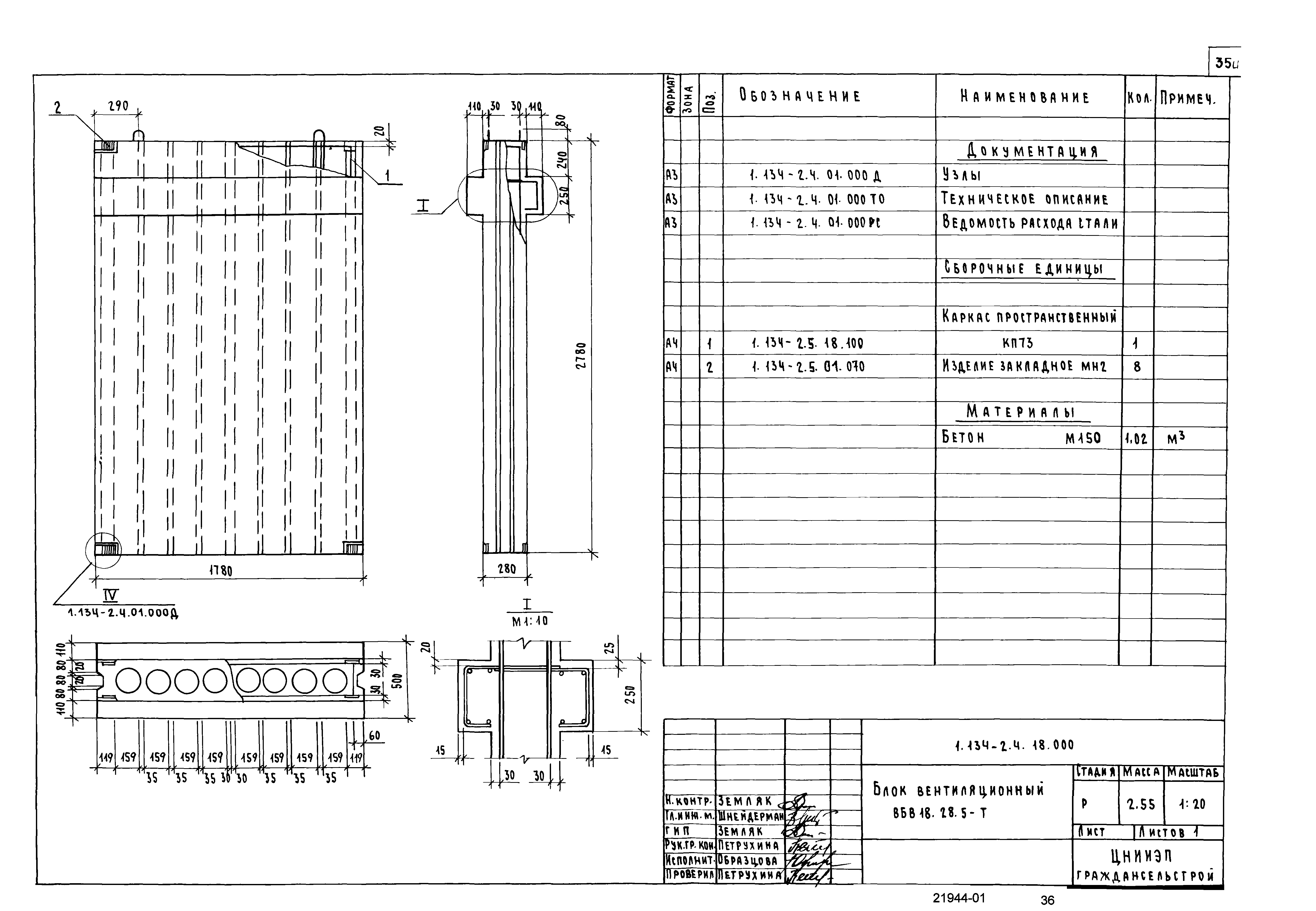
1.134-2.7.18.000 Блок вентиляционный ВБН-18.28.5-Т
1.134-2.7.19.000 Блок вентиляционный ВБН-15.28.5-Т
1.134-2.7.20.000 Блок внутренний электротехнический ВБЭ-9.22.2-Т
1.134-2.7.01.000 Узлы I… V
Разработан: ЦНИИЭП граждансельстрой
Утверждён:28.04.1979 Госгражданстрой (Gosgrazhdanstroy 86)
Издан: ЦИТП Госстроя СССР (CITP, Gosstroy (USSR) 1987 г. )
Расположен в:Техническая документация Строительство Справочные документы Типовые строительные конструкции, изделия и узлы Общероссийский строительный каталог Строительные конструкции, изделия и узлы зданий и сооружений для всех видов строительства Конструкции, изделия и узлы зданий Ограждающие конструкции Блоки
Чем заменён:
Нормативные ссылки:
Серия 1.134-2Серия 1.134-2Серия 1.134-2Серия 1.134-2Серия 1.134-2Серия 1.134-2Серия 1.134-2Серия 1.134-2Серия 1.134-2Серия 1.134-2Серия 1.134-2Серия 1.134-2Серия 1.134-2Серия 1.134-2Серия 1.134-2Серия 1.134-2Серия 1.134-2Серия 1.134-2Серия 1.134-2Серия 1.134-2Серия 1.134-2Серия 1.134-2Серия 1.134-2Серия 1.134-2Серия 1.134-2Серия 1.134-2Серия 1.134-2Серия 1.134-2Серия 1.134-2Серия 1.134-2Серия 1.134-2Серия 1.134-2Серия 1.134-2Серия 1.134-2Серия 1.134-2Серия 1.134-2Серия 1.134-2Серия 1.134-2Серия 1.134-2Серия 1.134-2

© 2013 Ёшкин Кот :-) Карта сайта