Информационная система
«Ёшкин Кот»

Скачать базу одним архивом
Скачать обновления
История создания базы
Карта сайта

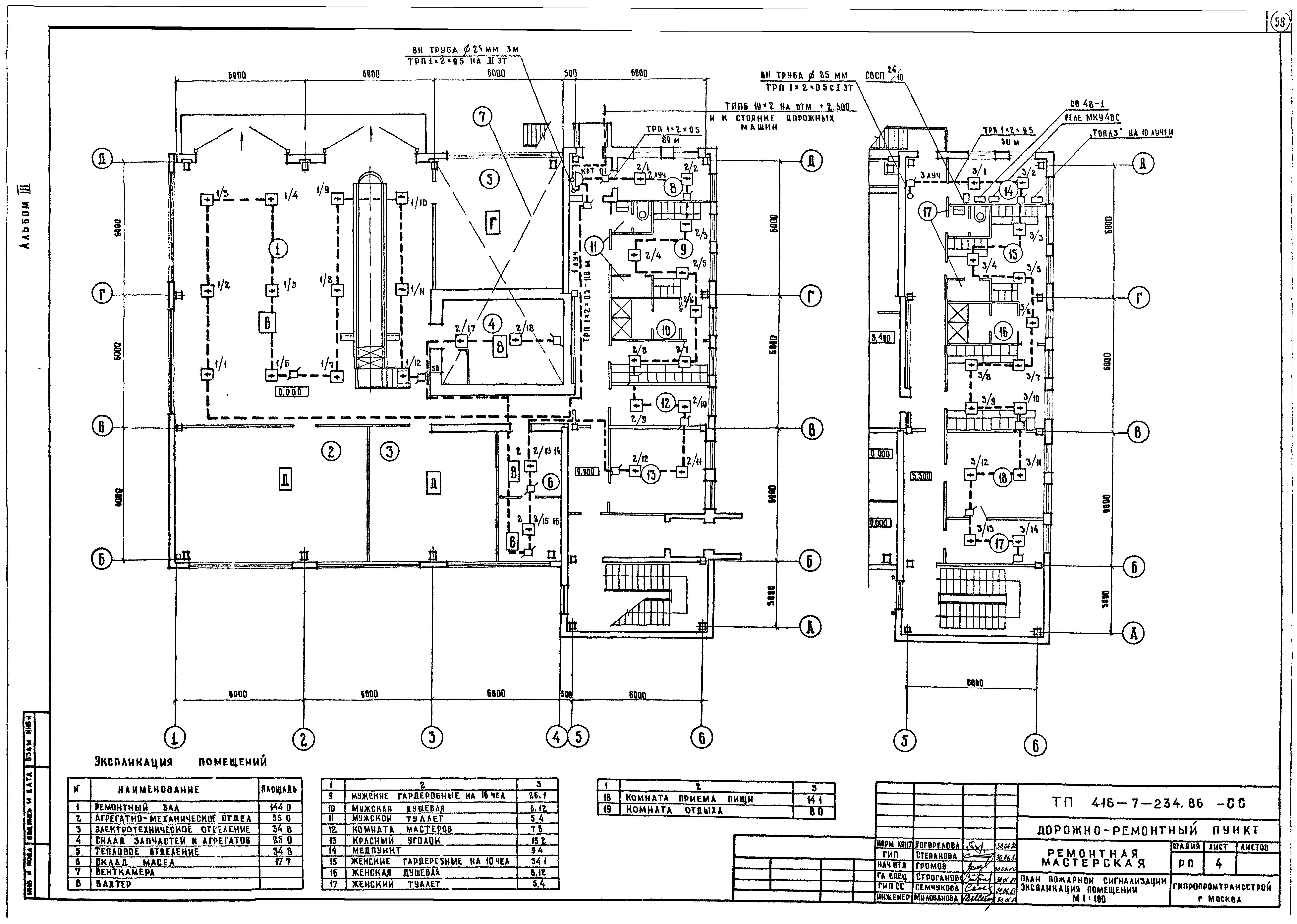
Скачать Типовой проект 416-7-234.86 Альбом III. Технологические решения. Отопление и вентиляция. Водопровод и канализация. Силовое электрооборудование. Электроосвещение. Автоматизация приточных систем. Связь и сигнализация

Дата актуализации: 10.08.2017

Типовой проект 416-7-234.86

Альбом III. Технологические решения. Отопление и вентиляция. Водопровод и канализация. Силовое электрооборудование. Электроосвещение. Автоматизация приточных систем. Связь и сигнализация

Обозначение: Типовой проект 416-7-234.86
Обозначение англ: 416-7-234.86
Статус:не определен законодательством
Название рус.:Альбом III. Технологические решения. Отопление и вентиляция. Водопровод и канализация. Силовое электрооборудование. Электроосвещение. Автоматизация приточных систем. Связь и сигнализация
Дата добавления в базу:01.09.2013
Дата актуализации:05.05.2017
Дата введения:30.07.1986
Разработан: ГПИ Союздорпроект
Утверждён:30.07.1986 Минтрансстрой СССР (USSR Mintransstroy 19)
Расположен в:Техническая документация Строительство Справочные документы Типовые строительные конструкции, изделия и узлы Общероссийский строительный каталог Защитные сооружения гражданской обороны Типовые проекты защитных сооружений гражданской обороны для объектов промышленности, электроэнергетики, транспорта, связи и складского хозяйства Встроенные помещения, приспосабливаемые под противорадиационные укрытия Противорадиационные укрытия в зданиях и сооружениях транспорта Промышленные предприятия, здания и сооружения Предприятия, здания и сооружения промышленности и электроэнергетики Ремонтные предприятия. Административно-бытовые, производственные и вспомогательные здания и сооружения промышленных предприятий Ремонтные предприятия, производственные и вспомогательные здания и сооружения
Типовой проект 416-7-234.86Типовой проект 416-7-234.86Типовой проект 416-7-234.86Типовой проект 416-7-234.86Типовой проект 416-7-234.86Типовой проект 416-7-234.86Типовой проект 416-7-234.86Типовой проект 416-7-234.86Типовой проект 416-7-234.86Типовой проект 416-7-234.86Типовой проект 416-7-234.86Типовой проект 416-7-234.86Типовой проект 416-7-234.86Типовой проект 416-7-234.86Типовой проект 416-7-234.86Типовой проект 416-7-234.86Типовой проект 416-7-234.86Типовой проект 416-7-234.86Типовой проект 416-7-234.86Типовой проект 416-7-234.86Типовой проект 416-7-234.86Типовой проект 416-7-234.86Типовой проект 416-7-234.86Типовой проект 416-7-234.86Типовой проект 416-7-234.86Типовой проект 416-7-234.86Типовой проект 416-7-234.86Типовой проект 416-7-234.86Типовой проект 416-7-234.86Типовой проект 416-7-234.86Типовой проект 416-7-234.86Типовой проект 416-7-234.86Типовой проект 416-7-234.86Типовой проект 416-7-234.86Типовой проект 416-7-234.86Типовой проект 416-7-234.86Типовой проект 416-7-234.86Типовой проект 416-7-234.86Типовой проект 416-7-234.86Типовой проект 416-7-234.86Типовой проект 416-7-234.86Типовой проект 416-7-234.86Типовой проект 416-7-234.86Типовой проект 416-7-234.86Типовой проект 416-7-234.86Типовой проект 416-7-234.86Типовой проект 416-7-234.86Типовой проект 416-7-234.86Типовой проект 416-7-234.86Типовой проект 416-7-234.86Типовой проект 416-7-234.86Типовой проект 416-7-234.86Типовой проект 416-7-234.86Типовой проект 416-7-234.86Типовой проект 416-7-234.86Типовой проект 416-7-234.86Типовой проект 416-7-234.86Типовой проект 416-7-234.86Типовой проект 416-7-234.86

© 2013 Ёшкин Кот :-) Карта сайта