Скачать Типовой проект 284-5-18 Часть 9. Раздел 9.1-1. Узлы и детали. Жилой корпус. Общестроительные деталиДата актуализации: 10.08.2017 Типовой проект 284-5-18
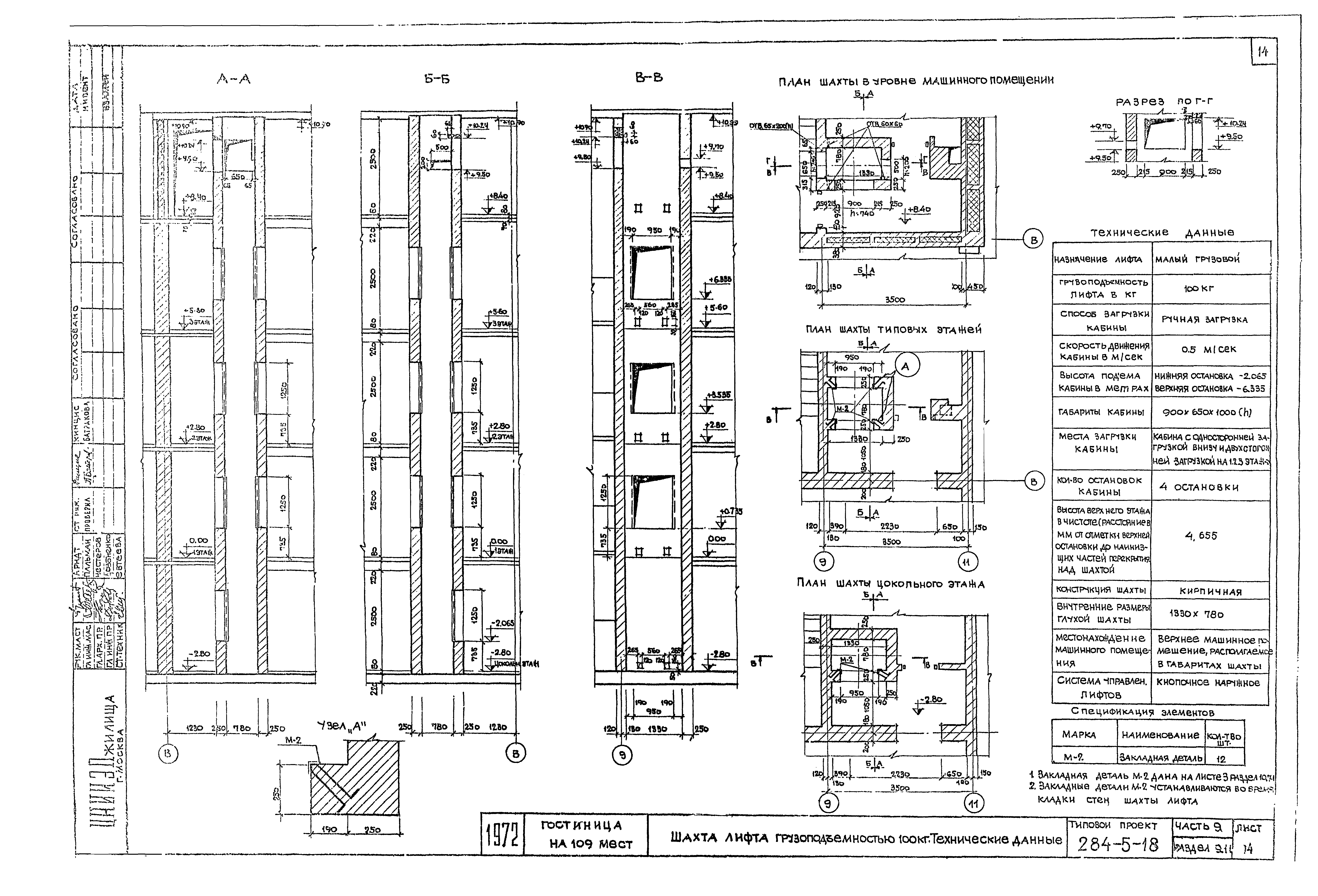
Часть 9. Раздел 9.1-1. Узлы и детали. Жилой корпус. Общестроительные деталиОбозначение: | Типовой проект 284-5-18 | Обозначение англ: | 284-5-18 | Статус: | не определен законодательством | Название рус.: | Часть 9. Раздел 9.1-1. Узлы и детали. Жилой корпус. Общестроительные детали | Дата добавления в базу: | 01.09.2013 | Дата актуализации: | 05.05.2017 | Дата введения: | 01.01.1972 | Оглавление: | 284-5-18 Заглавный лист 284-5-18 Фрагмент плана цокольного этажа в осях "А-И","3-11" 284-5-18 Фрагмент плана 1 этажа в осях "А-И","3-12" 284-5-18 Фрагмент плана 1-2 этажа в осях "Б-И","12-19" 284-5-18 Фрагмент плана 1 этажа в осях "Б-И","19-23" 284-5-18 Фрагмент плана 2 этажа в осях "А-И","3-12" 284-5-18 Фрагмент плана 2 этажа в осях "Б-И","19-23" 284-5-18 Фрагмент плана 3 этажа в осях "А-И","3-11" 284-5-18 Фрагмент плана 3 этажа в осях "Б-И","11-18" 284-5-18 Фрагмент плана 3 этажа в осях "Б-И","18-23" 284-5-18 Развертки стен с каналами оси "В" в осях "3-8" и по оси "Д" в осях "8-3". Детали 284-5-18 Развертка стены с каналами по оси "Г" в осях "9-22". Детали кладки каналов 284-5-18 Развертка стены с каналами по оси "Е" в осях "22-11". Узлы 284-5-18 Шахта лифта грузоподъемностью 100 кг. Технические данные 284-5-18 Армирование стен. Узлы и детали 284-5-18 Монтажная схема выпусков подвесного потолка. Разрез 1-1. Детали 6,7,8 284-5-18 Узлы опирания ригелей 1 и 2 284-5-18 Узлы опирания ригелей 3 и 4. Узел 5 284-5-18 Сечения к планам перекрытий 284-5-18 Монтажный чертеж мусоропровода МП1. Входы в мусорокамеру и лестничную клетку 284-5-18 Детали междуоконного заполнения. Разрезы для варианта сплошных простенков - лопаток 284-5-18 Детали междуоконного заполнения. Планы простенков - лопаток для варианта сплошных простенков-лопаток 284-5-18 Детали простенков - лопаток, планы для варианта сплошных простенков-лопаток 284-5-18 Детали междуоконного заполнения, разрезы для варианта прерывистых простенков-лопаток 284-5-18 Детали для простенков-лопаток, планы для варианта прерывистых простенков-лопаток 284-5-18 Полы. Детали полов | Разработан: | ЦНИИЭП жилища
| Утверждён: | 01.01.1972 Госкомитет по гражданскому строительству и архитектуре при Госстрое СССР (National Committee on Nonindustrial Construction and Architecture, USSR Gosstroy )
| Расположен в: |
|
                         
|