Информационная система
«Ёшкин Кот»

Скачать базу одним архивом
Скачать обновления
История создания базы
Карта сайта

Скачать Типовой проект 284-5-18 Часть 3. Раздел 3-1. Раздел 3-2. Водопровод и канализация. Жилой корпус. Общественный корпус

Дата актуализации: 10.08.2017

Типовой проект 284-5-18

Часть 3. Раздел 3-1. Раздел 3-2. Водопровод и канализация. Жилой корпус. Общественный корпус

Обозначение: Типовой проект 284-5-18
Обозначение англ: 284-5-18
Статус:не определен законодательством
Название рус.:Часть 3. Раздел 3-1. Раздел 3-2. Водопровод и канализация. Жилой корпус. Общественный корпус
Дата добавления в базу:01.09.2013
Дата актуализации:05.05.2017
Дата введения:01.01.1972
Оглавление:284-5-18 Раздел 3-1
284-5-18 Заглавный лист
284-5-18 Состав проекта. Основные данные по проекту. Указания по монтажу и привязке
284-5-18 Спецификация
284-5-18 Водоснабжение. План цокольного этажа. Разрез
284-5-18 Канализация. Водосток. План цокольного этажа. Разрезы
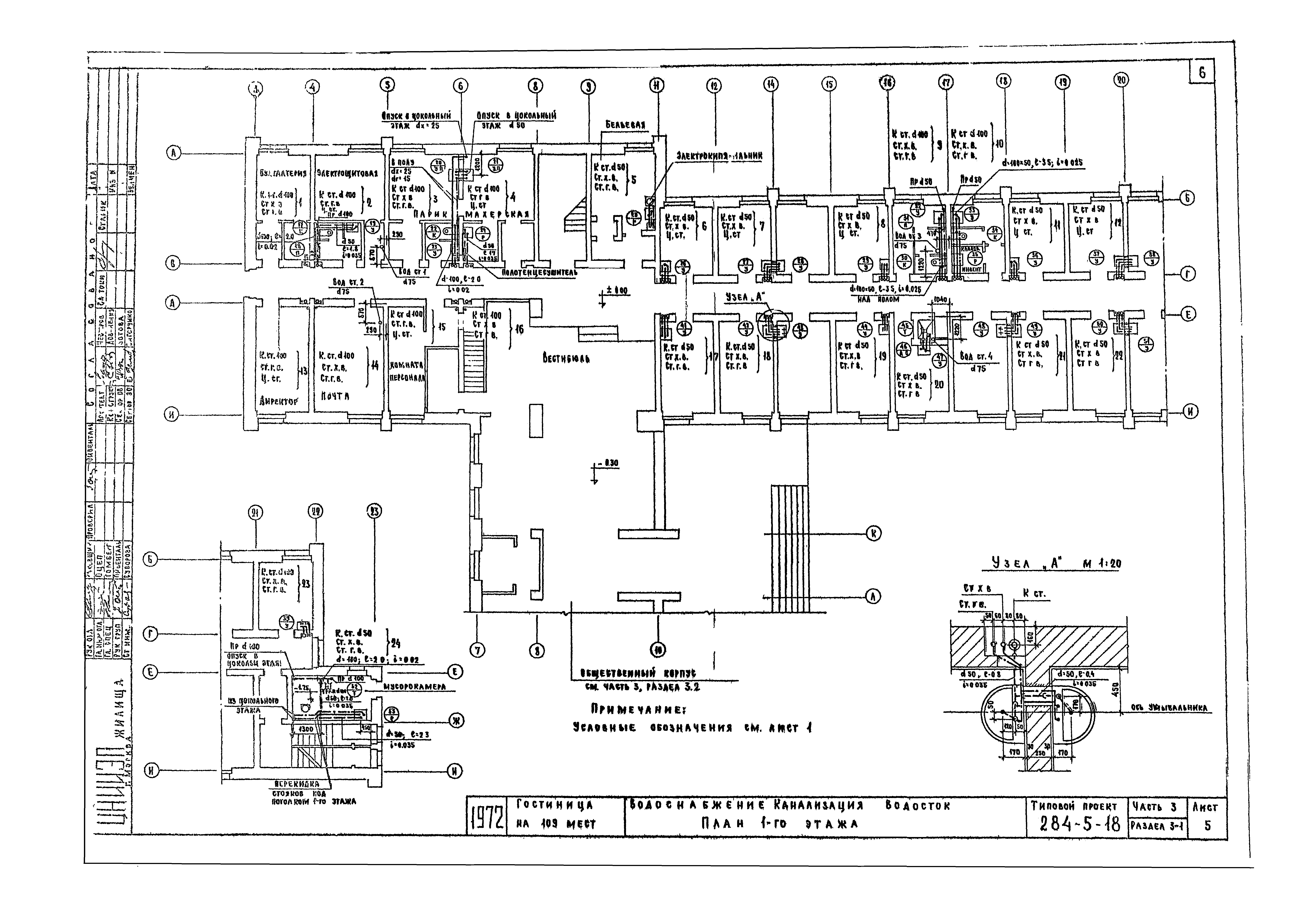
284-5-18 Водоснабжение. Канализация. Водосток. План 1-го этажа
284-5-18 Водоснабжение. Канализация. Водосток. План 2-го этажа
284-5-18 Водоснабжение. Канализация. Водосток. План 3-го этажа
284-5-18 Водоснабжение. Схема
284-5-18 Канализация. Разрезы по выпуску К-1
284-5-18 Канализация. Разрезы по выпуску К-2 и К-3
284-5-18 Водосток. Разрезы по водостоку. Гидравлический затвор. Детали
284-5-18 Монтажный чертеж санузла (с душевой установкой)
284-5-18 Монтажный чертеж санузла (с ванной)
284-5-18 Раздел 3-2
284-5-18 Состав проекта. Основные данные по проекту. Указания по монтажу и привязке
284-5-18 Спецификация
284-5-18 Водоснабжение. План 1-го этажа
284-5-18 Канализация. Водосток. План 1-го этажа
284-5-18 Водоснабжение. Схема
284-5-18 Канализация. Разрезы по выпуску К-1
284-5-18 Канализация. Водосток. Разрезы по выпуску К-2. Разрезы по водостоку. Гидравлический затвор
Разработан: ЦНИИЭП жилища
Утверждён:01.01.1972 Госкомитет по гражданскому строительству и архитектуре при Госстрое СССР (National Committee on Nonindustrial Construction and Architecture, USSR Gosstroy )
Расположен в:Техническая документация Строительство Справочные документы Типовые строительные конструкции, изделия и узлы Общероссийский строительный каталог Общественные здания в городах и поселках городского типа Предприятия бытового обслуживания населения и коммунального хозяйства Гостиницы, мотели
Типовой проект 284-5-18Типовой проект 284-5-18Типовой проект 284-5-18Типовой проект 284-5-18Типовой проект 284-5-18Типовой проект 284-5-18Типовой проект 284-5-18Типовой проект 284-5-18Типовой проект 284-5-18Типовой проект 284-5-18Типовой проект 284-5-18Типовой проект 284-5-18Типовой проект 284-5-18Типовой проект 284-5-18Типовой проект 284-5-18Типовой проект 284-5-18Типовой проект 284-5-18Типовой проект 284-5-18Типовой проект 284-5-18Типовой проект 284-5-18Типовой проект 284-5-18Типовой проект 284-5-18

© 2013 Ёшкин Кот :-) Карта сайта