Скачать Типовой проект 284-5-18 Часть 1. Раздел 1.2-1. Архитектурно-строительные чертежи выше отм. 0.00. Общественный корпус. Здание с фасадами I, IIДата актуализации: 10.08.2017 Типовой проект 284-5-18
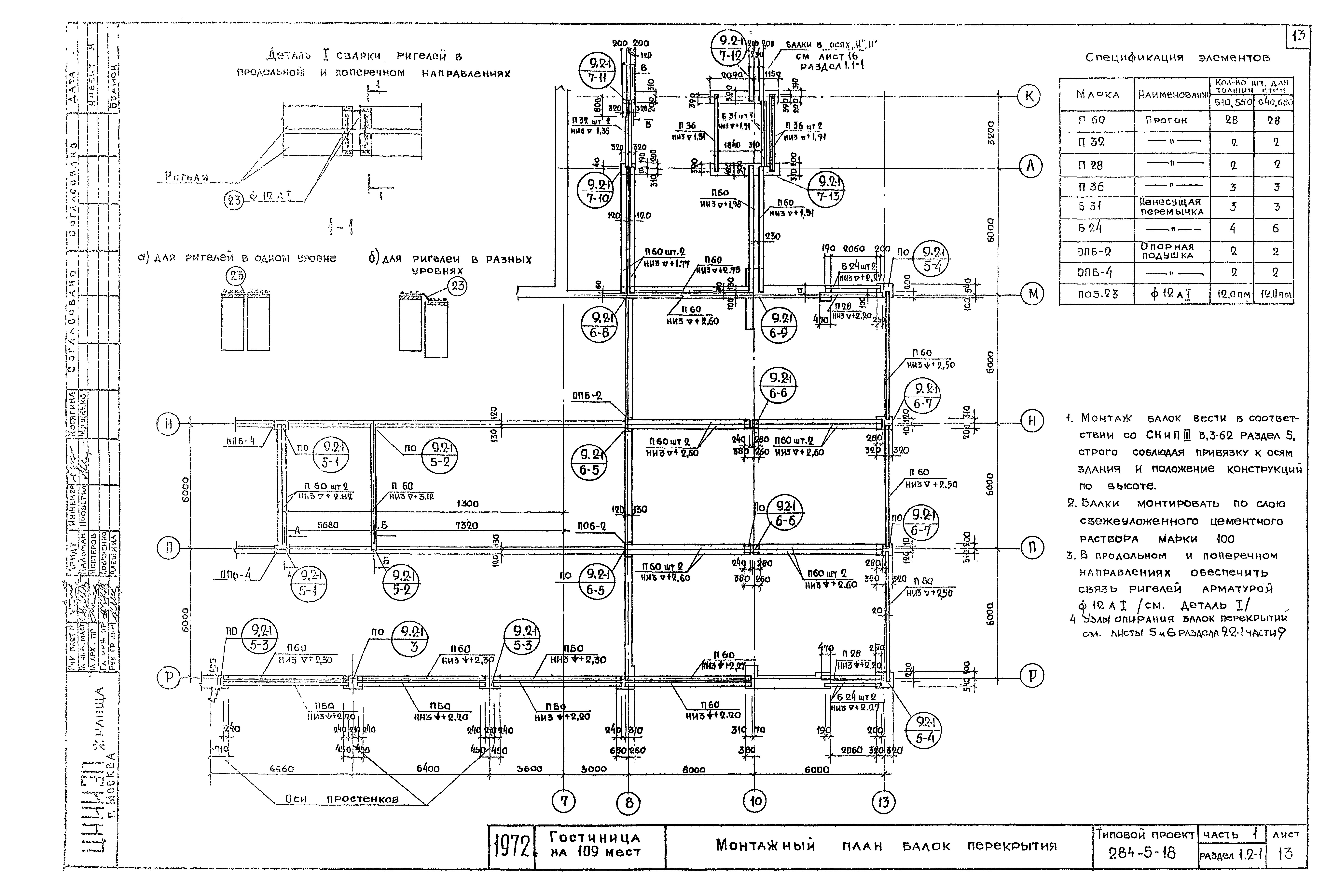
Часть 1. Раздел 1.2-1. Архитектурно-строительные чертежи выше отм. 0.00. Общественный корпус. Здание с фасадами I, IIОбозначение: | Типовой проект 284-5-18 | Обозначение англ: | 284-5-18 | Статус: | не определен законодательством | Название рус.: | Часть 1. Раздел 1.2-1. Архитектурно-строительные чертежи выше отм. 0.00. Общественный корпус. Здание с фасадами I, II | Дата добавления в базу: | 01.09.2013 | Дата актуализации: | 05.05.2017 | Дата введения: | 01.01.1972 | Оглавление: | 284-5-18 Заглавный лист 284-5-18 Технические указания к проекту 284-5-18 Указания по производству работ 284-5-18 План строительной площадки 284-5-18 Фасады 1 по осям "13-1", "И-П", "Р-И" 284-5-18 Кладочный план 1 этажа 284-5-18 Кладочные планы на отм 3.65,4-40. Таблица отверстий 284-5-18 Разрезы 1-1,2-2,3-3 284-5-18 Таблица типов перемычек 284-5-18 Монтажный план балок перекрытия 284-5-18 План перекрытия 1 этажа 284-5-18 План перекрытия венткамеры. Монолитный участок №3. Сечение 14-14 284-5-18 Венткамера. План. Разрезы. Детали 284-5-18 Монолитные участки №1,№2 284-5-18 Схема возведения надземной части здания 284-5-18 График производства работ 284-5-18 Таблица исходных данных 284-5-18 Ведомость основных машин, оборудования, приспособлений и инструменты 284-5-18 Спецификация изделий 284-5-18 Фасады 2 по осям 13-1 И-П Р-И | Разработан: | ЦНИИЭП жилища
| Утверждён: | 01.01.1972 Госкомитет по гражданскому строительству и архитектуре при Госстрое СССР (National Committee on Nonindustrial Construction and Architecture, USSR Gosstroy )
| Расположен в: |
|
                       
|