Информационная система
«Ёшкин Кот»

Скачать базу одним архивом
Скачать обновления
История создания базы
Карта сайта

Скачать Серия 1.464-11/82 Выпуск 2. Стальные конструкции фонарей с применением в покрытии железобетонных плит. Чертежи КМ

Дата актуализации: 10.08.2017

Серия 1.464-11/82

Выпуск 2. Стальные конструкции фонарей с применением в покрытии железобетонных плит. Чертежи КМ

Обозначение: Серия 1.464-11/82
Обозначение англ: Series 1.464-11/82
Статус:заменен
Название рус.:Выпуск 2. Стальные конструкции фонарей с применением в покрытии железобетонных плит. Чертежи КМ
Дата добавления в базу:01.09.2013
Дата актуализации:05.05.2017
Дата введения:01.12.1993
Оглавление:1.464-11/82.2КМ л.1.1-1.2 Пояснительная записка
1.464-11/82.2КМ л.2 Нагрузки
1.464-11/82.2КМ л.3 Схемы расположения конструкций фонаря шириной 12м. Шаг ферм 12м;6м
1.464-11/82.2КМ л.4 Схемы расположения конструкций фонаря шириной 6м. Шаг ферм 12м;6м. Разрезы 1-1;2-2;3-3;4-4
1.464-11/82.2КМ л.5 Разрезы 5-5;7-7. Виды 6-6;8-8. Таблица элементов
1.464-11/82.2КМ л.6 Фонарные панели ФП-1ж;ФП-2ж. Шаг ферм 12м. Узел 1
1.464-11/82.2КМ л.7 Фонарные панели ФП-3ж;ФП-4ж. Шаг ферм 6м. Сортамент фонарных панелей
1.464-11/82.2КМ л.8 Фонарные фермы ФФ-1ж;ФФ-2ж для фонаря шириной 12м
1.464-11/82.2КМ л.9 Фонарная ферма ФФ-3ж для фонаря шириной 6м. Сортамент фонарных ферм
1.464-11/82.2КМ л.10 Панель торца ПТ-1ж для фонаря шириной 12м (<0.015)
1.464-11/82.2КМ л.11 Панель торца ПТ-2ж для фонаря шириной 12м (<0:12;<1:20)
1.464-11/82.2КМ л.12 Панель торца ПТ-2ж для фонаря шириной 12м (R25170)
1.464-11/82.2КМ л.13 Панели торца ПТ-3ж для фонаря шириной 6м (<1:12;<1:30;R15500)
1.464-11/82.2КМ л.14 Панели торца ПТ-3ж для фонаря шириной 6м (<0.015). Сортамент панелей торца
1.464-11/82.2КМ л.15 Вертикальные связи: схемы и сортамент
1.464-11/82.2КМ л.16 Узел 2 фонарной панели
1.464-11/82.2КМ л.17 Узлы 3 и 4 фонарной панели
1.464-11/82.2КМ л.18 Узлы 5-8 фонарной фермы 12м
1.464-11/82.2КМ л.19 Узлы 9-11 фонарной фермы 6м
1.464-11/82.2КМ л.20 Узлы 12 и 13 панелей торца
1.464-11/82.2КМ л.21 Узлы 14 и 15 панелей торца
1.464-11/82.2КМ л.22 Узлы 16 и 17 панелей торца
1.464-11/82.2КМ л.23 Узлы 18 и 19 панелей торца
1.464-11/82.2КМ л.24 Узлы 20;21 и 25;26 вертикальных связей пролетом 12 и 6м. Узлы 27 и 28 распорок
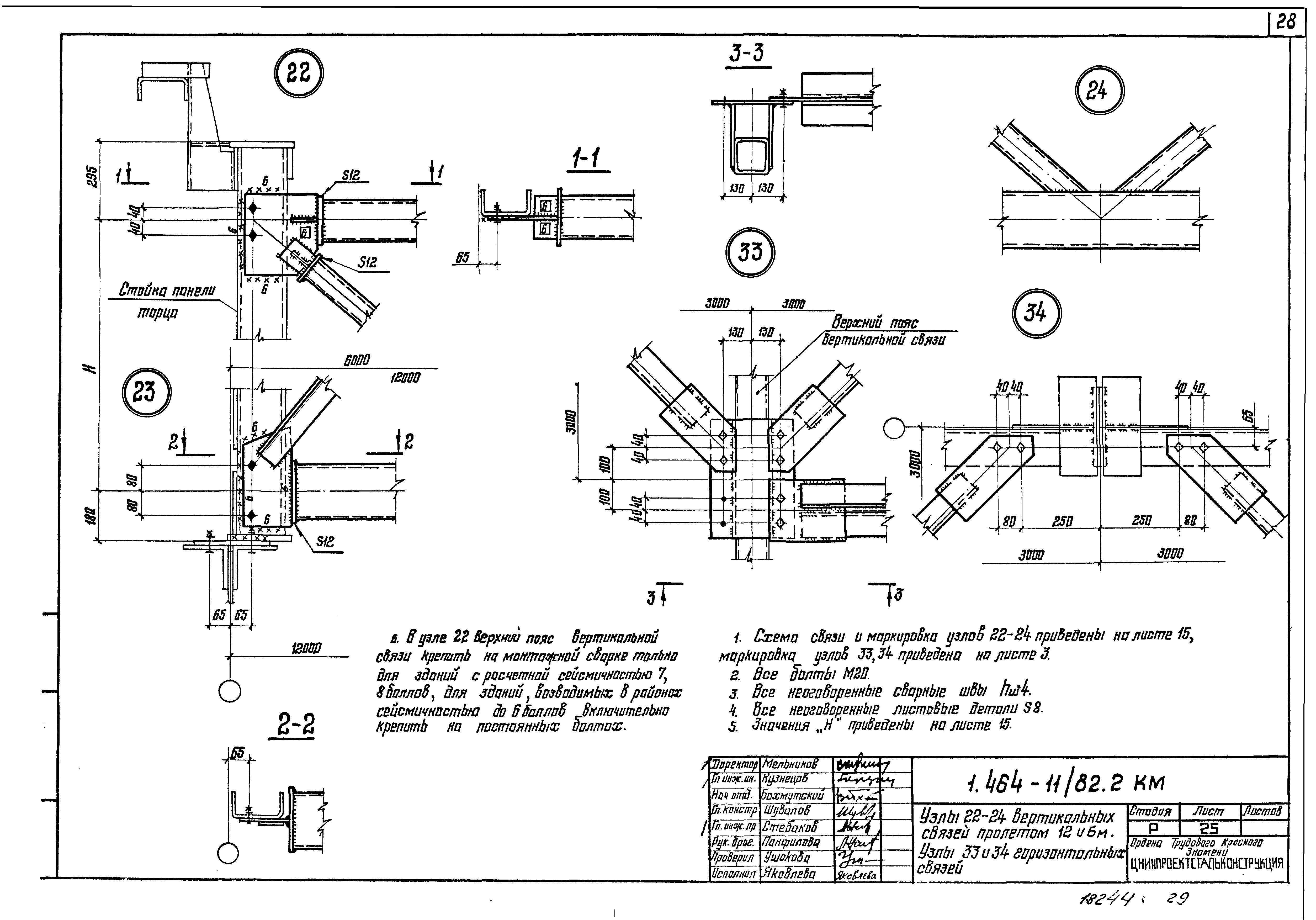
1.464-11/82.2КМ л.25 Узлы 22-24 вертикальных связей пролетом 12 и 6м. Узлы 33 и 34 горизонтальных связей
1.464-11/82.2КМ л.26 Узлы 29-32 горизонтальных связей
1.464-11/82.2КМ л.27 Монтажный узел 35
1.464-11/82.2КМ л.28 Монтажный узел 36
1.464-11/82.2КМ л.30 Спецификация стали
1.464-11/82.2КМ л.29 Крепление фонарных панелей к железобетонным плитам покрытия. Раскладка железобетонных плит покрытия. Узел 37
Разработан: ЦНИИпроектстальконструкция
Утверждён:08.09.1982 Госстрой СССР (Государственный комитет Совета Министров СССР по делам строительства) (USSR Gosstroy 211)
Расположен в:Техническая документация Строительство Справочные документы Типовые строительные конструкции, изделия и узлы Общероссийский строительный каталог Строительные конструкции, изделия и узлы зданий и сооружений для всех видов строительства Конструкции, изделия и узлы зданий Несущие конструкции одноэтажных зданий Фонари Светоаэрационные
Заменяет собой:
Чем заменён:
Серия 1.464-11/82Серия 1.464-11/82Серия 1.464-11/82Серия 1.464-11/82Серия 1.464-11/82Серия 1.464-11/82Серия 1.464-11/82Серия 1.464-11/82Серия 1.464-11/82Серия 1.464-11/82Серия 1.464-11/82Серия 1.464-11/82Серия 1.464-11/82Серия 1.464-11/82Серия 1.464-11/82Серия 1.464-11/82Серия 1.464-11/82Серия 1.464-11/82Серия 1.464-11/82Серия 1.464-11/82Серия 1.464-11/82Серия 1.464-11/82Серия 1.464-11/82Серия 1.464-11/82Серия 1.464-11/82Серия 1.464-11/82Серия 1.464-11/82Серия 1.464-11/82Серия 1.464-11/82Серия 1.464-11/82Серия 1.464-11/82Серия 1.464-11/82Серия 1.464-11/82Серия 1.464-11/82

© 2013 Ёшкин Кот :-) Карта сайта