Информационная система
«Ёшкин Кот»

Скачать базу одним архивом
Скачать обновления
История создания базы
Карта сайта

Скачать Серия 3.503-41 Выпуск 2. Блоки заводского изготовления

Дата актуализации: 10.08.2017

Серия 3.503-41

Выпуск 2. Блоки заводского изготовления

Обозначение: Серия 3.503-41
Обозначение англ: Series 3.503-41
Статус:заменен
Название рус.:Выпуск 2. Блоки заводского изготовления
Дата добавления в базу:01.09.2013
Дата актуализации:05.05.2017
Дата введения:01.04.1992
Оглавление:Пояснения
Плита П1, L = 4 м. Арматура класса АIII
Плита П1, L = 6 м. Арматура класса АIII
Плита П1, L = 8 м. Арматура класса АIII
Таблица расхода стали на сборные плиты П1, L = 4, 6, 8м. Арматура класса АIII
Плита П1, L = 4 м. Арматура класса АII
Плита П1, L = 6 м. Арматура класса АII
Плита П1, L = 8 м. Арматура класса АII
Таблица расхода стали на сборные плиты П1, L = 4, 6, 8м. Арматура класса АII
Плита П2, L = 4 м. Арматура класса АIII
Плита П2, L = 6 м. Арматура класса АIII
Плита П2, L = 8 м. Арматура класса АIII
Таблица расхода стали на сборные плиты П2, L = 4, 6, 8м. Арматура класса АIII
Плита П2, L = 4 м. Арматура класса АII
Плита П2, L = 6 м. Арматура класса АII
Плита П2, L = 8 м. Арматура класса АII
Таблица расхода стали на сборные плиты П1, L = 4, 6, 8 м. Арматура класса АII
Плита П3, L = 4 м. Арматура класса АIII
Плита П3, L = 6 м. Арматура класса АIII
Плита П3, L = 8 м. Арматура класса АIII
Плита П3, L = 4 м. Арматура класса АII
Плита П3, L = 6 м. Арматура класса АII
Плита П3, L = 8 м. Арматура класса АII
Плита П4, L = 4 м. Арматура класса АIII
Плита П4, L = 6 м. Арматура класса АIII
Плита П4, L = 8 м. Арматура класса АIII
Плита П4, L = 4 м. Арматура класса АII
Плита П4, L = 6 м. Арматура класса АII
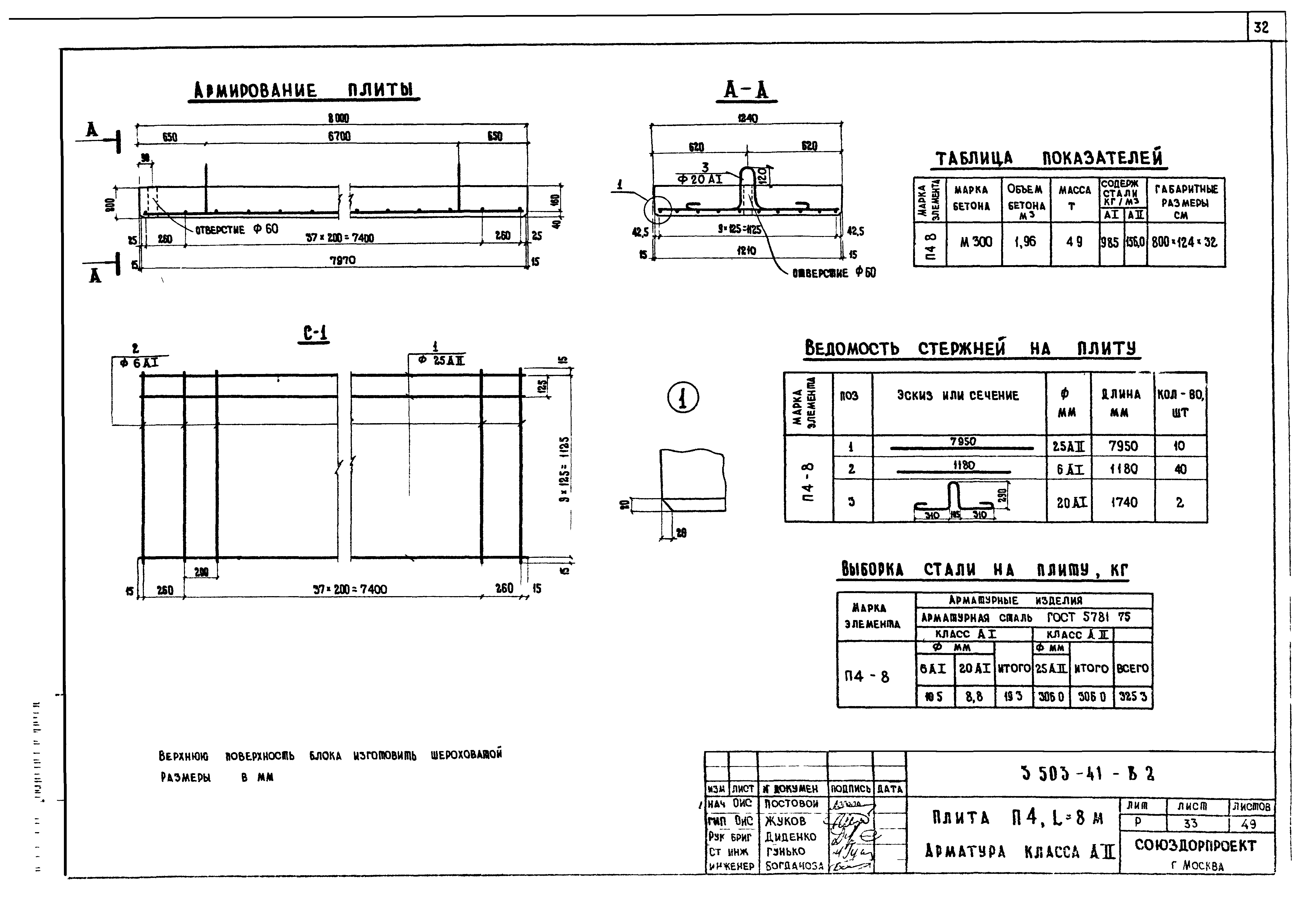
Плита П4, L = 8 м. Арматура класса АII
Блоки лежня Л-1 - Л-4. Арматура класса АIII
Блоки лежня Л-1 - Л-4. Арматура класса АII
Блоки лежня Л-5. Арматура класса АIII
Блоки лежня Л-5. Арматура класса АII
Плиты ПК1, L = 4, 6, 8м. Арматура класса АII, АIII
Таблица расхода стали на сборные плиты П1, L = 4, 6, 8м. Арматура класса АII, АIII
Плиты ПК2, L = 4, 6, 8м. Арматура класса АII, АIII
Таблица расхода стали на сборные плиты П2, L = 4, 6, 8 м. Арматура класса АII, АIII
Плиты ПК3, L = 4, 6, 8 м. Арматура класса АII, АIII
Таблица расхода стали на сборные плиты П3, L = 4, 6, 8м. Арматура класса АII, АIII
Плиты ПК4, L = 4, 6, 8м. Арматура класса АII, АIII
Таблица расхода стали на сборные плиты П4, L = 4, 6, 8м. Арматура класса АII, АIII
Разработан: ГПИ Союздорпроект
Утверждён:10.05.1977 Министерство транспортного строительства СССР (USSR Ministry of Transport Construction Л-685)
Расположен в:Техническая документация Строительство Справочные документы Типовые строительные конструкции, изделия и узлы Общероссийский строительный каталог Строительные конструкции, изделия и узлы зданий и сооружений для всех видов строительства Конструкции и изделия сооружений и оборудования зданий Надземные сооружения Конструкции и сооружения транспорта Пролетные строения мостов, мосты и путепроводы
Чем заменён:
Серия 3.503-41Серия 3.503-41Серия 3.503-41Серия 3.503-41Серия 3.503-41Серия 3.503-41Серия 3.503-41Серия 3.503-41Серия 3.503-41Серия 3.503-41Серия 3.503-41Серия 3.503-41Серия 3.503-41Серия 3.503-41Серия 3.503-41Серия 3.503-41Серия 3.503-41Серия 3.503-41Серия 3.503-41Серия 3.503-41Серия 3.503-41Серия 3.503-41Серия 3.503-41Серия 3.503-41Серия 3.503-41Серия 3.503-41Серия 3.503-41Серия 3.503-41Серия 3.503-41Серия 3.503-41Серия 3.503-41Серия 3.503-41Серия 3.503-41Серия 3.503-41Серия 3.503-41Серия 3.503-41Серия 3.503-41Серия 3.503-41Серия 3.503-41Серия 3.503-41Серия 3.503-41Серия 3.503-41Серия 3.503-41Серия 3.503-41Серия 3.503-41Серия 3.503-41Серия 3.503-41Серия 3.503-41Серия 3.503-41

© 2013 Ёшкин Кот :-) Карта сайта