Информационная система
«Ёшкин Кот»

Скачать базу одним архивом
Скачать обновления
История создания базы
Карта сайта

Скачать Типовой проект 902-1-170.91 Альбом 7. Нестандартизированное оборудование

Дата актуализации: 10.08.2017

Типовой проект 902-1-170.91

Альбом 7. Нестандартизированное оборудование

Обозначение: Типовой проект 902-1-170.91
Обозначение англ: 902-1-170.91
Статус:не определен законодательством
Название рус.:Альбом 7. Нестандартизированное оборудование
Дата добавления в базу:01.09.2013
Дата актуализации:05.05.2017
Дата введения:15.05.1991
Оглавление:Содержание альбома
Н6-01.000 Решетка ремонтная
Н6-03.100 Патрубок
Н6-01.000СБ Решетка ремонтная. Сборочный чертеж
Н6-01.001 Скоба
Н6-02.000 Тройник
Н6-02.000СБ Тройник. Сборочный чертеж
Н6-02.001 Гайка накидная
Н6-02.002 Кольцо
Н6-02.100 Корпус
Н6-02.003 Прокладка
Н6-02.102 Труба
Н6-02.103 Обечайка
Н6-02.100СБ Корпус. Сборочный чертеж
Н6-02.101 Труба
Н7-00.000 Патрубок монтажный
Н7-01.000 Патрубок
Н7-02.000 Патрубок
Н6-03.200 Патрубок
Н6-03.000СБ Патрубок монтажный. Сборочный чертеж
Н6-03.000 Патрубок монтажный
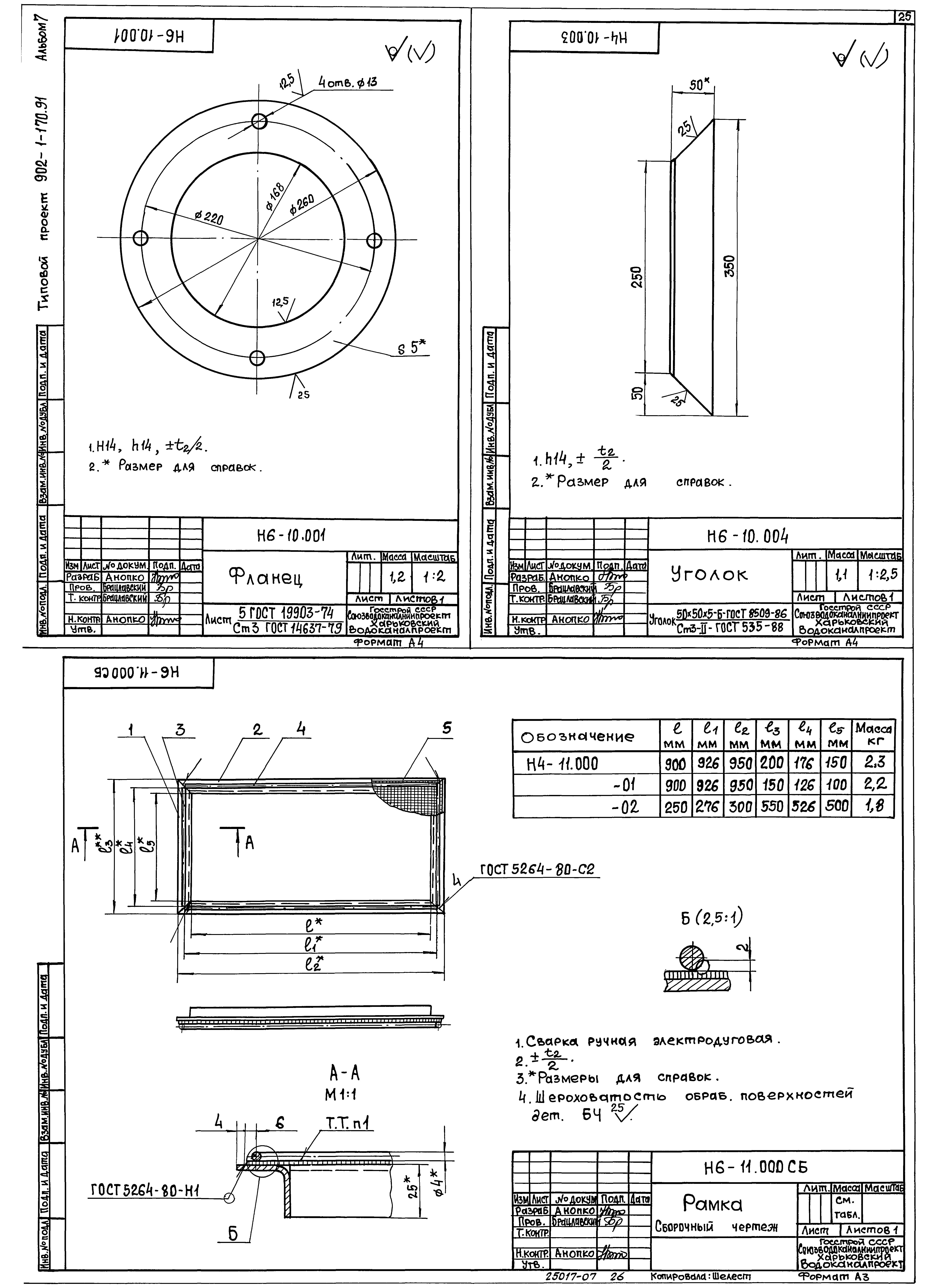
Н6-03.002 Фланец
Н6-03.100СБ Патрубок. Сборочный чертеж
Н6-03.001 Прокладка
Н6-03.200СБ Патрубок. Сборочный чертеж
Н6-03.201 Труба
Н6-04.001 Конус
Н6-04.000СБ Воронка. Сборочный чертеж
Н6-05.000СБ Установка патрубка. Сборочный чертеж
Н6-05.100 Патрубок
Н6-05.000 Установка патрубка
Н6-05.110 Патрубок
Н6-05.002 Прокладка
Н6-05.111 Конус
Н6-05.001 Заглушка
Н6-05.100СБ Патрубок. Сборочный чертеж
Н6-05.110СБ Патрубок. Сборочный чертеж
Н6-07.200 Отвод
Н6-07.000 Устройство отборное напорное
Н6-06.000 Расширитель
Н6-07.100 Разделитель мембранный
Н6-06.002 Днище
Н6-06.001 Корпус
Н6-06.000СБ Расширитель. Сборочный чертеж
Н6-07.001 Прокладка
Н6-07.200СБ Отвод. Сборочный чертеж
Н6-07.000СБ Устройство отборное напорное. Сборочный чертеж
Н6-07.002 Прокладка
Н6-07.003 Прокладка
Н6-07.004 Пробка
Н6-07.102 Кольцо
Н6-07.100СБ Разделитель мембранный. Сборочный чертеж
Н6-07.101 Корпус
Н6-07.103 Мембрана
Н6-07.201 Труба
Н6-08.000 Устройство отборное разрежения
Н6-07.202 Фланец
Н6-08.100СБ Патрубок. Сборочный чертеж
Н6-08.101 Фланец
Н6-08.102 Корпус
Н6-08.100 Патрубок
Н6-08.000СБ Устройство отборное разрежения. Сборочный чертеж
Н6-09.000 Гильза
Н6-09.100 Корпус
Н6-09.000СБ Гильза. Сборочный чертеж
Н6-09.001 Прокладка
Н6-09.002 Прокладка
Н6-10.000 Зонт
Н6-09.100СБ Корпус. Сборочный чертеж
Н6-09.101 Труба
Н6-09.102 Дно
Н6-10.000СБ Зонт. Сборочный чертеж
Н6-10.002 Переход
Н6-10.001 Обечайка
Н6-10.003 Уголок
Н6-11.000СБ Рамка. Сборочный чертеж
Н6-11.000 Рамка
Н6-11.001 Уголок
Н6-12.500 Кронштейн
Н6-03.101 Патрубок
Н6-03.102 Труба
Н6-10.002 Кольцо
Н6-12.000 Заслонка аварийная
Н6-12.000МЧ Заслонка аварийная. Монтажный чертеж
Н6-12.100 Клапан
Н6-12.110 Корпус
Н6-12.120 Заслонка
Н6-12.100СБ Клапан. Сборочный чертеж
Н6-12.101 Контргруз
Н6-12.102 Крышка
Н6-12.103 Фиксатор
Н6-12.104 Фиксатор
Н6-12.105 Вал
Н6-12.107 Прокладка
Н6-12.106 Корпус
Н6-12.108 Втулка
Н6-12.109 Уплотнение
Н6-12.111 Кольцо
Н6-12.134 Втулка
Н6-12.110СБ Корпус. Сборочный чертеж
Н6-12.112 Бонка
Н6-12.113 Бонка
Н6-12.120СБ Заслонка. Сборочный чертеж
Н6-12.130СБ Рычаг. Сборочный чертеж
Н6-12.121 Ребро
Н6-12.122 Диск
Н6-12.140СБ Поводок. Сборочный чертеж
Н6-12.140 Поводок
Н6-12.150 Лыжа
Н6-12.141 Ступица
Н6-12.142 Швеллер
Н6-12.151 Скоба
Н6-12.152 Лист
Н6-12.150СБ Лыжа. Сборочный чертеж
Н6-12.130 Рычаг
Н6-12.131 Планка
Н6-12.133 Втулка
Н6-12.132 Хвостовик
Н6-12.200 Пневмоцилиндр
Н6-12.210 Крышка передняя
Н6-12.220 Поршень
Н6-12.200СБ Пневмоцилиндр. Сборочный чертеж
Н6-12.201 Крышка задняя
Н6-12.220СБ Поршень. Сборочный чертеж
Н6-12.221 Диск
Н6-12.212 Втулка
Н6-12.211 Крышка
Н6-12.210СБ Крышка передняя. Сборочный чертеж
Н6-12.202 Шток
Н6-12.207 Шпилька
Н6-12.204 Кольцо
Н6-12.203 Крышка
Н6-12.205 Гильза
Н6-12.300 Опора
Н6-12.410 Кронштейн
Н6-12.400 Установка конечных выключателей
Н6-12.600 Вилка
Н6-12.300СБ Опора. Сборочный чертеж
Н6-12.308 Ребро
Н6-12.306 Косынка
Н6-12.307 Косынка
Н6-12.414 Ребро
Н6-12.412 Швеллер
Н6-12.413 Ребро
Н6-12.401 Пластина
Н6-12.206 Шайба стопорная
Н6-12.400СБ Установка конечных выключателей. Сборочный чертеж
Н6-12.410СБ Кронштейн. Сборочный чертеж
Н6-12.411 Пластина
Н6-12.415 Косынка
Н6-12.600СБ Вилка. Сборочный чертеж
Н6-12.500СБ Кронштейн. Сборочный чертеж
Н6-12.502 Плита
Н6-12.501 Косынка
Н6-12.601 Тяга
Н6-12.602 Скоба
Н7-01.000СБ Патрубок. Сборочный чертеж
Н7-00.002 Фланец
Н7-00.000СБ Патрубок монтажный. Сборочный чертеж
Н7-00.001 Прокладка
Н7-02.000СБ Патрубок. Сборочный чертеж
Н7-02.001 Труба
Н7-01.001 Труба
Разработан: Харьковский Водоканалпроект
Утверждён:15.05.1991 СоюзводоканалНИИпроект (SoyuzvodokanalNIIproject 9)
Расположен в:Техническая документация Строительство Справочные документы Типовые строительные конструкции, изделия и узлы Общероссийский строительный каталог Промышленные предприятия, здания и сооружения Здания и сооружения санитарно-технические Канализация Станции насосные Станции насосные для перекачки бытовых сточных вод
Типовой проект 902-1-170.91Типовой проект 902-1-170.91Типовой проект 902-1-170.91Типовой проект 902-1-170.91Типовой проект 902-1-170.91Типовой проект 902-1-170.91Типовой проект 902-1-170.91Типовой проект 902-1-170.91Типовой проект 902-1-170.91Типовой проект 902-1-170.91Типовой проект 902-1-170.91Типовой проект 902-1-170.91Типовой проект 902-1-170.91Типовой проект 902-1-170.91Типовой проект 902-1-170.91Типовой проект 902-1-170.91Типовой проект 902-1-170.91Типовой проект 902-1-170.91Типовой проект 902-1-170.91Типовой проект 902-1-170.91Типовой проект 902-1-170.91Типовой проект 902-1-170.91Типовой проект 902-1-170.91Типовой проект 902-1-170.91Типовой проект 902-1-170.91Типовой проект 902-1-170.91Типовой проект 902-1-170.91Типовой проект 902-1-170.91Типовой проект 902-1-170.91Типовой проект 902-1-170.91Типовой проект 902-1-170.91Типовой проект 902-1-170.91Типовой проект 902-1-170.91Типовой проект 902-1-170.91Типовой проект 902-1-170.91Типовой проект 902-1-170.91Типовой проект 902-1-170.91Типовой проект 902-1-170.91Типовой проект 902-1-170.91Типовой проект 902-1-170.91Типовой проект 902-1-170.91Типовой проект 902-1-170.91Типовой проект 902-1-170.91Типовой проект 902-1-170.91Типовой проект 902-1-170.91Типовой проект 902-1-170.91Типовой проект 902-1-170.91Типовой проект 902-1-170.91Типовой проект 902-1-170.91Типовой проект 902-1-170.91Типовой проект 902-1-170.91Типовой проект 902-1-170.91Типовой проект 902-1-170.91Типовой проект 902-1-170.91Типовой проект 902-1-170.91Типовой проект 902-1-170.91Типовой проект 902-1-170.91Типовой проект 902-1-170.91Типовой проект 902-1-170.91

© 2013 Ёшкин Кот :-) Карта сайта