Информационная система
«Ёшкин Кот»

Скачать базу одним архивом
Скачать обновления
История создания базы
Карта сайта

Скачать Технологическая карта Технологическая карта на устройство и применение средств подмащивания для организации рабочих мест на высоте при отделке фасадов здания

Дата актуализации: 10.08.2017

Технологическая карта

Технологическая карта на устройство и применение средств подмащивания для организации рабочих мест на высоте при отделке фасадов здания

Обозначение: Технологическая карта
Статус:не установлен срок действия
Название рус.:Технологическая карта на устройство и применение средств подмащивания для организации рабочих мест на высоте при отделке фасадов здания
Дата добавления в базу:01.09.2013
Дата актуализации:05.05.2017
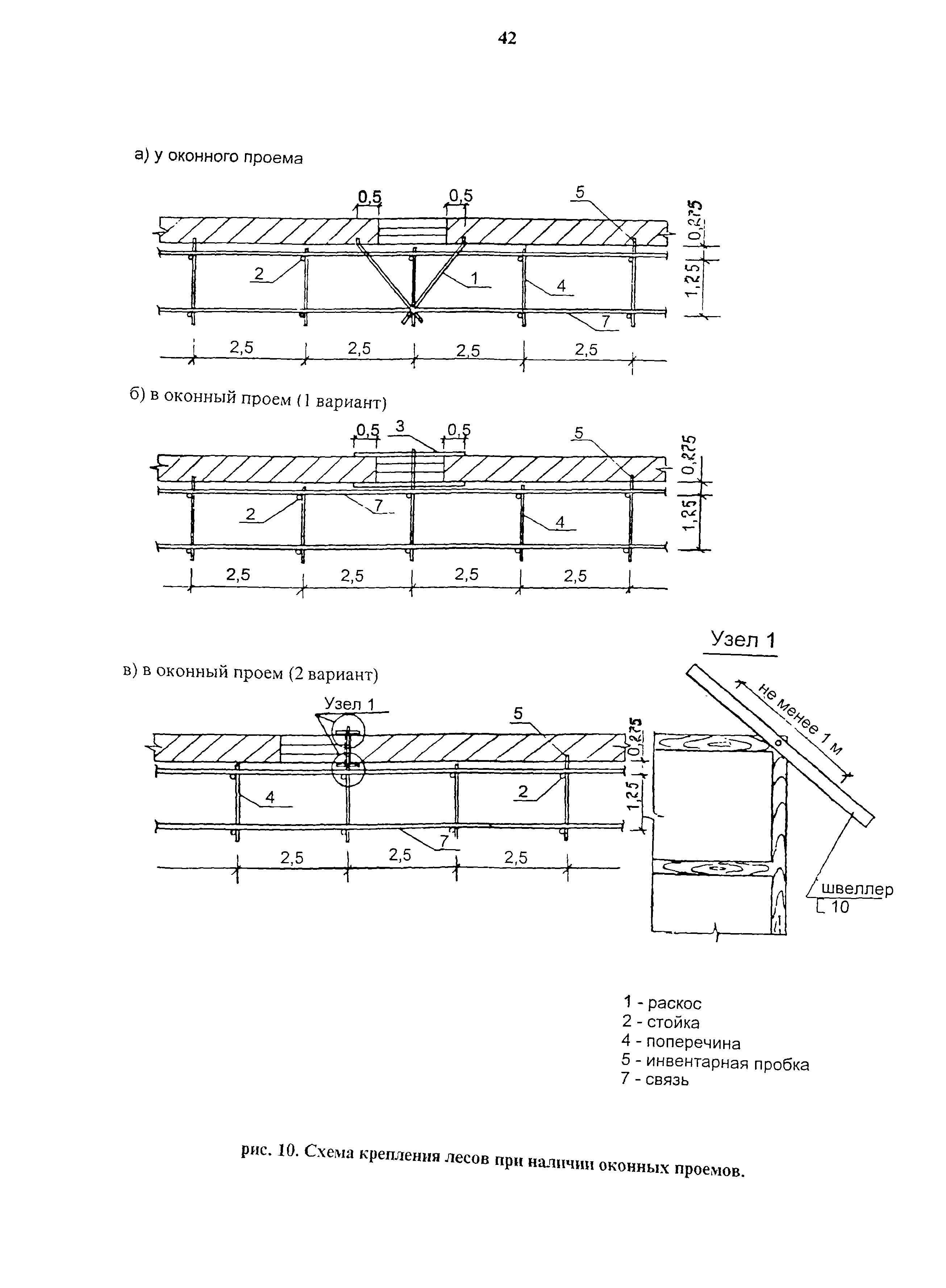
Область применения:Технологическая карта на устройство и применение средств подмащивания для организации рабочих мест на высоте предназначена для использования при отделке фасадов на строительстве, ремонте и реконструкции жилых и общественных зданий. Технологическая карта предназначена для инженерно-технических работников строительных и проектных организаций, связанных с производством отделочных и ремонтных работ на фасадах зданий
Оглавление:Аннотация
1. Область применения
2. Правила устройства и применения средств подмащивания
3. Требования к комплектной поставке элементов лесов
4. Калькуляция затрат труда на устройство лесов площадью 1000 м кв.
5. График производства работ
6. Обеспечение качества устройства лесов
7. Решения по технике безопасности
8. Технико-экономические показатели
Иллюстрации
Использованная литература
Разработан: АОЗТ ЦНИИОМТП
ОАО ПКТИпромстрой
Утверждён: ОАО ПКТИпромстрой (PKTIpromstroy OAO )
Расположен в:Техническая документация Экология СТРОИТЕЛЬНЫЕ МАТЕРИАЛЫ И СТРОИТЕЛЬСТВО Отделка Строительство Справочные документы Технологические карты Отделочные работы
Нормативные ссылки:
Технологическая карта Технологическая карта Технологическая карта Технологическая карта Технологическая карта Технологическая карта Технологическая карта Технологическая карта Технологическая карта Технологическая карта Технологическая карта Технологическая карта Технологическая карта Технологическая карта Технологическая карта Технологическая карта Технологическая карта Технологическая карта Технологическая карта Технологическая карта Технологическая карта Технологическая карта Технологическая карта Технологическая карта Технологическая карта Технологическая карта Технологическая карта Технологическая карта Технологическая карта Технологическая карта Технологическая карта Технологическая карта Технологическая карта Технологическая карта Технологическая карта Технологическая карта Технологическая карта Технологическая карта Технологическая карта Технологическая карта Технологическая карта Технологическая карта Технологическая карта Технологическая карта Технологическая карта Технологическая карта Технологическая карта Технологическая карта Технологическая карта Технологическая карта Технологическая карта Технологическая карта Технологическая карта Технологическая карта Технологическая карта Технологическая карта Технологическая карта Технологическая карта Технологическая карта Технологическая карта Технологическая карта Технологическая карта Технологическая карта Технологическая карта Технологическая карта Технологическая карта Технологическая карта

© 2013 Ёшкин Кот :-) Карта сайта