Информационная система
«Ёшкин Кот»

Скачать базу одним архивом
Скачать обновления
История создания базы
Карта сайта

Скачать Типовой проект 211-1-290с.84 Альбом 1. Архитектурно-строительные решения. Технология. Холодоснабжение

Дата актуализации: 10.08.2017

Типовой проект 211-1-290с.84

Альбом 1. Архитектурно-строительные решения. Технология. Холодоснабжение

Обозначение: Типовой проект 211-1-290с.84
Обозначение англ: 211-1-290с.84
Статус:не действует
Название рус.:Альбом 1. Архитектурно-строительные решения. Технология. Холодоснабжение
Дата добавления в базу:01.09.2013
Дата актуализации:05.05.2017
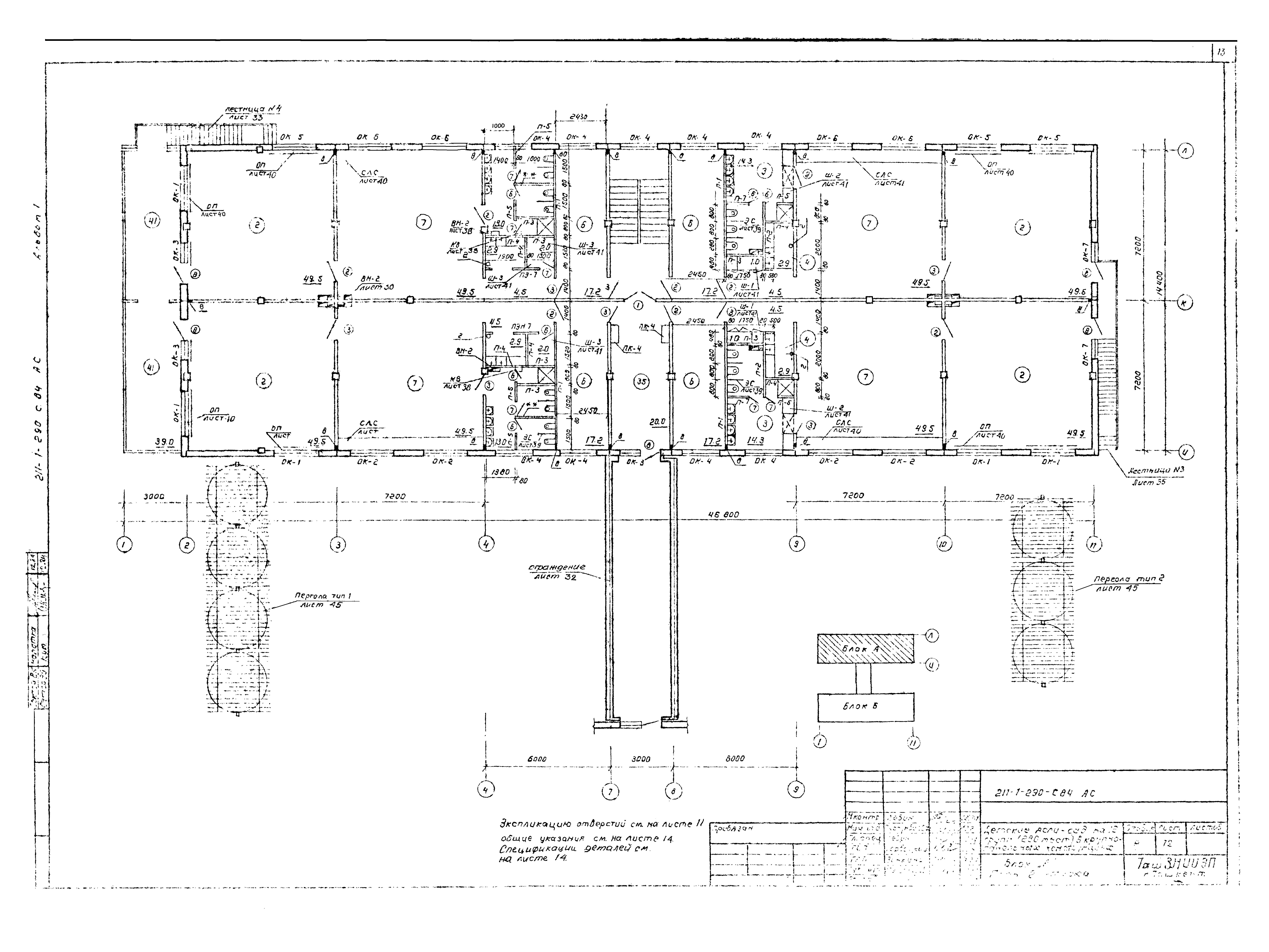
Оглавление:Чертежи основного комплекта марки АС
   Общие данные
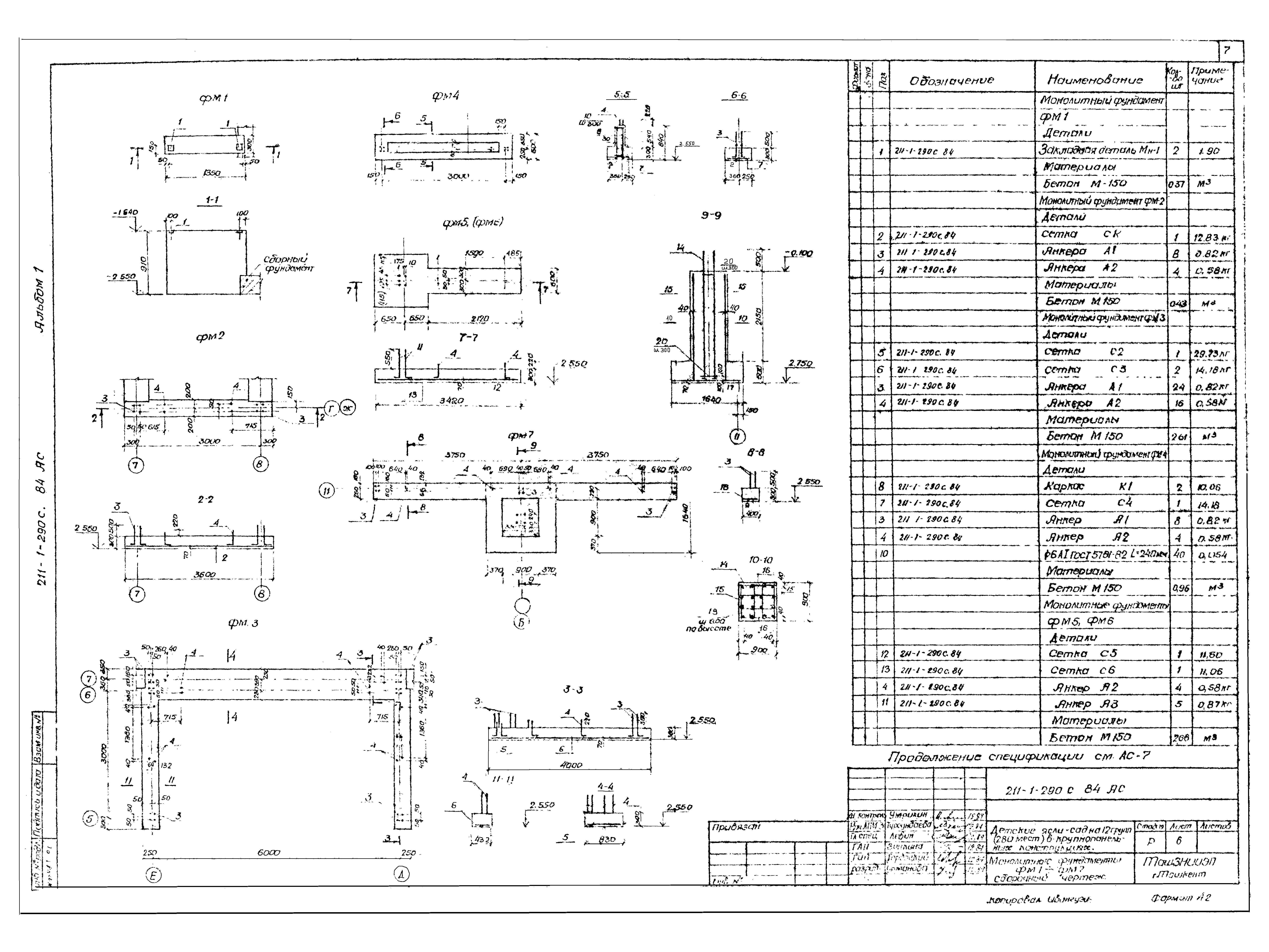
   Схема расположения фундаментов
   Спецификация
   Монолитные фундаменты ФМ-1 - ФМ-7
   Арматурные изделия. Спецификация стали
   Схема расположения стеновых панелей технического подполья
   Схема расположения панелей перекрытий технического подполья
   Блок А. План 1 этажа
   Блок Б. План 1 этажа
   Блок А. План 2 этажа
   Блок Б. План 2 этажа
   Разрезы 1-1,2-2. Спецификация элементов планов этажей
   Фасады
   Фасады (вариант)
   Входы и крыльца №№1,2,3,4,5,6
   Вход № 7. Ограждение лоджий. Спецификация
   Схема расположения панелей наружных стен
   Схема расположения панелей стен 1 и 2 этажей
   Спецификация панелей стен 1 и 2 этажей
   Схемы расположения плит перекрытия на отм. 3.300 и 6.600
   Спецификация плит перекрытия и покрытия
   Монолитная рама МР1
   Монолитный участок УМ1. Монолитная консоль МК1
   Монолитный козырек КМ-1, монолитный участок УМ2
   Арматурные изделия
   Ведомость расхода стали
   План кровли. Шумоглушительная камера ШК1
   Детали и сечения
   Схемы расположения элементов заполнения элементов оконных и дверных проемов
   Наружная отделка. Ограждение галереи, наружных дверей
   Планы и экспликация полов
   Ведомость отделки помещений. Схема расположения элементов лестниц №1, №2
   Лестница №3,№4. Сечения
   Металлические ограждения ОЛ3,ОЛ4
   Лестница №3, №4. Ограждения ОЛ3, ОЛ4. Спецификация
   Заполнение продухов техподполья. Короб вытяжной. Развертка вентиляционных блоков
   Экран санузлов. Асбестоцементная перегородка. Подвесной потолок
   Ленточный стол . Ограждение отопительных приборов
   Встроенные шкафы
   Интерьер групповой, игральной, столовой (спецификация элементов интерьера)
   Интерьер перехода и музыкального зала
   Интерьер холла и зала для гимнастических занятий
   Перголы
Чертежи основного комплекта марки ТХ
   Общие данные. Расстановка технологического оборудования. Спецификация оборудования
   План с расстановкой технологического оборудования
    Холодоснабжение
Разработан: ТашЗНИИЭП Госгражданстроя
Утверждён:21.06.1984 Госгражданстрой (Gosgrazhdanstroy 168)
Расположен в:Техническая документация Строительство Справочные документы Типовые строительные конструкции, изделия и узлы Общероссийский строительный каталог Общественные здания в городах и поселках городского типа Детские дошкольные учреждения Детские ясли-сады
Типовой проект 211-1-290с.84Типовой проект 211-1-290с.84Типовой проект 211-1-290с.84Типовой проект 211-1-290с.84Типовой проект 211-1-290с.84Типовой проект 211-1-290с.84Типовой проект 211-1-290с.84Типовой проект 211-1-290с.84Типовой проект 211-1-290с.84Типовой проект 211-1-290с.84Типовой проект 211-1-290с.84Типовой проект 211-1-290с.84Типовой проект 211-1-290с.84Типовой проект 211-1-290с.84Типовой проект 211-1-290с.84Типовой проект 211-1-290с.84Типовой проект 211-1-290с.84Типовой проект 211-1-290с.84Типовой проект 211-1-290с.84Типовой проект 211-1-290с.84Типовой проект 211-1-290с.84Типовой проект 211-1-290с.84Типовой проект 211-1-290с.84Типовой проект 211-1-290с.84Типовой проект 211-1-290с.84Типовой проект 211-1-290с.84Типовой проект 211-1-290с.84Типовой проект 211-1-290с.84Типовой проект 211-1-290с.84Типовой проект 211-1-290с.84Типовой проект 211-1-290с.84Типовой проект 211-1-290с.84Типовой проект 211-1-290с.84Типовой проект 211-1-290с.84Типовой проект 211-1-290с.84Типовой проект 211-1-290с.84Типовой проект 211-1-290с.84Типовой проект 211-1-290с.84Типовой проект 211-1-290с.84Типовой проект 211-1-290с.84Типовой проект 211-1-290с.84Типовой проект 211-1-290с.84Типовой проект 211-1-290с.84Типовой проект 211-1-290с.84Типовой проект 211-1-290с.84Типовой проект 211-1-290с.84Типовой проект 211-1-290с.84Типовой проект 211-1-290с.84

© 2013 Ёшкин Кот :-) Карта сайта