| ||||||||||||||||||||||||||||||||
Скачать СП 35-113-2004 Геронтологические центры. Дома сестринского ухода. ХосписыДата актуализации: 10.08.2017
|
| Обозначение: | СП 35-113-2004 |
| Обозначение англ: | SP 35-113-2004 |
| Статус: | действует |
| Название рус.: | Геронтологические центры. Дома сестринского ухода. Хосписы |
| Название англ.: | Gerontological centers of Social protection system. Nursing house. Hospice |
| Дата добавления в базу: | 01.09.2013 |
| Дата актуализации: | 05.05.2017 |
| Область применения: | Свод правил устанавливает основные положения и требования к размещению, участку, территории, функциональной организации и архитектурно-планировочным решениям стационарных учреждений социального обслуживания пожилых людей: геронтологические центры, дома (отделения) сестринского ухода, хосписы. |
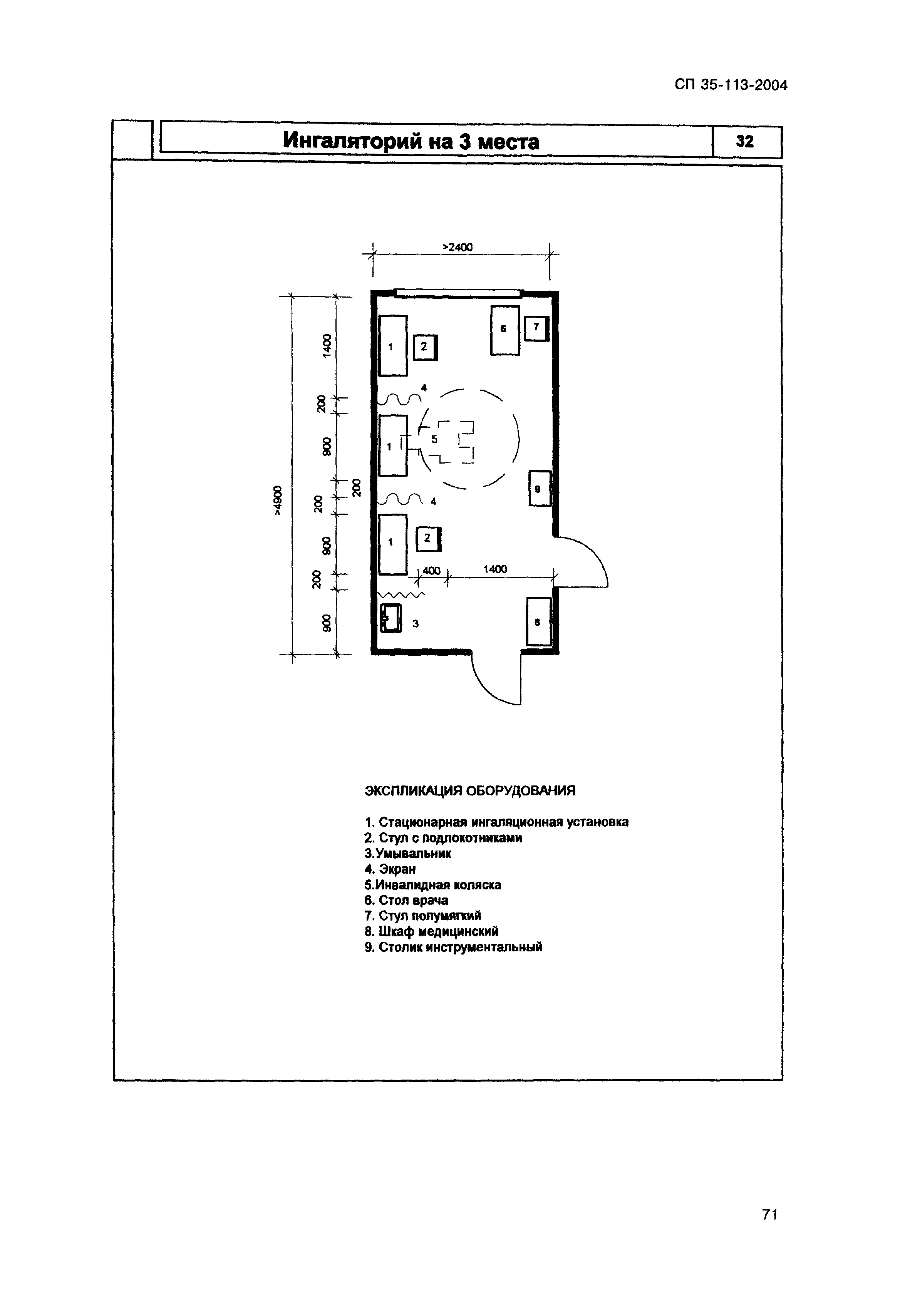
| Оглавление: | Введение 1 Область применения 2 Нормативные ссылки 3 Основные положения 4 Требования к размещению, участку и территории 5 Вместимость и составы функциональных групп помещений 6 Требования к архитектурно-планировочным решениям 7 Требования к инженерному оборудованию Приложение А. Примерная структура, состав и площади помещений геронтопсихиатрического отделения на 50 коек. Примерная структура, состав и площади помещений хосписа на 30 коек Приложение Б. Информационные положения о доме сестринского ухода, хосписе и отделении сестринского ухода многопрофильных и специализированных больниц Приложение В. Примеры планировочных решений |
| Разработан: | Институт общественных зданий АПИО-Центр |
| Утверждён: | 24.12.2007 ОАО Институт общественных зданий (21) |
| Издан: | ОАО ЦПП (2008 г. ) |
| Расположен в: | |
| Нормативные ссылки: |
|




















































































